Neocasa va recomanda o proprietate foarte bine amplasata - imobil de vanzare in zona Dorobanti, pe o strada linistita in apropiere de Piata Dorobanti. Aceasta vila are o suprafata utila de 484.53 mp(570 mp total) la care se adauga casa scarii, 2 balcoane si 2 terase. Regimul de inaltime este S+P+3, iar compartimentarea este realizata astfel:
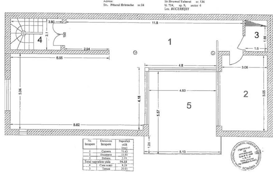
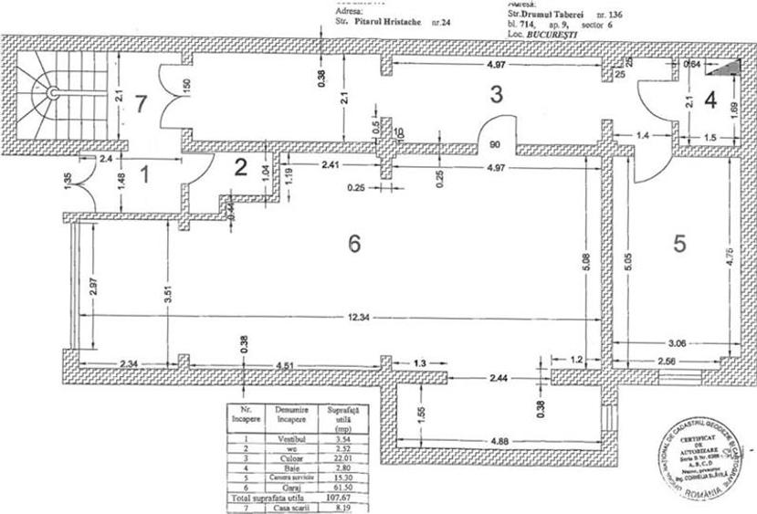
SUBSOL - 2 camere pentru depozitare, camera tehnica, spalatorie
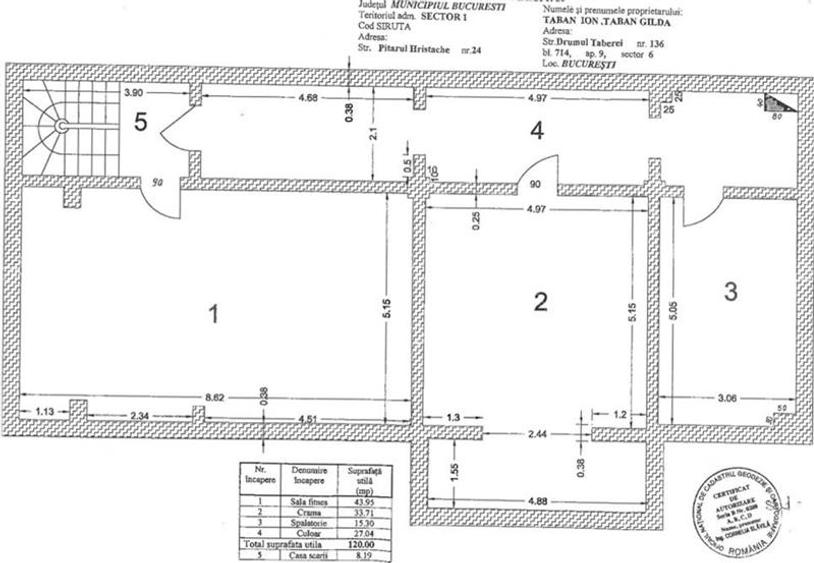
PARTER - garaj, 2 bai, hol cu spatii de depozitare, dormitor
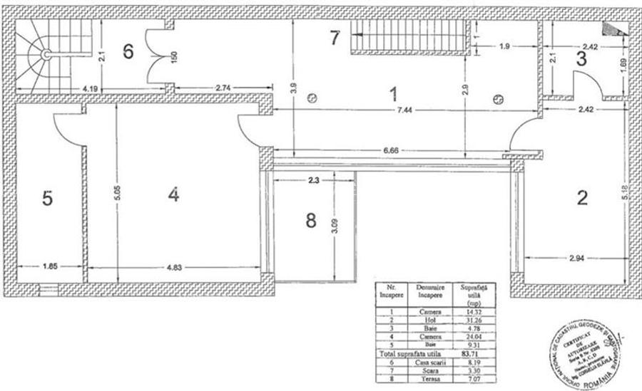
ETAJ 1 - living + dining de 75mp, bucatarie si camara, terasa de 26mp
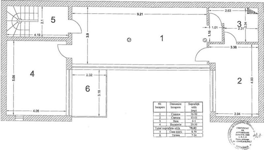
ETAJ 2 - 2 dormitoare fiecare cu baie proprie, hol spatios + balcon de 7mp
ETAJ 3 - 1 dormitor, 1 baie, 1 bucatarie ce poate fi transformata in dormitor, zona de living .
De la etajul 3 se poate accesa o terasa generoasa care ofera o panorama superba asupra imobilelor cu o arhitectura deosebita din Dorobanti.
Garajul este situat la parter si ofera posibilitatea de a parca 4 masini.
Datorita locatiei si arhitecturii deosebite, vila este potrivita atat pentru destinatie de birouri (firma, clinica medicala) cat si rezidential.
Sediul central - Timișoara
Bulevardul Victor Babeș nr. 2, 300230, Timișoara, România
Tel: +40.374.40.44.98 / Fax: +40.256.401.179
Email: suport@imobiliare.ro
Luni - Vineri 08:00 - 20:00
Punct de lucru - București: Iride Business Park, Bld. Dimitrie
Pompeiu 9-9A, Clădirea B2B,
020335, Sector 2, București, România
CONTACT
Sediul central - Timișoara
Bulevardul Victor Babeș nr. 2, 300230, Timișoara, România
Tel: +40.374.40.44.98 / Fax: +40.256.401.179
Email: suport@imobiliare.ro
Luni - Vineri 08:00 - 20:00
Punct de lucru - București: Iride Business Park, Bld. Dimitrie
Pompeiu 9-9A, Clădirea B2B,
020335, Sector 2, București, România
Gradinita cu program normal si prelungit Happy Kids
aprox.
200 m
Gradinita nr. 252 cu program prelungit
aprox.
660 m
Gradinita de copii nr.251
aprox.
682 m
Grădinița nr. 252
aprox.
710 m
Paradisul Copiilor
aprox.
795 m
Gradinita nr. 138 cu program prelungit
aprox.
873 m
Gradinita nr. 85
aprox.
907 m
Gradinita numarul 12 Albinuta
aprox.
924 m
Gradinita nr. 12 Albinuta
aprox.
929 m
Gradinita nr. 2
aprox.
1209 m
Ioanid
aprox.
1313 m
Gradinita Ioanid
aprox.
1329 m
Gradinita nr. 116
aprox.
1357 m
Gradinita numarul 133
aprox.
1410 m
Gradinita cu program normal ""Ge Ce Pic Englishkinder"
aprox.
1441 m
Universitatea Atenaeum
aprox.
718 m
Athenaeum University (en)
aprox.
724 m
SNSPA
aprox.
838 m
Scoala Nationala de Studii Politice si Administrative (SNSPA)
aprox.
857 m
Scoala Nationala de Studii Politice si Administrative
aprox.
857 m
ASE - Sala de sport
aprox.
984 m
CROS - Universitatea Alternativa
aprox.
998 m
ASE - Cladirea Cihoschi
aprox.
1006 m
ASE - Cibernetica
aprox.
1014 m
ASE Cladirea Veche 1916 - 1926 (en)
aprox.
1021 m
ASE Cibernetica (en)
aprox.
1024 m
Amfiteatrele ASE
aprox.
1039 m
Academia de Studii Economice
aprox.
1052 m
ASE - Facultatea de Comert
aprox.
1057 m
Academia Romana
aprox.
1433 m
Mega Image
aprox.
331 m
Mario Plaza
aprox.
344 m
Mega Image - IANCU DE HUNEDOARA
aprox.
496 m
Nic Dorobanti Non-Stop
aprox.
573 m
Bila Supermarket
aprox.
946 m
BILLA - Dorobanti
aprox.
947 m
Mega Image
aprox.
1167 m
Kaufland Barbu Vacarescu
aprox.
1235 m
BILLA - B. Vacarescu
aprox.
1241 m
Mega Image
aprox.
1254 m
Bacania Coco
aprox.
1405 m
Nik Non-Stop
aprox.
1458 m
Mega Image Amzei Non-Stop
aprox.
1500 m
Mega Image Magheru
aprox.
1525 m
Mega Image
aprox.
1592 m
"METROPLIS CENTER"
aprox.
512 m
Parcare
aprox.
150 m
Parcare spital
aprox.
299 m
Parcare
aprox.
299 m
Parcare
aprox.
308 m
Parcare Mario Plaza
aprox.
344 m
Parcare
aprox.
361 m
Parcare
aprox.
361 m
Parcare Subterana Metropolis Center
aprox.
486 m
Parcare
aprox.
498 m
Parcare
aprox.
509 m
Parcare privata
aprox.
592 m
Parcare
aprox.
670 m
Parcare privata
aprox.
687 m
Parcare
aprox.
688 m
Parcare
aprox.
705 m
Parc
aprox.
256 m
Parc
aprox.
272 m
Parc
aprox.
397 m
Perla park
aprox.
397 m
Piata Dorobantilor
aprox.
469 m
Piata Dorobanti
aprox.
475 m
Parc
aprox.
515 m
Parc
aprox.
587 m
Parcul Khalil Gibran
aprox.
594 m
Parc
aprox.
594 m
Parc
aprox.
661 m
Automatica Park (en)
aprox.
671 m
George Calinescu Round (en)
aprox.
674 m
Parc
aprox.
674 m
Parc
aprox.
711 m
Teren sportiv
aprox.
279 m
Teren sportiv
aprox.
314 m
Teren sportiv
aprox.
343 m
Stadionul Dinamo
aprox.
375 m
Teren sportiv
aprox.
422 m
Teren sportiv
aprox.
445 m
Teren sportiv
aprox.
592 m
Teren sportiv
aprox.
1319 m
ICSIM
aprox.
1374 m
Teren sportiv
aprox.
1434 m
Teren sportiv
aprox.
1511 m
Skatepark 1
aprox.
1634 m
Teren sportiv
aprox.
1646 m
Teren sportiv
aprox.
1674 m
Teren sportiv
aprox.
1898 m
Piața Aviatorilor
aprox.
1035 m
Piața Romană
aprox.
1111 m
Piata Revolutiei
aprox.
1982 m
Help Net Farma
aprox.
127 m
Farmacia HelpNet
aprox.
139 m
Crisia-Farm
aprox.
180 m
Catena Farmacia
aprox.
187 m
Farmacia Dona 17
aprox.
229 m
Farmacia Crisia
aprox.
272 m
Farmacia Dona 54
aprox.
329 m
Help Net Farma
aprox.
337 m
Sensiblu
aprox.
357 m
Centrofarm 9
aprox.
377 m
Farmacia Dona 152
aprox.
467 m
Farmacia HelpNet
aprox.
468 m
Farmacia 144
aprox.
469 m
SC. Farmed SRL
aprox.
481 m
Farmacia Punkt
aprox.
500 m
Regina Maria Floreasca
aprox.
295 m
ProEstetica
aprox.
301 m
Spitalul Euroclinic - Regina Maria
aprox.
325 m
Spitalul Euroclinic
aprox.
338 m
Policlinica
aprox.
369 m
Spitalul de Urgenta Floreasca
aprox.
406 m
Camera de Garda - Spitalul de Urgenta Floreasca
aprox.
408 m
Spitalul de Urgență Floreasca
aprox.
411 m
Syromed+
aprox.
557 m
Ambulatoriul de specialitate al Spitalului de copii Grigore Alexandrescu
aprox.
626 m
Spitalul de Pneumoftiziologie Sfantul Stefan
aprox.
649 m
Policlinica C.M.D.T.A.M.P.
aprox.
655 m
INFOSAN Clinica Oftalmologica
aprox.
687 m
policlinica de copii Grigore Alexandrescu
aprox.
695 m
Doctor Carmen Sturza
aprox.
721 m
Vivo Fusion Food Bar
aprox.
187 m
Restaurant "La Templu" (coa) (calea Dorobantilor 127-129)
aprox.
201 m
Trattoria "As del Cuore"
aprox.
282 m
Genin Shaorma
aprox.
283 m
Restaurant Perla (en)
aprox.
346 m
Perla
aprox.
346 m
Balcic
aprox.
368 m
Restaurant arabesc
aprox.
390 m
Fornetti
aprox.
413 m
Trattoria Cavallino
aprox.
481 m
Casa Enache
aprox.
536 m
Casa Enache (en)
aprox.
558 m
White Horse
aprox.
560 m
Ganesha Garden
aprox.
571 m
Bun si Tot
aprox.
573 m
Sky Bar
aprox.
211 m
Cup & Cake
aprox.
619 m
Happy Pub
aprox.
827 m
ACAB Pub
aprox.
893 m
Zappa Rock & More
aprox.
970 m
Lokal
aprox.
1096 m
El Bistro
aprox.
1152 m
Alan Dala
aprox.
1189 m
Frame
aprox.
1247 m
Clubul Taranului
aprox.
1256 m
La Baraca
aprox.
1376 m
Piua Book Bar
aprox.
1406 m
A1
aprox.
1558 m
MIM Bistro
aprox.
1746 m
Fratelli Espresso Bar
aprox.
1781 m
Fitto Cafe
aprox.
232 m
Randez Vous
aprox.
354 m
Reader's Cafe
aprox.
514 m
High Heels
aprox.
523 m
Ganesha Cafe
aprox.
571 m
Nuba Cafe
aprox.
632 m
The Eatery
aprox.
657 m
Ambiance Caffe
aprox.
836 m
Cafe Boheme
aprox.
973 m
Tucano Coffee - Dorobanti
aprox.
983 m
Tucano Coffee
aprox.
1006 m
Smart Change
aprox.
1050 m
Mon Amour
aprox.
1094 m
Cafe 3
aprox.
1101 m
Admiral Cafe
aprox.
1113 m
Studio Martin
aprox.
414 m
Doncafe Brasserie
aprox.
523 m
Open Pub
aprox.
832 m
Restaurant-pizzerie BONA DA ELENA
aprox.
1070 m
Panik & Pub
aprox.
1081 m
Waldo's
aprox.
1321 m
OLD NICK PUB
aprox.
1326 m
Le Cafe Inmedio
aprox.
1403 m
The Dubliner
aprox.
1759 m
Smart's Pub & Bistro
aprox.
1809 m
The Place
aprox.
1811 m
BRD
aprox.
151 m
ING Dorobanti
aprox.
158 m
Erste (BCR)
aprox.
223 m
Credit Europe Bank
aprox.
227 m
Garanti bank sediu
aprox.
243 m
Banca Transilvania - Ag. Perla
aprox.
269 m
Raiffeisen Bank - Agentia Dorobanti
aprox.
362 m
Raiffaisen Bank
aprox.
390 m
Banca Romana de Credite si Investitii
aprox.
408 m
Raiffeisen Bank
aprox.
419 m
Raiffeisen Bank
aprox.
457 m
Alpha Bank
aprox.
459 m
Volksbank
aprox.
470 m
Credit Europe Bank - Suc. Dorobanti VIP (en)
aprox.
478 m
CEC Bank
aprox.
479 m
Printre mijloacele de transport în comun pe care le vei avea la dispoziție în cazul în care te vei muta în zona Floreasca se numără autobuzele 182 și 135. Primul dintre acestea îți oferă o legătură directă cu zona Gării de Nord și cu cartierul Colentina. Cel de-al doilea oferă o conexiune cu zona Pipera, unul dintre principalii poli de business din nordul orașului. Stația de metrou Ștefan cel Mare, aflată pe magistrala M1 Dristor-Pantelimon, la care ai acces în apropierea Stadionului Dinamo, îți va fi și ea de ajutor dacă vrei să eviți aglomerația din trafic. Astfel, vei avea doar o stație de mers până la Piața Victoriei, iar de aici poți schimba metroul pentru a ajunge în cel mult 10 minute în Pipera. Verifică harta pentru a afla unde sunt poziționate stațiile mijloacelor de transport în comun.
Dacă te vei muta în zona Floreasca, atunci vei avea în apropierea casei tale Liceul Teoretic "CA Rosetti" și Școala Gimnazială "Maria Rosetti". În cartier găsești, totodată, câteva grădinițe private și de stat. Consultă harta pentru a vedea care sunt unitățile de învățământ din Floreasca și din vecinătatea acestei zone.
Pe Strada Barbu Văcărescu vei găsi un magazin Kaufland și un Carrefour Market, iar la limita nordică a cartierului vei avea la dispoziție mall-ul Promenada. Din zona Floreasca ajungi destul de rapid la magazinele de lângă Pasajul Băneasa și la Piața Băneasa, iar cu mașina faci doar câteva minute până la Băneasa Shopping City, unul dintre cele mai mari centre comerciale din oraș. Vis-a-vis de acesta găsești și magazine Mega Image, Selgros și Decathlon. Află de pe hartă unde îți vei face cumpărăturile dacă te muți în acest cartier.
Dacă preferi să te deplasezi cu mașina prin oraș, este bine să știi că vei întâlni aglomerație în trafic, în special la orele de vârf, la intersecțiile dintre Șoseaua Ștefan cel Mare, Strada Barbu Văcărescu și Calea Floreasca. Circulația este îngreunată de multe ori și pe Strada Barbu Văcărescu, pe segmentul dinspre Șoseaua Pipera, din cauza numărului mare de angajați care lucrează în clădirile de birouri din jurul stației de metrou Aurel Vlaicu. Încearcă să te adresezi Biroului Parcări din cadrul ADP Sector 2 pentru a vedea dacă poți închiria un loc de parcare pentru mașina ta în apropierea casei. Consultă harta pentru a afla unde sunt poziționate principalele parcări.
Dacă te muți în zona Floreasca, vei avea mereu în apropiere unele dintre cele mai apreciate restaurante, terase și cluburi din București. Iar dacă vrei să încerci ceva nou atunci la doi pași de casă, în Dorobanți, vei găsi și alte localuri de care te poți bucura în timpul liber. Mai multe săli de fitness s-au deschis în cartier. În apropiere de viitoarea ta casă vei avea Parcul Verdi și Parcul Floreasca. Poți merge la terasă sau la piscină în zona acestuia din urmă. Tot în apropiere vei avea și Circul Metropolitan București (fostul Circ Globus) și parcul acestuia. Complexul Sportiv Floreasca și Stadionul Dinamo, unde sunt amenajate mai multe terenuri de sport și unde poți merge la înot, merită și ele menționate. În partea de nord a cartierului vei găsi, totodată, Clubul Sportiv de Fotbal Athletico Floreasca și Academia de Tenis Ilie Năstase. Consultă harta și vezi ce alte puncte de interes vei avea în apropierea casei tale.
În apropierea Stadionului Dinamo găsești Spitalul Clinic de Urgență București (cunoscut și sub numele de Spitalul Floreasca) și Spitalul Euroclinic care face parte din rețeaua privată de sănătate Regina Maria. În cartier există și câteva clinici private la care poți apela la nevoie, iar în zona Parcului Circului alte două spitale - Spitalul Sf. Ștefan și Spitalul Clinic Colentina. Consultă harta pentru a afla poziționarea exactă a unităților sanitare din cartier și din împrejurimi.
Găsești numeroase restaurante și terase de-a lungul arteri de circulație care traversează această zonă, Calea Floreasca. Ai, totodată, la doi pași de casă, mall-ul Promenada, unde găsești atât un food court cu destul de multe opțiuni, cât și câteva terase unde îți poți savura cafeaua în aer liber, dar și localurile din Dorobanți. Ajungi foarte rapid și în Piața Victoriei, unde găsești mai multe cafenele. De acolo, poți lua la pas Calea Victoriei, una dintre cele mai frumoase zone din oraș. Te vei plimba și vei găsi, cu siguranță, un restaurant pe gustul tău. Aruncă o privire pe hartă și vezi ce alte opțiuni ai în apropierea viitoarei tale locuințe.
Mai multe bănci și ATM-uri pot fi găsite în zona mall-ului Promenada și la intersecția dintre Calea Floreasca și Șoseaua Ștefan cel Mare. Pentru mai multe detalii, consultă harta.
Înainte să pleci...
Ești sigur că ai văzut și aceste proprietăți?
1.580.000 €
București, Dorobanți
688 mp utili
Clădire de birouri
4E
1.150.000 €
București, Tineretului
317,82 mp utili
Bloc de apartamente
4E
1.450.000 €
București, Polonă
979 mp utili
Clădire de birouri
1995
1.500.000 €
București, Tei
589 mp utili
Clădire de birouri
3E
1.299.999 €
București, Cotroceni
562 mp utili
Clădire de birouri
3E
1.200.000 €
București, Domenii
1.000 mp utili
Clădire de birouri
4E
Creează alertă
Salvează căutarea ca să primești pe email ultimele anunțuri publicate
Spații comerciale cu 4+ camere de vânzare în zona Floreasca, Sector 1
Cere detalii prin email
*
*
*
*
Detaliile tale de contact vor fi partajate cu Neocasa Real Estate Solutions