Această proprietate speciala reprezinta o oportunitate unica pentru investitorii!
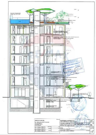
Va prezentam la vanzare o cladire noua (finalizata in 2024) cu regim de inaltime S+P+M+4E+5E retras, situata pe Str Agricultori, in proximitatea Bdulul Decebal.
Cladirea are o amprenta la sol de 132 mp, este construita pe o suprafata de teren de 332 mp si are destinatie mixta:
• rezidential (6 apartamente, un penthouse, terasa, piscina),
• comercial: 4 birouri, un magazin alimentar si un restaurant cu terasa cu profil italian.
Proprietatea are lift si 10 locuri de parcare cu 2 prize pentru incarcare electrica.
Suprafata construita desfasurata este de 1710 mp cuprinzand subsol, parter, mezanin si 5 etaje, ultimul retras.
Proprietatea are acces la 3 strazi: Aleea Agricultori, strada Agricultori si Str Delea Noua,
Destinatia acestei cladiri este extrem de versatila ea putand fi usor transformata complet in spatii de birouri sau clinica medicala sau hotel boutique.
Configuratie:
Subsol - 121 mp Bucatarie moderna, utilata, functionala
Parter - 116 mp Restaurant si Magazin
Mezanin - 155,8 mp (2 spatii de birou)
Etaj 1 - 155,8 mp (2 spatii de birou)
Etaj 2 - 140 mp (apartament cu 2 si 3 camere)
Etaj 3 - 140 mp (apartament cu 2 si 3 camere)
Etaj 4 - 140 mp (apartament cu 2 si 3 camere)
Etaj 5 - 159,5 mp Penthouse
179 mp terasa, piscina
Dotari & confort premium:
• Se vinde complet mobilata si utilata (apartamentele si spatiile sunt inchiriate)
• Electrocasnice noi aflate inca in garantie
• Centrale electrice proprii in fiecare apartament
• Aer conditionat in toate apartamentele
Date principale:
•Regim de înălțime: S+P+M+4E+5E retras
•Suprafață construită totală: 1710 mp
• Teren: 332 mp
• Amprenta la sol 132 mp
• Terase: 179 mp
• 1 ascensor
• Locatie centrala premium, ideala pentru turism, business, leisure.
Sediul central - Timișoara
Bulevardul Victor Babeș nr. 2, 300230, Timișoara, România
Tel: +40.374.40.44.98 / Fax: +40.256.401.179
Email: suport@imobiliare.ro
Luni - Vineri 08:00 - 20:00
Punct de lucru - București: Iride Business Park, Bld. Dimitrie
Pompeiu 9-9A, Clădirea B2B,
020335, Sector 2, București, România
CONTACT
Sediul central - Timișoara
Bulevardul Victor Babeș nr. 2, 300230, Timișoara, România
Tel: +40.374.40.44.98 / Fax: +40.256.401.179
Email: suport@imobiliare.ro
Luni - Vineri 08:00 - 20:00
Punct de lucru - București: Iride Business Park, Bld. Dimitrie
Pompeiu 9-9A, Clădirea B2B,
020335, Sector 2, București, România
Centru de Diagnostic si Tratament Dr. Victor Babes (en)
aprox.
649 m
Spitalul Victor Babes
aprox.
691 m
Clinica ORL
aprox.
697 m
Columna Medical Center
aprox.
733 m
Spitalul Clinic de Copii “Dr. Victor Gomoiuâ€
aprox.
806 m
Medical GRAL
aprox.
846 m
Dispensar "Baba Novac" - medicină de familie
aprox.
857 m
Policlinica Gral Medical
aprox.
860 m
Spital Veterinar
aprox.
874 m
Clinica Audionova
aprox.
943 m
Restaurantul Babilon
aprox.
157 m
da Mario
aprox.
178 m
Delea Noua
aprox.
183 m
ASIA
aprox.
186 m
Chef Burger
aprox.
205 m
Decebal Restaurant
aprox.
206 m
Trattoria San Marco
aprox.
229 m
Gallo Nero
aprox.
235 m
La Conacul Nobil
aprox.
236 m
Artezian
aprox.
253 m
Trattoria Pascu
aprox.
288 m
La Mama
aprox.
319 m
Ruby Tuesday
aprox.
370 m
Agentie organizari evenimente - Casa Novias
aprox.
371 m
Ruby Tuesday (en)
aprox.
377 m
Cafe Pink
aprox.
181 m
Lolly Pop
aprox.
197 m
Snap
aprox.
205 m
Loka
aprox.
215 m
Tress Cafe
aprox.
335 m
Momentto Cafe
aprox.
342 m
Smile Cafe
aprox.
364 m
Snack Lab
aprox.
550 m
Habana Coffe
aprox.
604 m
Stretto Cofee
aprox.
615 m
Puerto Cafe
aprox.
708 m
La Trenulete
aprox.
723 m
Gio Cafe
aprox.
741 m
High Class
aprox.
755 m
Miau
aprox.
993 m
Zvon
aprox.
212 m
Dristor Pub
aprox.
434 m
Jukebox
aprox.
721 m
La Donna
aprox.
971 m
Roof
aprox.
1113 m
Terasa Rustica Foisor
aprox.
1388 m
Le Boutique Food Concept Store
aprox.
1402 m
Beraria Berestoika
aprox.
1549 m
Bluzz
aprox.
1560 m
La Scena
aprox.
1626 m
Friends
aprox.
1661 m
The 1st Pub
aprox.
1748 m
Kaffa Pub
aprox.
1751 m
Club Surubelnita
aprox.
1987 m
Shisha Lounge Bar
aprox.
567 m
Club Guesthouse
aprox.
673 m
Essenza Club
aprox.
682 m
MODELiER
aprox.
709 m
La Pirati
aprox.
1029 m
RSS Pub
aprox.
1151 m
Voltage Bar
aprox.
1334 m
Antic Bar
aprox.
1342 m
Bar
aprox.
1669 m
Geo Bar
aprox.
1792 m
BarFly
aprox.
1795 m
Bar
aprox.
1931 m
Macaz Bar Teatru Coop
aprox.
1984 m
TBI Bank
aprox.
212 m
Raiffeisen Bank - Agentia Decebal
aprox.
214 m
Raiffeisen Bank
aprox.
219 m
Libra Bank
aprox.
248 m
UniCredit Bank - Ag. Decebal
aprox.
250 m
Banca Transilvania / Calea Calarasilor
aprox.
260 m
Banca Transilvania - Ag. Delea Veche
aprox.
260 m
BRD Calea Calarasilor
aprox.
318 m
BRD Hurmuzachi
aprox.
348 m
ING Calarasi
aprox.
373 m
Banca Transilvania - Ag. Decebal
aprox.
392 m
ING Self'Bank
aprox.
397 m
Alpha Bank
aprox.
423 m
Pro Credit Bank
aprox.
451 m
BCR Sucursala Sector 3
aprox.
455 m
Calea Călărași este una dintre cele mai vechi artere de circulație din Capitală. Parcurgând-o cu tramvaiul ajungi destul de rapid în centru, la Piața Unirii, sau în zona Piața Muncii de pe Șoseaua Mihai Bravu. Stații de metrou pot fi găsite atât în Piața Unirii, cât și în Piața Muncii. O altă legătură utilă pentru cei care se mută în zonă poate fi oferită de troleibuzul 70 care traversează Piața Universității și are stație inclusiv în imediata vecinătate a Parcului Cișmigiu. În cazul în care optezi pentru o locuință aflată de-a lungul sau în apropierea Bulevardului Decebal, atunci autobuzul 104 ar putea fi de mare ajutor pentru tine. Acesta traversează orașul din cartierul Pantelimon și până în zona Piața Operei - Eroilor, trecând prin centru. Alte mijloace de transport în comun la care poți apela, dacă te muți în zona Decebal - Calea Călărași, sunt și troleibuzele 70 și 79. Stații găsești pe Strada Delea Nouă. Consultă harta pentru a afla unde găsești stațiile mijloacelor de transport în comun.
La intersecția dintre Calea Călărași și Strada Popa Nan se află sediul uneia dintre cele mai cunoscute instituții de învățământ privat din București - Universitatea Hyperion. Tot în această zonă a orașului găsești Colegiul Național "Matei Basarab", unul dintre cele mai prestigioase din oraș. Ar putea să te intereseze și Școala Specială nr. 5 de pe Strada Turturelelor sau Școala Generală Cezar Bolliac. Pentru copiii cu vârste mai mici găsești în zona Decebal - Calea Călărași mai multe grădinițe private. Consultă harta de mai jos pentru a afla ce alte unități de învățământ ai la dispoziție, dacă te muți în această parte a orașului.
Hala Traian, aflată la intersecția dintre Calea Călărași și Strada Traian, este un punct extrem de cunoscut în zonă și un loc ideal pentru a-ți face cumpărăturile. În interiorul acesteia a fost un amenajat un supermarket Mega Image, iar în jurul său vei găsi și alte magazine mici și farmacii. Câteva magazine găsești în apropiere de Șoseaua Mihai Bravu, la parterul blocurilor situate vis-a-vis de Spitalul Victor Babeș. Dacă vrei să îți faci cumpărăturile la hipermarket, atunci cel mai apropiat va fi cel aflat în spatele magazinului Unirii. Consultă harta pentru a afla ce alte opțiuni vei avea la doi pași de viitoarea ta locuință.
Zona este traversată de una dintre cele mai vechi artere de circulație din Capitală, Calea Călărași. Dacă te deplasezi des cu mașina prin oraș, atunci trebuie să știi că traficul este de multe ori îngreunat de-a lungul acesteia la orele de vârf, în special pe segmentul dintre Strada Popa Nan și Piața Corneliu Coposu, unde există doar o singură bandă pe sens. Îți recomandăm, totodată, să nu pierzi din vedere posibilitatea închirierii unui loc de parcare în apropierea noii tale locuințe. Pentru a face acest lucru, trebuie să te adresezi Biroului Parcări din cadrul ADP Sector 2 sau Direcției Generale Impozite și Taxe Locale Sector 3. Una dintre cele mai mari parcări din zonă se găsește la capătul Bulevardului Decebal, în Piața Alba Iulia. Consultă harta pentru mai multe detalii.
Vrei să te muți în zona Calea Călărași și te gândești deja ce opțiuni vei avea pentru petrecerea timpului liber? Poți să faci plimbări lungi pe străzile de lângă casele de aici, deosebit de frumoase în special în timpul toamnei, și apoi să faci un scurt popas la o ceainărie sau să iei masa la restaurant. Nu vei avea la dispoziție parcuri mari dacă vei locui în această parte a Bucureștiului. Cu toate acestea, vei ajunge destul de ușor, chiar și cu mijloacele în comun (troleibuzul 70), la Parcul Național sau în fața Grădinii Cișmigiu. Pe Strada Popa Nan vei avea la dispoziție un spațiu unde se desfășoară jocuri de laser tag, un loc de joacă pentru copii și o sală de fitness. Apropierea de Piața Unirii vine și cu alte opțiuni de petrecere a timpului liber, de la zile petrecute la terasele din Centrul Vechi la vizite la muzeu. Preferi o după-amiază la teatru? Atunci vei avea la dispoziție în apropiere trei teatre unde vei putea merge la spectacole - Teatrul de Artă, Teatrul de Comedie și Teatrul Evreiesc. Găsești pe hartă și alte puncte de interes din zona Decebal - Calea Călărași.
În zona Decebal - Calea Călărași vei găsi mai multe clinici private și farmacii. Cele mai apropiate spitale la care poți apela la nevoie se află în zona Piața Muncii. Este vorba despre Spitalul Clinic de Copii "Dr. Victor Gomoiu" și de Spitalul Clinic "Dr. Victor Babeș". Vezi pe hartă poziționarea unităților sanitare din zona Decebal - Calea Călărași și din vecinătatea sa.
Găsești cele mai multe restaurante, baruri și terase de-a lungul Bulevardului Decebal, dar și în Piața Alba Iulia. Pentru o atmosferă ceva mai liniștită îți recomandăm restaurantele și ceainăriile pe care le găsești ascunse pe străduțele din zonă, pe strada Popa Nan sau între casele vechi situate în apropiere de Hala Traian.
Găsești mai multe sucursale bancare și ATM-uri de-a lungul Bulevardului Decebal și pe Calea Călărași, principalele artere de circulație din zonă. Află de pe hartă unde găsești cea mai apropiată bancă de viitoarea ta locuință.
Înainte să pleci...
Ești sigur că ai văzut și aceste proprietăți?
3.600.000 €
București, Unirii
1.833,94 mp utili
Clădire de birouri
5E
4.900.000 €
București, Aviației
1.554 mp utili
Clădire de birouri
5E
10.999.000 €
București, Victoriei
8.126 mp utili
Clădire de birouri
6E
3.500.000 €
București, Dorobanți
800 mp utili
Clădire de birouri
2012
4.500.000 €
București, Aviației
3.000 mp utili
Clădire de birouri
6E
2.500.000 €
București, P-ța Victoriei
940 mp utili
Clădire de birouri
3E
Creează alertă
Salvează căutarea ca să primești pe email ultimele anunțuri publicate
Spații comerciale cu 4+ camere de vânzare în zona Decebal, Sector 3
Cere detalii prin email
*
*
*
*
Detaliile tale de contact vor fi partajate cu Re/max Quality