Situata intr-o locatie deosebita, la limita dintre cartierele Fratelia, Sagului si Rebreanu, aproape de mijloacele de transport in comun, constructia versatila cu 9 camere+ garaj dublu, edificata pe o parcela de deren avand suprafata de 670 mp, este ideala pentru camin de varstnici, unitate de invatamant (afterschool, gradinita, etc), clinica, sediu de firma dar si pentru alte destinatii si este situata pe o strada din zona Musicescu- Mures.
Configurata pe 3 nivele (demisol, parter si etaj), si beneficiind de 3 cai de acces (intrare- iesire), este gandita asfel incat fiecarui nivel ii poate fi atribuit destinatie in functie de nevoi astfel:
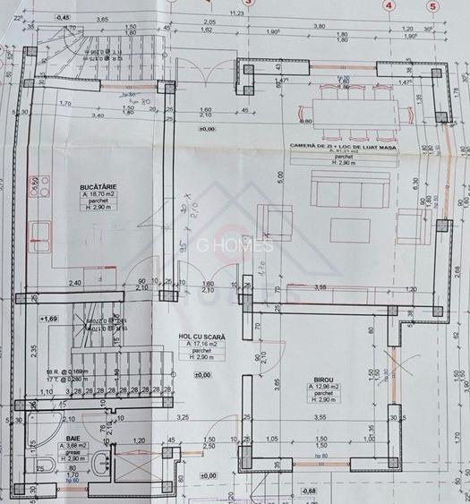
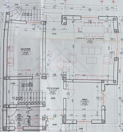
- Parter: hol/ receptie, camera mare, bucatarie inchisa, birou/ biblioteca, baie, terasa acoperita, garaj pentru doua masini.
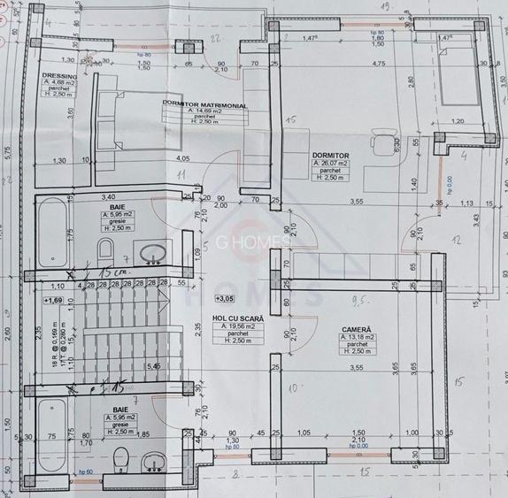
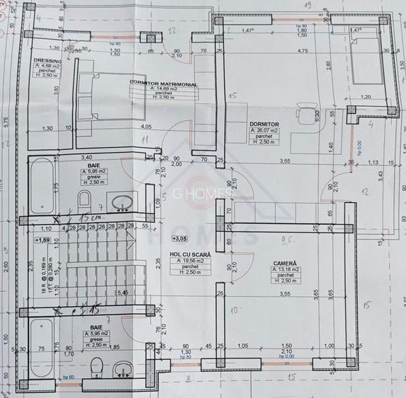
- Etaj: 3 camere cu 3 spatii depozitare, doua bai, hol, balcon
- Demisol: hol/ receptie, sala pentru recreere cu masa billiard, 2 X camera/ birou, spatiu tehnic.
Pentru corecta intelegere a configuratiei imobilului, va invitam sa vizulaizati planurile fiecarui nivel pe care le gasiti in cadrul pozelor atasate.
Cladirea este eficienta energetic fiind dotata cu panouri solare, pentru asigurarea confortului termic utilizandu-se centrala pe gaz si sistemul eficient de cillere. In plus, constructia este izolata cu termosistem.
Constructia este bine executata/ solida, construita cu materiale de calitate si a fost ridicata de catre un cunoscut antreprenor din domeniul constructiilor pentru propriul uz Pentru finisajele clasice au fost, de asemenea, selectate numai materiale de calitate superioara.
Raspundem cu placere intrebarilor dumneavoastra. Pentru informatii suplimentare si pentru a planifica o vizionare, va invitam sa ne contactati telephonic, fara ezitare!
Sediul central - Timișoara
Bulevardul Victor Babeș nr. 2, 300230, Timișoara, România
Tel: +40.374.40.44.98 / Fax: +40.256.401.179
Email: suport@imobiliare.ro
Luni - Vineri 08:00 - 20:00
Punct de lucru - București: Iride Business Park, Bld. Dimitrie
Pompeiu 9-9A, Clădirea B2B,
020335, Sector 2, București, România
CONTACT
Sediul central - Timișoara
Bulevardul Victor Babeș nr. 2, 300230, Timișoara, România
Tel: +40.374.40.44.98 / Fax: +40.256.401.179
Email: suport@imobiliare.ro
Luni - Vineri 08:00 - 20:00
Punct de lucru - București: Iride Business Park, Bld. Dimitrie
Pompeiu 9-9A, Clădirea B2B,
020335, Sector 2, București, România
Sună acum și cere detalii sau programează o vizionare.
Nu rata ocazia să afli mai multe!
Sună acum și cere detalii sau programează o vizionare.
Cere detalii prin email
*
*
*
*
Stații autobuz
Stații tramvai
Stații tren
Stații troleibuz
Școli
Gradinițe
Universități
Supermarket
Parcări
Parcuri
Terenuri sport
Piețe publice
Spital
Farmacie
Restaurant
Bar
Cafenea
Bancă
Statie Mures A32
aprox.
303 m
Statie Liviu Rebreanu A32
aprox.
532 m
Statie E. Zola A32, Tv7
aprox.
556 m
Statie Arta Textila E1, E5, E8, A33
aprox.
598 m
Statie Arta Textila E1, E5, E8, A33, M36
aprox.
620 m
Piata Veteranilor
aprox.
693 m
Statie Piata Veteranilor E1, E5, E8, A33
aprox.
695 m
Statie Piata Veteranilor E1, E5, E8, A33
aprox.
793 m
Piata Veteranilor
aprox.
802 m
Statie Herculane A32
aprox.
805 m
Statie Snagov A32
aprox.
812 m
Bujorilor
aprox.
929 m
Statie Bujorilor E8
aprox.
930 m
Statie Porumbesc A32
aprox.
950 m
Constantin Brancoveanu
aprox.
1027 m
Statie Ghe. Ranetti Tv9
aprox.
368 m
Statie Izlaz Tv7
aprox.
461 m
Constantin Brancoveanu
aprox.
482 m
Constantin Brancoveanu
aprox.
529 m
Statie Arta textila Tv9
aprox.
546 m
Statie Liviu Rebreanu Tv9
aprox.
559 m
Statie Chisodei Tv7
aprox.
568 m
Arta Textila
aprox.
571 m
Calea Sagului
aprox.
634 m
Statie Tramvai 9 - Arta Textila
aprox.
653 m
Statie Progresul Tv7
aprox.
791 m
Statie Piata Veteranilor Tv7
aprox.
795 m
Statie Mures Tv7
aprox.
957 m
Statie Lidia Tv7
aprox.
1032 m
Shopping City
aprox.
1049 m
Timisoara South Railway Station (en)
aprox.
1724 m
Gara Timisoara Sud
aprox.
1755 m
Statie Maresal C-tin Prezan T15, T19
aprox.
1809 m
SCOALA GIMNAZIALĂ NR.2
aprox.
170 m
Scoala Gimnaziala nr. 2
aprox.
170 m
Scoala cu clasele I-VIII nr. 13 Timisoara
aprox.
448 m
Scoala Gimnaziala nr. 13
aprox.
460 m
Scoala Generala Nr 15 cu Cl 1- 8 Str Izlaz nr 15
aprox.
623 m
Scoala Gimnaziala nr. 15
aprox.
631 m
Scoala Sfantul Antim Ivireanul
aprox.
756 m
Scoala Generala Nr. 27
aprox.
960 m
Școala generală nr. 14
aprox.
1164 m
Sediul ligii islamice si culturale din timisoara
aprox.
1230 m
Liceul Teologic Penticostal LOGOS Timisoara
aprox.
1234 m
Liceul Teologic Penticostal Logos
aprox.
1240 m
Colegiul Economic Francesco Saverio Nitti
aprox.
1352 m
COLEGIUL ECONOMIC "FRANCESCO SAVERIO NITTI"
aprox.
1389 m
Scoala Generala nr. 25
aprox.
1471 m
Gradinita Program Prelungit Nr. 23
aprox.
495 m
Gradinita nr. 23
aprox.
530 m
Gradinita Cordiana
aprox.
582 m
Gradinita Program Normal Nr. 12
aprox.
612 m
Kids Green Center[kindergarden] (en)
aprox.
627 m
Gradinita Waldorf
aprox.
662 m
Gradinita Program Normal Nr. 14
aprox.
688 m
Gradinita Montessori
aprox.
730 m
Kids Green Center
aprox.
738 m
Gradinita cu program prelungit nr. 3
aprox.
755 m
Gradinita Program Prelungit Nr. 3
aprox.
812 m
Gradinita Baby's Land
aprox.
887 m
Scoala Gimnaziala nr. 27
aprox.
963 m
Gradinita Barbie
aprox.
1012 m
Gradinita Program Normal Nr. 11
aprox.
1117 m
Institutul de Cercetari pentru Energii Regenerabile
aprox.
1576 m
ELIM Evanghelical Theological Seminary (en)
aprox.
1739 m
Univ. Politehnica - Fac. de Management in Productie si Transporturi
aprox.
1890 m
Facultatea de Management in Productie si Transporturi
aprox.
1895 m
Academia Romana - filiala Timisoara
aprox.
1938 m
Billa
aprox.
418 m
Profi Sagului
aprox.
560 m
Profi
aprox.
560 m
Profi City
aprox.
662 m
Kaufland
aprox.
1120 m
Carrefour Market
aprox.
1187 m
Centrul Comercial Dallas
aprox.
1265 m
Lidl
aprox.
1274 m
Lidl Budai Deleanu
aprox.
1298 m
Shopping City Timisoara
aprox.
1357 m
Carrefour
aprox.
1358 m
Profi
aprox.
1547 m
Lidl
aprox.
1627 m
Profi Piata Sinaia
aprox.
1820 m
Parcare
aprox.
361 m
Parcare
aprox.
408 m
Parcare
aprox.
426 m
Parcare
aprox.
429 m
Parcare
aprox.
547 m
Parcare
aprox.
552 m
Parcare
aprox.
875 m
Parcare
aprox.
918 m
Parcare
aprox.
918 m
Parcare
aprox.
972 m
Parcare
aprox.
1061 m
Parcare pentru clienti
aprox.
1088 m
Parcare pentru clienti cu plata
aprox.
1150 m
Parcare
aprox.
1161 m
Parcare
aprox.
1177 m
Parc
aprox.
116 m
Parc
aprox.
209 m
Parc
aprox.
212 m
Parc pentru copii
aprox.
576 m
Piata Veteranilor
aprox.
742 m
Parc
aprox.
792 m
Parcul de pe strada Arcidava
aprox.
813 m
Parcul Arcidava
aprox.
813 m
Parc
aprox.
819 m
Parc
aprox.
1011 m
Parc
aprox.
1058 m
Parcul Clabucet
aprox.
1076 m
Parcul Clabucet
aprox.
1076 m
Balta Mica
aprox.
1133 m
Parc Steaua
aprox.
1218 m
Teren sportiv
aprox.
147 m
Teren sportiv
aprox.
442 m
Teren sportiv
aprox.
472 m
Teren sportiv
aprox.
623 m
Teren sportiv
aprox.
773 m
Teren sportiv
aprox.
859 m
Teren sportiv
aprox.
993 m
Teren sportiv
aprox.
1063 m
Teren sportiv
aprox.
1070 m
Teren sportiv
aprox.
1479 m
Teren sportiv
aprox.
1483 m
Teren sportiv
aprox.
1540 m
Teren sportiv
aprox.
1555 m
Teren sportiv
aprox.
1634 m
Teren sportiv
aprox.
1659 m
Piata Aron Cotrus
aprox.
1407 m
Piata Sinaia
aprox.
1877 m
Dermatomed (en)
aprox.
379 m
BRAUN
aprox.
446 m
Centrul Medical Grigoras
aprox.
634 m
Centru Medical Grigoras
aprox.
640 m
Farmacia Siregon
aprox.
647 m
Neuromed
aprox.
1307 m
Spitalul de neurospihiatrie infantila
aprox.
1324 m
CLINICA DE ORTODONTIE DR. OGODESCU
aprox.
1340 m
Clinica de Psihiatrie
aprox.
1585 m
Policlinica Vacarescu
aprox.
1606 m
Neuromed
aprox.
1640 m
Maternitate Spital Odobescu
aprox.
1721 m
Odobescu Maternity (en)
aprox.
1732 m
Spitalul de Obstetrica si Ginecologie
aprox.
1766 m
Policlinica Nr. 3
aprox.
1901 m
Catena
aprox.
688 m
Farmacia Granathalma
aprox.
1114 m
Vlad
aprox.
1255 m
Farmacia Dona
aprox.
1465 m
Farmacia Dona
aprox.
1820 m
Mihai Viteazul
aprox.
1820 m
Farmacia Catena
aprox.
1850 m
Farmacia HelpNet
aprox.
1866 m
Petito (en)
aprox.
345 m
Zet
aprox.
608 m
Antalia
aprox.
609 m
Delpack
aprox.
640 m
La Pizzaccia
aprox.
873 m
Pizzeria Della Casa !
aprox.
985 m
Terasa Nora
aprox.
1118 m
Nora
aprox.
1125 m
Restaurant Noana
aprox.
1143 m
Restaurant Clasic
aprox.
1143 m
Restaurant Valahia
aprox.
1197 m
Al Caminetto
aprox.
1316 m
KFC
aprox.
1321 m
Pizza Hut
aprox.
1359 m
La Residenza
aprox.
1385 m
DUGA CLUB
aprox.
506 m
Amore
aprox.
1080 m
Zanoni
aprox.
1220 m
Scart Loc Lejer
aprox.
1706 m
Starbucks
aprox.
1292 m
COPA Caffe
aprox.
1922 m
Bancpost (en)
aprox.
610 m
Alpha Bank (en)
aprox.
690 m
Banca Transilvania
aprox.
796 m
BRD
aprox.
799 m
BCR (Banca Comercială Română)
aprox.
810 m
BRD
aprox.
1077 m
BRD
aprox.
1101 m
ING
aprox.
1136 m
Piraeus Bank
aprox.
1177 m
BCR
aprox.
1198 m
UniCredit Bank
aprox.
1201 m
UniCredit Bank
aprox.
1533 m
Banca Transilvania
aprox.
1597 m
Banca Romaneasca
aprox.
1782 m
Banca Transilvania
aprox.
1823 m
La capitolul mijloace de transport în comun, timișorenii din Calea Șagului au la dispoziție atât tramvaie (9, care merge pe Bulevardul Liviu Rebreanu, și 7, care circulă la limita cu Fratelia-Steaua), cât și autobuze (33, 33B, E7 "“ toate pe Bulevardul 16 Decembrie 1989). Pasionații de ciclism beneficiază, în plus, de avantajul accesului facil la mai multe piste special amenajate în acest sens: una pe Calea Șagului, una pe Strada Constantin Brâncoveanu, una pe Strada Ciprian Porumbescu (în Elisabetin-Odobescu), dar și una pe Bulevardul General Ion Dragalina (în Iosefin).
Fiind destul de populată, zona Calea Șagului este relativ bine reprezentată din punctul de vedere al oportunităților de educație "“ cu toate că locuitorii cartierului care au copii se pot vedea puși în situația de a se orienta pe facilitățile oferite de alte subdiviziuni ale orașului. În ceea ce privește ciclul de învățământ preșcolar, o soluție demnă de luat în calcul ar fi Grădinița "Fluturașul Bobiță" (amplasată pe Calea Mureș, nr. 60). La capitolul școli, de menționat sunt două instituții de stat, apărute în cartier încă dinainte de anii 1990: este vorba despre Școala Gimnazială Nr. 2 (situată pe Strada Mureș, nr. 6-8), care include și o grădiniță cu program prelungit, dar și despre Școala Gimnazială Nr. 13 (de pe Strada Gavril Musicescu, nr. 14). Mai jos poți vedea în detaliu ce unități de învățământ există în Calea Șagului:
Un atu important al cartierului este reprezentat, însă, de proximitatea zonei Dâmbovița, unde se găsește unul dintre cele câteva malluri ale orașului, anume Shopping City Timișoara (pe Calea Șagului, nr. 100); pe lângă numeroasele magazine din sfera de fashion, acesta include, printre altele, și un hipermarket din rețeaua Carrefour. Pentru nevoile de zi cu zi, timișorenii care locuiesc aici sunt deserviți de o serie de magazine de tip supermarket, printre care se numără și un Profi (amplasat pe Calea Șagului, nr. 23). Aceștia beneficiază, totodată, de avantajul de a avea la dispoziție un hipermarket din rețeaua Kaufland (situat în nordul cartierului, pe strada Damaschin Bojina, nr. 4).
Dat fiind numărul destul de ridicat al locuitorilor din acest cartier, închirierea unui loc de parcare de la autoritățile locale poate reprezenta o opțiune atractivă pentru posesorii de autovehicule; cei interesați pot afla mai multe despre această chestiune la sediul central al Primăriei (de pe Bulevardul Constantin Diaconovici Loga, nr. 1).
Deși zona Calea Șagului este, per ansamblu, una destul de bogată în spații verzi, cei care locuiesc aici nu au la dispoziție niciun parc de dimensiuni mai mari "“ parcurile Doina sau Arcidava, spre exemplu, ocupă suprafețe destul de reduse. Pentru amatorii de sport din Buziașului, cele mai facile modalități de a se menține activi ar fi joggingul, ciclismul, dar și, de ce nu, mersul pe jos. Cei care vor, totuși, mai mult decât atât se pot abona la o sală de fitness în cartier, iar din când în când pot vizita facilitățile oferite de un cartier apropiat (deși nu imediat învecinat), anume Complex-Stadion.
La capitolul servicii medicale, Calea Șagului stă destul de bine, locuitorii cartierului au, totuși, la dispoziție nu doar câteva cabinete particulare individuale, cât și centre medicale de dimensiuni mai mari. Printre acestea se numără Policlinica Grigoraș "“ acum parte din Rețeaua de Sănătate Regina Maria (Calea Șagului, nr. 20), cabinetul de oftalmologie Visual Contact (de pe Bulevardul Constantin Brâncoveanu, nr. 86), iar din cea de-a treia Clinica NovaLife (amplasată pe Strada Ulpia Traiana, nr. 27, aproape de "granița" cu Girocului și Elisabetin-Odobescu). Această din urmă instituție dispune de o gamă largă de specializări, de la medicină internă, la chirurgie și reabilitare medicală/fizioterapie. Un avantaj important pentru locuitorii zonei Calea Șagului constă în proximitatea Spitalului Clinic Județean de Urgență Timișoara, situat în învecinatul Girocului (pe Bulevardul Liviu Rebreanu, nr. 156). De menționat este, totodată, că în apropierea acestei unități medicale se află și Serviciul Județean de Ambulanță Timiș. Pe harta de mai jos găsești localizarea exactă a spitalelor și clinicilor din zonă:
Pe lângă fast food-urile de cartier, la capitolul restaurante, zona nu oferă o varietate prea mare. Unul dintre cele mai cunoscute restaurante din zonă este Valahia (pe strada Liviu Rebreanu, nr. 52-54), la care se mai adaugă oferta restaurantelor și fast food-urilor din cadrul mall-ului Shopping City.
Calea Șagului este bine reprezentat din punct de vedere al unităților bancare, având în vedere că centrul comercial Shopping City Mall (de pe Calea Șagului, nr. 100) se află în apropiere. Poți găsi aici un bancomat BRD, unul Alpha Bank și ING Bank. Vei găsi ATM-uri dacă te vei îndrepta spre supermarket-ul Profi City de pe Strada Mareșal Averescu, nr. 70B și alte două bancomate de BRD, respectiv Raiffeisen Bank amplasate de-a lungul străzii Ciprian Porumbescu.
Înainte să pleci...
Ești sigur că ai văzut și aceste proprietăți?
1.150.000 €
Timișoara, Ultracentral
1.350 mp utili
Casă/Vilă
1E
217.490 €
Județul Timiș, Moșnița Nouă
150 mp utili
Bloc de apartamente
2E
360.000 €
Timișoara, Simion Bărnuțiu
170 mp utili
Bloc de apartamente
72.490 €
Județul Timiș, Moșnița Nouă
50 mp utili
Bloc de apartamente
2E
630.000 €
Timișoara, Mehala
723 mp utili
2E
2005
155.000 €
Județul Timiș, Moșnița Nouă
79 mp utili
Bloc de apartamente
2E
Creează alertă
Salvează căutarea ca să primești pe email ultimele anunțuri publicate
Spații comerciale cu 4+ camere de vânzare în zona Șagului, Timișoara
Cere detalii prin email
*
*
*
*
Detaliile tale de contact vor fi partajate cu G Homes