Casa 3 camere | Zona Armeneasca – Mosilor | Curte comuna | Potential de extindere
O proprietate cu farmec interbelic, situata intr-una dintre cele mai cautate zone centrale ale Bucurestiului – Armeneasca – Mosilor, ideala pentru locuinta sau investitie.
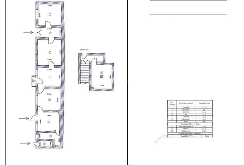
Detalii proprietate:
-Suprafata utila: 74.3 mp
-Suprafata totala: 89.85 mp
-Constructie din caramida (aprox. 1927)
-Regim de inaltime: Subsol + Parter
-Pivnita: 12.88 mp
-Curte comuna cu inca 2 vecini
Compartimentare si dotari:
-3 camere
-Bucatarie spatioasa
-Baie cu geam pentru aerisire
-Grup sanitar suplimentar (cu acces din curte)
-Centrala termica proprie
-Aer conditionat
-Contorizare separata (electricitate si gaze)
Avantaje:
-Zona protejata – arhitectura autentica si valoare stabila in timp
-Posibilitate de inaltare: Sp+P+M
-Ideala pentru rezidenta sau investitie (inchiriere)
-Acces facil catre Mosilor, Universitate, Unirii
Observatii:
-Casa este locuibila, cu potential de renovare si personalizare
-Curtea este comuna
Citește mai mult
Citește mai puțin
Aer condiționat
Centrală proprie
Bine întreținut (Bună)
Sediul central - Timișoara
Bulevardul Victor Babeș nr. 2, 300230, Timișoara, România
Tel: +40.374.40.44.98 / Fax: +40.256.401.179
Email: suport@imobiliare.ro
Luni - Vineri 08:00 - 20:00
Punct de lucru - București: Iride Business Park, Bld. Dimitrie
Pompeiu 9-9A, Clădirea B2B,
020335, Sector 2, București, România
CONTACT
Sediul central - Timișoara
Bulevardul Victor Babeș nr. 2, 300230, Timișoara, România
Tel: +40.374.40.44.98 / Fax: +40.256.401.179
Email: suport@imobiliare.ro
Luni - Vineri 08:00 - 20:00
Punct de lucru - București: Iride Business Park, Bld. Dimitrie
Pompeiu 9-9A, Clădirea B2B,
020335, Sector 2, București, România
Statia Piata Rosetti linii : 61,66,69,70,85,90,91,92,336,601.
aprox.
1011 m
Statia Nicolae Balcescu; Liniile:168, 300, 368, 226, 126
aprox.
1111 m
Statia Foisorul de Foc linii : 79,86
aprox.
661 m
Statia Calea Dorobantilor; Liniile:79, 86,
aprox.
1213 m
Statia Mihai Bravu; Liniile:69, 85,
aprox.
1340 m
Statia Piata Romana linii : 79,86
aprox.
1367 m
Statia Soseaua Mihai Bravu, linia 68,85
aprox.
1370 m
Statia Piata Iancului, linia 55
aprox.
1540 m
Statia Soseaua Pantelimon 85, 69
aprox.
1732 m
Statia Teiul Doamnei, linia 66
aprox.
1928 m
Metrorex. Stația Universitate (M2)(1987)
aprox.
1092 m
Universitate (M2)
aprox.
1133 m
Statia Metrou Piata Universitatii(M2)Metrorex
aprox.
1148 m
Statia Metrou Piata Universitatii(M2)Metrorex
aprox.
1175 m
Metrorex. Stația Obor (M1)(1989)(Fosta statie de tramvai subterana)
aprox.
1212 m
Statia Metrou Piata Obor(M1)Metrorex
aprox.
1221 m
Statia Metrou Piata Romana(M2)Metrorex
aprox.
1229 m
Metrorex. Stația Piața Romană (M2)(1988)
aprox.
1260 m
Piata Romana (M2)
aprox.
1260 m
Statia Metrou Piata Romana(M2)Metrorex
aprox.
1284 m
Metrorex. Stația Ștefan cel Mare (M1)(1989)
aprox.
1359 m
Statia Soseaua Mihai Bravu, linia 14
aprox.
1370 m
Metrorex. Stația Piața Unirii 2 (M2) (en)
aprox.
1674 m
Piata Unirii 2
aprox.
1767 m
Metrorex. Stația Piața Unirii 2 (M2)(1986)
aprox.
1776 m
Grădinița (en)
aprox.
191 m
Cursuri Paleologu
aprox.
214 m
Scoala nr. 23
aprox.
214 m
Școala Nr. 23 Sf. Silvestru (en)
aprox.
222 m
Colegiul National "Cantemir-Voda"
aprox.
357 m
Scoala Ajutatoare nr. 1
aprox.
401 m
Colegiul National Bilingv "George Cosbuc"
aprox.
503 m
Scoala de Arte si Meserii Nr. 3
aprox.
528 m
Scoala de muzica nr. 4
aprox.
559 m
ȘCOALA DE ARTE ȘI MESERII NR. 3
aprox.
563 m
GRADINITA DE COPII NR. 8 "LICURICI"
aprox.
587 m
Colegiul Economic Hermes
aprox.
612 m
Gradinita Magnolia
aprox.
622 m
Scoala Generala "Iovan Ducici", Nr 71
aprox.
622 m
Școala Centrală din Bucuresti
aprox.
629 m
Gradinita numarul 257
aprox.
326 m
Gradinita numarul 8
aprox.
342 m
Gradinita
aprox.
600 m
Gradinita numarul 133
aprox.
615 m
Gradinita Ioanid
aprox.
806 m
Gradinita nr.4 "Lizuca"
aprox.
808 m
Gradinita nr.203 (fosta Clementa)
aprox.
815 m
Gradinita Magica
aprox.
824 m
Ioanid
aprox.
825 m
Gradinita nr. 203 program prelungit
aprox.
827 m
Amalia's Kindergarten (en)
aprox.
1081 m
Gradinita nr. 138 cu program prelungit
aprox.
1128 m
Gradinita Waldorf
aprox.
1150 m
Gradinita nr. 85
aprox.
1274 m
Gradinita nr. 116
aprox.
1345 m
Universitatea din Bucuresti - Facultatea de Stiinte Politice
aprox.
676 m
Facultatea de Stiinte Politice
aprox.
686 m
Rectoratul UMF "Carol Davila"
aprox.
898 m
Facultatea de Farmacie
aprox.
947 m
Facultatea de Farmacie/Pharmacy Faculty
aprox.
954 m
University of Bucharest - Faculty of Foreign Languages and Literatures (en)
aprox.
987 m
Centrul de Limbi Straine Ariel
aprox.
995 m
CROS - Universitatea Alternativa
aprox.
1015 m
Facultatea de Instalatii (en)
aprox.
1088 m
Facultatea de Chimie
aprox.
1186 m
Facultatea de Limbi si Literaturi Straine
aprox.
1208 m
UAUIM -Universitatea de Arhitectura si Urbanism Ion Mincu
aprox.
1215 m
Facultatea de litere (en)
aprox.
1216 m
Palatul Fundației Universitare "Carol I"
aprox.
1257 m
ASE - Cibernetica
aprox.
1257 m
Mega Image Concept Store
aprox.
286 m
Mega Image
aprox.
478 m
Mega Image - Icoanei
aprox.
508 m
OK Non-stop Supermarket (en)
aprox.
533 m
OK Non-Stop
aprox.
533 m
Mega Image
aprox.
542 m
Mega Image Paleologu
aprox.
676 m
Mega Image Fainari
aprox.
917 m
Bacania Coco
aprox.
979 m
Mega Image Rosetti Non-Stop
aprox.
1024 m
Pravalia Maestrului
aprox.
1038 m
ilanplant
aprox.
1066 m
Mega Image
aprox.
1144 m
Mega Image Supermarket
aprox.
1153 m
Spectrum
aprox.
1164 m
"METROPLIS CENTER"
aprox.
1677 m
Parcare
aprox.
343 m
Parcare
aprox.
676 m
Parcare
aprox.
680 m
Parcare
aprox.
727 m
Parcare
aprox.
789 m
Parcare
aprox.
802 m
Parcare cu plata
aprox.
873 m
Parcare
aprox.
917 m
Parcare
aprox.
963 m
Parcare
aprox.
1008 m
Parcare
aprox.
1011 m
Parcare
aprox.
1047 m
Parcare
aprox.
1051 m
Parcare
aprox.
1063 m
Parcare
aprox.
1086 m
Parc
aprox.
245 m
Parc
aprox.
397 m
Parc
aprox.
415 m
Parc
aprox.
481 m
Parc
aprox.
484 m
Parcul Izvorul Rece
aprox.
552 m
Parcul Izvorul Rece
aprox.
552 m
60 Minutes
aprox.
597 m
Parc
aprox.
715 m
Parcul Popa Soare
aprox.
719 m
Parcul Izvorul Rece
aprox.
719 m
Gradina Icoanei
aprox.
741 m
Parcul "Grădina Icoanei"
aprox.
749 m
Parcul Ion Voicu
aprox.
750 m
Parcul "Ioanid"
aprox.
756 m
Piata Latina
aprox.
512 m
Piata Rosetti
aprox.
861 m
Piata Universitatii
aprox.
1090 m
Piata Bucur Obor
aprox.
1274 m
Piata Revolutiei
aprox.
1277 m
Piața Romană
aprox.
1392 m
Piata Roma
aprox.
1421 m
Piața Drapelului (Tricolorului)
aprox.
1461 m
Piata Timpului
aprox.
1480 m
Piața Sfântul Anton
aprox.
1616 m
Piata Iancului
aprox.
1626 m
Piata Natiunilor Unite
aprox.
1934 m
Teren sportiv
aprox.
1327 m
Respawn B
aprox.
1381 m
Teren sportiv
aprox.
1391 m
Etaj 1 - Hala CQB
aprox.
1462 m
Parter - Hala mare
aprox.
1467 m
Gradinita
aprox.
1487 m
Respawn A
aprox.
1509 m
Teren sportiv
aprox.
1511 m
Stadionul Dinamo
aprox.
1635 m
Teren sportiv
aprox.
1775 m
Teren sportiv
aprox.
1801 m
Teren sportiv
aprox.
1815 m
Teren sportiv
aprox.
1869 m
Teren sportiv
aprox.
1927 m
Clinica de oftalmologie Ama Optimex
aprox.
179 m
Optim Sano
aprox.
194 m
Centrul medical Sanatatea TA
aprox.
224 m
Cabinet Gineco
aprox.
301 m
Institutul de Diabet NCPaulescu (en)
aprox.
356 m
SERVICIUL DE AMBULANTA BUCURESTI-ILFOV
aprox.
410 m
INGG Ana Aslan Spatarului nr. 15 (en)
aprox.
413 m
Spitalul Cantacuzino
aprox.
421 m
Dacia Medical Center
aprox.
551 m
Clinica de 10
aprox.
576 m
ProctoMed
aprox.
580 m
Clinica Reumatologie "Dr. Ion Stoia"
aprox.
623 m
Clinica Audionova
aprox.
691 m
Spitalul de ortopedie "Foisorul de foc"
aprox.
693 m
Cabinet stomatologic (en)
aprox.
738 m
Colvimed
aprox.
260 m
Farmacia Carmen
aprox.
376 m
Sensiblu
aprox.
384 m
Farmacia Ana Maria
aprox.
430 m
Farmacia Artafarm
aprox.
433 m
Farmadex Non-Stop
aprox.
461 m
Farmacia Belladonna 38
aprox.
505 m
Help Net Farma
aprox.
549 m
Sensiblu
aprox.
554 m
Catena Farmacie
aprox.
609 m
Farmacia Alissa Retail
aprox.
689 m
Farmacia Artafarm
aprox.
721 m
Farmacia Tarsis Impex
aprox.
752 m
Farmacia Mea
aprox.
809 m
Farmacia Apifarm
aprox.
824 m
Nicoresti
aprox.
100 m
Nicorești (en)
aprox.
105 m
Ristorante Interbellico
aprox.
147 m
Luna
aprox.
178 m
Il Destino
aprox.
201 m
Orasul Interzis
aprox.
233 m
Four seasons
aprox.
268 m
Rotiseria Dacia 131
aprox.
315 m
Torega
aprox.
316 m
Espace Minoux
aprox.
325 m
Newton Restaurant (en)
aprox.
339 m
Unico Vero Pizza
aprox.
340 m
Restaurantul Burebista
aprox.
356 m
Zepelin
aprox.
361 m
Restaurant Burebista Traditional
aprox.
364 m
MIM Bistro
aprox.
247 m
Trei Betivi
aprox.
289 m
Geo Bar
aprox.
514 m
E... Varza
aprox.
660 m
Antic Bar
aprox.
728 m
Voltage Bar
aprox.
733 m
Dianei Patru
aprox.
770 m
Que Pasa
aprox.
787 m
Alan Dala
aprox.
805 m
Macaz Bar Teatru Coop
aprox.
917 m
RSS Pub
aprox.
918 m
Lokal
aprox.
935 m
Piua Book Bar
aprox.
971 m
Epic
aprox.
999 m
Underworld
aprox.
1008 m
Smart's Pub & Bistro
aprox.
272 m
Bluzz
aprox.
476 m
Terasa Rustica Foisor
aprox.
710 m
Waldo's
aprox.
718 m
Have a Cigar
aprox.
734 m
Le Boutique Food Concept Store
aprox.
756 m
Club Surubelnita
aprox.
940 m
OLD NICK PUB
aprox.
1015 m
La Scena
aprox.
1069 m
Panik & Pub
aprox.
1083 m
Open Pub
aprox.
1161 m
Clock`s
aprox.
1235 m
Coloseum
aprox.
1277 m
Manasia Hub
aprox.
1290 m
Edgar`s Pub
aprox.
1318 m
Lente Arcului
aprox.
545 m
Carla Caffe
aprox.
556 m
Vesuvio Cafe
aprox.
680 m
Newton Caffe
aprox.
683 m
Hobby Caffe & Shop
aprox.
686 m
Cafe Lautrec
aprox.
728 m
Hobby Cafe
aprox.
778 m
T-zero
aprox.
778 m
T-zone
aprox.
778 m
Lente Praporgescu
aprox.
781 m
Shiva
aprox.
833 m
Hathor Cafe
aprox.
863 m
OstrawVegan
aprox.
911 m
The Living Room
aprox.
929 m
Smart Change
aprox.
937 m
BRD Vasile Lascar
aprox.
331 m
Libra Bank - Sediul Central
aprox.
357 m
Libra Bank Sediul Central
aprox.
368 m
Piraeus Bank
aprox.
396 m
Banca Transilvania - Ag. Mosilor
aprox.
416 m
BRD Corbeni
aprox.
436 m
BCR
aprox.
460 m
Leumi Bank
aprox.
460 m
Emporki Bank
aprox.
461 m
Alpha Bank
aprox.
486 m
ING Mosilor
aprox.
489 m
Raiffeisen Bank - Agentia Mosilor
aprox.
512 m
Unicredit Tiriac bank
aprox.
584 m
UniCredit Bank - Ag. Traian
aprox.
598 m
Raiffaisen bank
aprox.
600 m
Zona Ștefan cel Mare - Dacia - Eminescu - Armenească este destul de bine conectată cu alte cartiere din București prin intermediul mijloacelor de transport în comun. Printre acestea amintim autobuzul 605 pe care îl poți lua pentru a ajunge la mall-ul Băneasa Shopping City, tramvaiul 16 care te poate ajuta să ajungi la Piața Sf. Vineri și troleibuzul 86 care oferă o legătură directă cu Gara de Nord. Mai multe stații de metrou sunt și ele disponibile în apropiere. Este vorba despre Ștefan cel Mare și Obor, aflate pe magistrala 1 Dristor - Pantelimon, și despre Piața Romană și Universitate situate pe traseul magistralei 2 Berceni-Pipera. Consultă harta pentru a afla poziționarea exactă a stațiilor mijloacelor de transport în comun.
În zona Ștefan cel Mare - Dacia - Eminescu - Armenească vei găsi mai multe unități de învățământ, de stat și private. Amintim astfel Colegiul Național Școala Centrală de lângă Parcul Grădina Icoanei, Colegiul Național "Spiru Haret" de pe Strada Italiană, Colegiul Național "Cantemir Vodă" și Liceul Economic "Virgil Madgearu", ambele situate pe Bulevardul Dacia. Școala Sanitară Postliceală "Carol Davila" se află și ea în această zonă, iar Academia de Studii Economice din București poate fi găsită în apropiere, la Piața Romană. Consultă harta pentru a vedea care vor fi cele mai apropiate grădinițe, școli și licee de viitoarea ta locuință.
În această zonă vei găsi, în principal, magazine mici și câteva supermarketuri. La intersecția dintre Bulevardul Dacia și Strada Vasile Lascăr vei avea la dispoziție Piața Gemeni și un concept store Mega Image. Cel mai apropiat mall este situat în zona Obor. Este vorba despre Veranda Mall, unul dintre cele mai noi astfel de centre comerciale din București. Tot aici găsești magazinul Bucur Obor și o piață. Cu mașina poți ajunge destul de rapid și la mall-ul Promenada sau la complexul comercial cu magazin Kaufland și Carrefour Market de pe Strada Barbu Văcărescu. Consultă harta și află ce alte opțiuni mai ai aproape de viitoarea ta casă, dar și în împrejurimi.
Îți recomandăm să verifici dacă există posibilitatea închirierii unui loc de parcare în apropierea locuinței de care ești interesat. Poți face acest lucru apelând la Serviciul Parcări din cadrul ADP Sector 2. Atunci îți aducem în atenție faptul că Bulevardul Dacia, Strada Mihai Eminescu și Strada Polonă sunt unele dintre cele mai circulate din această zonă. Trafic intens vei întâlni, totodată, la intersecția dintre Calea Dorobanți, Bulevardul Dacia și Strada Mihai Eminescu. Aglomerație vei găsi și pe Bulevardul Ștefan cel Mare, mai ales la orele de vârf și în zilele în care se organizează evenimente sportive în cadrul stadionului Dinamo. Consultă harta și vezi unde se găsesc principalele parcări din această zonă.
În zona Ștefan cel Mare - Dacia - Eminescu - Armenească se organizează periodic diferite evenimente, de la ateliere, la festivaluri și demonstrații de artă stradală. Dacă te vei muta în această parte a orașului, vei avea la doi pași de casă mai multe ceainării, restaurante, spații unde se organizează jocuri de tip escape room și trei teatre - Țăndărică, Metropolis și Bulandra. Pentru evenimente culturale și seri de film vei putea merge pe Bulevardul Dacia, la Institutul Francez din București. Ajungi repede și în centru, unde poți fi spectatorul unei piese puse în scenă de actorii Teatrului Național București. Parcurile Grădina Icoanei și Ioanid, deși sunt destul de restrânse ca suprafață, sunt unele dintre cele mai frumoase din această parte a orașului. Totodată, în nordul acestei zone, în imediata apropiere a Șoselei Ștefan cel Mare, vei găsi Circul Metropolitan București și parcul acestuia, iar în vecinătatea lor Stadionul Dinamo și complexul său sportiv. Nu uita, totodată, că din această zonă vei ajunge destul de rapid în Centrul Vechi, unde pe lângă terase și restaurante găsești și câteva obiective turistice care merită vizitate măcar o dată. Află ce alte puncte de interes găsești în zona Ștefan cel Mare - Dacia - Eminescu - Armenească și din vecinătatea acesteia. Consultă harta.
Dacă te vei muta în această zonă, vei avea la dispoziție mai multe spitale și clinici private. Printre acestea se numără Spitalul Clinic Dr. Ion Cantacuzino din zona Pieței Gemeni și Spitalul Ion Stroia . Alte unități sanitare din vecinătate sunt Spitalul Clinic Colentina, Spitalul Sf. Ștefan, Spitalul Clinic de Urgență București (cunoscut și ca Floreasca) și Spitalul Euroclinic din rețeaua privată de sănătate Regina Maria. Toate acestea sunt concentrate în nordul zonei Ștefan cel Mare - Dacia - Eminescu - Armenească, în vecinătatea Stadionului Dinamo și a Parcului Circului. Vezi pe hartă localizarea exactă a unităților medicale de mai sus.
Presărate pe străzile din această zonă găsești mai multe terase și restaurante mici. Câteva dintre cele mai cochete se află în vechiul cartier Armenesc. De aici ajungi extrem de repede și în Centrul Vechi al orașului, pentru mai multă diversitate. Fiind atât de aproape de centrul orașului, vei avea la dispoziție extrem de multe opțiuni. Restaurantele și cafenelele din Dorobanți sau de pe Calea Floreasca pot fi cu siguranță pe gustul tău. Dacă vrei să faci și o plimbare, să admiri arhitectura frumoasă a vechilor clădiri din București și să te oprești la o cafea sau la o prăjitură, atunci Calea Victoriei poate fi ideală. Pentru o mică gustare sau un meniu fast food ai mai multe variante în zona Obor, iar dacă te grăbești atunci poți încerca drive through-ul McDonald"™s de pe Strada Barbu Văcărescu. Aruncă o privire pe hartă și vezi ce alte restaurante, terase sau cafenele ai în zonă.
Găsești mai multe sucursale bancare și ATM-uri în special pe Șoseaua Ștefan cel Mare. Aruncă o privire pe hartă și vezi ce alte opțiuni găsești în apropierea viitoarei tale locuințe.
Înainte să pleci...
Ești sigur că ai văzut și aceste proprietăți?
219.000 €
București, Armeneasca
2 camere
83,56 mp
40 mp teren
250.000 €
București, Foișorul de Foc
4 camere
150 mp
187 mp teren
249.000 €
București, Colentina
6 camere
400 mp
300 mp teren
Creează alertă
Salvează căutarea ca să primești pe email ultimele anunțuri publicate
Case și vile cu 3 camere de vânzare în zona Armeneasca, Sector 2
Cere detalii prin email
*
*
*
*
Detaliile tale de contact vor fi partajate cu Activ Imob - Casa Te Bucuri