0 comision. Nu se adauga TVA.
Va oferim spre achizitie fara comision o casa amenajata pe parter in Balotesti, in complexul rezidential Bavaria. Casa are o suprafata construita de 136 mp (100mp utili) plus terasa de 13mp si este localizata pe un teren de 380mp.
Casa se vinde complet finisata, iar cumparatorul isi poate alege finisajele.
Termenul de finalizare al constructiei cu toate documentele pentru vanzare este estimat pentru Iunie-Iulie.
In acest moment s-a finalizat izolatia exterioara, si tencuiala interioara.
Asa cum v-am obisnuit:
- toate ofertele Monga Imobiliare sunt fara comision din partea cumparatorului
- pentru ca iubim transparenta, toate preturile afisate de Monga Imobiliare includ TVA (daca se aplica). Pretul afisat de noi este intotdeauna pretul final pe care il vei achita.
Acceseaza Monga Imobiliare (Monga RO) pentru mai mai multe poze si pentru intreg portofoliul nostru de case si apartamente din Otopeni, Tunari, Balotesti, Corbeanca, Pipera si chiar nordul Bucurestiului.
Punctul forte al acestei case il reprezinta localizarea intr-un cartier modern cu acces usor catre Balotesti, Pipera-Tunari, DN1, A3 si A0. Casa este construita cu materiale de cea mai buna calitate; toate fazele lucrarii au fost documentate si pot fi verificate, incat sa aveti garantia ca veti cumpara o casa de calitate.
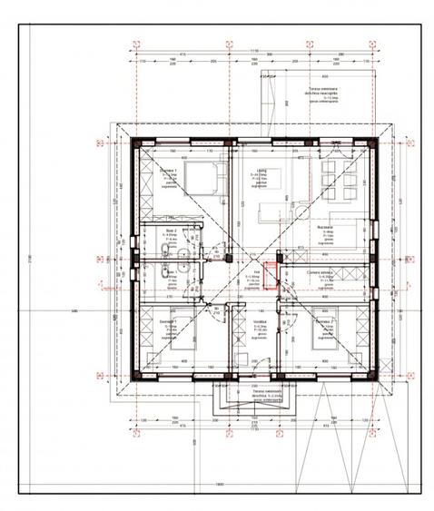
Despre spatiu:
Accesul se face intr-un vestibul cu spatiu pentru haine ce comunica cu un dormitor si mai departe cu al doilea hol. De aici se poate accesa o camera tehnica, dormitorul matrimonial cu baie proprie, inca un dormitor si o baie. Tot de aici se trece catre living-ul spatios cu bucatarie deschisa (30mp).
Casa este localizata intr-o zona foarte linistita, intr-o comunitate de case (Bavaria Residential Park).
Detalii proprietate:
• Case individuala
• Toate utilitatile
• Centrala proprie cu incalzire in pardosela.
• Construcție solidă din beton armat și cărămidă
• Placa de beton peste etaj/ poate fi mansardata
• Izolație exterioară de 15 cm – performanță termică superioară
• Tâmplărie Salamander tripan
• Camere luminoase si spatioase
• Cumparatorul isi poate alege finisajele
Despre locatie:
Acces rapid catre DN1, A3, A0, DNCB, aeroportul Otopeni, DN1 Value Center, Baneasa Shopping City, nordul Bucurestiului.
In apropiere, acces la liniile de autobuz 448 si 449 cu acces catre Piata Presei si Pipera.
In apropiere: Grădiniță, Scoala, Mega Image, Magazin Profi, magazin La Doi Pasi, Dn 1 Value Center, Kaufland, Hornbach
Apeleaza cu incredere la Monga Imobiliare. Suntem alaturi de tine pana la finalizarea tranzactiei si te ajutam sa treci cu incredere si in cunostinta de cauza prin toti pasii necesari. Te putem ajuta in pregatirea documentelor, selectia notarului, obtinerea finantarii, si altele. Te asteptam sa ne contactezi.
Citește mai mult
Citește mai puțin
Centrală proprie
Încălzire prin pardoseală
Bine întreținut (Bună)
Sediul central - Timișoara
Bulevardul Victor Babeș nr. 2, 300230, Timișoara, România
Tel: +40.374.40.44.98 / Fax: +40.256.401.179
Email: suport@imobiliare.ro
Luni - Vineri 08:00 - 20:00
Punct de lucru - București: Iride Business Park, Bld. Dimitrie
Pompeiu 9-9A, Clădirea B2B,
020335, Sector 2, București, România
CONTACT
Sediul central - Timișoara
Bulevardul Victor Babeș nr. 2, 300230, Timișoara, România
Tel: +40.374.40.44.98 / Fax: +40.256.401.179
Email: suport@imobiliare.ro
Luni - Vineri 08:00 - 20:00
Punct de lucru - București: Iride Business Park, Bld. Dimitrie
Pompeiu 9-9A, Clădirea B2B,
020335, Sector 2, București, România
Sună acum și cere detalii sau programează o vizionare.
Cere detalii prin email
*
*
*
*
Înainte să pleci...
Ești sigur că ai văzut și aceste proprietăți?
180.000 €
Județul Ilfov, Balotești
5 camere
150 mp
480 mp teren
220.000 €
Județul Ilfov, Balotești
4 camere
120 mp
430 mp teren
193.000 €
Județul Ilfov, Balotești
3 camere
105 mp
396 mp teren
189.000 €
Județul Ilfov, Balotești
4 camere
91 mp
390 mp teren
195.000 €
Județul Ilfov, Balotești
4 camere
161,06 mp
430 mp teren
160.000 € + TVA
Județul Ilfov, Balotești
4 camere
115 mp
510 mp teren
Creează alertă
Salvează căutarea ca să primești pe email ultimele anunțuri publicate
Case individuale cu 4+ camere de vânzare în Balotești, Județul Ilfov
Cere detalii prin email
*
*
*
*
Detaliile tale de contact vor fi partajate cu Monga
Preț total1.018.329 RON (199.903 €)
Costuri cu achiziția9.698 RON
Preț de achiziție1.008.631 RON
Costuri cu achiziția9.698 RON
Comision agenție Întreabă agenţia
Onorariu notarial8.185 RON
Taxă înscriere OCPI1.513 RON
Preț de achiziție1.008.631 RON
Preț locuință1.008.631 RON
TVA 0%Inclus în prețul cerut
Cost total165.737 RON (32.535 €)
Avans (15%)151.295 RON
Cost achitat în prima lună2.791 RON
Costuri cu achiziția11.651 RON
Cost achitat în prima lună2.791 RON
Comision analiză dosar
400 RON - 900 RON
Taxă evaluare imobil(până la)
900 RON
Rata lunară (variabilă)4.493 RON
Asigurare anuală imobil1.009 RON
Arhivă electronică102 RON
Poliță PAD130 RON
Asigurare de viață/lună Costul este variabil. În funcție de banca aleasă, procentul variază între 0.0259% și 0.035% din soldul creditului.
Costuri cu achiziția11.651 RON
Comision agenție Întreabă agenţia
Onorariu notarial8.185 RON
Taxă întabulare OCPI1.513 RON
Autentificare contract credit1.953 RON
Preț de achiziție1.008.631 RON
Preț locuință1.008.631 RON
TVA 0%Inclus în prețul cerut
Preț de achiziție1.008.631 RON
Preț locuință1.008.631 RON
TVA 0%
Inclus în prețul cerut
Avans minim402.434 RON
Credit pe 30 de ani606.198 RON
Cost achitat în prima lună
Taxa evaluare imobil(până la)
900 RON
Rata lunară (variabilă)4.259 RON
Depozit colateral12.777 RON
Comision de garantare FNGCIMM84 RON
Asigurare anuală imobil1.009 RON
Poliță PAD130 RON
Tarif arhivă electronică102 RON
Costuri adiționale1.149 RON + taxe notariale
Asigurare viață și complexă (opțională)Costul este variabil. În funcție de banca aleasă, procentul variază între 0.0259% și 0.035% din soldul creditului
Onorariu notarialconform tarif notarial
Taxă întabulare OCPI1.149 RON
i
Toate valorile de mai sus sunt estimative și nu reprezintă în mod obligatoriu costurile exacte pe care le veți primi de la companiile/instituțiile prin care veți încheia tranzacția.