Vila individuala in Cartier Balotesti

180.000 €

Balotești, Județul Ilfov

Nr. cam.:
5
Sup. utilă:
150 mp
Sup. teren:
480 mp
Tip prop.:
Individuală
  • • Locație aproximativă

Descriere casă

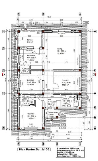
Va oferim spre vanzare o vila individuala P+M intr-un cartier situat pe Str. Ion Lahovari Nr. 89 din Balotesti, cartier compus din 32 de locuinte individuale cu un drum de servitute asfaltat si foarte generos, localizat la cativa km de DN 1 si Parcul Edenland, la cateva sute de metri de Lacul Balotesti si Complexul Laguna Verde. Baile sunt complet amenajate si utilate, de asemenea si bucataria este mobilata si utilata. Mansarda este complet izolata si amenajata pentru locuit, cu baie suplimentara. Pe fiecare parte a acesteia sunt spatii foarte generoase de depozitare. Incalzirea este prin pardoseala si se face cu centrala termica cu gaz.. In fata vilei sunt disponibile 2 locuri de parcare de asemenea in proprietate. Toate locuintele au acces individual la infrastructura completa a localitatii: strada asfaltata, iluminat public, apa, canalizare, gaze, energie electrica, TV si internet
Citește mai mult Citește mai puțin
Nemobilat Grădină Curte Centrală proprie Încălzire prin pardoseală 2 Parcări

Detalii casă

ID anunț: XEJS11004 Copiat! 58922874 Copiat!
Actualizat în: 23 Decembrie 2025
Suprafață construită: 120 mp
Suprafață desfășurată: 220 mp
Nr. bucătării: 1
Nr. băi: 3
Nr. terase: 1
Suprafață terase: 14 mp
Front stradal: 18.5 m
Învelitoare acoperiș: Tabla
An construcție: 2023 (Finalizată)
Structură rezistență: Cărămidă
Regim înălțime: P+M

Utilități

Pereți
Faianță Vopsea lavabilă
Podele
Gresie Parchet
Ușă intrare
Metal
Uși interior
Celulare
Ferestre cu geam termopan
Aluminiu
Contorizare
Apometre Contor gaz
Bucătărie
Mobilată Utilată
Electrocasnice
Aragaz Hotă
Diverse
Scară interioară
Alte spații utile
WC Serviciu
Facilități imobil
Acoperiș
Utilități
Curent Apă Canalizare CATV Gaze Telefon
Internet
Cablu Wireless
Amenajare străzi
Iluminat stradal Mijloace de transport în comun Asfaltate
Comision
standard

Disponibilitate proprietate:

Imediat

Puncte de interes

Școală
school
Gradinita cu program prelungit
Școli aprox. 1446 m
school
scoala
Școli aprox. 1765 m
Recreere
supermarket
Geo Supermarket
Supermarket aprox. 1916 m

Detalii despre preț și costuri

Costuri cu achiziția

Fără credit
9.084 RON
Credit ipotecar
10.961 RON
Noua casă
1.058 RON+ taxe notariale

i

Costuri adiționale mai puțin știute la achiziție: taxe notariale, comisioane etc.

Proprietăți recomandate

Detalii de contact

BRICOSTONE DESIGN SRL

Lucian Pinta Broker Owner/ Real Estate Agent

BRICOSTONE DESIGN SRL

Abonează-te la newsletter să fii primul care primește cele mai noi recomandări de proprietăți și sfaturi de la experți.

CONTACT

Creează alertă

Salvează căutarea ca să primești pe email ultimele anunțuri publicate

Case individuale cu 4+ camere de vânzare în Balotești, Județul Ilfov