Duplex 5-6 camere 170mp | 0 comision | Balotesti| mobilat utilat | 200mp teren

179.000 €

Balotești, Județul Ilfov

Nr. cam.:
5
Sup. utilă:
170 mp
Sup. teren:
200 mp
Tip prop.:
Casă individuală
  • • Comision 0%
  • • Locație exactă

Descriere casă

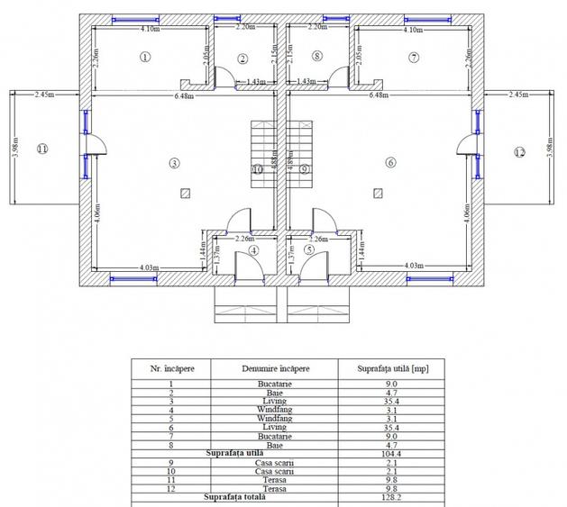
0 Comision. Nu se adauga TVA. Pretul mai este negociabil. Va oferim o casa tip duplex, cu spatii generoase, cu living, 3 dormitoare si o mansarda finisata ce permite amenajarea a 1 sau 2 camere. 170mp din care 60mp sunt la mansarda. Ambele case din duplex sunt oferite la vanzare. Casa este localizata in Balotesti pe strada Tineretului, o zona mixta, cu case mai vechim, dar cu acces rapid catre Mega Imagei si strada Ion Lahovari (200m). Se preda complet finisata, cu baile utilata si curte amenajata. Asa cum v-am obisnuit: - toate ofertele Monga Imobiliare sunt fara comision din partea cumparatorului - pentru ca iubim transparenta, toate preturile afisate de Monga Imobiliare includ TVA (daca se aplica). Pretul afisat de noi este intotdeauna pretul final pe care il vei achita. Acceseaza Monga Imobiliare (Monga RO) pentru mai mai multe poze si pentru intreg portofoliul nostru de case si apartamente din Otopeni, Tunari, Balotesti, Corbeanca, Pipera si chiar nordul Bucurestiului. Punctele forte al acestei case sunt spatiile interioare foarte generoase fiind ideala chiar si pentru o familie numeroasa. Despre spatiu: La parter, accesul se face intr-un vestibul cu spatiu pentru haine, ce comunica mai departe cu zona de living-dining cu bucatarie deschisa. De aici se poate accesa o baie, scarile catre etaj si terasa/ curtea. La etaj avem 3 dormitoare si o baie. Unul din dormitoare are de asemenea acces catre terasa. Mansarda este spatioasa (60mp), este amenajata open space cu un grup sanitar. Permite multiple variante de organizare: extindere grup sanitar la baie completa, dormitor matrimonial cu dressing, doua camere, spatiu de lucru sau de joaca. Utilitati - casa este conectata la toate utilitatile - centrala termica cu incalzire prin calorifere Despre locatie: - strada asfaltata - foarte aproape de Mega Image si strada Ion Lahovari - zona mixta cu case mai vechi - acces usor catre DN1 si autostrada A3 Va asteptam la vizionare pentru a descoperi toate aceste detalii si multe altele ale acestei proprietati. Apeleaza cu incredere la Monga Imobiliare. Suntem alaturi de tine pana la finalizarea tranzactiei si te ajutam sa treci cu incredere si in cunostinta de cauza prin toti pasii necesari. Te putem ajuta in pregatirea documentelor, selectia notarului, obtinerea finantarii, si altele. Te asteptam sa ne contactezi.
Citește mai mult Citește mai puțin
Nemobilat Calorifere Centrală proprie 2 Parcări Bine întreținut (Bună)

Detalii casă

ID anunț: XFHP110DM Copiat! 275480077 Copiat!
Actualizat în: 26 Aprilie 2026
Nr. bucătării: 1
Nr. băi: 3
Nr. terase: 1
An construcție: 2025 (Finalizată)
Regim înălțime: P+2E

Utilități

Izolații termice
Exterior Interior
Utilități
Curent Apă Canalizare Gaze Curent trifazic
Amenajare străzi
Asfaltate
Comision
0%

Puncte de interes

Școală
school
Gradinita cu program prelungit
Școli aprox. 1092 m

Detalii despre preț și costuri

Costuri cu achiziția

Fără credit
Credit ipotecar
Noua casă

i

Costuri adiționale mai puțin știute la achiziție: taxe notariale, comisioane etc.

Insight premium disponibil după login

Proprietăți similare

Casă individuală cu 6 camere în Balotești
185.000 €
Județul Ilfov, Balotești
6 camere
170 mp
200 mp teren
Casă individuală cu 5 camere în Balotești
180.000 €
Județul Ilfov, Balotești
5 camere
150 mp
480 mp teren
Casă individuală cu 4 camere în Balotești
190.000 €
Județul Ilfov, Balotești
4 camere
175 mp
364 mp teren

Detalii de contact

MONGA

Razvan Ceapa Managing Partner

5.00(3 review-uri)

MONGA
PRO

Abonează-te la newsletter să fii primul care primește cele mai noi recomandări de proprietăți și sfaturi de la experți.

CONTACT

Creează alertă

Salvează căutarea ca să primești pe email ultimele anunțuri publicate

Case individuale cu 4+ camere de vânzare în Balotești, Județul Ilfov