Comuna Berceni | Vila P+1 | Nefinalizata | Teren 417 mp | Deschidere 18 ml

120.000 €

Berceni, Județul Ilfov

Nr. cam.:
5
Sup. utilă:
180 mp
Sup. teren:
417 mp
Tip prop.:
Individuală
  • • Locație aproximativă

Descriere casă

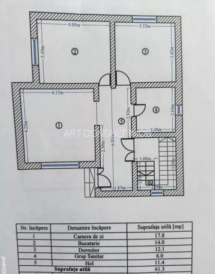
ID Anunt:P239837 ART CONSULT IMOB va propune spre vanzare o VILA cu o constructie de calitate superioara, in com. Berceni. Suprafata utila: 180 mp Teren: 417 mp (deschidere 18 m) Compartimentare: 5 camere spatioase 2 bai 1 dressing generos 2 balcoane cu vedere libera Utilitati & facilitati: Curent trifazic (racord subteran) Gaze la poarta Acces direct din strada asfaltata, iluminat public Put forat 20 m (a doua panza freatica apa de calitate) Fosa septica dubla Parcare pentru 2 masini in curte Loc pentru piscina si zona de relaxare Constructie de calitate superioara: Caramida Porotherm 25 cm Placa etaj armata grosime 35 cm Fundatie adanca cu talpa 80 cm Elemente structurale solide, concepute anti-seism Hidroizolatie completa + izolatie extrudat (fundatie, sapa si tavane) Stadiu constructie: Parter finisat, locuibil imediat Etaj la rosu (posibilitate personalizare dupa gustul viitorului proprietar) Pod mansardabil (inca 80 100 mp utili) Comisionul perceput de agentie in momentul vanzarii este de 3%! Pentru mai multe detalii va stam la dispozitie! Agent: Claudiu
Citește mai mult Citește mai puțin
Nemobilat Grădină Curte 2 Parcări

Detalii casă

ID anunț: XEKV1100I Copiat! 274925115 Copiat!
Actualizat în: 12 Februarie 2026
Suprafață construită: 190 mp
Nr. bucătării: 1
Nr. băi: 2
Nr. balcoane: 2
Front stradal: 1800 m
An construcție: 2024 (La gri)
Structură rezistență: Cărămidă
Regim înălțime: P+1E

Utilități

Pereți
Vopsea lavabilă Var Faianță
Podele
Parchet Gresie
Ușă intrare
Metal
Uși interior
PVC
Izolații termice
Exterior Interior
Ferestre cu geam termopan
PVC
Utilități
Curent Apă Fosa septică
Alte spații utile
Spațiu depozitare Dressing
Amenajare străzi
Asfaltate Pietruite
Comision
3%

Disponibilitate proprietate:

imediat

Puncte de interes

Școală
school
Scoala Berceni
Școli aprox. 1566 m
Recreere
restaurant
Salon Evenimente Casa Alba
Restaurant aprox. 1754 m
sports-ground
Teren sportiv
Terenuri sport aprox. 1835 m

Detalii despre preț și costuri

Costuri cu achiziția

Fără credit
25.360 RON
Credit ipotecar
26.982 RON
Noua casă
751 RON+ taxe notariale

i

Costuri adiționale mai puțin știute la achiziție: taxe notariale, comisioane etc.

Proprietăți recomandate

Detalii de contact

ART CONSULT IMOB

Claudiu Bartolomei Consultant Imobiliar

ART CONSULT IMOB
PRO

Abonează-te la newsletter să fii primul care primește cele mai noi recomandări de proprietăți și sfaturi de la experți.

CONTACT

Creează alertă

Salvează căutarea ca să primești pe email ultimele anunțuri publicate

Case individuale cu 4+ camere de vânzare în Berceni, Județul Ilfov