CASA INDIVIDUALA 4 CAMERE DE VANZARE | CAMPENESTI LANGA LAC | 450 MP GRADINA

159.000 €

Câmpenești, Județul Cluj

Nr. cam.:
4
Sup. utilă:
119 mp
Sup. teren:
450 mp
Tip prop.:
Individuală
  • • Locație exactă

Descriere casă

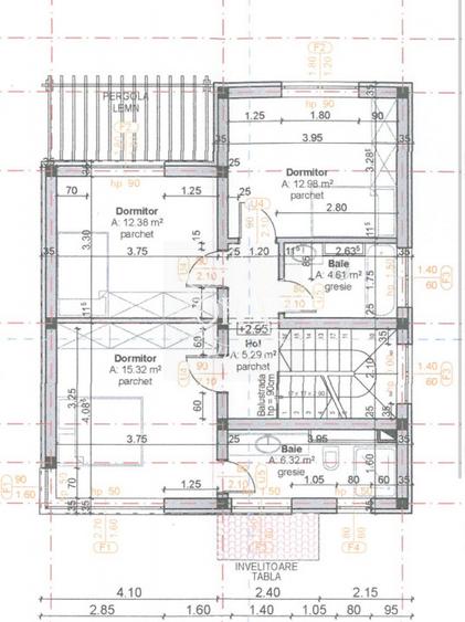
In zona primului lac la intrarea din Campenesti, propunem spre vanzare o casa individuala cu 4 camere, cu o suprafata utila de 119 mp si teren de 450 mp, care se remarca prin privelistea superba asupra lacului si nivelul ridicat de intimitate oferit de amplasare. Proprietatea se preda in stadiul semifinisat, oferind astfel libertatea de a personaliza finisajele si atmosfera interioara exact dupa preferintele si stilul viitorului proprietar. Aceasta casa este potrivita pentru familii, cupluri sau investitori care cauta o locuinta individuala, bine compartimentata, intr-o zona linistita, cu vizibil potential de apreciere in timp. Pentru cei care valorizeaza privelistile rare, confortul, intimitatea si personalizarea, acesta este genul de proiect care merita vazut. - Suprafata utila 119 mp utili pe 2+1 niveluri - Parter: bucatarie, camara, living room separat, baie - Etaj: 3 dormitoare, 2 bai - Mansarda: circulabila si utilizabila - Teren 450 mp - Campenesti zona primului lac - Stadiu semifinisat, toate utilitatile trase pe pozitii, fosa septica pana la racordarea cu canalizarea existenta - An constructie 2025 CF - Incalzire pardoseala - Orientare mixta - 2 Parcari - Pret 159.000 ₏ negociabil Daca vrei sa afli detalii mai concrete despre aceasta proprietate, suna la numarul de telefon afisat: - ORA - Servicii Imobiliare Complete Pentru tine si proprietatea ta, facem conexiunea la momentul potrivit! Fie ca iti cauti sa inchiriezi sau sa cumperi o locuinta pentru tine si familia ta, o oportunitate de investitie, un spatiu eficient pentru afacerea ta, suntem aici sa-ti oferim acces la toata piata imobiliara din judetul Cluj, doar la o intalnire distanta. Suntem aici pentru a simplifica procesul imobiliar, pentru a te ghida catre cea mai buna decizie. Consilierele din cadrul echipei noastre sunt intr-o continua cautare de proprietati, atat pe teren cat si online si isi folosesc toata experienta, pentru a-ti oferi: - Evaluari corecte de piata astfel incat sa vinzi sau sa cumperi la cel mai optim pret. - Proprietati atent selectionate, care respecta preferintele tale - Asistenta empatica in toata experienta de achizitionare/vanzare - Sprijinul unei intregi echipe, procese clare si trasparente, ca tu sa iei decizii informate in timp util. Pentru ca intelegem frustrarea legata de cautarea proprietatii perfecte, stim sa transformam ideile si dorintele tale imobiliare in realitate, cu empatie, profesionalism si implicare. ORA – de la Aur si Timp si cat este de importanta colaborarea cu un consilier imobiliar implicat, pentru eficientizarea timpului, care e atat de pretios.
Citește mai mult Citește mai puțin
Grădină Curte Calorifere Centrală proprie 2 Parcări Zonă rurală

Detalii casă

ID anunț: XFB71101E Copiat! 274278545 Copiat!
Actualizat în: 20 Ianuarie 2026
Suprafață construită: 149 mp
Nr. bucătării: 1
Nr. băi: 3
Nr. terase: 1
An construcție: 2025 (La gri)
Structură rezistență: Cărămidă
Regim înălțime: P+1E+M

Utilități

Contorizare
Apometre Contor căldură Contor gaz
Alte spații utile
Spațiu depozitare Dressing
Utilități
Curent Apă Canalizare Fosa septică Gaze
Ușă intrare
Metal
Izolații termice
Exterior Interior
Amenajare străzi
Asfaltate Pietruite
Comision
2.5%

Disponibilitate proprietate:

imediat

Puncte de interes

Recreere
restaurant
Han Km 17
Restaurant aprox. 1952 m

Detalii despre preț și costuri

Costuri cu achiziția

Fără credit
28.606 RON
Credit ipotecar
30.393 RON
Noua casă
950 RON+ taxe notariale

i

Costuri adiționale mai puțin știute la achiziție: taxe notariale, comisioane etc.

Proprietăți recomandate

Detalii de contact

Abonează-te la newsletter să fii primul care primește cele mai noi recomandări de proprietăți și sfaturi de la experți.

CONTACT

Creează alertă

Salvează căutarea ca să primești pe email ultimele anunțuri publicate

Case individuale cu 4+ camere de vânzare în Câmpenești, Județul Cluj