Casa individuala cu compartimentare excelenta si teren generos, Chinteni

219.900 €

Chinteni, Județul Cluj

Nr. cam.:
5
Sup. utilă:
120 mp
Sup. teren:
500 mp
Tip prop.:
Individuală
  • • Comision 0%
  • • Locație aproximativă

Descriere casă

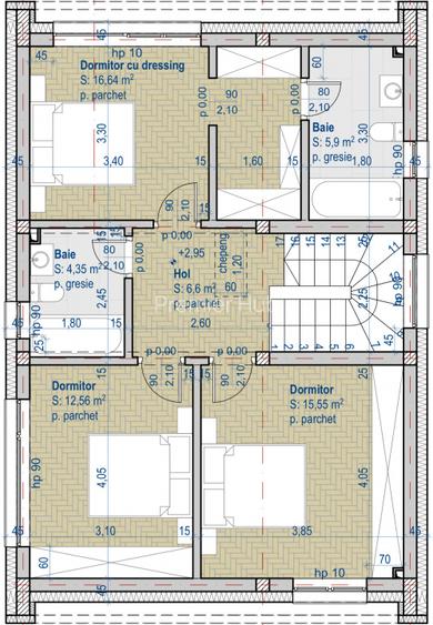
0% COMISIOM Va propunem spre vanzare o casa individuala situata in Chinteni, intr-o zona linistita. Proprietatea are 120 mp utili si este amplasata pe un teren generos de 500 mp, oferind spatiu suficient pentru gradina, terasa sau zona de relaxare. Compartimentare eficienta: Parter: Living luminos cu iesire pe terasa Bucatarie zona de dining Birou / camera oaspeti Baie de serviciu Spatiu depozitare Etaj: Dormitor matrimonial cu dressing si baie proprie 2 dormitoare secundare Baie pe hol 2 locuri de parcare in curte Compartimentare practica si bine optimizata Predare la stadiul de semifinisat – posibilitate de personalizare O locuinta potrivita pentru o familie care isi doreste spatiu, intimitate si liniste. Pentru detalii suplimentare si programarea unei vizionari, va stam la dispozitie. ID INTERN - P241864
Citește mai mult Citește mai puțin
Nemobilat Grădină Centrală proprie Încălzire prin pardoseală 1 Parcare 1 Parcare / Garaj / Parcare subterană Zonă de deal / munte Zonă rurală

Detalii casă

ID anunț: XFS60100H Copiat! 275028674 Copiat!
Actualizat în: 19 Februarie 2026
Nr. bucătării: 1
Nr. băi: 3
An construcție: 2025 (Finalizată)
Structură rezistență: Beton
Regim înălțime: P+1E

Utilități

Utilități
Curent Apă Canalizare Gaze
Ușă intrare
PVC
Izolații termice
Exterior
Ferestre cu geam termopan
PVC
Amenajare străzi
Pietruite

Disponibilitate proprietate:

imediat

Puncte de interes

Mijloace transport
bus-station
M-Primaria Chinteni V
Stații autobuz aprox. 1394 m
bus-station
M-Chinteni
Stații autobuz aprox. 1422 m
bus-station
M-Chinteni V
Stații autobuz aprox. 1422 m
bus-station
M-Chinteni E
Stații autobuz aprox. 1429 m

Detalii despre preț și costuri

Costuri cu achiziția

Fără credit
10.449 RON
Credit ipotecar
12.495 RON
Noua casă
1.260 RON+ taxe notariale

i

Costuri adiționale mai puțin știute la achiziție: taxe notariale, comisioane etc.

Proprietăți similare

Casă individuală cu 4 camere în Chinteni
199.500 €
Județul Cluj, Chinteni
4 camere
120 mp
317 mp teren
Casă individuală cu 4 camere în Chinteni
227.999 €
Județul Cluj, Chinteni
4 camere
120 mp
700 mp teren
Casă individuală cu 5 camere în Chinteni
220.000 €
Județul Cluj, Chinteni
5 camere
191 mp
550 mp teren

Detalii de contact

Premier Hub

Mihai Boia Co Founder Broker

Premier Hub
PRO

Abonează-te la newsletter să fii primul care primește cele mai noi recomandări de proprietăți și sfaturi de la experți.

CONTACT

Creează alertă

Salvează căutarea ca să primești pe email ultimele anunțuri publicate

Case individuale cu 4+ camere de vânzare în Chinteni, Județul Cluj