Casa duplex zona Voronet View spre Cluj-Napoca

379.000 €

Iris, Cluj-Napoca

Nr. cam.:
4
Sup. utilă:
150 mp
Sup. teren:
315 mp
Tip prop.:
Casă individuală
  • • Locație aproximativă

Descriere casă

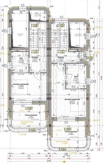
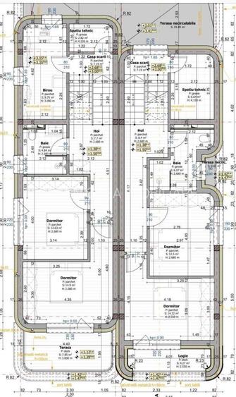
Vă prezentăm spre vânzare un duplex spațios și modern, situat într-o zonă liniștită și în plină dezvoltare din Voroneț, ideal pentru familii care își doresc confort, spațiu și intimitate. Fiecare unitate dispune de 150 mp suprafață utilă și este amplasată pe un teren de 315 mp, oferind o compartimentare practică și echilibrată, perfect adaptată stilului de viață modern. Compartimentare: Living generos și luminos Bucătărie separată cu cămară Birou (ideal pentru work from home) 3 dormitoare spațioase 3 băi Cameră tehnică / spațiu de depozitare 3 terase pentru relaxare În plus, proprietatea beneficiază de 2 locuri de parcare în curte, oferind confort și siguranță pentru mașinile familiei. Dotări și avantaje: Încălzire în pardoseală pentru un confort termic ridicat Centrală termică proprie Tâmplărie premium Veka Termosistem cu polistiren grafitat de 15 cm, pentru o eficiență energetică sporită Posibilitate de personalizare a finisajelor interioare, astfel încât locuința să reflecte perfect stilul viitorilor proprietari Proprietatea se predă la stadiul stabilit împreună cu cumpărătorul, oferind flexibilitate în alegerea finisajelor. Termen de finalizare: Iunie 2026 Preț de vânzare: 379.000 € / unitate Această proprietate reprezintă o oportunitate excelentă pentru cei care caută o locuință modernă, spațioasă și bine poziționată în Cluj. ID extern: P153013
Citește mai mult Citește mai puțin
Centrală proprie Încălzire prin pardoseală 2 Parcări Bine întreținut (Bună)

Detalii casă

ID anunț: XFUS1109H Copiat! 275384330 Copiat!
Actualizat în: 01 Aprilie 2026
Suprafață construită: 200 mp
Nr. bucătării: 1
Nr. băi: 3
Nr. balcoane / Terase / Logii: 2
Nr. terase: 1
An construcție: 2026 (Finalizată)
Structură rezistență: Cărămidă
Regim înălțime: P+2E

Utilități

Ușă intrare
PVC
Izolații termice
Exterior
Ferestre cu geam termopan
PVC PVC
Contorizare
Apometre Contor gaz
Utilități
Curent Apă Canalizare Gaze
Amenajare străzi
Asfaltate
Comision
2%

Puncte de interes

Mijloace transport
bus-station
UNIMET Nord
Stații autobuz aprox. 1168 m
tram-station
Disp. Tram CUG
Stații tramvai aprox. 1175 m
tram-station
Statia UNIMET 1 TRV, Linia 100, 102, 23
Stații tramvai aprox. 1176 m
bus-station
UNIMET Sud
Stații autobuz aprox. 1190 m
Școală
university
Facultatea de Ingineria Materialelor si a Mediului
Universități aprox. 1688 m
university
UT Facultatea de Mecanica
Universități aprox. 1692 m
Recreere
restaurant
Cantina Facultatea de Mecanica
Restaurant aprox. 1722 m
park
Parc
Parcuri aprox. 1866 m
park
Parc
Parcuri aprox. 1899 m
sports-ground
Teren sportiv
Terenuri sport aprox. 1910 m

Detalii despre preț și costuri

Costuri cu achiziția

Fără credit
54.566 RON
Credit ipotecar
57.288 RON
Noua casă
2.072 RON+ taxe notariale

i

Costuri adiționale mai puțin știute la achiziție: taxe notariale, comisioane etc.

Proprietăți similare

Casă individuală cu 3 camere în Iris
350.000 €
Cluj-Napoca, Iris
3 camere
113 mp
200 mp teren
Casă individuală cu 4 camere în Iris
400.000 €
Cluj-Napoca, Iris
4 camere
140 mp
600 mp teren
Casă individuală cu 5 camere în Iris
355.000 €
Cluj-Napoca, Iris
5 camere
160 mp
480 mp teren

Detalii de contact

GREEN CASA IMOBILIARE

Coman Claudiu Master Broker

GREEN CASA IMOBILIARE
PRO

Abonează-te la newsletter să fii primul care primește cele mai noi recomandări de proprietăți și sfaturi de la experți.

CONTACT

Creează alertă

Salvează căutarea ca să primești pe email ultimele anunțuri publicate

Case individuale cu 4+ camere de vânzare în zona Iris, Cluj-Napoca