6

Vila P+2 | Faleza Nord | Consilieri

1.000.000 €

Faleza Nord, Constanța

Nr. cam.:
5
Sup. utilă:
330 mp
Sup. teren:
300 mp
Tip prop.:
Individuală
  • • Locație aproximativă

Descriere casă

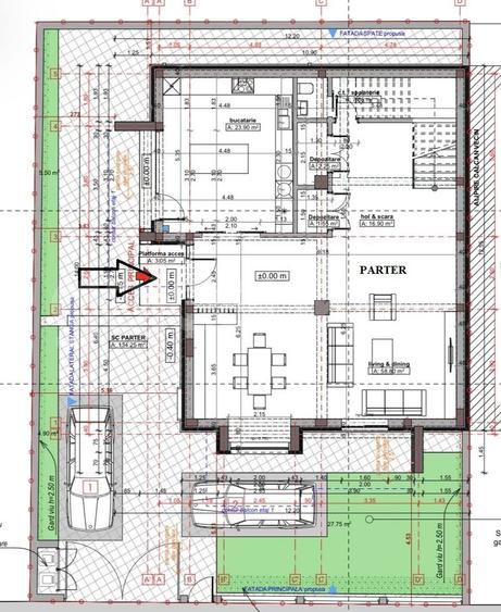
Situata in Faleza Nord zona Consilieri, pe o strada linistita, langa plaja, aceasta vila cu 5 camere se desfasoara pe 3 nivele P+2 si a fost construita pe un teren de 300mp, cu o deschidere de 15 ml. Are o suprafata totala de 450mp, 330 mp utili si o curte libera de 160 mp. Parterul se compune din living generos cu iesire pe terasa, bucatarie separata, grup sanitar, spatii depozitare, spalatorie si camera tehnica. La etajul 1 si 2 sunt in total patru dormitoare, fiecare prevazute cu camera dressing si baie si cate o terasa. Imobilul se vinde semifinisat , cu instalatia de incalzire in pardoseala montata si sapa turnata, sistemul de ventilatie montat in tavane ,tamplarie VEKA, instalatia electrica - casa inteligenta, si instalatie sanitara finalizata. Avand in vedere localizarea ( langa plaja ) ,dar si posibilitatea de a se amenaja dupa placul viitorului proprietar, aceasta proprietate reprezinta o oportunitate imobiliara.
Citește mai mult Citește mai puțin
Nemobilat Încălzire prin pardoseală 2 Parcări Zonă de litoral

Detalii casă

ID anunț: X1UR11106 Copiat! 275364235 Copiat!
Actualizat în: 28 Martie 2026
Tip tranzacție: De vânzare prin agent
Suprafață construită: 134 mp
Suprafață desfășurată: 450 mp
Nr. bucătării: 1
Nr. băi: 5
Suprafață terase: 44 mp
Front stradal: 15.0 m
An construcție: 2025 (Finalizată)
Structură rezistență: BCA
Regim înălțime: P+3E
Modalitate de plată: Cash sau Credit

Utilități

Izolații termice
Exterior
Ferestre cu geam termopan
PVC
Contorizare
Apometre Contor căldură Contor gaz
Alte spații utile
Dressing
Utilități
Curent Apă Canalizare CATV Gaze
Internet
Cablu
Amenajare străzi
Iluminat stradal Mijloace de transport în comun Asfaltate
Comision
2%+TVA

Disponibilitate proprietate:

Imediat

Puncte de interes

Mijloace transport
bus-station
Centru [2-43
Stații autobuz aprox. 73 m
bus-station
Fantasio [2-43
Stații autobuz aprox. 92 m
train-station
Gara CFR Constanta(1960)
Stații tren aprox. 1700 m
train-station
Gara Constanța(1960)
Stații tren aprox. 1765 m
Școală
university
Universitatea Populara (ru)
Universități aprox. 81 m
university
Facultatea de Medicina Dentara
Universități aprox. 263 m
school
Colegiul național "Mircea cel Bătrân"
Școli aprox. 377 m
kindergarten
Taramul Basmelor Kindergarten
Gradinițe aprox. 387 m
Recreere
park
Statuia lui Vasile Pârvan
Parcuri aprox. 151 m
supermarket
Billa
Supermarket aprox. 154 m
sports-ground
Teren sportiv
Terenuri sport aprox. 453 m
public-square
Piața Ovidiu
Piețe publice aprox. 874 m

Detalii despre preț și costuri

Costuri cu achiziția

Fără credit
Credit ipotecar
Noua casă

i

Costuri adiționale mai puțin știute la achiziție: taxe notariale, comisioane etc.

Acces la informații premium după autentificare
Login Gratuit

Proprietăți similare

Casă individuală cu 11 camere în Tomis II
1.100.000 €
Constanța, Tomis II
11 camere
473,86 mp
328 mp teren
Casă individuală cu 11 camere în Faleza Nord
1.100.000 €
Constanța, Faleza Nord
11 camere
418,24 mp
287 mp teren
Casă individuală cu 5 camere în Primo
999.900 €
Constanța, Primo
5 camere
415,8 mp
500 mp teren

Detalii de contact

Abonează-te la newsletter să fii primul care primește cele mai noi recomandări de proprietăți și sfaturi de la experți.

CONTACT

Creează alertă

Salvează căutarea ca să primești pe email ultimele anunțuri publicate

Case individuale cu 4+ camere de vânzare în zona Faleza Nord, Constanța