Exclusivitate! Oferta rara!
Casa individuala pe 2 niveluri situata pe o suprafata generoasa de teren, cu 4 camere si suprafata utila extrem de bine comapartimentata, situata intr-o zona linistita, relaxanta si cu verdeata, cu priveliste frumoasa, intr-un ansamblu restrans de case noi, retrasa de zgomotul si poluarea orasului Cluj-Napoca dar cu acces facil catre acesta.
Ansamblul, partial locuit, este format din case noi, cu acces la drum asfaltat, toate ingradite si cu gradinile si exterioarele complet amenajate, la 7 minute de Aeroportul International Cluj-Napoca.
ImoDeLuxe Real Estate va propune spre vanzare aceasta casa individuala, la stadiu de semifinisat, un proiect ultramodern intr-un ansamblu splendid, situata in localitatea Dezmir.
Este situata pe un teren de 612 mp si are o suprafata utila de 120.4 mp, cu regim de inaltime P+1.
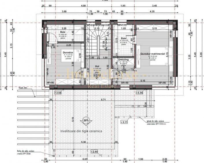
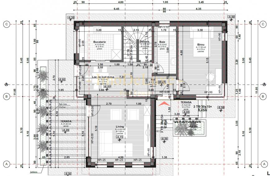
Compartimentarea este urmatoarea, conform planurilor din imagini:
La parter:
- 1 living open space generos cu iesire pe terasa, loc de luat masa si bucatarie(bucataria se poate inchide);
- 1 dormitor/birou;
- 1 baie;
- 1 hol;
- spatiu de depozitare sub scara interioara.
La etaj:
- 1 dormitor matrimonial cu dressing si baie proprie;
- 1 dormitor cu baie proprie;
- 1 hol.
La acestea se adauga 1 terasa exterioara acoperita si 2 parcari amenajate.
Alte anexe(garaj, spatii de depozitare, etc.) pot fi construite si amenajate, la cerere.
Se preda in iunie 2026, cu CF, la stadiul de semifinisat, astfel:
EXTERIORUL(complet amenajat):
- gradina amenajata si imprejmuita cu gard, porti pentru acces auto si pietonal, alei pavate, gazon insamantat;
- exteriorul casei izolat cu polistiren de 15 cm, complet finisat cu decorativa;
- acoperis cu tigla;
- trasee instalatii pregatite pentru panouri fotovoltaice;
- instalatii pentru aspersoare gazon.
INTERIORUL(semifinisat):
- instalatiile trase pe pozitie;
- 2 straturi de glet;
- ferestre termoizolante cu tamplarie PVC(3 sticle);
- centrala termica proprie + incalzire in pardoseala;
- se poate finisa, la cerere.
UTILITATI:
- utilitati: apa, gaz, canalizare, curent, internet prin fibra optica;
Recomandam aceasta proprietate datorita urmatoarelor aspecte:
- zona este retrasa de zgomot, linistita, relaxanta si cu verdeata;
- constructorul este cu experienta si materialele folosite sunt de calitate superioara;
- suprafetele terenului si a constructiei sunt generoase, lasand loc de personalizare;
- accesul catre Cluj-Napoca este facil, pe drum complet asfaltat.
Pentru programarea unei vizionari, detalii legate de constructie si materialele folosite in realizarea acesteia, nu ezitati sa ne contactati,
ImoDeLuxe Real Estate
Citește mai mult
Citește mai puțin
Centrală proprie
Încălzire prin pardoseală
2 Parcări
Sediul central - Timișoara
Bulevardul Victor Babeș nr. 2, 300230, Timișoara, România
Tel: +40.374.40.44.98 / Fax: +40.256.401.179
Email: suport@imobiliare.ro
Luni - Vineri 08:00 - 20:00
Punct de lucru - București: Iride Business Park, Bld. Dimitrie
Pompeiu 9-9A, Clădirea B2B,
020335, Sector 2, București, România
CONTACT
Sediul central - Timișoara
Bulevardul Victor Babeș nr. 2, 300230, Timișoara, România
Tel: +40.374.40.44.98 / Fax: +40.256.401.179
Email: suport@imobiliare.ro
Luni - Vineri 08:00 - 20:00
Punct de lucru - București: Iride Business Park, Bld. Dimitrie
Pompeiu 9-9A, Clădirea B2B,
020335, Sector 2, București, România
Sună acum și cere detalii sau programează o vizionare.
Cere detalii prin email
*
*
*
*
Parcări
Parcuri
Terenuri sport
Parcare
aprox.
1003 m
Pădurea Dezmir (en)
aprox.
1742 m
Teren sportiv
aprox.
1940 m
Înainte să pleci...
Ești sigur că ai văzut și aceste proprietăți?
249.000 €
Județul Cluj, Dezmir
4 camere
183,3 mp
388 mp teren
265.000 €
Județul Cluj, Dezmir
4 camere
140 mp
610 mp teren
309.900 €
Județul Cluj, Dezmir
4 camere
126 mp
500 mp teren
250.000 €
Județul Cluj, Dezmir
6 camere
180 mp
300 mp teren
250.000 €
Județul Cluj, Dezmir
4 camere
130 mp
700 mp teren
238.999 €
Județul Cluj, Dezmir
4 camere
172 mp
440 mp teren
Creează alertă
Salvează căutarea ca să primești pe email ultimele anunțuri publicate
Case individuale cu 4+ camere de vânzare în Dezmir, Județul Cluj
Cere detalii prin email
*
*
*
*
Detaliile tale de contact vor fi partajate cu Imodeluxe Real Estate
Preț total1.387.467 RON (272.388 €)
Costuri cu achiziția12.168 RON
Preț de achiziție1.375.299 RON
Costuri cu achiziția12.168 RON
Comision agenție Întreabă agenţia
Onorariu notarial10.105 RON
Taxă înscriere OCPI2.063 RON
Preț de achiziție1.375.299 RON
Preț locuință1.375.299 RON
TVA 0%Inclus în prețul cerut
Cost total223.878 RON (43.951 €)
Avans (15%)206.295 RON
Cost achitat în prima lună3.157 RON
Costuri cu achiziția14.426 RON
Cost achitat în prima lună3.157 RON
Comision analiză dosar
400 RON - 900 RON
Taxă evaluare imobil(până la)
900 RON
Rata lunară (variabilă)6.126 RON
Asigurare anuală imobil1.375 RON
Arhivă electronică102 RON
Poliță PAD130 RON
Asigurare de viață/lună Costul este variabil. În funcție de banca aleasă, procentul variază între 0.0259% și 0.035% din soldul creditului.
Costuri cu achiziția14.426 RON
Comision agenție Întreabă agenţia
Onorariu notarial10.105 RON
Taxă întabulare OCPI2.063 RON
Autentificare contract credit2.258 RON
Preț de achiziție1.375.299 RON
Preț locuință1.375.299 RON
TVA 0%Inclus în prețul cerut
Preț de achiziție1.375.299 RON
Preț locuință1.375.299 RON
TVA 0%
Inclus în prețul cerut
Avans minim769.149 RON
Credit pe 30 de ani606.150 RON
Cost achitat în prima lună
Taxa evaluare imobil(până la)
900 RON
Rata lunară (variabilă)4.259 RON
Depozit colateral12.777 RON
Comision de garantare FNGCIMM115 RON
Asigurare anuală imobil1.375 RON
Poliță PAD130 RON
Tarif arhivă electronică102 RON
Costuri adiționale1.515 RON + taxe notariale
Asigurare viață și complexă (opțională)Costul este variabil. În funcție de banca aleasă, procentul variază între 0.0259% și 0.035% din soldul creditului
Onorariu notarialconform tarif notarial
Taxă întabulare OCPI1.515 RON
i
Toate valorile de mai sus sunt estimative și nu reprezintă în mod obligatoriu costurile exacte pe care le veți primi de la companiile/instituțiile prin care veți încheia tranzacția.