4

Casa versatila, cu potential real de investitie Sacele

1.300.000 €

Săcele, Județul Brașov

Nr. cam.:
10
Sup. utilă:
752 mp
Sup. teren:
3.350 mp
Tip prop.:
Individuală
  • • Comision 0%
  • • Locație exactă
  • • Vizionare prin apel video

Descriere casă

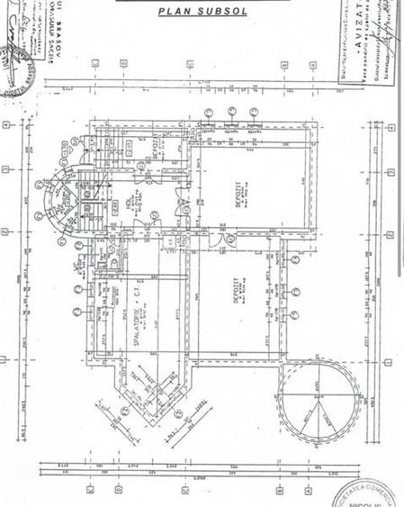
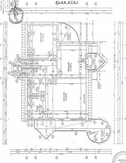
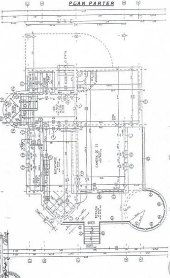
0 % comision pentru cumparator O casă versatilă, cu potențial real de investiție! Proprietatea reprezintă o oportunitate rară pe piață, datorită suprafeței de teren generoase și a clădirii deja existente, care poate fi adaptată rapid pentru multiple utilizări. Oferim spre vânzare o proprietate unică, situată în localitatea Săcele, zona Baciu, contruita pe un teren generos de 3.350 mp, cu o suprafață utilă de 751,42 mp, perfect adaptată pentru o gamă largă de utilizări: locuință familială, pensiune, clinică medicală sau cămin de bătrâni. Imobilul construit în 1997, solid, cu regim D+P+E+M, este situat intr-o zona liniștită, cu acces facil și deschidere mare, cu o amprenta la sol de aproximativ 200 mp, intelligent compartimentat, dupa cum urmeaza Demisol: 3 camere ( sala de jocuri, atelier, camera tehnica, spalatorie), Grup sanitar Parter: Hol generos, Bucătărie cu living, Cămară, dressing, Baie Apartament separat (2 camere + baie) cu intrare din curte sau casă Etaj: 3 dormitoare generoase, 2 băi, 3 terase Mansardă: 3 dormitoare, Hol, Baie Dotări și facilități: Panouri fotovoltaice de 20 kW – eficiență energetică crescută Izolație exterioară 15 cm – aplicată în 2022 4 aparate de aer condiționat – cu funcție de încălzire 2 centrale termice (înlocuite în 2017) Scări interioare late, ferestre mari – multă lumină naturală Garaje, foișor cu terasă, zonă de grătar Curte liberă de ~3.000 mp – ideală pentru extindere, relaxare sau activități comerciale Curtea, cu o suprafață liberă de aproximativ 3.000 mp, oferă un cadru natural deosebit, ideal pentru relaxare sau activități în aer liber. Grădina este bine întreținută, cu vegetație bogată și diversificată – brazi, pomi fructiferi maturi și plante ornamentale care conferă intimitate și un aer aparte întregii proprietăți. Zona exterioară include un cort de mari dimensiuni, ideal pentru evenimente sau activități recreative, o terasă acoperită pentru grătar, precum și două garaje acoperite. Spațiul este perfect echilibrat între funcționalitate și confort, fiind pregătit să susțină atât o viață de familie liniștită, cât și activități comerciale sau turistice. Aceasta proprietate îți oferă totul: confort, amploare, lumină și versatilitate. Fie că visezi la o casă pentru întreaga familie, un business cu suflet – cum ar fi o pensiune cochetă sau o clinică privată –, această proprietate îți oferă baza perfectă pentru oricare dintre aceste scenarii. Liniștea zonei, suprafețele generoase și dotările moderne transformă această casă într-o oportunitate rară.
Citește mai mult Citește mai puțin
Parțial mobilat Aer condiționat Centrală proprie 10 Parcări Zonă de deal / munte

Detalii casă

ID anunț: XC4S1107P Copiat! 267295365 Copiat!
Actualizat în: 19 Mai 2026
Tip tranzacție: De vânzare prin agent
Suprafață construită: 1000 mp
Suprafață desfășurată: 1000 mp
Nr. bucătării: 1
Nr. băi: 5
Nr. terase: 4
Suprafață terase: 124 mp
Învelitoare acoperiș: Tabla
An construcție: 1997 (Finalizată)
Structură rezistență: Altele
Etaj: Etaj 1 / 1
Regim înălțime: D+P+1E+M
Modalitate de plată: Cash sau Credit

Utilități

Destinație
Comercial
Pereți
Faianță Vopsea lavabilă
Podele
Parchet Gresie
Ușă intrare
PVC
Uși interior
PVC
Izolații termice
Exterior
Ferestre cu geam termopan
PVC
Contorizare
Apometre Contor gaz
Bucătărie
Utilată Mobilată
Electrocasnice
Aragaz Hotă Frigider Hotă Mașină de spălat
Diverse
Scară interioară
Alte spații utile
WC Serviciu Dressing
Utilități
Apă Curent Gaze Canalizare
Internet
Fibră optică
Amenajare străzi
Asfaltate
Comision
0%

Vecinătăți:

Zona comerciala, Autobuz

Puncte de interes

Mijloace transport
bus-station
Dirste
Stații autobuz aprox. 1979 m
train-station
Brasov Darste
Stații tren aprox. 1979 m
Școală
kindergarten
Gradinita Ruxy
Gradinițe aprox. 725 m
school
Scoala
Școli aprox. 822 m
kindergarten
Gradinita Nr. 4
Gradinițe aprox. 1194 m
school
Scoala Generala Numarul 6, Alexandru Lapedatu
Școli aprox. 1210 m
Recreere
restaurant
Lefrumarin
Restaurant aprox. 1258 m
restaurant
Corleone
Restaurant aprox. 1513 m
park
Parc
Parcuri aprox. 1552 m
cafe
Mol Shop
Cafenea aprox. 1706 m

Proprietăți similare

Casă individuală cu 9 camere în Centrul Istoric
1.400.000 €
Brașov, Centrul Istoric
9 camere
360 mp
400 mp teren
Casă individuală cu 11 camere în Drumul Poienii
1.200.000 €
Brașov, Drumul Poienii
11 camere
437 mp
1.501 mp teren
Casă individuală cu 12 camere în Poiana Brașov
1.295.000 €
Județul Brașov, Poiana Brașov
12 camere
878 mp
1.404 mp teren

Detalii de contact

White Mountain Property

Raluca Macarie Property Consultant Brasov

5.00(3 review-uri)

White Mountain Property
PRO

Abonează-te la newsletter să fii primul care primește cele mai noi recomandări de proprietăți și sfaturi de la experți.

CONTACT

Creează alertă

Salvează căutarea ca să primești pe email ultimele anunțuri publicate

Case individuale cu 4+ camere de vânzare în Săcele, Județul Brașov