2

Casă individuală, 6 camere, teren generos, Sânandrei - central, comision 0%

142.000 €

Sânandrei, Județul Timiș

Nr. cam.:
6
Sup. utilă:
164 mp
Sup. teren:
1.850 mp
Tip prop.:
Individuală
  • • Comision 0%
  • • Locație exactă

Descriere casă

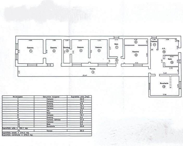
Agenția Imobiliară AB CASA vă propune spre vânzare, FĂRĂ COMISION, o casă individuală mare, pe parter, cu 6 camere și anexe, renovată în anul 2026, situată în centrul localității Sânandrei. Locuința, cu o suprafață utilă de 164 mp și o teresă de 50 mp, este potrivită pentru 2-3 familii. Viitorii proprietari vor beneficia de 5 dormitoare, un dressing, 2 băi, o cămară, o cameră tehnică și o bucătărie, cu acces separat direct din terasa deschisă. Terenul aferent clădirii are o suprafață de 1850 mp, cu un front stradal de 19 m. Imobilul dispune de un sistem de încălzire prin calorifere, conectat la centrala care funcționează cu lemne. Curtea are o suprafață considerabilă și este împrejmuită complet cu gard. Locuința este conectată la curent și apă, cu posibilități de branșare la gaz și canalizare. Proprietatea poate fi utilizată și pentru derularea unor activități comerciale. Preț 142.000 euro, negociabil Telefon:
Citește mai mult Citește mai puțin
Grădină Curte Calorifere Centrală proprie 6 Parcări 1 Garaj Renovat Zonă rurală

Detalii casă

ID anunț: XFA101016 Copiat! 275423561 Copiat!
Actualizat în: 09 Aprilie 2026
Nr. bucătării: 1
Nr. băi: 2
Nr. terase: 1
Suprafață terase: 50 mp
Nr. fronturi stradale: 1
Front stradal: 19 m
Învelitoare acoperiș: Tabla
Regim înălțime: P

Utilități

Destinație
Rezidențial Comercial
Pereți
Faianță Vopsea lavabilă
Podele
Dușumea Gresie
Ușă intrare
Lemn
Uși interior
Lemn
Ferestre cu geam termopan
PVC
Contorizare
Apometre
Bucătărie
Parțial mobilată Parțial utilată
Alte spații utile
Dressing Spațiu depozitare Dependințe Anexe
Facilități imobil
Acoperiș
Utilități
Curent Fosa septică Apă
Amenajare străzi
Asfaltate Iluminat stradal Mijloace de transport în comun
Comision
0%

Puncte de interes

Mijloace transport
bus-station
Sanandrei
Stații autobuz aprox. 1581 m

Detalii despre preț și costuri

Costuri cu achiziția

Fără credit
Credit ipotecar
Noua casă

i

Costuri adiționale mai puțin știute la achiziție: taxe notariale, comisioane etc.

Insight premium disponibil după login

Proprietăți similare

Casă individuală cu 4 camere în Sânandrei
135.000 €
Județul Timiș, Sânandrei
4 camere
105 mp
351 mp teren
Casă individuală cu 3 camere în Sânandrei
151.000 €
Județul Timiș, Sânandrei
3 camere
119 mp
300 mp teren
Casă individuală cu 3 camere în Sânandrei
141.000 €
Județul Timiș, Sânandrei
3 camere
83 mp
172 mp teren

Detalii de contact

AB CASA IMOBILIARE

Alin Balaj

4.67(5 review-uri)

AB CASA IMOBILIARE
PRO

Abonează-te la newsletter să fii primul care primește cele mai noi recomandări de proprietăți și sfaturi de la experți.

Feedback apel

CONTACT

Creează alertă

Salvează căutarea ca să primești pe email ultimele anunțuri publicate

Case individuale cu 4+ camere de vânzare în Sânandrei, Județul Timiș