Acum ai ocazia sa locuiesti in cea mai moderna si confortabila locuinta in stil mediteranean, in inima Transilvaniei!
Va propunem spre vanzare o proprietatea exclusivista, proiectata si construita de profesionalisti in domeniu. Eficienta acestor case se observa din materialele premium, cum ar fii caramida Porotherm, izolatie cu polistiren 10cm si tripane Salamander de ultima generatie.
Casa este construita pe un teren ingradit cu o suprafata de 500mp, amprenta la sol fiind de 180mp.
Fatada : Pereti exteriori din caramida cu tencuiala decorativa alb polar, margini invelite in placa gresie portelanata de culoare neagra, soclu din placi portelanate, balustrada din sticla, scari antiderapante.
Compartimentare :
Parterul casei dispune de:
Un living spatios de 43 mp, impartit in living si zona de dining dotat cu un spatiu vitrat deschis, pentru o atmosfera luminoasa si prietenoasa si iesire pe terasa din spate cu vedere spre Dealul Lempes.
Bucatarie spatioasa cu posibilitate de inchidere.
De asemenea, la parter, avem si alte spatii utile, precum hol, casa scarii, o baie cu dus, o camera tehnica si o boxa exterioara.
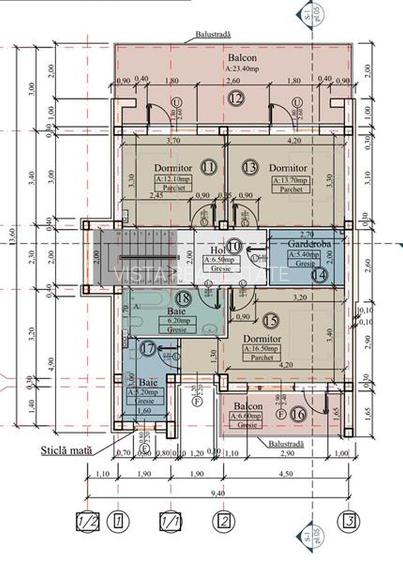
Etajul casei este format din :
Hol cu dressing
Dormitorul 1 - 16,60 mp cu acces in dressing si baie de 5,4mp. Are acces pe balconul de 7,40mp.
Dormitorul 2 - 13.30 mp cu iesire pe terasa de 25mp.
Baie principala 6,4 mp care deserveste celor doua camere.
O cameră de birou sau de copil de 10mp cu iesire pe terasa.
Detalii tehnice :
- Incalzire in pardoseala cu termostate wirelless in fiecare camera, controlabila din telefon
- Centrala termica prin condesare
- Canalizare, apa curentă, curent 220kw.
Curtea va fii amenajata cu spatii verzi, pavaj pentru parcarea interioara, gard din stalpi de beton cu fundație de 1m si aluminiu cu un design aparte si porti automatizate.
Pozele cu design-ul de interior, sunt cu titlu informativ, dar se poate finisa si amenaja dupa gustul dumneavoastra.
Comision Cumparator 0% ; Se vinde de pe persoana fizica!
Va invit la o vizionare sa descoperiti mai multe atuuri ale viitorului vostru camin.
Vista Real Estate, formata dintr-o echipa de profesionisti in imobiliare, sunt gata sa te reprezinte indiferent de nevoia ta imobiliara: servicii de intermediere si consultanta, promovare, evaluarea bunurilor imobiliare, asistenta juridica, investitii imobiliare și administrarea proprietatilor.
Noi credem ca tranzactia imobiliara este incheiata atunci cand persoanele care ne trec pragul recomanda, oricand, fara ezitare, Vista Real Estate.
Conform certificatului de performanta energetica, apartamentul prezinta urmatorii indicatori de performanta: - clasa energetica A, - consum anual specific de energie 181.26 kwh mp.an, - indicele de emisie echivalent CO_2 =33.19 kgCO2 mp.an, - consum anual specific de energie din surse regenerabile 0 kwh mp.an.
Citește mai mult
Citește mai puțin
Nemobilat
Centrală proprie
Încălzire prin pardoseală
2 Parcări
Sediul central - Timișoara
Bulevardul Victor Babeș nr. 2, 300230, Timișoara, România
Tel: +40.374.40.44.98 / Fax: +40.256.401.179
Email: suport@imobiliare.ro
Luni - Vineri 08:00 - 20:00
Punct de lucru - București: Iride Business Park, Bld. Dimitrie
Pompeiu 9-9A, Clădirea B2B,
020335, Sector 2, București, România
CONTACT
Sediul central - Timișoara
Bulevardul Victor Babeș nr. 2, 300230, Timișoara, România
Tel: +40.374.40.44.98 / Fax: +40.256.401.179
Email: suport@imobiliare.ro
Luni - Vineri 08:00 - 20:00
Punct de lucru - București: Iride Business Park, Bld. Dimitrie
Pompeiu 9-9A, Clădirea B2B,
020335, Sector 2, București, România
Sună acum și cere detalii sau programează o vizionare.
Cere detalii prin email
*
*
*
*
Terenuri sport
Parcuri
Farmacie
Spital
Restaurant
Teren sportiv
aprox.
1074 m
Pădure
aprox.
1534 m
Loc de joaca
aprox.
1690 m
Farmacie
aprox.
1570 m
Farmacie
aprox.
1623 m
Unitatea de Asistenta Medico-Sociala de Pneumoftiziologie (fosta sectie a Spitalul TBC Brasov) (Fosta Scoala de Pilotaj "San-Petru")
aprox.
1808 m
Hotel Bielmann
aprox.
1101 m
Înainte să pleci...
Ești sigur că ai văzut și aceste proprietăți?
270.000 €
Județul Brașov, Sânpetru
4 camere
135 mp
500 mp teren
280.000 €
Județul Brașov, Sânpetru
4 camere
137 mp
500 mp teren
340.000 €
Județul Brașov, Sânpetru
4 camere
132 mp
633 mp teren
275.000 €
Județul Brașov, Sânpetru
4 camere
202,2 mp
500 mp teren
295.000 €
Județul Brașov, Sânpetru
4 camere
138 mp
500 mp teren
300.000 €
Județul Brașov, Sânpetru
4 camere
174 mp
445 mp teren
Creează alertă
Salvează căutarea ca să primești pe email ultimele anunțuri publicate
Case individuale cu 4+ camere de vânzare în Sânpetru, Județul Brașov
Cere detalii prin email
*
*
*
*
Detaliile tale de contact vor fi partajate cu Vista Real Estate
Preț total1.747.078 RON (342.860 €)
Costuri cu achiziția14.574 RON
Preț de achiziție1.732.504 RON
Costuri cu achiziția14.574 RON
Comision agenție Întreabă agenţia
Onorariu notarial11.975 RON
Taxă înscriere OCPI2.599 RON
Preț de achiziție1.732.504 RON
Preț locuință1.732.504 RON
TVA 0%Inclus în prețul cerut
Cost total280.521 RON (55.051 €)
Avans (15%)259.876 RON
Cost achitat în prima lună3.515 RON
Costuri cu achiziția17.130 RON
Cost achitat în prima lună3.515 RON
Comision analiză dosar
400 RON - 900 RON
Taxă evaluare imobil(până la)
900 RON
Rata lunară (variabilă)7.717 RON
Asigurare anuală imobil1.733 RON
Arhivă electronică102 RON
Poliță PAD130 RON
Asigurare de viață/lună Costul este variabil. În funcție de banca aleasă, procentul variază între 0.0259% și 0.035% din soldul creditului.
Costuri cu achiziția17.130 RON
Comision agenție Întreabă agenţia
Onorariu notarial11.975 RON
Taxă întabulare OCPI2.599 RON
Autentificare contract credit2.556 RON
Preț de achiziție1.732.504 RON
Preț locuință1.732.504 RON
TVA 0%Inclus în prețul cerut
Preț de achiziție1.732.504 RON
Preț locuință1.732.504 RON
TVA 0%
Inclus în prețul cerut
Avans minim1.126.128 RON
Credit pe 30 de ani606.376 RON
Cost achitat în prima lună
Taxa evaluare imobil(până la)
900 RON
Rata lunară (variabilă)4.261 RON
Depozit colateral12.783 RON
Comision de garantare FNGCIMM144 RON
Asigurare anuală imobil1.733 RON
Poliță PAD130 RON
Tarif arhivă electronică102 RON
Costuri adiționale1.873 RON + taxe notariale
Asigurare viață și complexă (opțională)Costul este variabil. În funcție de banca aleasă, procentul variază între 0.0259% și 0.035% din soldul creditului
Onorariu notarialconform tarif notarial
Taxă întabulare OCPI1.873 RON
i
Toate valorile de mai sus sunt estimative și nu reprezintă în mod obligatoriu costurile exacte pe care le veți primi de la companiile/instituțiile prin care veți încheia tranzacția.