5

Vanzare vila 5 camere | Langa padure | Bucuresti | Baneasa

395.000 €

Băneasa, București

Nr. cam.:
5
Sup. utilă:
130 mp
Sup. teren:
370 mp
Tip prop.:
Individuală
  • • Locație aproximativă

Descriere casă

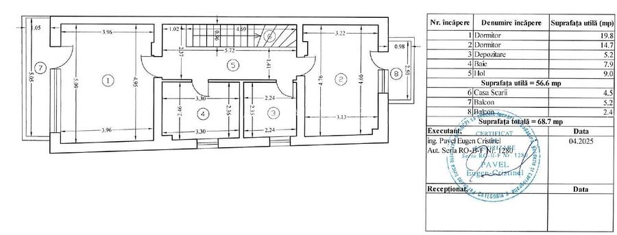
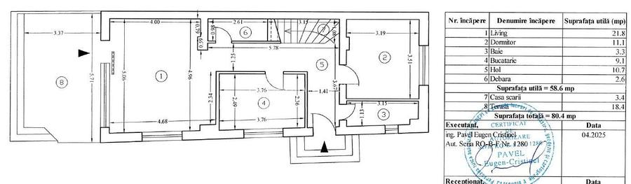
Va prezentam spre vanzare o proprietate deosebita, o vila eleganta, compusa din parter si etaj, situata in nordul zonei Baneasa, la marginea padurii. Imobilul, in suprafata utila toatala de 130 mp si o terasa de 18 mp, contine: living, bucatarie inchisa complet utilata cu electocasnice de calitate, 1 birou, 1 dormitor matrimonial, alte 2 dormitoare, 2băi, 2 balcoane, o terasa generoasa cu vedere spre padure. Podul existent se poate mansarda, amenaja sau extinde (etajare) ca spatiu locuibil, întrucât peste etaj exista placa de beton armat, iar imobilul detine Puz in acest sens. Proprietatea este orientata E-V, se vinde impreună cu un loc de parcare. Cartierul este linistit si sigur. In apropiere se afla mijloace de transport in comun, autobuz și viitoarea magistrala M6 de metrou, statia Paris. Acces facil si rapid la zona comerciala si de divertisment Baneasa Shopping Center, Gradina Zoologica Baneasa, institutii de invatamant de prestigiu, spital in constructie. Pentru mai multe detalii nu ezitati sa ne contactati!
Citește mai mult Citește mai puțin
1 Parcare

Detalii casă

ID anunț: XF601106R Copiat! 275090352 Copiat!
Actualizat în: 26 Februarie 2026
Suprafață desfășurată: 158 mp
Nr. bucătării: 1
Nr. băi: 2
Nr. balcoane / Terase / Logii: 2
Nr. terase: 1
Suprafață terase: 18 mp
Învelitoare acoperiș: Tabla
An construcție: 2008 (Finalizată)
Structură rezistență: Beton
Regim înălțime: P+1E

Utilități

Utilități
Curent Apă Canalizare
Comision
standard

Disponibilitate proprietate:

Imediat

Puncte de interes

Mijloace transport
bus-station
Statia Pasaj CFR Otopeni, linia 149,304,783
Stații autobuz aprox. 322 m
bus-station
Statia Soseaua Bucuresti-Ploiesti 107, linia 304
Stații autobuz aprox. 476 m
bus-station
Statia Pasaj Otopeni, linia 149,304
Stații autobuz aprox. 755 m
train-station
Gara Otopeni
Stații tren aprox. 1385 m
Școală
school
Lycee Francais de Noailles
Școli aprox. 778 m
school
Liceul Francez
Școli aprox. 845 m
school
Academia de Politie
Școli aprox. 1124 m
kindergarten
Gradinita cu program prelungit nr. 2 Otopeni
Gradinițe aprox. 1601 m
Recreere
sports-ground
Teren de Tenis
Terenuri sport aprox. 330 m
park
Pădurea Băneasa
Parcuri aprox. 853 m
sports-ground
Teren sportiv
Terenuri sport aprox. 1041 m
restaurant
McDonald's
Restaurant aprox. 1253 m

Detalii despre preț și costuri

Costuri cu achiziția

Fără credit
16.461 RON
Credit ipotecar
19.250 RON
Noua casă
2.153 RON+ taxe notariale

i

Costuri adiționale mai puțin știute la achiziție: taxe notariale, comisioane etc.

Proprietăți recomandate

Detalii de contact

ARCADIA IMOBILIARE

Claudiu Vasile administrator

ARCADIA IMOBILIARE
PRO

Abonează-te la newsletter să fii primul care primește cele mai noi recomandări de proprietăți și sfaturi de la experți.

CONTACT

Creează alertă

Salvează căutarea ca să primești pe email ultimele anunțuri publicate

Case individuale cu 4+ camere de vânzare în zona Băneasa, Sector 1