City Imob Invest va prezinta spre vanzare o vila situata in zona Erou Iancu Nicolae, British School, cu spatii generoase si dormitoare numeroase.
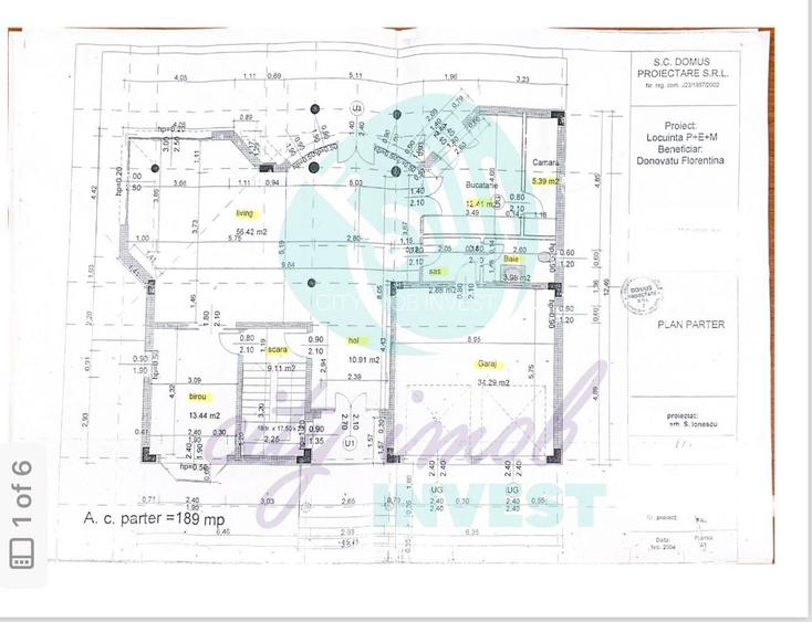
Casa a fost edificata la incepul anilor 2000, avand regim de inaltime P+ET1+M si beneficiaza de: 9 camere, 6 bai, bucatarie, terase si spatii multiple de depozitare, avand o suprafata utila totala de aprox 420 mp. Beneficiaza de un TEREN in suprafata totala de 650 mp, iar CURTEA LIBERA este de aprox 450mp.
S-a acordat o atentie speciala pentru compartimentare/ dispunerea camerelor si alocarea suprafetelor, optimizandu-se fiecare mp, aspect ce recomanda proprietatea atat familiilor numeroase sau iubitoare de spatiu, cat si persoanelor care sunt in cautarea unei proprietati pentru desfasurarea unei activitati.
Zona de zi a fost gandita sa "uneasca familia" si are o suprafata de aprox 60 mp pentru zona de living, la care se adauga zona de gatit (bucataria), biroul, terasa exterioara acoperita si un grup sanitar.
Practic, parterul reprezinta zona de zi a casei, gandit si compartimentat atat pentru recreere si dinning in interiorul resedintei, cat si pentru desfasurarea activitatilor similare in zona exterioara in perioadele calde, de vara.
Etajul 1 este impartit in 3 dormitoare, fiecare cu baie proprie si 2 dressinguri. Tot la etajul 1 regasim si o zona comuna, care poate fi transformata in zona de lectura sau birou.
Mansarda este impartita in: 2 dormitoare si o baie si un mic apartament cu dormitor, living si baie proprie.
Curtea libera este o adevarata oaza de liniste si verdeata. Este sufiecient de generoasa atat pentru amenajare peisagistica, zona de joaca pentru copii sau zona de recreere, cat si pentru barbeque sau dinnig.
Iar parcarea se poate face atat in interior, unde exista un garaj dotat pentru 2 masini; cat si in zona exterioara unde pot fi parcate 2-3 masini.
In ceea ce priveste locatia, casa este dispusa la 2 pasi de Erou Iancu Nicolae, retrasa de la zgomotul stradal. In imediata apropiere se afla: British School, restaurante, World Class sau Mega Image si dispune de acces facil catre: Mall Baneasa, Aviatiei, zona de birouri din Nordul CAPITALEI sau catre Aeroportul International Henri Coanda.
Daca oferta noastra v-a captat atentia, va asteptam la o vizionare!
Oferim consultanta GRATUITA persoanelor care doresc achizitionarea cu credit ipotecar.
Nu avem informatii despre clasa energetica in care este incadrat imobilul. Certificatul energetic va fi disponibil al vanzare!
Sediul central - Timișoara
Bulevardul Victor Babeș nr. 2, 300230, Timișoara, România
Tel: +40.374.40.44.98 / Fax: +40.256.401.179
Email: suport@imobiliare.ro
Luni - Vineri 08:00 - 20:00
Punct de lucru - București: Iride Business Park, Bld. Dimitrie
Pompeiu 9-9A, Clădirea B2B,
020335, Sector 2, București, România
CONTACT
Sediul central - Timișoara
Bulevardul Victor Babeș nr. 2, 300230, Timișoara, România
Tel: +40.374.40.44.98 / Fax: +40.256.401.179
Email: suport@imobiliare.ro
Luni - Vineri 08:00 - 20:00
Punct de lucru - București: Iride Business Park, Bld. Dimitrie
Pompeiu 9-9A, Clădirea B2B,
020335, Sector 2, București, România
BIO-MEDICA International S.A-Voluntari(cartierul Pipera) (en)
aprox.
1691 m
Restaurant Tecadra
aprox.
661 m
Phill
aprox.
824 m
Green Garlic Pub
aprox.
1146 m
Studio 80
aprox.
1279 m
Zona Pensiunii Pipera(b-dul Pipera)
aprox.
1759 m
Amvrosia Restaurant Grecesc
aprox.
1875 m
Bodega Vraja Lacului
aprox.
1962 m
Doncafe Brasserie
aprox.
1109 m
Unicredit Tiriac Bank (en)
aprox.
1665 m
UniCredit Bank - Ag. Pipera
aprox.
1676 m
BRD - Ag. Pipera-Tunari
aprox.
1756 m
Bancpost (en)
aprox.
1762 m
BRD (en)
aprox.
1763 m
Banca Transilvania - Ag. Pipera
aprox.
1864 m
Banca Transilvania (en)
aprox.
1864 m
Înainte să pleci...
Ești sigur că ai văzut și aceste proprietăți?
950.000 €
București, Pipera
4 camere
235 mp
720 mp teren
990.000 €
București, Pipera
5 camere
165 mp
570 mp teren
870.000 €
București, Pipera
5 camere
220 mp
400 mp teren
Creează alertă
Salvează căutarea ca să primești pe email ultimele anunțuri publicate
Case individuale cu 4+ camere de vânzare în zona Pipera, Sector 1
Cere detalii prin email
*
*
*
*
Detaliile tale de contact vor fi partajate cu City Imob Invest
Preț total4.875.088 RON (956.969 €)
Costuri cu achiziția35.503 RON
Preț de achiziție4.839.585 RON
Costuri cu achiziția35.503 RON
Comision agenție Întreabă agenţia
Onorariu notarial28.244 RON
Taxă înscriere OCPI7.259 RON
Preț de achiziție4.839.585 RON
Preț locuință4.839.585 RON
TVA 0%Inclus în prețul cerut
Cost total773.207 RON (151.778 €)
Avans (15%)725.938 RON
Cost achitat în prima lună6.622 RON
Costuri cu achiziția40.647 RON
Cost achitat în prima lună6.622 RON
Comision analiză dosar
400 RON - 900 RON
Taxă evaluare imobil(până la)
900 RON
Rata lunară (variabilă)21.558 RON
Asigurare anuală imobil4.840 RON
Arhivă electronică102 RON
Poliță PAD130 RON
Asigurare de viață/lună Costul este variabil. În funcție de banca aleasă, procentul variază între 0.0259% și 0.035% din soldul creditului.
Costuri cu achiziția40.647 RON
Comision agenție Întreabă agenţia
Onorariu notarial28.244 RON
Taxă întabulare OCPI7.259 RON
Autentificare contract credit5.144 RON
Preț de achiziție4.839.585 RON
Preț locuință4.839.585 RON
TVA 0%Inclus în prețul cerut
Preț de achiziție4.839.585 RON
Preț locuință4.839.585 RON
TVA 0%
Inclus în prețul cerut
Avans minim4.233.363 RON
Credit pe 30 de ani606.222 RON
Cost achitat în prima lună
Taxa evaluare imobil(până la)
900 RON
Rata lunară (variabilă)4.260 RON
Depozit colateral12.780 RON
Comision de garantare FNGCIMM403 RON
Asigurare anuală imobil4.840 RON
Poliță PAD130 RON
Tarif arhivă electronică102 RON
Costuri adiționale4.980 RON + taxe notariale
Asigurare viață și complexă (opțională)Costul este variabil. În funcție de banca aleasă, procentul variază între 0.0259% și 0.035% din soldul creditului
Onorariu notarialconform tarif notarial
Taxă întabulare OCPI4.980 RON
i
Toate valorile de mai sus sunt estimative și nu reprezintă în mod obligatoriu costurile exacte pe care le veți primi de la companiile/instituțiile prin care veți încheia tranzacția.