15

Vila istorica la 2 minute de Charles de Gaulle | Primaverii

1.440.000 €

Primăverii, București

Nr. cam.:
10
Sup. utilă:
300 mp
Sup. teren:
250 mp
Tip prop.:
Individuală
  • • Locație aproximativă
  • • Vizionare prin apel video

Descriere casă

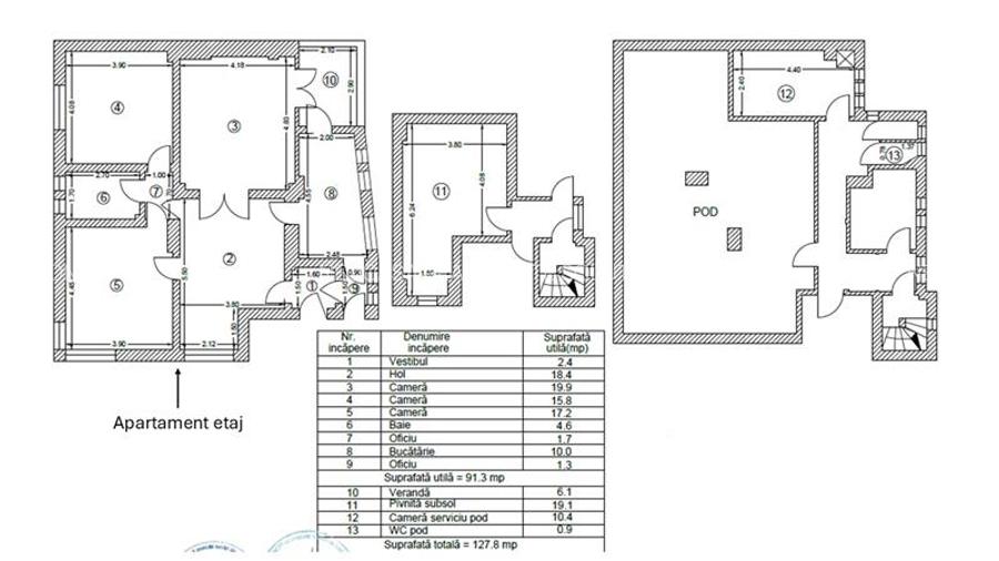
Neocasa va propune spre achiztie o vila individuala, cu arhitectura deosebita, amplasata intr-una dintre cele mai cautate zone din Bucuresti. Edificat in anul 1936, imobilul pastreaza farmecul autentic al perioadei interbelice, prin imbinarea elementelor arhitecturale specifice neoromanescului tarziu cu liniile curate ale modernismului de inceput. Pozitionarea este una excelenta, cartierul Primaverii fiind recunoscut pentru eleganta, linistea, dar si exclusivitatea sa. Comunitatea sa se bucura de toate facilitatile necesare unui stil de viata confortabil, precum parcul Herastrau, piata Dorobanti, sau multitudinea de restaurante si cafenele din zona, toate la cateva minute de mers pe jos. De asemenea, proximitatea fata de artere importante, precum Bulevardul Aviatorilor sau Calea Dorobanti, precum si fata de mijloace de transport in comun, faciliteaza conexiunea cu toate punctele de interes din nordul orasului, si nu numai. Vila prezentata are o suprafata construita de aproximativ 400 mp, respectiv 182 mp utili (fara demisol, pod si verande), si este compusa din: - demisol: 3 camere cu suprafete de 6 mp, 13 mp si 19 mp. Acestea pot fi folosite ca spatiu de depozitare, camera tehnica si zona pentru spalatorie. - parter: apartament de 4 camere, cu zona de zi alcatuita din 2 camere despartite de un glasvand, doua dormitoare generoase, o baie cu aerisire naturala, bucatarie si o veranda cu vedere catre curtea din spate. - etaj: apartament de 4 camere, identic cu cel de la parter - pod: 2 camere, wc, zona open-space, cu posibilitate de inaltare. Proprietatea necesita investitii pentru a fi adusa la standarde moderne, inclusiv schimbarea acoperisului si instalarea unei centrale termice. Imobilul este amplasat pe un teren de 250 mp, din care 150 mp sunt in proprietate, dar beneficiaza si de folosinta unui lot de 250 mp, amplasat in spatele casei. De asemenea, acesta beneficiaza de garaj. Va invitam sa descoperiti aceeasta proprietate, precum si potentialul ei. Pentru informatii suplimentare si vizionari, va rugam sa ne contactati.
Citește mai mult Citește mai puțin
Sobă/teracotă 1 Parcare 1 Garaj

Detalii casă

ID anunț: X71S110G7 Copiat! 271492070 Copiat!
Actualizat în: 29 Aprilie 2026
Suprafață construită: 350 mp
Suprafață desfășurată: 350 mp
Nr. băi: 3
Nr. balcoane / Terase / Logii: 2
Învelitoare acoperiș: Tabla
An construcție: 1936 (Finalizată)
Structură rezistență: Altele
Etaj: Etaj 1 / 1
Regim înălțime: D+P+1E+M

Utilități

Destinație
Rezidențial

Puncte de interes

Mijloace transport
bus-station
Statia Piata Charlles de Gaulle linii : 131,282,301,330,331,335.
Stații autobuz aprox. 244 m
metro-station
Piata Aviatorilor (M2)
Stații metrou aprox. 362 m
bus-station
Statia Piata Dorobantilor, linia 131, 182, 330, 331, 335, 282, N113, 301
Stații autobuz aprox. 475 m
tram-station
Roma
Stații tramvai aprox. 1336 m
Școală
school
Liceul "Jean Monnet"
Școli aprox. 260 m
kindergarten
Gradinita cu program normal ""Ge Ce Pic Englishkinder"
Gradinițe aprox. 675 m
school
Scoala gimnaziala "Titu Maiorescu"
Școli aprox. 683 m
university
Universitatea Atenaeum
Universități aprox. 1165 m
Recreere
supermarket
Mega Image
Supermarket aprox. 199 m
park
Parc
Parcuri aprox. 199 m
sports-ground
Skatepark 1
Terenuri sport aprox. 642 m
mall
"METROPLIS CENTER"
Mall aprox. 1441 m

Proprietăți similare

Casă individuală cu 5 camere în Băneasa
1.499.000 €
București, Băneasa
5 camere
230 mp
442 mp teren
Casă individuală cu 8 camere în Primăverii
1.440.000 €
București, Primăverii
8 camere
291 mp
250 mp teren
Casă individuală cu 5 camere în Pipera
1.550.000 €
București, Pipera
5 camere
420 mp
570 mp teren

Detalii de contact

NEOCASA REAL ESTATE SOLUTIONS

Suport Clienti Consultant Imobiliar

NEOCASA REAL ESTATE SOLUTIONS
PRO

Abonează-te la newsletter să fii primul care primește cele mai noi recomandări de proprietăți și sfaturi de la experți.

CONTACT

Creează alertă

Salvează căutarea ca să primești pe email ultimele anunțuri publicate

Case individuale cu 4+ camere de vânzare în zona Primăverii, Sector 1