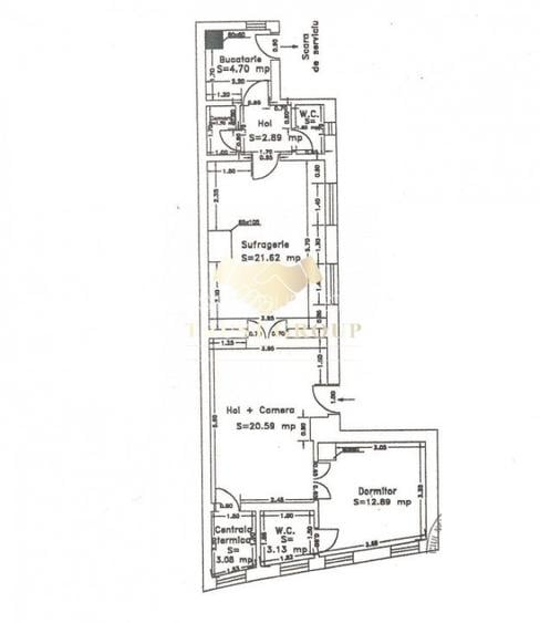
Acest imobil unic, format din două corpuri de clădire cu regim de înălțime P+2, este ideal pentru diverse utilizări, fie rezidențiale, fie comerciale. Ambele corpuri sunt separate de o curte interioară de 85 mp, oferind un spațiu privat și funcțional. Cu o suprafață totală de 325 mp utili, imobilul include 10 camere, 2 bucătării și 6 grupuri sanitare, fiind o opțiune excelentă pentru activități precum notariat, birou de avocatură, spațiu comercial, restaurant sau școală.
Corpul A este construit in anii 50, iar corpul B in 2004
În trecut, proprietatea a funcționat ca școală privată, iar structura sa oferă flexibilitate pentru diferite tipuri de afaceri. Menționăm că în corpul A există un apartament de 3 camere la etajul 2, deținut de un alt proprietar, însă există posibilitatea ofertării acestuia pentru o eventuală achiziție completă a clădirii.
Pentru vizionări sau informații suplimentare, vă stăm la dispoziție!
Sediul central - Timișoara
Bulevardul Victor Babeș nr. 2, 300230, Timișoara, România
Tel: +40.374.40.44.98 / Fax: +40.256.401.179
Email: suport@imobiliare.ro
Luni - Vineri 08:00 - 20:00
Punct de lucru - București: Iride Business Park, Bld. Dimitrie
Pompeiu 9-9A, Clădirea B2B,
020335, Sector 2, București, România
CONTACT
Sediul central - Timișoara
Bulevardul Victor Babeș nr. 2, 300230, Timișoara, România
Tel: +40.374.40.44.98 / Fax: +40.256.401.179
Email: suport@imobiliare.ro
Luni - Vineri 08:00 - 20:00
Punct de lucru - București: Iride Business Park, Bld. Dimitrie
Pompeiu 9-9A, Clădirea B2B,
020335, Sector 2, București, România
Statia Soseaua Stefan cel Mare / Stadion Dinamo, linia 1, 5, 46, N123
aprox.
1095 m
Statia Bd. Lacul Tei, linia 182, 282, N123,5
aprox.
1099 m
Statia Metrou Piata Obor(M1)Metrorex
aprox.
554 m
Metrorex. Stația Obor (M1)(1989)(Fosta statie de tramvai subterana)
aprox.
615 m
Metrorex. Stația Ștefan cel Mare (M1)(1989)
aprox.
1038 m
Statia Soseaua Mihai Bravu, linia 14
aprox.
1268 m
Statia Metrou Piata Romana(M2)Metrorex
aprox.
1652 m
Statia Metrou Piata Romana(M2)Metrorex
aprox.
1654 m
Metrorex. Stația Piața Romană (M2)(1988)
aprox.
1664 m
Piata Romana (M2)
aprox.
1664 m
Metrorex. Stația Universitate (M2)(1987)
aprox.
1993 m
Statia Teiul Doamnei, linia 66
aprox.
1062 m
Statia Foisorul de Foc linii : 79,86
aprox.
1186 m
Statia Soseaua Mihai Bravu, linia 68,85
aprox.
1268 m
Statia Mihai Bravu; Liniile:69, 85,
aprox.
1283 m
Statia Soseaua Pantelimon 85, 69
aprox.
1447 m
Statia Calea Dorobantilor; Liniile:79, 86,
aprox.
1455 m
Statia Piata Iancului, linia 55
aprox.
1622 m
Statia Doamna Ghica, linia 66
aprox.
1640 m
Statia Piata Romana linii : 79,86
aprox.
1651 m
Statia Gara Obor, linia 69,85
aprox.
1819 m
Statia Doamna Ghica, linia 66
aprox.
1837 m
Gara Obor Bucuresti-EST
aprox.
1869 m
Scoala Postliceala Carol Davila (en)
aprox.
95 m
Liceul Tehnologic Special nr. 3
aprox.
377 m
Scoala Pentru Hipoacuzici
aprox.
388 m
Gradinita Magnolia
aprox.
465 m
Scoala Generala nr.28
aprox.
651 m
Scoala Generala nr. 28
aprox.
651 m
ȘCOALA DE ARTE ȘI MESERII NR. 3
aprox.
654 m
Colegiul National "Cantemir-Voda"
aprox.
669 m
Scoala de Arte si Meserii Nr. 3
aprox.
707 m
Scoala Nr. 50
aprox.
766 m
Scoala generala nr. 24
aprox.
836 m
Scoala nr. 24
aprox.
844 m
Grădinița (en)
aprox.
928 m
Școala Nr. 23 Sf. Silvestru (en)
aprox.
945 m
Scoala nr. 23
aprox.
946 m
Universitatea Spiru Haret - Facultatea de Medicina veterinara
aprox.
741 m
CROS - Universitatea Alternativa
aprox.
1082 m
UTCB-Laborator de Hidraulica si Protectia Mediului
aprox.
1392 m
Facultatea de Instalatii (en)
aprox.
1445 m
Facultatea de Hidrotehnica
aprox.
1460 m
ASE - Cibernetica
aprox.
1478 m
Universitatea Technică de Construcții (UTCB)
aprox.
1494 m
Universitatea Tehnica de Constructii Bucuresti
aprox.
1510 m
Athenaeum University (en)
aprox.
1518 m
ASE Cibernetica (en)
aprox.
1519 m
Facultatea de Constructii Civile, Industriale si Agricole
aprox.
1520 m
Universitatea Atenaeum
aprox.
1523 m
Universitatea din Bucuresti - Facultatea de Stiinte Politice
aprox.
1528 m
ASE - Facultatea de Comert
aprox.
1535 m
Facultatea de Constructii Civile
aprox.
1538 m
Gradinita numarul 8
aprox.
741 m
Gradinita nr. 138 cu program prelungit
aprox.
877 m
Gradinita numarul 135
aprox.
946 m
Gradinita nr. 135
aprox.
952 m
Gradinita numarul 133
aprox.
1006 m
Gradinita numarul 233
aprox.
1030 m
Gradinita numarul 257
aprox.
1058 m
Gradinita Numarul 7
aprox.
1125 m
Gradinita nr. 7
aprox.
1147 m
Gradinita Nr. 234 - Zori de zi
aprox.
1150 m
Gradinita Ioanid
aprox.
1208 m
Ioanid
aprox.
1216 m
Gradinita
aprox.
1232 m
Coccinelle
aprox.
1330 m
Gradinita Sakura
aprox.
1376 m
Stock Market
aprox.
210 m
Mega Image Supermarket
aprox.
244 m
Mega Image Lizeanu Non-Stop
aprox.
251 m
Mega Image
aprox.
515 m
Mega Image Fainari
aprox.
577 m
Mega Image
aprox.
641 m
Mega Image
aprox.
703 m
Mega Image
aprox.
733 m
Bucur Obor
aprox.
753 m
Mega Image Concept Store
aprox.
825 m
Complex Comercial OBOR
aprox.
903 m
Mega Image
aprox.
906 m
Spectrum
aprox.
1024 m
Cristim
aprox.
1028 m
Kaufland
aprox.
1051 m
"METROPLIS CENTER"
aprox.
1599 m
Parcare
aprox.
405 m
Parcare
aprox.
489 m
Parcare
aprox.
489 m
Parcare
aprox.
593 m
Parcare
aprox.
597 m
Parcare
aprox.
611 m
Parcare
aprox.
697 m
Parcare
aprox.
789 m
Parcare
aprox.
801 m
Parcare
aprox.
804 m
Parcare
aprox.
841 m
Parcare
aprox.
843 m
Parcare privata
aprox.
868 m
Parcare
aprox.
907 m
Parcare
aprox.
909 m
Respawn B
aprox.
472 m
Etaj 1 - Hala CQB
aprox.
554 m
Gradinita
aprox.
558 m
Parter - Hala mare
aprox.
561 m
Respawn A
aprox.
584 m
Stadionul Dinamo
aprox.
1264 m
Teren sportiv
aprox.
1279 m
Teren sportiv
aprox.
1312 m
Teren sportiv
aprox.
1312 m
Teren sportiv
aprox.
1363 m
Teren sportiv
aprox.
1373 m
Teren sportiv
aprox.
1384 m
Teren sportiv
aprox.
1555 m
ICSIM
aprox.
1718 m
Teren sportiv
aprox.
1726 m
Parc
aprox.
519 m
Parc
aprox.
521 m
Parc
aprox.
572 m
Parc
aprox.
606 m
Rond
aprox.
633 m
Parculet
aprox.
641 m
Obor Park (en)
aprox.
815 m
Loc de joaca
aprox.
820 m
Parcul Circului(1961)
aprox.
822 m
PARC
aprox.
824 m
Parcul Obor
aprox.
837 m
Parc
aprox.
848 m
Cosmos Party
aprox.
855 m
Parcul Pasarari
aprox.
871 m
Parcul Pasarari
aprox.
871 m
Piata Bucur Obor
aprox.
692 m
Piata Latina
aprox.
1456 m
Piata Iancului
aprox.
1680 m
Piața Romană
aprox.
1684 m
Piata Rosetti
aprox.
1837 m
Unitatea 141
aprox.
160 m
Farmacia Humanitas
aprox.
161 m
Flavona
aprox.
188 m
Farmacia Punkt
aprox.
210 m
Catena
aprox.
214 m
Belladonna 43
aprox.
255 m
Richter
aprox.
288 m
Mako
aprox.
293 m
Catena
aprox.
296 m
Farmacia Nr. 3 - Centrofarm
aprox.
298 m
Sensiblu Spitalul Colentina
aprox.
359 m
Pharma Life
aprox.
375 m
Farmaciile Reteta
aprox.
416 m
Help Net Farma
aprox.
470 m
Sensiblu
aprox.
525 m
PAVILIONUL A
aprox.
337 m
Centrul de Sanatate RATB
aprox.
364 m
Centrul de Sanatate al RATB
aprox.
364 m
PAVILIONUL B
aprox.
381 m
PAVILIONUL F
aprox.
422 m
Pavilonul C
aprox.
428 m
PAVILIONUL E
aprox.
430 m
Sectia Cardiologie
aprox.
439 m
Pavilion D - Policlinica Grozovici
aprox.
443 m
PAVILIONUL D
aprox.
457 m
PAVILIONUL G
aprox.
472 m
PAVILIONUL I
aprox.
497 m
Clinica de Boli Profesionale
aprox.
508 m
Centrul Medical Hiperdia
aprox.
509 m
PAVILIONUL H
aprox.
509 m
La Taverna Bar & Grill
aprox.
231 m
Kebab Mania
aprox.
261 m
A la Turka Gratar
aprox.
287 m
Marele Zid
aprox.
447 m
Spring Time (en)
aprox.
451 m
Spring Time
aprox.
456 m
Templul Soarelui
aprox.
457 m
Restaurant chinezesc "Templul soarelui"
aprox.
472 m
Casa Jienilor
aprox.
475 m
Restaurant Casa Jienilor
aprox.
487 m
Amore Trattoria
aprox.
496 m
Templul Soarelui
aprox.
509 m
San Marino
aprox.
516 m
Fostul InesBurger
aprox.
517 m
Little City
aprox.
527 m
E... Varza
aprox.
557 m
La Baraca
aprox.
596 m
MIM Bistro
aprox.
943 m
Alan Dala
aprox.
950 m
Lokal
aprox.
1092 m
Cup & Cake
aprox.
1098 m
Trei Betivi
aprox.
1187 m
Antic Bar
aprox.
1291 m
ACAB Pub
aprox.
1295 m
Voltage Bar
aprox.
1302 m
RSS Pub
aprox.
1452 m
Zappa Rock & More
aprox.
1461 m
Piua Book Bar
aprox.
1467 m
Geo Bar
aprox.
1502 m
Frame
aprox.
1622 m
Slot Cafe
aprox.
633 m
Cappucini
aprox.
792 m
Shiva
aprox.
927 m
Smart Change
aprox.
955 m
Ganesha Cafe
aprox.
1136 m
OstrawVegan
aprox.
1194 m
Caffe Tabiet
aprox.
1274 m
Cafe Lautrec
aprox.
1291 m
Hathor Cafe
aprox.
1371 m
Tana de lupo
aprox.
1374 m
Tucano Coffee
aprox.
1437 m
5 To Go Lahovari
aprox.
1438 m
Tucano Coffee - Dorobanti
aprox.
1440 m
Music Rooms Cafe
aprox.
1458 m
Mon Amour
aprox.
1460 m
Open Pub
aprox.
925 m
Restaurant-pizzerie BONA DA ELENA
aprox.
1031 m
Waldo's
aprox.
1050 m
Smart's Pub & Bistro
aprox.
1089 m
Terasa Rustica Foisor
aprox.
1229 m
Bluzz
aprox.
1295 m
Panik & Pub
aprox.
1321 m
OLD NICK PUB
aprox.
1452 m
Studio Martin
aprox.
1548 m
Le Boutique Food Concept Store
aprox.
1640 m
Have a Cigar
aprox.
1679 m
La Pierde Tren
aprox.
1905 m
Club Surubelnita
aprox.
1936 m
Sucursala ING Bank (en)
aprox.
150 m
UniCredit Bank - Ag. Lizeanu
aprox.
151 m
ING Stefan cel Mare - Lizeanu
aprox.
170 m
BRD Lizeanu
aprox.
185 m
BCR
aprox.
185 m
Raiffeisen Bank - Agentia Lizeanu
aprox.
211 m
Banca Romaneasca
aprox.
266 m
Banca Transilvania - Ag. Lizeanu
aprox.
312 m
Credit Europe Bank
aprox.
520 m
Credit Europe Bank
aprox.
570 m
Credit Europe Bank
aprox.
576 m
Libra Bank MOSILOR
aprox.
577 m
BancPost
aprox.
577 m
Raiffaisen bank
aprox.
581 m
Banc Post
aprox.
587 m
Zona Ștefan cel Mare - Dacia - Eminescu - Armenească este destul de bine conectată cu alte cartiere din București prin intermediul mijloacelor de transport în comun. Printre acestea amintim autobuzul 605 pe care îl poți lua pentru a ajunge la mall-ul Băneasa Shopping City, tramvaiul 16 care te poate ajuta să ajungi la Piața Sf. Vineri și troleibuzul 86 care oferă o legătură directă cu Gara de Nord. Mai multe stații de metrou sunt și ele disponibile în apropiere. Este vorba despre Ștefan cel Mare și Obor, aflate pe magistrala 1 Dristor - Pantelimon, și despre Piața Romană și Universitate situate pe traseul magistralei 2 Berceni-Pipera. Consultă harta pentru a afla poziționarea exactă a stațiilor mijloacelor de transport în comun.
În zona Ștefan cel Mare - Dacia - Eminescu - Armenească vei găsi mai multe unități de învățământ, de stat și private. Amintim astfel Colegiul Național Școala Centrală de lângă Parcul Grădina Icoanei, Colegiul Național "Spiru Haret" de pe Strada Italiană, Colegiul Național "Cantemir Vodă" și Liceul Economic "Virgil Madgearu", ambele situate pe Bulevardul Dacia. Școala Sanitară Postliceală "Carol Davila" se află și ea în această zonă, iar Academia de Studii Economice din București poate fi găsită în apropiere, la Piața Romană. Consultă harta pentru a vedea care vor fi cele mai apropiate grădinițe, școli și licee de viitoarea ta locuință.
În această zonă vei găsi, în principal, magazine mici și câteva supermarketuri. La intersecția dintre Bulevardul Dacia și Strada Vasile Lascăr vei avea la dispoziție Piața Gemeni și un concept store Mega Image. Cel mai apropiat mall este situat în zona Obor. Este vorba despre Veranda Mall, unul dintre cele mai noi astfel de centre comerciale din București. Tot aici găsești magazinul Bucur Obor și o piață. Cu mașina poți ajunge destul de rapid și la mall-ul Promenada sau la complexul comercial cu magazin Kaufland și Carrefour Market de pe Strada Barbu Văcărescu. Consultă harta și află ce alte opțiuni mai ai aproape de viitoarea ta casă, dar și în împrejurimi.
Îți recomandăm să verifici dacă există posibilitatea închirierii unui loc de parcare în apropierea locuinței de care ești interesat. Poți face acest lucru apelând la Serviciul Parcări din cadrul ADP Sector 2. Atunci îți aducem în atenție faptul că Bulevardul Dacia, Strada Mihai Eminescu și Strada Polonă sunt unele dintre cele mai circulate din această zonă. Trafic intens vei întâlni, totodată, la intersecția dintre Calea Dorobanți, Bulevardul Dacia și Strada Mihai Eminescu. Aglomerație vei găsi și pe Bulevardul Ștefan cel Mare, mai ales la orele de vârf și în zilele în care se organizează evenimente sportive în cadrul stadionului Dinamo. Consultă harta și vezi unde se găsesc principalele parcări din această zonă.
În zona Ștefan cel Mare - Dacia - Eminescu - Armenească se organizează periodic diferite evenimente, de la ateliere, la festivaluri și demonstrații de artă stradală. Dacă te vei muta în această parte a orașului, vei avea la doi pași de casă mai multe ceainării, restaurante, spații unde se organizează jocuri de tip escape room și trei teatre - Țăndărică, Metropolis și Bulandra. Pentru evenimente culturale și seri de film vei putea merge pe Bulevardul Dacia, la Institutul Francez din București. Ajungi repede și în centru, unde poți fi spectatorul unei piese puse în scenă de actorii Teatrului Național București. Parcurile Grădina Icoanei și Ioanid, deși sunt destul de restrânse ca suprafață, sunt unele dintre cele mai frumoase din această parte a orașului. Totodată, în nordul acestei zone, în imediata apropiere a Șoselei Ștefan cel Mare, vei găsi Circul Metropolitan București și parcul acestuia, iar în vecinătatea lor Stadionul Dinamo și complexul său sportiv. Nu uita, totodată, că din această zonă vei ajunge destul de rapid în Centrul Vechi, unde pe lângă terase și restaurante găsești și câteva obiective turistice care merită vizitate măcar o dată. Află ce alte puncte de interes găsești în zona Ștefan cel Mare - Dacia - Eminescu - Armenească și din vecinătatea acesteia. Consultă harta.
Dacă te vei muta în această zonă, vei avea la dispoziție mai multe spitale și clinici private. Printre acestea se numără Spitalul Clinic Dr. Ion Cantacuzino din zona Pieței Gemeni și Spitalul Ion Stroia . Alte unități sanitare din vecinătate sunt Spitalul Clinic Colentina, Spitalul Sf. Ștefan, Spitalul Clinic de Urgență București (cunoscut și ca Floreasca) și Spitalul Euroclinic din rețeaua privată de sănătate Regina Maria. Toate acestea sunt concentrate în nordul zonei Ștefan cel Mare - Dacia - Eminescu - Armenească, în vecinătatea Stadionului Dinamo și a Parcului Circului. Vezi pe hartă localizarea exactă a unităților medicale de mai sus.
Presărate pe străzile din această zonă găsești mai multe terase și restaurante mici. Câteva dintre cele mai cochete se află în vechiul cartier Armenesc. De aici ajungi extrem de repede și în Centrul Vechi al orașului, pentru mai multă diversitate. Fiind atât de aproape de centrul orașului, vei avea la dispoziție extrem de multe opțiuni. Restaurantele și cafenelele din Dorobanți sau de pe Calea Floreasca pot fi cu siguranță pe gustul tău. Dacă vrei să faci și o plimbare, să admiri arhitectura frumoasă a vechilor clădiri din București și să te oprești la o cafea sau la o prăjitură, atunci Calea Victoriei poate fi ideală. Pentru o mică gustare sau un meniu fast food ai mai multe variante în zona Obor, iar dacă te grăbești atunci poți încerca drive through-ul McDonald"™s de pe Strada Barbu Văcărescu. Aruncă o privire pe hartă și vezi ce alte restaurante, terase sau cafenele ai în zonă.
Găsești mai multe sucursale bancare și ATM-uri în special pe Șoseaua Ștefan cel Mare. Aruncă o privire pe hartă și vezi ce alte opțiuni găsești în apropierea viitoarei tale locuințe.
Înainte să pleci...
Ești sigur că ai văzut și aceste proprietăți?
479.999 €
București, Dacia
9 camere
240 mp
120 mp teren
480.000 €
București, Dacia
7 camere
250 mp
120 mp teren
450.000 €
București, Dacia
11 camere
270 mp
110 mp teren
Creează alertă
Salvează căutarea ca să primești pe email ultimele anunțuri publicate
Case individuale cu 4+ camere de vânzare în zona Dacia, Sector 2
Cere detalii prin email
*
*
*
*
Detaliile tale de contact vor fi partajate cu Trust Group Estate
Preț total2.311.188 RON (453.601 €)
Costuri cu achiziția18.348 RON
Preț de achiziție2.292.840 RON
Costuri cu achiziția18.348 RON
Comision agenție Întreabă agenţia
Onorariu notarial14.909 RON
Taxă înscriere OCPI3.439 RON
Preț de achiziție2.292.840 RON
Preț locuință2.292.840 RON
TVA 0%Inclus în prețul cerut
Cost total369.372 RON (72.494 €)
Avans (15%)343.926 RON
Cost achitat în prima lună4.075 RON
Costuri cu achiziția21.371 RON
Cost achitat în prima lună4.075 RON
Comision analiză dosar
400 RON - 900 RON
Taxă evaluare imobil(până la)
900 RON
Rata lunară (variabilă)10.213 RON
Asigurare anuală imobil2.293 RON
Arhivă electronică102 RON
Poliță PAD130 RON
Asigurare de viață/lună Costul este variabil. În funcție de banca aleasă, procentul variază între 0.0259% și 0.035% din soldul creditului.
Costuri cu achiziția21.371 RON
Comision agenție Întreabă agenţia
Onorariu notarial14.909 RON
Taxă întabulare OCPI3.439 RON
Autentificare contract credit3.023 RON
Preț de achiziție2.292.840 RON
Preț locuință2.292.840 RON
TVA 0%Inclus în prețul cerut
Preț de achiziție2.292.840 RON
Preț locuință2.292.840 RON
TVA 0%
Inclus în prețul cerut
Avans minim1.686.511 RON
Credit pe 30 de ani606.329 RON
Cost achitat în prima lună
Taxa evaluare imobil(până la)
900 RON
Rata lunară (variabilă)4.260 RON
Depozit colateral12.780 RON
Comision de garantare FNGCIMM191 RON
Asigurare anuală imobil2.293 RON
Poliță PAD130 RON
Tarif arhivă electronică102 RON
Costuri adiționale2.433 RON + taxe notariale
Asigurare viață și complexă (opțională)Costul este variabil. În funcție de banca aleasă, procentul variază între 0.0259% și 0.035% din soldul creditului
Onorariu notarialconform tarif notarial
Taxă întabulare OCPI2.433 RON
i
Toate valorile de mai sus sunt estimative și nu reprezintă în mod obligatoriu costurile exacte pe care le veți primi de la companiile/instituțiile prin care veți încheia tranzacția.