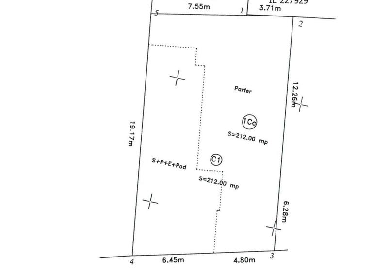
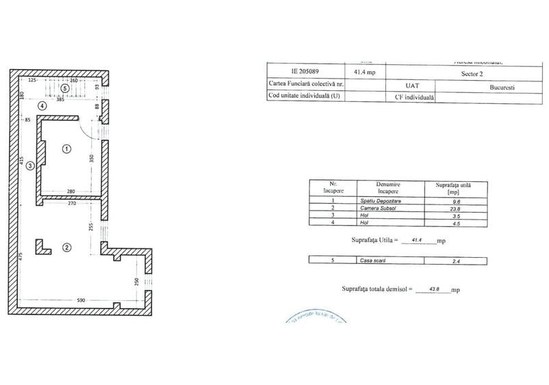
Va propunem spre vanzare o proprietate deosebita situata in inima zonei Dacia, ideala pentru investitie sau sediu reprezentativ. Vila are o structura de tip Demisol + Parter + 1 Etaj + Mansarda, oferind o suprafata utila generoasa de 355 mp si un total de 9 camere spatioase si 3 grupuri sanitare.
Imobilul a beneficiat de un proces complet de renovare, reabilitare si consolidare, ultima renovare fiind realizata in anul 2017. Din punct de vedere tehnic, cladirea este dotata cu doua centrale termice pe gaz si curent trifazic, fiind pregatita pentru orice tip de activitate (birouri, clinica, regim hotelier sau rezidential). Toate actele sunt in regula, iar disponibilitatea este imediata. Locatia premium si starea impecabila a cladirii garanteaza un randament excelent pe termen lung. Va asteptam la vizionare pentru a descoperi potentialul acestei proprietati unice.
Sediul central - Timișoara
Bulevardul Victor Babeș nr. 2, 300230, Timișoara, România
Tel: +40.374.40.44.98 / Fax: +40.256.401.179
Email: suport@imobiliare.ro
Luni - Vineri 08:00 - 20:00
Punct de lucru - București: Iride Business Park, Bld. Dimitrie
Pompeiu 9-9A, Clădirea B2B,
020335, Sector 2, București, România
CONTACT
Sediul central - Timișoara
Bulevardul Victor Babeș nr. 2, 300230, Timișoara, România
Tel: +40.374.40.44.98 / Fax: +40.256.401.179
Email: suport@imobiliare.ro
Luni - Vineri 08:00 - 20:00
Punct de lucru - București: Iride Business Park, Bld. Dimitrie
Pompeiu 9-9A, Clădirea B2B,
020335, Sector 2, București, România
Metrorex. Stația Obor (M1)(1989)(Fosta statie de tramvai subterana)
aprox.
1109 m
Metrorex. Stația Ștefan cel Mare (M1)(1989)
aprox.
1141 m
Statia Metrou Piata Romana(M2)Metrorex
aprox.
1156 m
Metrorex. Stația Piața Romană (M2)(1988)
aprox.
1182 m
Piata Romana (M2)
aprox.
1182 m
Statia Metrou Piata Romana(M2)Metrorex
aprox.
1196 m
Metrorex. Stația Universitate (M2)(1987)
aprox.
1216 m
Universitate (M2)
aprox.
1279 m
Statia Metrou Piata Universitatii(M2)Metrorex
aprox.
1287 m
Statia Metrou Piata Universitatii(M2)Metrorex
aprox.
1323 m
Statia Soseaua Mihai Bravu, linia 14
aprox.
1395 m
Metrorex. Stația Piața Unirii 2 (M2) (en)
aprox.
1869 m
Piata Unirii 2
aprox.
1971 m
Metrorex. Stația Piața Unirii 2 (M2)(1986)
aprox.
1977 m
Colegiul National "Cantemir-Voda"
aprox.
131 m
Grădinița (en)
aprox.
310 m
Scoala nr. 23
aprox.
343 m
Școala Nr. 23 Sf. Silvestru (en)
aprox.
349 m
Cursuri Paleologu
aprox.
419 m
Gradinita Magnolia
aprox.
498 m
Scoala de Arte si Meserii Nr. 3
aprox.
505 m
ȘCOALA DE ARTE ȘI MESERII NR. 3
aprox.
518 m
Scoala Pentru Hipoacuzici
aprox.
579 m
Școala Centrală din Bucuresti
aprox.
581 m
Scoala Centrala
aprox.
587 m
Liceul Tehnologic Special nr. 3
aprox.
590 m
Scoala Ajutatoare nr. 1
aprox.
596 m
Scoala de muzica nr. 4
aprox.
629 m
Colegiul National Bilingv "George Cosbuc"
aprox.
689 m
Gradinita numarul 257
aprox.
303 m
Gradinita numarul 8
aprox.
317 m
Gradinita numarul 133
aprox.
475 m
Gradinita Ioanid
aprox.
696 m
Ioanid
aprox.
714 m
Gradinita
aprox.
765 m
Gradinita nr.203 (fosta Clementa)
aprox.
853 m
Gradinita nr. 203 program prelungit
aprox.
858 m
Gradinita nr. 138 cu program prelungit
aprox.
908 m
Gradinita nr.4 "Lizuca"
aprox.
931 m
Gradinita Magica
aprox.
1039 m
Gradinita nr. 85
aprox.
1126 m
Amalia's Kindergarten (en)
aprox.
1221 m
Gradinita nr. 116
aprox.
1281 m
Gradinita nr. 252 cu program prelungit
aprox.
1282 m
CROS - Universitatea Alternativa
aprox.
836 m
Rectoratul UMF "Carol Davila"
aprox.
897 m
Universitatea din Bucuresti - Facultatea de Stiinte Politice
aprox.
902 m
Facultatea de Stiinte Politice
aprox.
912 m
University of Bucharest - Faculty of Foreign Languages and Literatures (en)
aprox.
994 m
Centrul de Limbi Straine Ariel
aprox.
1001 m
Facultatea de Farmacie
aprox.
1045 m
Facultatea de Farmacie/Pharmacy Faculty
aprox.
1051 m
ASE - Cibernetica
aprox.
1128 m
ASE - Facultatea de Comert
aprox.
1160 m
ASE Cibernetica (en)
aprox.
1162 m
Facultatea de Instalatii (en)
aprox.
1212 m
Amfiteatrele ASE
aprox.
1250 m
ASE - Cladirea Cihoschi
aprox.
1260 m
Academia de Studii Economice
aprox.
1270 m
Mega Image Concept Store
aprox.
93 m
Mega Image
aprox.
466 m
Mega Image - Icoanei
aprox.
468 m
OK Non-stop Supermarket (en)
aprox.
562 m
OK Non-Stop
aprox.
562 m
Mega Image
aprox.
603 m
Mega Image Fainari
aprox.
839 m
Mega Image Paleologu
aprox.
898 m
Bacania Coco
aprox.
916 m
Mega Image Supermarket
aprox.
980 m
Stock Market
aprox.
983 m
Mega Image Lizeanu Non-Stop
aprox.
997 m
Mega Image Rosetti Non-Stop
aprox.
1055 m
Mega Image
aprox.
1056 m
ilanplant
aprox.
1070 m
"METROPLIS CENTER"
aprox.
1501 m
Parcare
aprox.
132 m
Parcare
aprox.
770 m
Parcare
aprox.
812 m
Parcare
aprox.
861 m
Parcare
aprox.
898 m
Parcare
aprox.
901 m
Parcare
aprox.
979 m
Parcare cu plata
aprox.
996 m
Parcare
aprox.
1006 m
Parcare
aprox.
1009 m
Parcare
aprox.
1058 m
Parcare
aprox.
1064 m
Parcare
aprox.
1088 m
Parcare
aprox.
1112 m
Parcare
aprox.
1117 m
Parc
aprox.
141 m
Parc
aprox.
315 m
Parc
aprox.
322 m
Parc
aprox.
525 m
Parc
aprox.
548 m
60 Minutes
aprox.
624 m
Parcul Ion Voicu
aprox.
634 m
Parcul "Ioanid"
aprox.
642 m
Gradina Icoanei
aprox.
702 m
Parcul "Grădina Icoanei"
aprox.
710 m
Parc
aprox.
753 m
Parcul Izvorul Rece
aprox.
778 m
Parcul Izvorul Rece
aprox.
778 m
Small park (en)
aprox.
910 m
Parc
aprox.
910 m
Piata Latina
aprox.
748 m
Piata Rosetti
aprox.
1039 m
Piata Bucur Obor
aprox.
1179 m
Piata Universitatii
aprox.
1231 m
Piața Romană
aprox.
1287 m
Piata Revolutiei
aprox.
1329 m
Piața Drapelului (Tricolorului)
aprox.
1576 m
Piata Roma
aprox.
1604 m
Piata Timpului
aprox.
1674 m
Piata Iancului
aprox.
1699 m
Piața Sfântul Anton
aprox.
1804 m
Respawn B
aprox.
1216 m
Etaj 1 - Hala CQB
aprox.
1300 m
Parter - Hala mare
aprox.
1305 m
Gradinita
aprox.
1318 m
Respawn A
aprox.
1342 m
Stadionul Dinamo
aprox.
1418 m
Teren sportiv
aprox.
1552 m
Teren sportiv
aprox.
1558 m
Teren sportiv
aprox.
1574 m
Teren sportiv
aprox.
1594 m
Teren sportiv
aprox.
1622 m
Teren sportiv
aprox.
1627 m
Teren sportiv
aprox.
1645 m
Teren sportiv
aprox.
1698 m
Teren sportiv
aprox.
1981 m
Centrul medical Sanatatea TA
aprox.
24 m
Optim Sano
aprox.
44 m
Clinica de oftalmologie Ama Optimex
aprox.
120 m
Cabinet Gineco
aprox.
197 m
Institutul de Diabet NCPaulescu (en)
aprox.
210 m
Spitalul Cantacuzino
aprox.
250 m
SERVICIUL DE AMBULANTA BUCURESTI-ILFOV
aprox.
293 m
Dacia Medical Center
aprox.
374 m
Clinica de 10
aprox.
560 m
Clinica Audionova
aprox.
619 m
INGG Ana Aslan Spatarului nr. 15 (en)
aprox.
644 m
Laurus Medical
aprox.
668 m
Clinica Reumatologie "Dr. Ion Stoia"
aprox.
687 m
Puls
aprox.
787 m
ProctoMed
aprox.
816 m
Colvimed
aprox.
172 m
Farmacia Artafarm
aprox.
243 m
Sensiblu
aprox.
250 m
Farmacia Ana Maria
aprox.
439 m
Farmacia Belladonna 38
aprox.
507 m
Farmadex Non-Stop
aprox.
540 m
Help Net Farma
aprox.
555 m
Farmacia Carmen
aprox.
556 m
Sensiblu
aprox.
574 m
Catena Farmacie
aprox.
609 m
Farmacia Alissa Retail
aprox.
648 m
Farmacie
aprox.
683 m
Farmaciamerk 2 Pharma
aprox.
714 m
Farmacia Artafarm
aprox.
834 m
Farmacia Apifarm
aprox.
849 m
Torega
aprox.
89 m
Luna
aprox.
110 m
Newton Restaurant (en)
aprox.
111 m
Rotiseria Dacia 131
aprox.
206 m
Four seasons
aprox.
230 m
Il Destino
aprox.
250 m
Unico Vero Pizza
aprox.
276 m
El Vino Tapas & Wine
aprox.
278 m
Saphir
aprox.
282 m
Ristorante Interbellico
aprox.
287 m
Templul Soarelui
aprox.
295 m
Amore Trattoria
aprox.
309 m
Nicoresti
aprox.
312 m
Nicorești (en)
aprox.
313 m
cam aici ar fi Restaurant Lotca
aprox.
405 m
MIM Bistro
aprox.
172 m
Trei Betivi
aprox.
393 m
E... Varza
aprox.
581 m
Alan Dala
aprox.
623 m
Geo Bar
aprox.
745 m
Lokal
aprox.
769 m
Que Pasa
aprox.
875 m
Antic Bar
aprox.
883 m
Voltage Bar
aprox.
890 m
Piua Book Bar
aprox.
908 m
Dianei Patru
aprox.
938 m
ACAB Pub
aprox.
1042 m
RSS Pub
aprox.
1078 m
Macaz Bar Teatru Coop
aprox.
1121 m
Zappa Rock & More
aprox.
1136 m
Smart's Pub & Bistro
aprox.
307 m
Waldo's
aprox.
575 m
Bluzz
aprox.
687 m
Terasa Rustica Foisor
aprox.
851 m
Have a Cigar
aprox.
885 m
OLD NICK PUB
aprox.
934 m
Open Pub
aprox.
945 m
Panik & Pub
aprox.
949 m
Le Boutique Food Concept Store
aprox.
988 m
Club Surubelnita
aprox.
1145 m
La Scena
aprox.
1301 m
Coloseum
aprox.
1382 m
Clock`s
aprox.
1390 m
Question Mark Social Club
aprox.
1432 m
Edgar`s Pub
aprox.
1435 m
Shiva
aprox.
643 m
Hobby Caffe & Shop
aprox.
730 m
Newton Caffe
aprox.
734 m
Vesuvio Cafe
aprox.
739 m
Smart Change
aprox.
743 m
Lente Arcului
aprox.
760 m
Carla Caffe
aprox.
791 m
Hathor Cafe
aprox.
797 m
Lente Praporgescu
aprox.
838 m
Cafe Lautrec
aprox.
883 m
5 To Go Lahovari
aprox.
918 m
T-zero
aprox.
948 m
T-zone
aprox.
948 m
Gradina OAR
aprox.
989 m
OstrawVegan
aprox.
1003 m
BRD Vasile Lascar
aprox.
108 m
Raiffeisen Bank - Agentia Mosilor
aprox.
525 m
Banca Transilvania - Ag. Mosilor
aprox.
534 m
ING Mosilor
aprox.
547 m
BCR
aprox.
549 m
Leumi Bank
aprox.
549 m
Alpha Bank
aprox.
554 m
Raiffaisen bank
aprox.
585 m
Libra Bank - Sediul Central
aprox.
589 m
Libra Bank Sediul Central
aprox.
600 m
BRD Mosilor
aprox.
601 m
BRD
aprox.
602 m
Piraeus Bank
aprox.
614 m
Emporki Bank
aprox.
618 m
Unicredit Tiriac bank
aprox.
619 m
Zona Ștefan cel Mare - Dacia - Eminescu - Armenească este destul de bine conectată cu alte cartiere din București prin intermediul mijloacelor de transport în comun. Printre acestea amintim autobuzul 605 pe care îl poți lua pentru a ajunge la mall-ul Băneasa Shopping City, tramvaiul 16 care te poate ajuta să ajungi la Piața Sf. Vineri și troleibuzul 86 care oferă o legătură directă cu Gara de Nord. Mai multe stații de metrou sunt și ele disponibile în apropiere. Este vorba despre Ștefan cel Mare și Obor, aflate pe magistrala 1 Dristor - Pantelimon, și despre Piața Romană și Universitate situate pe traseul magistralei 2 Berceni-Pipera. Consultă harta pentru a afla poziționarea exactă a stațiilor mijloacelor de transport în comun.
În zona Ștefan cel Mare - Dacia - Eminescu - Armenească vei găsi mai multe unități de învățământ, de stat și private. Amintim astfel Colegiul Național Școala Centrală de lângă Parcul Grădina Icoanei, Colegiul Național "Spiru Haret" de pe Strada Italiană, Colegiul Național "Cantemir Vodă" și Liceul Economic "Virgil Madgearu", ambele situate pe Bulevardul Dacia. Școala Sanitară Postliceală "Carol Davila" se află și ea în această zonă, iar Academia de Studii Economice din București poate fi găsită în apropiere, la Piața Romană. Consultă harta pentru a vedea care vor fi cele mai apropiate grădinițe, școli și licee de viitoarea ta locuință.
În această zonă vei găsi, în principal, magazine mici și câteva supermarketuri. La intersecția dintre Bulevardul Dacia și Strada Vasile Lascăr vei avea la dispoziție Piața Gemeni și un concept store Mega Image. Cel mai apropiat mall este situat în zona Obor. Este vorba despre Veranda Mall, unul dintre cele mai noi astfel de centre comerciale din București. Tot aici găsești magazinul Bucur Obor și o piață. Cu mașina poți ajunge destul de rapid și la mall-ul Promenada sau la complexul comercial cu magazin Kaufland și Carrefour Market de pe Strada Barbu Văcărescu. Consultă harta și află ce alte opțiuni mai ai aproape de viitoarea ta casă, dar și în împrejurimi.
Îți recomandăm să verifici dacă există posibilitatea închirierii unui loc de parcare în apropierea locuinței de care ești interesat. Poți face acest lucru apelând la Serviciul Parcări din cadrul ADP Sector 2. Atunci îți aducem în atenție faptul că Bulevardul Dacia, Strada Mihai Eminescu și Strada Polonă sunt unele dintre cele mai circulate din această zonă. Trafic intens vei întâlni, totodată, la intersecția dintre Calea Dorobanți, Bulevardul Dacia și Strada Mihai Eminescu. Aglomerație vei găsi și pe Bulevardul Ștefan cel Mare, mai ales la orele de vârf și în zilele în care se organizează evenimente sportive în cadrul stadionului Dinamo. Consultă harta și vezi unde se găsesc principalele parcări din această zonă.
În zona Ștefan cel Mare - Dacia - Eminescu - Armenească se organizează periodic diferite evenimente, de la ateliere, la festivaluri și demonstrații de artă stradală. Dacă te vei muta în această parte a orașului, vei avea la doi pași de casă mai multe ceainării, restaurante, spații unde se organizează jocuri de tip escape room și trei teatre - Țăndărică, Metropolis și Bulandra. Pentru evenimente culturale și seri de film vei putea merge pe Bulevardul Dacia, la Institutul Francez din București. Ajungi repede și în centru, unde poți fi spectatorul unei piese puse în scenă de actorii Teatrului Național București. Parcurile Grădina Icoanei și Ioanid, deși sunt destul de restrânse ca suprafață, sunt unele dintre cele mai frumoase din această parte a orașului. Totodată, în nordul acestei zone, în imediata apropiere a Șoselei Ștefan cel Mare, vei găsi Circul Metropolitan București și parcul acestuia, iar în vecinătatea lor Stadionul Dinamo și complexul său sportiv. Nu uita, totodată, că din această zonă vei ajunge destul de rapid în Centrul Vechi, unde pe lângă terase și restaurante găsești și câteva obiective turistice care merită vizitate măcar o dată. Află ce alte puncte de interes găsești în zona Ștefan cel Mare - Dacia - Eminescu - Armenească și din vecinătatea acesteia. Consultă harta.
Dacă te vei muta în această zonă, vei avea la dispoziție mai multe spitale și clinici private. Printre acestea se numără Spitalul Clinic Dr. Ion Cantacuzino din zona Pieței Gemeni și Spitalul Ion Stroia . Alte unități sanitare din vecinătate sunt Spitalul Clinic Colentina, Spitalul Sf. Ștefan, Spitalul Clinic de Urgență București (cunoscut și ca Floreasca) și Spitalul Euroclinic din rețeaua privată de sănătate Regina Maria. Toate acestea sunt concentrate în nordul zonei Ștefan cel Mare - Dacia - Eminescu - Armenească, în vecinătatea Stadionului Dinamo și a Parcului Circului. Vezi pe hartă localizarea exactă a unităților medicale de mai sus.
Presărate pe străzile din această zonă găsești mai multe terase și restaurante mici. Câteva dintre cele mai cochete se află în vechiul cartier Armenesc. De aici ajungi extrem de repede și în Centrul Vechi al orașului, pentru mai multă diversitate. Fiind atât de aproape de centrul orașului, vei avea la dispoziție extrem de multe opțiuni. Restaurantele și cafenelele din Dorobanți sau de pe Calea Floreasca pot fi cu siguranță pe gustul tău. Dacă vrei să faci și o plimbare, să admiri arhitectura frumoasă a vechilor clădiri din București și să te oprești la o cafea sau la o prăjitură, atunci Calea Victoriei poate fi ideală. Pentru o mică gustare sau un meniu fast food ai mai multe variante în zona Obor, iar dacă te grăbești atunci poți încerca drive through-ul McDonald"™s de pe Strada Barbu Văcărescu. Aruncă o privire pe hartă și vezi ce alte restaurante, terase sau cafenele ai în zonă.
Găsești mai multe sucursale bancare și ATM-uri în special pe Șoseaua Ștefan cel Mare. Aruncă o privire pe hartă și vezi ce alte opțiuni găsești în apropierea viitoarei tale locuințe.
Înainte să pleci...
Ești sigur că ai văzut și aceste proprietăți?
650.000 €
București, Pache Protopopescu
8 camere
340 mp
277 mp teren
750.000 €
București, Dacia
9 camere
355 mp
215 mp teren
1.300.000 €
București, Matei Voievod
6 camere
435 mp
400 mp teren
879.000 €
București, Dacia
5 camere
135 mp
200 mp teren
Creează alertă
Salvează căutarea ca să primești pe email ultimele anunțuri publicate
Case individuale cu 4+ camere de vânzare în zona Dacia, Sector 2
Cere detalii prin email
*
*
*
*
Detaliile tale de contact vor fi partajate cu Impact Real Estate Advisors
Preț total3.850.798 RON (755.621 €)
Costuri cu achiziția28.649 RON
Preț de achiziție3.822.149 RON
Costuri cu achiziția28.649 RON
Comision agenție Întreabă agenţia
Onorariu notarial22.916 RON
Taxă înscriere OCPI5.733 RON
Preț de achiziție3.822.149 RON
Preț locuință3.822.149 RON
TVA 0%Inclus în prețul cerut
Cost total611.873 RON (120.064 €)
Avans (15%)573.323 RON
Cost achitat în prima lună5.604 RON
Costuri cu achiziția32.946 RON
Cost achitat în prima lună5.604 RON
Comision analiză dosar
400 RON - 900 RON
Taxă evaluare imobil(până la)
900 RON
Rata lunară (variabilă)17.026 RON
Asigurare anuală imobil3.822 RON
Arhivă electronică102 RON
Poliță PAD130 RON
Asigurare de viață/lună Costul este variabil. În funcție de banca aleasă, procentul variază între 0.0259% și 0.035% din soldul creditului.
Costuri cu achiziția32.946 RON
Comision agenție Întreabă agenţia
Onorariu notarial22.916 RON
Taxă întabulare OCPI5.733 RON
Autentificare contract credit4.297 RON
Preț de achiziție3.822.149 RON
Preț locuință3.822.149 RON
TVA 0%Inclus în prețul cerut
Preț de achiziție3.822.149 RON
Preț locuință3.822.149 RON
TVA 0%
Inclus în prețul cerut
Avans minim3.215.702 RON
Credit pe 30 de ani606.448 RON
Cost achitat în prima lună
Taxa evaluare imobil(până la)
900 RON
Rata lunară (variabilă)4.261 RON
Depozit colateral12.783 RON
Comision de garantare FNGCIMM319 RON
Asigurare anuală imobil3.822 RON
Poliță PAD130 RON
Tarif arhivă electronică102 RON
Costuri adiționale3.962 RON + taxe notariale
Asigurare viață și complexă (opțională)Costul este variabil. În funcție de banca aleasă, procentul variază între 0.0259% și 0.035% din soldul creditului
Onorariu notarialconform tarif notarial
Taxă întabulare OCPI3.962 RON
i
Toate valorile de mai sus sunt estimative și nu reprezintă în mod obligatoriu costurile exacte pe care le veți primi de la companiile/instituțiile prin care veți încheia tranzacția.