Vila individuala de vanzare, P+E+M, zona Dristor

689.000 €

Dristor, București

Nr. cam.:
7
Sup. utilă:
247 mp
Sup. teren:
329 mp
Tip prop.:
Individuală
  • • Comision 0%
  • • Locație aproximativă

Descriere casă

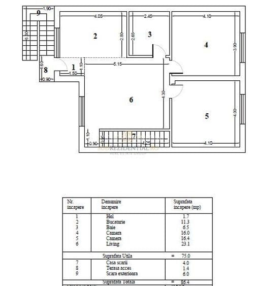
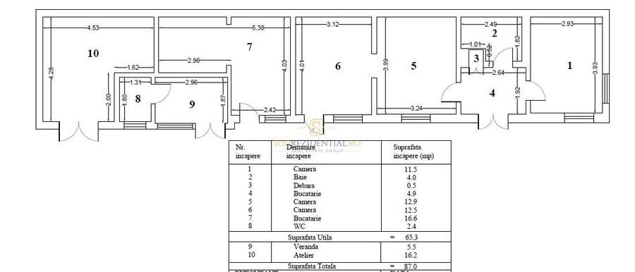
Vila Individuală P+E+M, formată din două corpuri de clădire cu suprafata utilata totala de 247 mp situată într-o zonă liniștită de case, la doar 5 minute de mers pe jos de stația de metrou Dristor (aprox. 400 m) Corp 1 (construit în 2011, structură beton și cărămidă) – suprafață utilă totală 160 mp: - Et 1 : 2 camere, living cu bucătărie open space, baie cu jacuzzi - Mansardă: 70 mp, dressing de 12 mp și spatiu depozitare (toate ****************** pentru inca o baie) Corp 2 (Parter) – suprafață utilă 87 mp: - 3 camere, hol, 2 bai, bucătărie + Atelier Suprafata totatala teren : 329 mp, cu deschidere de 9,18 ml. Proprietatea este excelent poziționată, aproape de parc IOR ( 13 minute de mers pe jos - 1 km), ParkLake Mall si unitati de invatamant. Curtea oferă un spațiu verde generos, cu magnolie matură, pini, castani, foișor și zonă de grătar – ideală pentru relaxare. Imobilul dispune de toate utilitățile și se pretează atât pentru locuință, cât și pentru birouri, sediu firmă, grădiniță/afterschool sau alte activități.
Citește mai mult Citește mai puțin
Parțial mobilat Grădină Curte Aer condiționat Calorifere Centrală proprie 2 Parcări

Detalii casă

ID anunț: XFQP1103T Copiat! 274999340 Copiat!
Actualizat în: 27 Aprilie 2026
Tip tranzacție: De vânzare prin agent
Suprafață desfășurată: 296 mp
Nr. bucătării: 2
Nr. băi: 3
Nr. terase: 1
Învelitoare acoperiș: Tabla
Structură rezistență: Beton
Regim înălțime: P+1E+M
Modalitate de plată: Cash sau Credit

Utilități

Pereți
Faianță Vopsea lavabilă
Podele
Gresie Parchet
Izolații termice
Exterior
Contorizare
Apometre Contor gaz
Electrocasnice
Hotă Mașină de spălat TV
Diverse
Jacuzzi
Utilități
Curent Apă Canalizare CATV Gaze Telefon
Internet
Cablu
Amenajare străzi
Iluminat stradal Mijloace de transport în comun Asfaltate
Comision
0%

Vecinătăți:

Parcul Alexandru Ioan Cuza

Disponibilitate proprietate:

Imediat

Puncte de interes

Mijloace transport
metro-station
Metrorex.Stația Dristor 1 (M1) , (M3)(1981)
Stații metrou aprox. 294 m
bus-station
Dristor 2
Stații autobuz aprox. 317 m
tram-station
Dristorului
Stații tramvai aprox. 331 m
trolleybus-station
statie troleu 70,92,79 (en)
Stații troleibuz aprox. 1299 m
Școală
kindergarten
Gradinita nr 67
Gradinițe aprox. 327 m
kindergarten
Grădinita nr. 67
Gradinițe aprox. 328 m
school
Scoala de muzica si arte plastice nr.5
Școli aprox. 384 m
university
Facultatea Științe Economice, Titu Maiorescu ( Facultatea Tatianei )
Universități aprox. 1204 m
Recreere
supermarket
Mega Image Dristor Non-Stop
Supermarket aprox. 171 m
park
Parc
Parcuri aprox. 188 m
sports-ground
Teren sportiv
Terenuri sport aprox. 544 m
mall
Bucharest, Calea Vitan nr. 8, Bl V51, near VITAN Mall
Mall aprox. 1576 m

Istoricul prețurilor

Acces la informații premium după autentificare
Login Gratuit

Detalii despre preț și costuri

Costuri cu achiziția

Fără credit
Credit ipotecar
Noua casă

i

Costuri adiționale mai puțin știute la achiziție: taxe notariale, comisioane etc.

Acces la informații premium după autentificare
Login Gratuit

Proprietăți similare

Casă individuală cu 10 camere în Calea Călărașilor
650.000 €
București, Calea Călărașilor
10 camere
196 mp
218 mp teren
Casă individuală cu 6 camere în Dristor
630.000 €
București, Dristor
6 camere
376 mp
450 mp teren
Casă individuală cu 11 camere în Dristor
630.000 €
București, Dristor
11 camere
285 mp
563 mp teren

Detalii de contact

SUDREZIDENTIAL.

Sebastian Iliescu Director Vanzari

SUDREZIDENTIAL.
PRO

Abonează-te la newsletter să fii primul care primește cele mai noi recomandări de proprietăți și sfaturi de la experți.

CONTACT

Creează alertă

Salvează căutarea ca să primești pe email ultimele anunțuri publicate

Case individuale cu 4+ camere de vânzare în zona Dristor, Sector 3