Areea Imobiliare va invita sa descoperiti la Pasajul Unirii, in inelul ULTRACENTRAL, o proprietate interesanta, intr-un cartier linistit si civilizat, o incursiune în eleganta Bucureștiului de altadata.
Va oferim spre vanzare PARTERUL INTREG + DEPENDINTE al unei vile interbelice S+P+1E+M .
ATENTIE: in paralel se vinde si etajul, astfel incat un cumparator interesat poate achizitiona INTREGUL IMOBIL .
Aceasta vila interbelica, construita in stil eclectic, reprezinta o oportunitate pentru cei care cauta un spatiu rezidential distins si generos, dar si un sediu profesional reprezentativ .
Imobilul necesita renovare, in interior si la fatada, de aici si accesibilitatea pretului.
Construit in 1938, are plansee de beton, subsolul si podul sunt uscate (podul a fost reparat).
Nu s-au facut modificari la structura cladirii (de exemplu, reconfigurari de spatiu). Imobilul nu este listat cu urgenta sau risc.
Vila a fost proiectata si construita pentru o bogata familie de negustori, combinand avantaje practice si bine gandite, cu arhitectura frumoasa, caracteristica perioadei. Dupa renovare, un viitor proprietar ar putea aprecia :
- camerele numeroase pe fiecare nivel = locuinta propriu-zisa + fostele dependinte de serviciu ;
- cele doua intrari separate pentru parter si etaj + usa pentru aprovizionare, la parter ;
- peretii cu inaltime de 3,70 m, oferind senzatia de larga respiratie + ferestrele mari, proprietatea fiind luminoasa indiferent de vreme ;
- parchetul din lemn de stejar, usile de epoca si sobele elegante, bine conservate, formand un ambient placut .
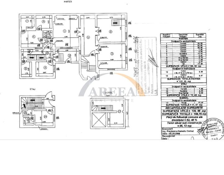
Configurare parter:
- locuinta propriu-zisa, in suprafata utila de 127,3 mp, formata din 5 camere, 2 bai, bucatarie si debara, dupa cum urmeaza: living - 23,3 mp; dormitor - 22,4 mp; dormitor - 20,1 mp; camera - 7,2 mp; camera - 4,6 mp; bucatarie - 10,5 mp ;
- dependinta in suprafata utila de 12,5 mp, astfel: camera - 7,8 mp, bucatarie - 2,3 mp, grup sanitar - 2,35 mp ;
- incapere subsol in exclusivitate: 17,1 mp ;
- partea de culoar si vestibul in indiviziune : 9,4 mp .
Curtea, subsolul si podul sunt in indiviziune.
Actele sunt pregatite, iar cadastrul conform.
Este o proprietate care merita investitia, avand avantajul dublu al LOCATIEI si al proiectului INTELIGENT .
Haideti sa readucem valoare acestui imobil frumos, practic si bine pozitionat! Va astept cu drag la vizionare. Detalii suplimentare si programari de luni pana duminica - raspund la tel .
Echipa Areea Imobiliare, mereu cu cele mai bune proprietati din piata !
Sediul central - Timișoara
Bulevardul Victor Babeș nr. 2, 300230, Timișoara, România
Tel: +40.374.40.44.98 / Fax: +40.256.401.179
Email: suport@imobiliare.ro
Luni - Vineri 08:00 - 20:00
Punct de lucru - București: Iride Business Park, Bld. Dimitrie
Pompeiu 9-9A, Clădirea B2B,
020335, Sector 2, București, România
CONTACT
Sediul central - Timișoara
Bulevardul Victor Babeș nr. 2, 300230, Timișoara, România
Tel: +40.374.40.44.98 / Fax: +40.256.401.179
Email: suport@imobiliare.ro
Luni - Vineri 08:00 - 20:00
Punct de lucru - București: Iride Business Park, Bld. Dimitrie
Pompeiu 9-9A, Clădirea B2B,
020335, Sector 2, București, România
Statia Piata Regina Maria, linia N114, 117, 23, 32
aprox.
1242 m
Bd. Dimitrie Cantemir
aprox.
115 m
Bd. Dimitrie Cantemir
aprox.
178 m
Statia Pasaj Marasesti linii 23,27
aprox.
235 m
Pasaj Marasesti
aprox.
273 m
Piata Unirii
aprox.
745 m
Universitatea Crestina Dimitrie Cantemir
aprox.
753 m
Scoala Generala 81
aprox.
759 m
Colegiul National Gheorghe Sincai
aprox.
764 m
Gramont
aprox.
821 m
Parcul Carol I
aprox.
823 m
Papazoglu
aprox.
847 m
Patriarhia Romana
aprox.
873 m
11 Iunie
aprox.
884 m
Parcul Carol I
aprox.
895 m
Statia Piata Sf. Vineri; Liniile: 14, 40, 55, 56
aprox.
924 m
Metrorex. Stația Tineretului (M2)(1986)
aprox.
639 m
Metrorex. Stația Piața Unirii 1 (M1),(M3)(1979)
aprox.
693 m
Statia Metrou Tineretului(M2)Metrorex
aprox.
723 m
Piata Unirii 2
aprox.
742 m
Timpuri Noi
aprox.
751 m
Metrorex. Stația Piața Unirii 2 (M2)(1986)
aprox.
763 m
Metrorex. StațiaTimpuri Noi (M1),(M3)(1979)
aprox.
778 m
Tineretului (M2)
aprox.
789 m
Piata Unirii 1
aprox.
790 m
Metrorex. Stația Piața Unirii 1 (M1) (en)
aprox.
857 m
Metrorex. Stația Piața Unirii 2 (M2) (en)
aprox.
902 m
Statia Metrou Piata Universitatii(M2)Metrorex
aprox.
1568 m
Universitate (M2)
aprox.
1609 m
Statia Metrou Piata Universitatii(M2)Metrorex
aprox.
1638 m
Metrorex. Stația Universitate (M2)(1987)
aprox.
1750 m
Gradinita Barba Cot
aprox.
186 m
Gradinita de Copii nr.30 "Copiii soarelui
aprox.
277 m
Gradinita "Scufita Rosie"
aprox.
344 m
Cresa Micii Poznasi
aprox.
409 m
Gradinita cu program prelungit Copiii Soarelui
aprox.
775 m
Gradinita (progr. prelungit) Aleea Borcea - Str. Ruginoasa
aprox.
783 m
Gradinita Prikindel
aprox.
812 m
Gradinita nr.192, "Pisicile Aristocrate"
aprox.
835 m
Gradinita nr. 192 (Pisicile aristocrate)
aprox.
836 m
Gradinita nr. 224
aprox.
964 m
Gradinita nr.224, "Vestitorii Primaverii"
aprox.
964 m
Gradinita Plusica
aprox.
1403 m
Gradinita de copii nr.161
aprox.
1517 m
Gradinita
aprox.
1583 m
Gradinita nr. 269
aprox.
1605 m
Scoala Nr. 79 (en)
aprox.
209 m
Scoala nr. 79
aprox.
209 m
Colegiul National "Ion Creanga"
aprox.
251 m
Liceul Teoretic "Ion Creanga" (en)
aprox.
252 m
Scoala de Arta
aprox.
272 m
scoala populara de arta
aprox.
283 m
Scoala nr.79 "Academician Nicolae Teodorescu"
aprox.
286 m
Scoala nr.74, "Enachita Vacarescu"
aprox.
314 m
Scoala nr 94
aprox.
314 m
Gradinita Aniela
aprox.
348 m
Liceul Teologic Penticostal "Emanuel"
aprox.
405 m
Elohim Academi
aprox.
581 m
Școala 81
aprox.
676 m
Scoala generala nr. 81
aprox.
690 m
Scoala Generala nr.81
aprox.
690 m
Academia de Studii Economice
aprox.
431 m
Academia de Studii Economice: Facultatea de Management - Administratie Publica
aprox.
436 m
Facultatea de Teologie Ortodoxa
aprox.
532 m
Institutul Bancar Român
aprox.
732 m
Universitatea Nicolae Titulescu
aprox.
988 m
Universitatea "Nicolae Titulescu" - Bucuresti
aprox.
1027 m
Universitatea Crestina "Dimitrie Cantemir"
aprox.
1037 m
Universitatea Titu Maiorescu - Corp M
aprox.
1072 m
Universitatea "Titu Maiorescu"
aprox.
1075 m
Universitatea Titu Maiorescu
aprox.
1075 m
Universitatea Titu Maiorescu - Rectorat
aprox.
1175 m
Casa Academiei
aprox.
1517 m
Academia Tehnica Militara
aprox.
1588 m
Facultatea de Chimie
aprox.
1622 m
Facultatea de Istorie
aprox.
1624 m
Mega Image (en)
aprox.
236 m
ClicMarket
aprox.
293 m
Giulio Pantofi la comanda
aprox.
457 m
MGV Supermarket Zeno
aprox.
460 m
Mega Image - Apahida
aprox.
624 m
Nerva Center
aprox.
792 m
Supermarket Sinbad
aprox.
800 m
Mega Image
aprox.
819 m
Shop & Go
aprox.
820 m
Mega Image
aprox.
821 m
Mega Image
aprox.
828 m
Succes
aprox.
834 m
Carrefour Unirii Non-Stop
aprox.
841 m
Carrefour Unirii
aprox.
841 m
MGV Green Expres
aprox.
841 m
Bucharest, Calea Vitan nr. 8, Bl V51, near VITAN Mall
aprox.
1390 m
Parcare
aprox.
210 m
Parcare privata
aprox.
227 m
Parcare
aprox.
442 m
Parcare
aprox.
443 m
Parcare
aprox.
444 m
Parcare
aprox.
485 m
Parcare
aprox.
490 m
Parcare
aprox.
508 m
Parcare
aprox.
538 m
Parcare
aprox.
539 m
Parcare
aprox.
540 m
Parcare
aprox.
576 m
Parcare
aprox.
601 m
Parcare
aprox.
609 m
Parcare
aprox.
613 m
Piata Bucur
aprox.
141 m
Piata Bibescu
aprox.
623 m
Piața Sfântul Anton
aprox.
999 m
Piata Timpului
aprox.
1062 m
Piata Roma
aprox.
1183 m
Piata Natiunilor Unite
aprox.
1226 m
Piața Regina Maria
aprox.
1242 m
Piața Constituției
aprox.
1323 m
Piața Drapelului (Tricolorului)
aprox.
1661 m
Piata Universitatii
aprox.
1662 m
Piata Rosetti
aprox.
1664 m
P-ta Chirigiu
aprox.
1931 m
Piata Latina
aprox.
1971 m
Parc
aprox.
344 m
Parc
aprox.
438 m
Parc
aprox.
553 m
Parc
aprox.
555 m
Parcul Unirii
aprox.
619 m
Parc
aprox.
619 m
Parc
aprox.
622 m
Piata Bibescu
aprox.
623 m
Parc
aprox.
630 m
Parc
aprox.
634 m
Parc
aprox.
638 m
Parc
aprox.
645 m
Parc
aprox.
651 m
Parc
aprox.
664 m
Parc
aprox.
679 m
Teren sportiv
aprox.
782 m
Teren sportiv
aprox.
796 m
Teren sportiv
aprox.
797 m
Teren sportiv
aprox.
1123 m
Teren sportiv
aprox.
1124 m
Teren sportiv
aprox.
1152 m
Teren sportiv
aprox.
1224 m
Teren sportiv
aprox.
1236 m
Teren sportiv
aprox.
1269 m
Teren sportiv
aprox.
1310 m
Teren sportiv
aprox.
1354 m
Teren sportiv
aprox.
1503 m
Teren sportiv
aprox.
1518 m
Teren sportiv
aprox.
1524 m
Teren sportiv
aprox.
1535 m
Medicover (en)
aprox.
32 m
Clinica Polisano
aprox.
110 m
Maternitatea Bucur
aprox.
187 m
Clinica Audionova
aprox.
232 m
Europe EYE Hospital (en)
aprox.
380 m
Europe Eye
aprox.
380 m
Medlife Unirii
aprox.
413 m
Biostom Bucuresti
aprox.
717 m
Oftapro
aprox.
764 m
Spectrum Clinique - Clinica de Oftalmologie
aprox.
915 m
Spitalul de dermato-venerologie "Prof. Dr. Scarlat Longhin" (ABANDONAT)
aprox.
940 m
Spitalul Prof. Dr. C. Angelescu
aprox.
947 m
Clinica de Stomatologie
aprox.
952 m
Spitalul Prof. Dr. C-Tin Angelescu
aprox.
966 m
SYNEVO
aprox.
967 m
Alma Farm Com 95
aprox.
129 m
Farmacia 20
aprox.
244 m
Tinos-Farm
aprox.
346 m
Farmacia Farmadex
aprox.
465 m
Farmacia Belladonna 17
aprox.
711 m
Help Net Farma
aprox.
723 m
Catena
aprox.
778 m
Homeofarm
aprox.
839 m
Farmacia Eliana
aprox.
852 m
Farmacia Bucuresti Tehnoplus Farm
aprox.
863 m
Farmacia Belladonna 54
aprox.
865 m
Help Net
aprox.
871 m
Farmacia 48
aprox.
921 m
Farmacia Dona 19
aprox.
941 m
Farmacie
aprox.
957 m
Restaurant
aprox.
110 m
Thang Long
aprox.
135 m
Zen Sushi
aprox.
333 m
Restaurantul Horoscop
aprox.
482 m
Hotel Horoscop ***
aprox.
515 m
DRISTOR Doner Kebap (Budapesta)
aprox.
517 m
Restaurant PPH
aprox.
524 m
Thalia Tineretului
aprox.
555 m
Garibaldi Trattoria & Pub
aprox.
575 m
Il Giardino Segreto
aprox.
603 m
Blue's lounge & pub
aprox.
611 m
Fabrica De Mancare
aprox.
651 m
Pizzerie si Restaurant Classic
aprox.
652 m
Restaurant Classic
aprox.
663 m
Restaurant Bucur
aprox.
667 m
The Temple
aprox.
295 m
The Harp
aprox.
531 m
Pizzeria Classic
aprox.
663 m
Carol Cafe
aprox.
847 m
Club Fabrica
aprox.
878 m
Long Fong
aprox.
887 m
Beraria Berestoika
aprox.
906 m
Forno d'oro
aprox.
930 m
Atelierul Mecanic
aprox.
1069 m
The Bankers
aprox.
1075 m
Goblin Club
aprox.
1102 m
100 de beri
aprox.
1104 m
The Vintage Pub
aprox.
1106 m
Curtea Berarilor
aprox.
1107 m
Oktoberfest
aprox.
1110 m
Cafe Torino
aprox.
362 m
Cafe Boulevard
aprox.
648 m
Bistro 33 Cafe
aprox.
654 m
Quartier
aprox.
659 m
Zebra Caffe
aprox.
692 m
Angel Cafe
aprox.
763 m
Dalidana
aprox.
795 m
Cofetaria Raisa
aprox.
839 m
Maroon Caffe
aprox.
947 m
Starbucks
aprox.
962 m
The Urbanist
aprox.
983 m
Testa Rossa Caffebar
aprox.
1005 m
Double Deuce's
aprox.
1065 m
Gelato Mio
aprox.
1083 m
Buen Humor
aprox.
1095 m
Pe baricade
aprox.
423 m
Nargila Grill&Bar
aprox.
549 m
Bar
aprox.
674 m
BarFly
aprox.
929 m
Network Lounge
aprox.
1007 m
Vecchio
aprox.
1042 m
True Social Club
aprox.
1049 m
City Grill Covaci
aprox.
1050 m
B Bar
aprox.
1052 m
Pure
aprox.
1070 m
Big Mamou
aprox.
1073 m
Up Club
aprox.
1087 m
The Glam Club
aprox.
1091 m
Zapata Tequilla Bar
aprox.
1109 m
1974 Niste Domni si Fiii
aprox.
1110 m
Raiffeisen
aprox.
128 m
Banca Raiffeisen
aprox.
136 m
Raiffeisen Bank
aprox.
136 m
Banca Italo Romena
aprox.
459 m
Sucursala CEC Bank Timpuri Noi (en)
aprox.
626 m
Banca Transilvania - Ag. Tineretului
aprox.
651 m
UniCredit Bank - Ag. Unirii
aprox.
652 m
Raiffeisen Bank
aprox.
671 m
Banca Romaneasca
aprox.
675 m
Piraeus Bank Romania - Agentia Unirea Splai
aprox.
683 m
Sucursala BCR Gheorghe Sincai
aprox.
697 m
ING Tineretului
aprox.
761 m
BCR
aprox.
771 m
Sucursala ING Bank (en)
aprox.
772 m
Intesa
aprox.
774 m
Stațiile de metrou aflate chiar în "inima" acestei zone, în Piața Unirii, îți oferă posibilitatea de a călători rapid, evitând aglomerația din trafic. Stația Piața Unirii 1 oferă conexiuni la magistrala M1 Dristor - Pantelimon și la magistrala M3 Preciziei - Anghel Saligny. Aceasta este conectată de stația Piața Unirii 2, aflată pe magistrala M2 Berceni - Pipera printr-un pasaj. Astfel, poți ajunge chiar și în mai puțin de 10 minute în zona Politehnică sau la Piața Victoriei și în circa 15 minute în Pipera, unul dintre principalii poli de business ai orașului. Cu autobuzul 104 poți ajunge în cartierul Pantelimon, iar cu tramvaiul 47 în cartierul Rahova. Consultă harta pentru a localiza stațiile mijloacelor de transport în comun.
Printre unitățile de învățământ din această zonă se numără Colegiul Național "Mihai Eminescu", Colegiul Național "Ion Creangă", Colegiul Național de Arte "Dinu Lipatti" și Facultatea de Teologie Ortodoxă "Justinian Patriarhul". Tot aici își are sediul și Institutul Bancar Român care ajută la specializarea personalului din sectorul financiar-bancar. Ajungi foarte repede din Piața Unirii, chiar și pe jos, la Palatul Universității care găzduiește sediile mai multor facultăți. Găsește pe hartă și cele mai apropiate grădinițe, școli și licee de viitoarea ta locuință.
Dacă te vei muta în această zonă, vei avea la doi pași de casă centrul comercial Unirea Shopping Center, care găzduiește, printre altele, magazinele mai multor branduri de modă. În spatele acestuia vei găsi un hipermarket Carrefour. Diverse magazine pot fi găsite și în Centrul Vechi. Pe Strada Lipscani poți să vizitezi una dintre cele mai frumoase librării din Capitală, Cărturești Carusel. Magazin Cocor, care a fost modernizat recent, poate fi și el o alternativă. În imediata sa vecinătate se află și noul magazin București. Pentru mai multe opțiuni, poți merge la București Mall, cel mai apropiat centru comercial de acest tip. Consultă harta pentru a vedea ce alte opțiuni ai în zona Unirii și în împrejurimi.
Lângă Centrul Comercial Unirea Shopping Center vei găsi o parcare supraterană unde îți poți lăsa mașina contra-cost. Dacă te gândești să te muți în zona Piața Unirii îți amintim, de asemenea, că traficul pe Bulevardul Unirii este destul de îngreunat la orele de vârf. Nu uita, totodată, că traficul rutier este închis uneori în Piața Constituției pentru organizarea unor evenimente și concerte. Pentru închirierea unui loc de parcare în apropierea locuinței de care ești interesat va trebui să apelezi la reprezentanții autorităților locale de pe sectorului în care se află aceasta (Direcția Generală Impozite și Taxe Locale Sector 3, Direcția Mobilitate Urbană Sector 4, Serviciul Parcaje Scop Reședință Sector 5). Consultă harta pentru a localiza mai ușor principalele parcări din zona Unirii.
Dacă decizi să te muți într-o locuință în zona Unirii, atunci vei avea la dispoziție numeroase opțiuni de petrecere a timpului liber. Chiar în Piața Unirii vei găsi unul dintre binecunoscutele obiective ale orașului, Hanul lui Manuc. Construit în 1808 acesta a fost renovat în urmă cu câțiva ani și găzduiește, în prezent, mai multe cafenele, restaurante și mici magazine. Acesta se află chiar la marginea Centrului Vechi al Capitalei, principalul punct de atracție pentru iubitorii vieții de noapte. Tot aici găsești și câteva obiective turistice importante - Palatul Voievodal Curtea Veche, Palatul BNR, Muzeul Național de Istorie a României și Muzeul Municipal București. Parcurile Izvor și Unirii sunt principalele spații verzi din această zonă. Nu trebuie să uiți însă că nu va trebui să mergi mult pentru a ajunge și la Grădina Cișmigiu sau în Parcul Tineretului. Poți merge, totodată, la un spectacol la Teatrul Evreiesc de Stat sau poți participa la evenimentele și la concertele care se organizează periodic în Piața Constituției de lângă Palatul Parlamentului. Poți lua parte la diverse evenimente și vizitând Biblioteca Națională a României, o altă clădire reprezentativă din această zonă. Ajungi foarte ușor, pe jos sau cu metroul, la Teatrul Național București în fața căruia găsești și un mic parc. Iar dacă toate acestea nu sunt de ajuns, atunci o plimbare pe Calea Victoriei și o vizită la numeroasele obiective de interes aflate de-a lungul ei cu siguranță te vor satisface. Cea mai bună parte este că această arteră de circulație se închide circulației rutiere uneori și devine strict pietonală. În plus, aici ai la dispoziție una dintre puținele piste dedicate bicicliștilor din oraș. Consultă harta pentru a vedea ce alte opțiuni de petrecere a timpului liber vei avea odată ce te vei muta în zona Unirii.
Dacă te vei muta în această zonă, vei putea apela în caz de nevoie la câteva clinici private. Printre acestea amintim Hiperclinica MedLife Unirii, clinica de stomatologie DentaLife și Medas Unirea. Unele dintre cele mai apropiate spitale la care vei avea acces vor fi Spitalul Cinic Colțea din Piața Universității și Spitalul Clinic Prof. Dr. Theodor Burghele, aflat în apropierea Palatului Parlamentului. Vezi pe hartă ce alte unități medicale se află în zona Unirii și în vecinătatea sa.
Centrul Vechi îți oferă numeroase opțiuni la acest capitol, iar câteva fast food-uri ai la dispoziție la parterul centrului comercial Unirea Shopping Center, situat chiar în Piața Unirii. Găsești câteva terase și pe malul Dâmboviței, lângă Biblioteca Națională a României. Dacă vrei să schimbi peisajul, poți să ajungi destul de repede cu mașina sau cu mijloacele de transport în comun la București Mall sau poți încerca una dintre numeroasele terase din Piața Alba Iulia sau de pe Bulevardul Decebal. Mai mult, ai relativ aproape și Calea Victoriei, perfectă pentru promenadă, dar și pentru un popas la restaurant. Consultă harta și află care sunt cele mai apropiate localuri de viitoarea ta locuință.
Găsești mai multe ATM-uri și sucursale bancare în Piața Unirii, unele dintre ele chiar în incinta complexului comercial Unirea Shopping Center. Vezi care este cel mai potrivit pentru tine de pe hartă.
Înainte să pleci...
Ești sigur că ai văzut și aceste proprietăți?
250.000 €
București, Pache Protopopescu
4 camere
140 mp
400 mp teren
240.000 €
București, P-ța Unirii
4 camere
113 mp
140 mp teren
199.000 €
București, Unirii
5 camere
90 mp
290 mp teren
350.000 €
București, Unirii
5 camere
230 mp
230 mp teren
220.000 €
București, Central
4 camere
102 mp
130 mp teren
225.000 €
București, Victoriei
5 camere
170 mp
200 mp teren
Creează alertă
Salvează căutarea ca să primești pe email ultimele anunțuri publicate
Case individuale cu 4+ camere de vânzare în zona P-ța Unirii, Sector 3
Cere detalii prin email
*
*
*
*
Detaliile tale de contact vor fi partajate cu Areea Imobiliare
Preț total1.380.720 RON (270.979 €)
Costuri cu achiziția12.123 RON
Preț de achiziție1.368.597 RON
Costuri cu achiziția12.123 RON
Comision agenție Întreabă agenţia
Onorariu notarial10.070 RON
Taxă înscriere OCPI2.053 RON
Preț de achiziție1.368.597 RON
Preț locuință1.368.597 RON
TVA 0%Inclus în prețul cerut
Cost total222.817 RON (43.729 €)
Avans (15%)205.290 RON
Cost achitat în prima lună3.151 RON
Costuri cu achiziția14.376 RON
Cost achitat în prima lună3.151 RON
Comision analiză dosar
400 RON - 900 RON
Taxă evaluare imobil(până la)
900 RON
Rata lunară (variabilă)6.096 RON
Asigurare anuală imobil1.369 RON
Arhivă electronică102 RON
Poliță PAD130 RON
Asigurare de viață/lună Costul este variabil. În funcție de banca aleasă, procentul variază între 0.0259% și 0.035% din soldul creditului.
Costuri cu achiziția14.376 RON
Comision agenție Întreabă agenţia
Onorariu notarial10.070 RON
Taxă întabulare OCPI2.053 RON
Autentificare contract credit2.253 RON
Preț de achiziție1.368.597 RON
Preț locuință1.368.597 RON
TVA 0%Inclus în prețul cerut
Preț de achiziție1.368.597 RON
Preț locuință1.368.597 RON
TVA 0%
Inclus în prețul cerut
Avans minim762.257 RON
Credit pe 30 de ani606.341 RON
Cost achitat în prima lună
Taxa evaluare imobil(până la)
900 RON
Rata lunară (variabilă)4.260 RON
Depozit colateral12.780 RON
Comision de garantare FNGCIMM114 RON
Asigurare anuală imobil1.369 RON
Poliță PAD130 RON
Tarif arhivă electronică102 RON
Costuri adiționale1.509 RON + taxe notariale
Asigurare viață și complexă (opțională)Costul este variabil. În funcție de banca aleasă, procentul variază între 0.0259% și 0.035% din soldul creditului
Onorariu notarialconform tarif notarial
Taxă întabulare OCPI1.509 RON
i
Toate valorile de mai sus sunt estimative și nu reprezintă în mod obligatoriu costurile exacte pe care le veți primi de la companiile/instituțiile prin care veți încheia tranzacția.