Vila Interbelica cu Caracter – Zona Unirii (Str. George Georgescu)
Va prezentam o oportunitate rara de achizitie in inima Capitalei: o proprietate interbelica distinsa, situata pe Strada George Georgescu, intr-o zona care imbina farmecul istoric cu utilitatea urbana moderna. Construita in anul 1930 si renovata integral, aceasta vila reprezinta echilibrul perfect intre eleganta clasica si confortul actual.
Detalii Cheie:
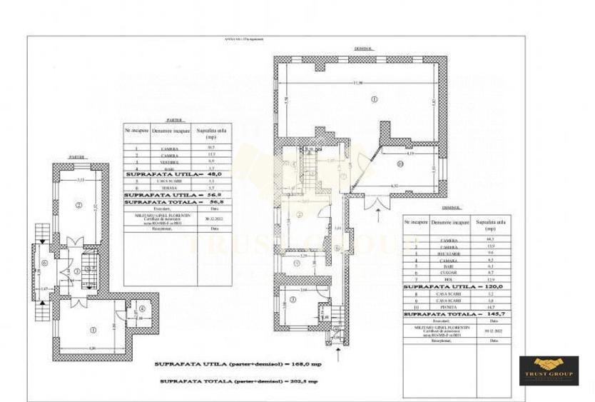
• Spatiu Generos: 5 camere luminoase, cu o suprafata utila de 168 mp.
• Configuratie: Regim de inaltime D+P+Pod, ideal pentru o compartimentare versatila.
• Teren & Deschidere: Suprafata teren 155 mp, 70mp liberi, cu un front stradal generos de 16 m si acces pe 2 fronturi, oferind vizibilitate si acces facil.
• Renovare Completa: Instalatii electrice si sanitare noi, centrala termica proprie, finisaje de calitate (parchet, gresie, tamplarie PVC cu termopan).
Localizare si Puncte de Reper
Proprietatea beneficiaza de o pozitie strategica, fiind situata la doar cateva minute de mers pe jos de principalele noduri ale orasului:
• Transport: Metrou Piata Unirii (acces rapid catre magistralele M1, M2, M3).
• Shopping & Leisure: Unirea Shopping Center, zona comerciala a Bulevardului Unirii si restaurantele cochete din zona Pietei Constitutiei.
• Cultura si Institutii: Palatul Parlamentului, Piata Cosbuc si Liceul „Mihai Eminescu”.
• Utilitate: Acces imediat catre numeroase centre bancare, clinici medicale si puncte de interes public.
Potential Utilizare
Datorita locatiei centrale si a compartimentarii, imobilul este pretabil pentru:
1. Rezidential: O casa de familie primitoare, cu curte proprie, intr-o zona linistita dar centrala.
2. Business: Sediu de firma, cabinet notarial, clinica estetica/stomatologica sau birou de arhitectura.
( Proprietatea este in prezent inchiriata catre o firma pentru suma de 1900€/ luna)
Specificatii Tehnice
• Utilitati: Apa, Gaz, Canalizare, Curent electric, Aer conditionat.
• Dotari suplimentare: Pivnita pentru depozitare, curte privata, contorizare separata.
• Stare: Gata de mutare (nemobilata).
Pentru a simti cu adevarat atmosfera acestei proprietati deosebite, va invitam la o vizionare. Contactati-ne pentru detalii suplimentare!
Sediul central - Timișoara
Bulevardul Victor Babeș nr. 2, 300230, Timișoara, România
Tel: +40.374.40.44.98 / Fax: +40.256.401.179
Email: suport@imobiliare.ro
Luni - Vineri 08:00 - 20:00
Punct de lucru - București: Iride Business Park, Bld. Dimitrie
Pompeiu 9-9A, Clădirea B2B,
020335, Sector 2, București, România
CONTACT
Sediul central - Timișoara
Bulevardul Victor Babeș nr. 2, 300230, Timișoara, România
Tel: +40.374.40.44.98 / Fax: +40.256.401.179
Email: suport@imobiliare.ro
Luni - Vineri 08:00 - 20:00
Punct de lucru - București: Iride Business Park, Bld. Dimitrie
Pompeiu 9-9A, Clădirea B2B,
020335, Sector 2, București, România
Sună acum și cere detalii sau programează o vizionare.
Cere detalii prin email
*
*
*
*
Stații autobuz
Stații tramvai
Stații metrou
Stații troleibuz
Universități
Școli
Gradinițe
Supermarket
Parcări
Parcuri
Piețe publice
Terenuri sport
Farmacie
Spital
Restaurant
Bar
Pub
Cafenea
Bancă
Statia Piata Regina Maria, linia N114, 117, 23, 32
aprox.
262 m
Statia Casa Academiei, linia 136, N121
aprox.
319 m
Statia Palatul Parlamentului, linia 136, N121
aprox.
413 m
Statia Calea 13 Septembrie, linia 136, N121
aprox.
417 m
Statia Piata Chirigiu, linia 173, N114, 117, 23, 32
aprox.
604 m
Statia Soseaua Viilor, linia 117
aprox.
650 m
statia Gramont, linia 7, 23, 27, 47
aprox.
688 m
Statia Parcul Carol I, linia 232, 7, 23, 27, 47
aprox.
746 m
Statia Parcul Carol I linii : 232, 7, 23, 27, 47
aprox.
757 m
statia Piata Arsenalului, linia 385, 136, N121, N122
aprox.
855 m
Autogara Filaret
aprox.
861 m
Statia Autogara Filaret linii : 232, N107, 7, 47
aprox.
891 m
Statia Dr. Staicovici, linia 385, N122
aprox.
922 m
statia Autogara Filaret, linia 232, N107, 7, 47
aprox.
924 m
Statia Spatarul Preda, linia 173
aprox.
926 m
Piata Regina Maria
aprox.
322 m
Gramont
aprox.
685 m
Patriarhia Romana
aprox.
692 m
Piata Chirigiu
aprox.
695 m
Statie Tramvai 32, 23
aprox.
700 m
Parcul Carol I
aprox.
703 m
11 Iunie
aprox.
715 m
Parcul Carol I
aprox.
818 m
Autogara Filaret
aprox.
900 m
Soseaua Progresului
aprox.
949 m
Calea Rahovei
aprox.
985 m
Calea Rahovei
aprox.
998 m
Statia Inox, Liniile 1, 8, 11, 25, 47
aprox.
1015 m
Soseaua Progresului
aprox.
1038 m
Soseaua Viilor
aprox.
1146 m
Metrorex. Statia Izvor (M1) , (M3).
aprox.
1211 m
Metrorex. Statia Izvor (M1) , (M3).
aprox.
1221 m
Izvor
aprox.
1232 m
Metrorex. Stația Izvor (M1),(M3)(1979)
aprox.
1236 m
Metrorex. Stația Piața Unirii 1 (M1) (en)
aprox.
1290 m
Piata Unirii 1
aprox.
1324 m
Metrorex. Stația Piața Unirii 1 (M1),(M3)(1979)
aprox.
1347 m
Metrorex. Stația Piața Unirii 2 (M2)(1986)
aprox.
1461 m
Metrorex. Stația Piața Unirii 2 (M2) (en)
aprox.
1491 m
Piata Unirii 2
aprox.
1499 m
Metrorex. Stația Tineretului (M2)(1986)
aprox.
1555 m
Statia Metrou Tineretului(M2)Metrorex
aprox.
1619 m
Tineretului (M2)
aprox.
1654 m
Metrorex. Stația Eroilor (M1),(M3)(1979)
aprox.
1693 m
Eroilor
aprox.
1693 m
Statia Facultatea de Drept, linia 61,69,90,91
aprox.
1426 m
Statia Vasile Parvan 66,70,92
aprox.
1531 m
Statia Piata Operei, linia 61,69,90,91
aprox.
1599 m
statia RATB Eroilor: 69, 96
aprox.
1787 m
Statia Stirbei Voda, linia 96
aprox.
1876 m
Casa Academiei
aprox.
34 m
Academia Tehnica Militara
aprox.
439 m
Facultatea de medicina veterinara
aprox.
1000 m
Facultatea de Medicina Veterinara (en)
aprox.
1181 m
Facultatea de Teologie Ortodoxa
aprox.
1212 m
Academia de Studii Economice: Facultatea de Management - Administratie Publica
aprox.
1249 m
Academia de Studii Economice
aprox.
1256 m
Universitatea din Bucuresti
aprox.
1322 m
Facultatea de Medicina Veterinara
aprox.
1326 m
Facultatea de Sociologie si Asistenta Sociala
aprox.
1464 m
Facultatea de Sociologie și Asistență Socială
aprox.
1475 m
Camin A
aprox.
1501 m
Rectoratul Universitatii din București și sediul Facultății de Drept
aprox.
1507 m
Rectoratul Univ. Bucuresti
aprox.
1507 m
Clinica de Protetica si Ocluzologie si Clinica de Pedodontie
aprox.
1522 m
ȘCOALA CU CLASELE I-VIII NR. 128
aprox.
428 m
Liceu de Coregrafie Floria Capsali
aprox.
767 m
Liceul de Arte "Dinu Lipatti"
aprox.
780 m
COLEGIUL ECONOMIC "VIILOR"
aprox.
983 m
Colegiul Economic Viilor
aprox.
1015 m
Colegiul economic "Viilor"
aprox.
1016 m
Elohim Academi
aprox.
1044 m
Scoala nr.74, "Enachita Vacarescu"
aprox.
1187 m
Scoala nr 94
aprox.
1187 m
Gradinita Aniela
aprox.
1333 m
Scoala Nr. 115
aprox.
1364 m
Clubul Copiilor si Elevilor sect. 5
aprox.
1367 m
Liceul Motoc (en)
aprox.
1371 m
Scoala nr 115
aprox.
1373 m
Scoala Generala 130 (en)
aprox.
1373 m
Gradinita nr. 268
aprox.
473 m
Gradinita Cuibusorul Zanelor
aprox.
531 m
Gradinita nr.224, "Vestitorii Primaverii"
aprox.
540 m
Gradinita nr. 224
aprox.
542 m
Gradinita nr. 269
aprox.
614 m
Gradinita nr. 192 (Pisicile aristocrate)
aprox.
848 m
Gradinita nr.192, "Pisicile Aristocrate"
aprox.
859 m
Gradinita Prikindel
aprox.
995 m
GRĂDINIȚA DE COPII ELECTROMAGNETICA
aprox.
1169 m
Cresa Micii Poznasi
aprox.
1260 m
Gradinita cu program prelungit Copiii Soarelui
aprox.
1308 m
Gradinita de Copii nr.30 "Copiii soarelui
aprox.
1308 m
Gradinita nr. 73
aprox.
1313 m
Gradinita Motoc
aprox.
1422 m
Gradinita Barba Cot
aprox.
1474 m
Profi Non-Stop
aprox.
216 m
Mega Image
aprox.
582 m
Succes
aprox.
816 m
Shop & Go
aprox.
830 m
Mega Image
aprox.
848 m
Carrefour express
aprox.
855 m
Mega Image
aprox.
897 m
Liberty Center Mall
aprox.
957 m
Carrefour Market
aprox.
982 m
Carrefour Express
aprox.
1009 m
Jysk
aprox.
1139 m
Carrefour Vulcan
aprox.
1259 m
Mega Image (en)
aprox.
1295 m
Kaufland Sebastian
aprox.
1385 m
dm
aprox.
1409 m
Parcare
aprox.
109 m
Parcare
aprox.
200 m
Parcare
aprox.
297 m
Parcare
aprox.
368 m
Parcare
aprox.
428 m
Parcare
aprox.
428 m
Parcare
aprox.
434 m
Parcare
aprox.
435 m
Parcare
aprox.
683 m
Parcare
aprox.
744 m
Parcare
aprox.
752 m
Parcare
aprox.
766 m
Parcare
aprox.
800 m
Parcare
aprox.
896 m
Parcare
aprox.
900 m
Gradina Palatului Bragadiru
aprox.
144 m
Parc
aprox.
385 m
Parc
aprox.
544 m
Parc
aprox.
610 m
Curtea Palatului Parlamentului
aprox.
628 m
Parc
aprox.
628 m
Parc
aprox.
628 m
Parc
aprox.
638 m
Parc
aprox.
713 m
Parc
aprox.
756 m
Parc
aprox.
769 m
Parcul Gara Filaret
aprox.
769 m
Parc
aprox.
884 m
Parc
aprox.
899 m
Dealul Mitropoliei
aprox.
899 m
Piața Regina Maria
aprox.
265 m
P-ta Chirigiu
aprox.
622 m
Piața Constituției
aprox.
679 m
Piata Arsenalului
aprox.
829 m
Piata Natiunilor Unite
aprox.
1120 m
Jose Rizal Square (en)
aprox.
1143 m
Piata Bibescu
aprox.
1172 m
Piața Sfântul Anton
aprox.
1506 m
Piata Bucur
aprox.
1640 m
Piata Timpului
aprox.
1655 m
Piata Roma
aprox.
1666 m
Piața Drapelului (Tricolorului)
aprox.
1666 m
Piața Eroilor
aprox.
1828 m
Piata Universitatii
aprox.
1975 m
Teren sportiv
aprox.
723 m
Teren sportiv
aprox.
735 m
Teren sportiv
aprox.
758 m
Stadionul Cotroceni
aprox.
1149 m
Teren sportiv
aprox.
1156 m
Teren sportiv
aprox.
1168 m
Teren Antrenament
aprox.
1169 m
Teren sportiv
aprox.
1171 m
Teren sportiv
aprox.
1182 m
Teren sportiv
aprox.
1191 m
Teren sportiv
aprox.
1194 m
Teren sportiv
aprox.
1204 m
Teren sportiv
aprox.
1210 m
Teren sportiv
aprox.
1214 m
Teren sportiv
aprox.
1232 m
Homeofarm
aprox.
694 m
Pharma Vic
aprox.
998 m
Sensiblu
aprox.
1014 m
Help Net Farma
aprox.
1212 m
Farmacia 20
aprox.
1258 m
Farmacia Belladonna 54
aprox.
1277 m
Farmacia Dona
aprox.
1278 m
Farmacia 48
aprox.
1293 m
Plafar
aprox.
1309 m
Urgent Farm
aprox.
1310 m
Ivo Pharm Impex
aprox.
1312 m
Farmaciile 2NA
aprox.
1364 m
Sensiblu
aprox.
1380 m
Alma Farm Com 95
aprox.
1392 m
Tinos-Farm
aprox.
1447 m
Discovery Clinic (en)
aprox.
812 m
Oftapro
aprox.
842 m
Institutul de Fonoaudiologie si Chirurgie Functionala ORL Profesor Doctor Dorin Hociota
aprox.
1056 m
Spital Fonoaudiologie "Prof. D. Hociota"
aprox.
1067 m
Spitalul Clinic Profesor Doctor Theodor Burghele
aprox.
1202 m
Spitalul clinic Prof. Dr. Th. Burghele
aprox.
1205 m
Clinica Medicala HIPOCRAT 2000
aprox.
1211 m
Europe EYE Hospital (en)
aprox.
1237 m
Europe Eye
aprox.
1237 m
Policlinica Ministerului de Interne
aprox.
1263 m
I.N.E.M.R.C.M. - Institutul National de Expertiza Medicala si Recuperare a Capacitatii de Munca
aprox.
1276 m
Institutul National de Expertiza Medicala si Recuperare a Capacitatii de Munca
aprox.
1284 m
Institutul Victor Babes
aprox.
1289 m
Institutul National pentru medicina complementara si alternativa
aprox.
1302 m
Medlife Unirii
aprox.
1305 m
Mahala Restaurant
aprox.
61 m
Suzana Ribs & Wings
aprox.
85 m
Restaurant La Giganto
aprox.
296 m
La Giganto
aprox.
304 m
Restaurant Business
aprox.
345 m
Dharma
aprox.
372 m
Musafir (en)
aprox.
391 m
Restaurant Zariștea
aprox.
422 m
Jaristea
aprox.
428 m
Casa Sarbeasca
aprox.
469 m
Restaurant La Chef Calcan
aprox.
474 m
Bistro Orhideea
aprox.
496 m
La Oriental
aprox.
667 m
Restaurant Costelaria
aprox.
701 m
Haute Pepper
aprox.
702 m
Braserie Cosbuc
aprox.
309 m
Club Expirat
aprox.
868 m
Nargila Grill&Bar
aprox.
1300 m
Big Mamou
aprox.
1317 m
B Bar
aprox.
1328 m
55 Jazz
aprox.
1338 m
Qetesh
aprox.
1344 m
True Social Club
aprox.
1385 m
Energiea
aprox.
1390 m
Bound Club
aprox.
1391 m
Corelli Wine Bar
aprox.
1394 m
La Comedie
aprox.
1395 m
Izzy Bar
aprox.
1396 m
Freddo
aprox.
1397 m
Zapata Tequilla Bar
aprox.
1403 m
Club Fabrica
aprox.
668 m
Long Fong
aprox.
689 m
Carol Cafe
aprox.
833 m
The Temple
aprox.
1219 m
D`eight Pub
aprox.
1270 m
Queen and Clown Pub
aprox.
1325 m
Old City
aprox.
1334 m
Oktoberfest 3
aprox.
1336 m
The Harp
aprox.
1338 m
Explorer's Irish Pub
aprox.
1340 m
O`Hara Irish Pub
aprox.
1360 m
Club Expirat and Other Side
aprox.
1386 m
The Bankers
aprox.
1387 m
Goblin Club
aprox.
1389 m
Cliche Club & Lounge
aprox.
1406 m
Mall Liberty
aprox.
944 m
Cofetaria Raisa
aprox.
1035 m
Angel Cafe
aprox.
1072 m
Dalidana
aprox.
1091 m
Cafe Torino
aprox.
1160 m
Bio Cream gelateria
aprox.
1236 m
Unique
aprox.
1358 m
La Folie
aprox.
1358 m
Cafe Deko
aprox.
1372 m
Kafeterya Cafe
aprox.
1373 m
Buen Humor
aprox.
1376 m
Arcade Cafe
aprox.
1379 m
Double Deuce's
aprox.
1380 m
Crepes & Gelato artigianale
aprox.
1383 m
Origo
aprox.
1395 m
BCR
aprox.
201 m
Raiffeisen Bank
aprox.
299 m
BRD
aprox.
299 m
Raiffeisen
aprox.
313 m
BRD Libertatii
aprox.
315 m
Banc post
aprox.
395 m
Bancpost
aprox.
401 m
Volksbank
aprox.
866 m
BCR
aprox.
880 m
ING 13 Septembrie
aprox.
881 m
Volksbank
aprox.
932 m
Piraeus Bank Romania - Agentia Panduri
aprox.
933 m
Banca Transilvania - Ag. Mall Liberty Center
aprox.
994 m
BancPost
aprox.
1005 m
Banca Transilvania - Suc. Marriott
aprox.
1015 m
Stațiile de metrou aflate chiar în "inima" acestei zone, în Piața Unirii, îți oferă posibilitatea de a călători rapid, evitând aglomerația din trafic. Stația Piața Unirii 1 oferă conexiuni la magistrala M1 Dristor - Pantelimon și la magistrala M3 Preciziei - Anghel Saligny. Aceasta este conectată de stația Piața Unirii 2, aflată pe magistrala M2 Berceni - Pipera printr-un pasaj. Astfel, poți ajunge chiar și în mai puțin de 10 minute în zona Politehnică sau la Piața Victoriei și în circa 15 minute în Pipera, unul dintre principalii poli de business ai orașului. Cu autobuzul 104 poți ajunge în cartierul Pantelimon, iar cu tramvaiul 47 în cartierul Rahova. Consultă harta pentru a localiza stațiile mijloacelor de transport în comun.
Printre unitățile de învățământ din această zonă se numără Colegiul Național "Mihai Eminescu", Colegiul Național "Ion Creangă", Colegiul Național de Arte "Dinu Lipatti" și Facultatea de Teologie Ortodoxă "Justinian Patriarhul". Tot aici își are sediul și Institutul Bancar Român care ajută la specializarea personalului din sectorul financiar-bancar. Ajungi foarte repede din Piața Unirii, chiar și pe jos, la Palatul Universității care găzduiește sediile mai multor facultăți. Găsește pe hartă și cele mai apropiate grădinițe, școli și licee de viitoarea ta locuință.
Dacă te vei muta în această zonă, vei avea la doi pași de casă centrul comercial Unirea Shopping Center, care găzduiește, printre altele, magazinele mai multor branduri de modă. În spatele acestuia vei găsi un hipermarket Carrefour. Diverse magazine pot fi găsite și în Centrul Vechi. Pe Strada Lipscani poți să vizitezi una dintre cele mai frumoase librării din Capitală, Cărturești Carusel. Magazin Cocor, care a fost modernizat recent, poate fi și el o alternativă. În imediata sa vecinătate se află și noul magazin București. Pentru mai multe opțiuni, poți merge la București Mall, cel mai apropiat centru comercial de acest tip. Consultă harta pentru a vedea ce alte opțiuni ai în zona Unirii și în împrejurimi.
Lângă Centrul Comercial Unirea Shopping Center vei găsi o parcare supraterană unde îți poți lăsa mașina contra-cost. Dacă te gândești să te muți în zona Piața Unirii îți amintim, de asemenea, că traficul pe Bulevardul Unirii este destul de îngreunat la orele de vârf. Nu uita, totodată, că traficul rutier este închis uneori în Piața Constituției pentru organizarea unor evenimente și concerte. Pentru închirierea unui loc de parcare în apropierea locuinței de care ești interesat va trebui să apelezi la reprezentanții autorităților locale de pe sectorului în care se află aceasta (Direcția Generală Impozite și Taxe Locale Sector 3, Direcția Mobilitate Urbană Sector 4, Serviciul Parcaje Scop Reședință Sector 5). Consultă harta pentru a localiza mai ușor principalele parcări din zona Unirii.
Dacă decizi să te muți într-o locuință în zona Unirii, atunci vei avea la dispoziție numeroase opțiuni de petrecere a timpului liber. Chiar în Piața Unirii vei găsi unul dintre binecunoscutele obiective ale orașului, Hanul lui Manuc. Construit în 1808 acesta a fost renovat în urmă cu câțiva ani și găzduiește, în prezent, mai multe cafenele, restaurante și mici magazine. Acesta se află chiar la marginea Centrului Vechi al Capitalei, principalul punct de atracție pentru iubitorii vieții de noapte. Tot aici găsești și câteva obiective turistice importante - Palatul Voievodal Curtea Veche, Palatul BNR, Muzeul Național de Istorie a României și Muzeul Municipal București. Parcurile Izvor și Unirii sunt principalele spații verzi din această zonă. Nu trebuie să uiți însă că nu va trebui să mergi mult pentru a ajunge și la Grădina Cișmigiu sau în Parcul Tineretului. Poți merge, totodată, la un spectacol la Teatrul Evreiesc de Stat sau poți participa la evenimentele și la concertele care se organizează periodic în Piața Constituției de lângă Palatul Parlamentului. Poți lua parte la diverse evenimente și vizitând Biblioteca Națională a României, o altă clădire reprezentativă din această zonă. Ajungi foarte ușor, pe jos sau cu metroul, la Teatrul Național București în fața căruia găsești și un mic parc. Iar dacă toate acestea nu sunt de ajuns, atunci o plimbare pe Calea Victoriei și o vizită la numeroasele obiective de interes aflate de-a lungul ei cu siguranță te vor satisface. Cea mai bună parte este că această arteră de circulație se închide circulației rutiere uneori și devine strict pietonală. În plus, aici ai la dispoziție una dintre puținele piste dedicate bicicliștilor din oraș. Consultă harta pentru a vedea ce alte opțiuni de petrecere a timpului liber vei avea odată ce te vei muta în zona Unirii.
Dacă te vei muta în această zonă, vei putea apela în caz de nevoie la câteva clinici private. Printre acestea amintim Hiperclinica MedLife Unirii, clinica de stomatologie DentaLife și Medas Unirea. Unele dintre cele mai apropiate spitale la care vei avea acces vor fi Spitalul Cinic Colțea din Piața Universității și Spitalul Clinic Prof. Dr. Theodor Burghele, aflat în apropierea Palatului Parlamentului. Vezi pe hartă ce alte unități medicale se află în zona Unirii și în vecinătatea sa.
Centrul Vechi îți oferă numeroase opțiuni la acest capitol, iar câteva fast food-uri ai la dispoziție la parterul centrului comercial Unirea Shopping Center, situat chiar în Piața Unirii. Găsești câteva terase și pe malul Dâmboviței, lângă Biblioteca Națională a României. Dacă vrei să schimbi peisajul, poți să ajungi destul de repede cu mașina sau cu mijloacele de transport în comun la București Mall sau poți încerca una dintre numeroasele terase din Piața Alba Iulia sau de pe Bulevardul Decebal. Mai mult, ai relativ aproape și Calea Victoriei, perfectă pentru promenadă, dar și pentru un popas la restaurant. Consultă harta și află care sunt cele mai apropiate localuri de viitoarea ta locuință.
Găsești mai multe ATM-uri și sucursale bancare în Piața Unirii, unele dintre ele chiar în incinta complexului comercial Unirea Shopping Center. Vezi care este cel mai potrivit pentru tine de pe hartă.
Înainte să pleci...
Ești sigur că ai văzut și aceste proprietăți?
340.000 €
București, Unirii
6 camere
132 mp
94 mp teren
365.000 €
București, Unirii
5 camere
186 mp
249 mp teren
350.000 €
București, Unirii
5 camere
230 mp
230 mp teren
Creează alertă
Salvează căutarea ca să primești pe email ultimele anunțuri publicate
Case individuale cu 4+ camere de vânzare în zona Unirii, Sector 3
Cere detalii prin email
*
*
*
*
Detaliile tale de contact vor fi partajate cu Trust Group Real Estate