Vila eleganta In apropierea Palatului Parlamentului,rondului Cosbic,a Parcului Carol vila 6 camere + mansarda locuibila(2 camere) .
Aflata in centrul Bucurestiului in vecinatatea Palatului Parlamentului ,vila dispune si de o mica curte 27mp) in care se poate parca o masina..
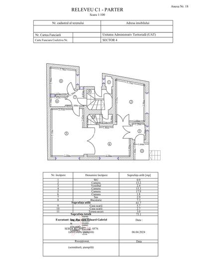
Parterul este format dintr-un living cu semineu pe gaze,si inca 2 camere, bucataria , un grup sanitar, un spațiu de depozitare ,și o mica curte.
Etajul 1 dispune de 3 dormitoare, doua din ele cu ieșire spre balcon,respectiv logie.Pretul este negociabil.
Mansarda este locuibila,compartimentata in 2 camere,una dintre ele fiind dotata cu un semineu pe lemne care sporeste ambientul si ofera o atmosfera intima..
La mezanin se afla un grup sanitar si baia.
Demisolul este compartimentat in 4 camere .
Imobilul se pretează si ca sediu pentru firmă .
In fata casei, mai sunt 2 locuri de parcare rezervate .
Citește mai mult
Citește mai puțin
Aer condiționat
Calorifere
Centrală proprie
3 Parcări
Bine întreținut (Bună)
Sediul central - Timișoara
Bulevardul Victor Babeș nr. 2, 300230, Timișoara, România
Tel: +40.374.40.44.98 / Fax: +40.256.401.179
Email: suport@imobiliare.ro
Luni - Vineri 08:00 - 20:00
Punct de lucru - București: Iride Business Park, Bld. Dimitrie
Pompeiu 9-9A, Clădirea B2B,
020335, Sector 2, București, România
CONTACT
Sediul central - Timișoara
Bulevardul Victor Babeș nr. 2, 300230, Timișoara, România
Tel: +40.374.40.44.98 / Fax: +40.256.401.179
Email: suport@imobiliare.ro
Luni - Vineri 08:00 - 20:00
Punct de lucru - București: Iride Business Park, Bld. Dimitrie
Pompeiu 9-9A, Clădirea B2B,
020335, Sector 2, București, România
Sună acum și cere detalii sau programează o vizionare.
Cere detalii prin email
*
*
*
*
Stații tramvai
Stații autobuz
Stații metrou
Stații troleibuz
Gradinițe
Universități
Școli
Supermarket
Parcări
Piețe publice
Parcuri
Terenuri sport
Spital
Farmacie
Restaurant
Bar
Pub
Cafenea
Bancă
Parcul Carol I
aprox.
264 m
Piata Regina Maria
aprox.
274 m
Parcul Carol I
aprox.
367 m
Gramont
aprox.
372 m
Autogara Filaret
aprox.
520 m
Patriarhia Romana
aprox.
569 m
11 Iunie
aprox.
621 m
Piata Chirigiu
aprox.
841 m
Statie Tramvai 32, 23
aprox.
848 m
Soseaua Viilor
aprox.
858 m
Dr. Constantin Istrati
aprox.
952 m
Soseaua Viilor
aprox.
967 m
Bd. Dimitrie Cantemir
aprox.
974 m
Bd. Dimitrie Cantemir
aprox.
1043 m
Piata Unirii
aprox.
1056 m
Statia Piata Regina Maria, linia N114, 117, 23, 32
aprox.
271 m
Statia Parcul Carol I, linia 232, 7, 23, 27, 47
aprox.
273 m
Statia Parcul Carol I linii : 232, 7, 23, 27, 47
aprox.
302 m
statia Gramont, linia 7, 23, 27, 47
aprox.
360 m
Statia Autogara Filaret linii : 232, N107, 7, 47
aprox.
480 m
Autogara Filaret
aprox.
500 m
statia Autogara Filaret, linia 232, N107, 7, 47
aprox.
553 m
Statie RATB Autogara Filaret 232 (en)
aprox.
593 m
Statia Calea 13 Septembrie, linia 136, N121
aprox.
620 m
Statia Soseaua Viilor, linia 117
aprox.
678 m
Statia Spatarul Preda, linia 173
aprox.
744 m
Statia Casa Academiei, linia 136, N121
aprox.
758 m
Statia Piata Chirigiu, linia 173, N114, 117, 23, 32
aprox.
795 m
Statia Dr. Constantin Istrati / Inclinata / Soseaua Viilor, linia 173, 232, N107, 1, 7, 11, 25, 47
aprox.
873 m
Statia Palatul Parlamentului, linia 136, N121
aprox.
885 m
Metrorex. Stația Tineretului (M2)(1986)
aprox.
1094 m
Statia Metrou Tineretului(M2)Metrorex
aprox.
1152 m
Tineretului (M2)
aprox.
1183 m
Metrorex. Stația Piața Unirii 1 (M1),(M3)(1979)
aprox.
1213 m
Metrorex. Stația Piața Unirii 1 (M1) (en)
aprox.
1220 m
Piata Unirii 1
aprox.
1226 m
Metrorex. Stația Piața Unirii 2 (M2)(1986)
aprox.
1340 m
Piata Unirii 2
aprox.
1366 m
Metrorex. Stația Piața Unirii 2 (M2) (en)
aprox.
1412 m
Metrorex. Statia Izvor (M1) , (M3).
aprox.
1510 m
Metrorex. Statia Izvor (M1) , (M3).
aprox.
1517 m
Izvor
aprox.
1521 m
Metrorex. Stația Izvor (M1),(M3)(1979)
aprox.
1536 m
Metrorex. Stația Eroii Revoluției (M2)(1986)
aprox.
1721 m
Timpuri Noi
aprox.
1737 m
Statia Facultatea de Drept, linia 61,69,90,91
aprox.
1836 m
Statia Vasile Parvan 66,70,92
aprox.
1918 m
Gradinita nr. 224
aprox.
273 m
Gradinita nr.224, "Vestitorii Primaverii"
aprox.
281 m
Gradinita nr. 269
aprox.
495 m
Gradinita nr. 192 (Pisicile aristocrate)
aprox.
760 m
Gradinita nr.192, "Pisicile Aristocrate"
aprox.
774 m
Gradinita cu program prelungit Copiii Soarelui
aprox.
835 m
Gradinita Prikindel
aprox.
914 m
Gradinita de Copii nr.30 "Copiii soarelui
aprox.
916 m
Gradinita nr. 268
aprox.
931 m
Gradinita Cuibusorul Zanelor
aprox.
953 m
Cresa Micii Poznasi
aprox.
1021 m
Gradinita Barba Cot
aprox.
1173 m
Gradinita "Scufita Rosie"
aprox.
1200 m
GRĂDINIȚA DE COPII ELECTROMAGNETICA
aprox.
1272 m
Gradinita Pisicel
aprox.
1278 m
Academia Tehnica Militara
aprox.
439 m
Casa Academiei
aprox.
507 m
Facultatea de Teologie Ortodoxa
aprox.
1019 m
Academia de Studii Economice: Facultatea de Management - Administratie Publica
aprox.
1019 m
Academia de Studii Economice
aprox.
1026 m
Facultatea de medicina veterinara
aprox.
1454 m
Institutul Bancar Român
aprox.
1606 m
Universitatea din Bucuresti
aprox.
1626 m
Facultatea de Medicina Veterinara (en)
aprox.
1632 m
Facultatea de Medicina Veterinara
aprox.
1760 m
Facultatea de Sociologie si Asistenta Sociala
aprox.
1771 m
Facultatea de Sociologie și Asistență Socială
aprox.
1783 m
Clinica de Protetica si Ocluzologie si Clinica de Pedodontie
aprox.
1854 m
Universitatea Nicolae Titulescu
aprox.
1866 m
Facultatea de Stiinte
aprox.
1877 m
Liceu de Coregrafie Floria Capsali
aprox.
464 m
Liceul de Arte "Dinu Lipatti"
aprox.
507 m
COLEGIUL ECONOMIC "VIILOR"
aprox.
736 m
Colegiul Economic Viilor
aprox.
823 m
Colegiul economic "Viilor"
aprox.
827 m
Elohim Academi
aprox.
845 m
Scoala nr.74, "Enachita Vacarescu"
aprox.
853 m
Scoala nr 94
aprox.
853 m
ȘCOALA CU CLASELE I-VIII NR. 128
aprox.
894 m
Gradinita Aniela
aprox.
917 m
Scoala de Arta
aprox.
1123 m
scoala populara de arta
aprox.
1124 m
Liceul Teologic Penticostal "Emanuel"
aprox.
1147 m
Colegiul National "Ion Creanga"
aprox.
1162 m
Scoala nr.79 "Academician Nicolae Teodorescu"
aprox.
1179 m
Profi Non-Stop
aprox.
293 m
Succes
aprox.
362 m
Shop & Go
aprox.
377 m
Mega Image
aprox.
810 m
Mega Image (en)
aprox.
922 m
Mega Image
aprox.
942 m
Carrefour Express
aprox.
1008 m
Carrefour Market
aprox.
1028 m
Liberty Center Mall
aprox.
1035 m
Mega Image
aprox.
1054 m
Giulio Pantofi la comanda
aprox.
1241 m
Mega Image
aprox.
1274 m
Issa Supermarket Non-Stop
aprox.
1283 m
Carrefour express
aprox.
1307 m
dm
aprox.
1365 m
Parcare
aprox.
289 m
Parcare
aprox.
300 m
Parcare
aprox.
300 m
Parcare
aprox.
398 m
Parcare
aprox.
557 m
Parcare
aprox.
570 m
Parcare
aprox.
637 m
Parcare
aprox.
779 m
Parcare
aprox.
788 m
Parcare
aprox.
805 m
Parcare
aprox.
835 m
Parcare
aprox.
848 m
Parcare
aprox.
865 m
Parcare
aprox.
876 m
Parcare
aprox.
881 m
Piața Regina Maria
aprox.
261 m
P-ta Chirigiu
aprox.
781 m
Piața Constituției
aprox.
881 m
Piata Bibescu
aprox.
1014 m
Piata Natiunilor Unite
aprox.
1214 m
Piata Bucur
aprox.
1292 m
Piata Arsenalului
aprox.
1297 m
Piața Sfântul Anton
aprox.
1457 m
Jose Rizal Square (en)
aprox.
1565 m
Piata Timpului
aprox.
1600 m
Piata Roma
aprox.
1648 m
Piata Eroii Revolutiei (en)
aprox.
1736 m
Piața Drapelului (Tricolorului)
aprox.
1804 m
Gradina Palatului Bragadiru
aprox.
344 m
Parc
aprox.
345 m
Parcul Gara Filaret
aprox.
345 m
Parc
aprox.
348 m
Aleea principala
aprox.
501 m
Parc
aprox.
590 m
Parc
aprox.
600 m
Parc
aprox.
619 m
Parc
aprox.
645 m
Parc
aprox.
645 m
Parc
aprox.
674 m
Parcul Carol I
aprox.
679 m
Parcul Carol
aprox.
719 m
Dealul Mitropoliei
aprox.
754 m
Parc
aprox.
784 m
Teren sportiv
aprox.
805 m
Teren sportiv
aprox.
1032 m
Teren sportiv
aprox.
1193 m
Teren sportiv
aprox.
1200 m
Teren sportiv
aprox.
1226 m
Teren sportiv
aprox.
1342 m
Teren sportiv
aprox.
1344 m
Teren sportiv
aprox.
1359 m
Teren sportiv
aprox.
1362 m
Teren sportiv
aprox.
1461 m
Teren sportiv
aprox.
1506 m
Teren sportiv
aprox.
1525 m
Teren sportiv
aprox.
1525 m
Teren sportiv
aprox.
1530 m
Skate Park Tineretului
aprox.
1584 m
Oftapro
aprox.
408 m
Europe EYE Hospital (en)
aprox.
828 m
Europe Eye
aprox.
828 m
Medlife Unirii
aprox.
1072 m
Spitalul de dermato-venerologie "Prof. Dr. Scarlat Longhin" (ABANDONAT)
aprox.
1088 m
Clinica Audionova
aprox.
1107 m
Discovery Clinic (en)
aprox.
1110 m
Medicover (en)
aprox.
1128 m
Zerlendi
aprox.
1199 m
Clinica Polisano
aprox.
1203 m
Biostom Bucuresti
aprox.
1217 m
Policlinica
aprox.
1242 m
Clinica Medicala HIPOCRAT 2000
aprox.
1329 m
Maternitatea Bucur
aprox.
1337 m
Institutul National de Recuperare
aprox.
1415 m
Homeofarm
aprox.
523 m
Farmacia 20
aprox.
925 m
Pharma Vic
aprox.
1021 m
Tinos-Farm
aprox.
1025 m
Alma Farm Com 95
aprox.
1064 m
Farmacia Belladonna 54
aprox.
1211 m
Farmacia 48
aprox.
1247 m
Farmacia Sandoria
aprox.
1255 m
Farmacia Belladonna 17
aprox.
1322 m
Help Net Farma
aprox.
1334 m
Catena
aprox.
1356 m
Catena
aprox.
1376 m
Sensiblu
aprox.
1447 m
Dona Nasaud
aprox.
1458 m
Farmacia Eliana
aprox.
1473 m
Dharma
aprox.
123 m
Casa Sarbeasca
aprox.
245 m
Restaurant Business
aprox.
271 m
Restaurant Costelaria
aprox.
272 m
Anytime
aprox.
280 m
IL CANTUCCIO
aprox.
305 m
Cantuccio
aprox.
318 m
Restaurant La Giganto
aprox.
322 m
La Giganto
aprox.
331 m
Restaurant La Chef Calcan
aprox.
374 m
Presto Pizza
aprox.
378 m
Mahala Restaurant
aprox.
416 m
Restaurant PRESTO
aprox.
420 m
Suzana Ribs & Wings
aprox.
455 m
Jaristea
aprox.
460 m
Braserie Cosbuc
aprox.
225 m
Club Expirat
aprox.
434 m
Nargila Grill&Bar
aprox.
1116 m
Big Mamou
aprox.
1323 m
B Bar
aprox.
1325 m
55 Jazz
aprox.
1367 m
Qetesh
aprox.
1371 m
True Social Club
aprox.
1372 m
Pe baricade
aprox.
1392 m
Bound Club
aprox.
1400 m
Zapata Tequilla Bar
aprox.
1408 m
Corelli Wine Bar
aprox.
1412 m
Izzy Bar
aprox.
1419 m
Freddo
aprox.
1425 m
Himera
aprox.
1426 m
Long Fong
aprox.
265 m
Club Fabrica
aprox.
276 m
Carol Cafe
aprox.
371 m
The Temple
aprox.
856 m
The Harp
aprox.
1147 m
Forno d'oro
aprox.
1280 m
Queen and Clown Pub
aprox.
1354 m
D`eight Pub
aprox.
1357 m
Old City
aprox.
1370 m
Explorer's Irish Pub
aprox.
1374 m
O`Hara Irish Pub
aprox.
1376 m
Oktoberfest 3
aprox.
1377 m
The Bankers
aprox.
1383 m
Goblin Club
aprox.
1395 m
The Vintage Pub
aprox.
1412 m
Cafe Torino
aprox.
790 m
Cofetaria Raisa
aprox.
969 m
Angel Cafe
aprox.
971 m
Dalidana
aprox.
1006 m
Mall Liberty
aprox.
1032 m
Bio Cream gelateria
aprox.
1291 m
Unique
aprox.
1370 m
La Folie
aprox.
1370 m
Double Deuce's
aprox.
1374 m
Starbucks
aprox.
1379 m
Buen Humor
aprox.
1381 m
Cafe Deko
aprox.
1383 m
Crepes & Gelato artigianale
aprox.
1391 m
Arcade Cafe
aprox.
1393 m
Gelato Mio
aprox.
1397 m
BCR
aprox.
302 m
Raiffeisen
aprox.
341 m
BRD Libertatii
aprox.
352 m
Raiffeisen Bank
aprox.
355 m
BRD
aprox.
355 m
BCR
aprox.
420 m
Bancpost
aprox.
526 m
Banc post
aprox.
527 m
Volksbank
aprox.
881 m
BCR
aprox.
947 m
Intesa
aprox.
993 m
Banca Raiffeisen
aprox.
1021 m
Raiffeisen Bank
aprox.
1021 m
Raiffeisen
aprox.
1024 m
Banca Transilvania - Ag. Mall Liberty Center
aprox.
1056 m
Dacă te vei muta în zona Parcul Carol-Eroii Revoluției, vei avea la dispoziție mai multe mijloace de transport în comun. Important este să știi că acestea circulă doar pe unele dintre cele mai mari străzi și bulevarde, motiv pentru care este posibil să fie necesar să te deplasezi pe jos mai mult până la stațiile lor. Amintim astfel tramvaiul 25 pe care îl poți lua pentru a ajunge în cartierul Militari, tramvaiul 7 care te va ajuta să ajungi la Piața Unirii și stația de metrou Eroii Revoluției, aflată vis-a-vis de Cimitirul Bellu. Aceasta din urmă se află pe Magistrala 2 și oferă o conexiune rapidă atât cu centrul orașului (vei ajunge în circa 5 minute la Piața Unirii), cât și cu un pol principal de business din Capitală - Pipera și cu zona Berceni. În vecinătate vei avea și stația de metrou Tineretului. Consultă harta pentru a afla unde găsești stațiile mijloacelor de transport în comun din zonă.
În această zonă se află una dintre cele mai prestigioase unități de învățământ din Capitală, respectiv Colegiul Național "Gheorghe Șincai". Pe Șoseaua Viilor se află și Colegiul Economic Viilor care oferă pregătire cu profil economic, de comerț sau pentru domeniul turism și alimentație. Găsești pe hartă și alte instituții de învățământ aflate în zona Parcul Carol - Eroii Revoluției și în vecinătatea sa.
În zona Parcul Carol - Eroii Revoluției nu se găsesc hipermarketuri, dar dacă te vei muta aici vei avea în apropiere centrul comercial Unirea Shopping Center. Pe Calea Șerban Vodă ai câteva magazine mai mici, iar în zona Colegiului Național Gheorghe Șincai găsești un Mega Image și un Carrefour Market. În proximitate se află și Piața Norilor. Altă variantă ar putea fi complexul comercial Vulcan Value Center, care este localizat pe Strada Progresului și include numeroși retaileri, de la Jysk și Animax, la Pepco, dm sau H&M. Tot aici găsești și un hipermarket Carrefour și un magazin Kaufland. La doi pași de acesta se află mall-ul Liberty Center, dar și un magazin Lidl. Cu mașina ajungi destul de repede și la mall-ul Sun Plaza din Berceni și la Piața Sudului, recent modernizată și inaugurată chiar în 2020. Consultă harta pentru a afla care va fi cel mai apropiat magazin de viitoarea ta locuință.
Dacă preferi să te deplasezi prin oraș cu propria mașină, atunci trebuie să știi că la orele de vârf în intersecția din zona stației de metrou Eroii Revoluției traficul este de multe ori îngreunat. Îți recomandăm, totodată, să nu treci cu vederea posibilitatea închirierii unui loc de parcare. Pentru a face acest lucru va trebui să te adresezi Direcției Mobilitate Urbană Sector 4 sau Serviciului Parcaje Scop Reședință Sector 5, în funcție de localizarea noii tale locuințe. Consultă harta pentru a vedea poziționarea principalelor parcări din zonă din din împrejurimi.
Dacă ai o viață activă, îți place să faci jogging dimineața înainte să pleci la birou, să mergi pe role sau să îți ocupi sfârșitul de săptămână cu plimbări lungi în natură, atunci această zonă ar putea fi ideală pentru tine, având în vedere faptul că cea mai mare parte a sa este ocupată de Parcul Carol, iar vis-a-vis se află Parcul Tineretului. Îți place să asculți muzică live? Dacă te muți aici, vei avea la doi pași de casă complexul Arenele Romane unde se organizează periodic concerte și diverse evenimente. Chiar în Parcul Carol găsești și Muzeul Tehnic "Profesor Inginer Dimitrie Leonida", ideal pentru o vizită educativă alături de cei mici. Apropierea de Piața Unirii și de Centrul Vechi al orașului oferă numeroase alte oportunități de recreere. Găsești pe hartă mai multe puncte de interes pentru petrecerea timpului liber.
În zonă se află câteva clinici private, dar și Institutul Național de Pneumoftiziologie "Marius Nasta", acesta din urmă fiind amplasat în imediata apropiere a Pieței Eroii Revoluției. Pe Calea Șerban Vodă se află Policlinica cu Plată nr. 3. Vezi pe hartă unde sunt localizate clinicile private și din zona Parcul Carol-Eroii Revoluției.
În jurul Parcului Carol găsești mai multe restaurante și cafenele. Printre ele se numără Expirat Halele Carol - care funcționează ca bar, club, sală de concerte și terasă și poate fi găsit vis-a-vis de Autogara Filaret, și restaurantul Dineș la care ajungi practic direct din parc. Alte localuri cu terase pot fi găsite în imediata apropiere a Fântânii Zodiac aflată în Piața Libertății, chiar la intrarea în parc. Fabrica Club, un pub care dispune și de terasă și funcționează și ca un club, poate fi găsit și el la doi pași de Parcul Carol. Amplasarea privilegiată a zonei te ajută să ajungi foarte repede în Centrul Vechi al orașului, unde găsești numeroase alte restaurante, potrivite pentru toate gusturile. Consultă harta și află care este cel mai apropiat restaurant unde vei putea să iei masa în oraș, dacă te muți în zona Parcul Carol-Eroii Revoluției.
Găsești sucursale BRD și ING Bank în apropiere de stația de metrou Tineretului, și o serie de bancomate în Piața Unirii. Consultă harta și află unde sunt localizate și alte bănci și ATM-uri.
Înainte să pleci...
Ești sigur că ai văzut și aceste proprietăți?
374.990 €
București, Parcul Carol
6 camere
272 mp
126 mp teren
329.000 €
București, Parcul Carol
8 camere
178 mp
214 mp teren
363.000 €
București, Parcul Carol
7 camere
165 mp
416 mp teren
349.000 €
București, Parcul Carol
5 camere
115 mp
118 mp teren
408.000 €
București, Parcul Carol
8 camere
207 mp
248 mp teren
349.900 €
București, Parcul Carol
4 camere
120 mp
58 mp teren
Creează alertă
Salvează căutarea ca să primești pe email ultimele anunțuri publicate
Case individuale cu 4+ camere de vânzare în zona Parcul Carol, Sector 4
Cere detalii prin email
*
*
*
*
Detaliile tale de contact vor fi partajate cu Primob