Casa 4 camere 150mp | Corbeanca Tamasi | 0 comision | teren liber 330mp

205.000 €

Tamași, Județul Ilfov

Nr. cam.:
4
Sup. utilă:
150 mp
Sup. teren:
436 mp
Tip prop.:
Individuală
  • • Comision 0%
  • • Locație exactă

Descriere casă

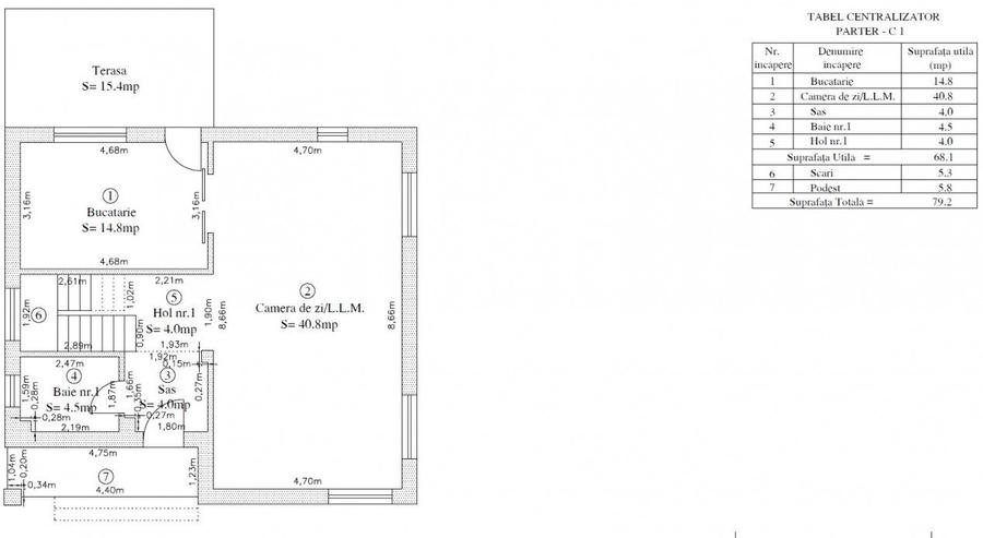
Va oferim pentru achizitie fara comision o casa individuala de 150 mp cu un teren liber de 330mp, intr-o comunitate de 3 case noi, localizate in Tamasi, Corbeanca, str. Trandafirului. La acest moment constructiile sunt finalizate, iar cumparatorul are posibilitatea sa isi aleaga finisajele. Asa cum v-am obisnuit: - toate ofertele Monga Imobiliare sunt fara comision din partea cumparatorului - pentru ca iubim transparenta, toate preturile afisate de Monga Imobiliare includ TVA (daca se aplica). Pretul afisat de noi este intotdeauna pretul final pe care il vei achita. Acceseaza Monga Imobiliare (Monga RO) pentru mai mai multe poze si pentru intreg portofoliul nostru de case si apartamente din Otopeni, Tunari, Balotesti, Corbeanca, Pipera si chiar nordul Bucurestiului. Punctele forte ale acestei case il reprezinta curtea foarte generoasa si compartimentarea interioara eficienta cu spatii largi si luminoase. Despre spatiu: Parter: acesul se face printr-un hol cu un mic spatiu pentru haine ce comunica cu o baie si mai departe cu al doilea hol. De aici se acceseaza scarile catre etaj, si un living-dining foart spatios (41mp) si luminos care comunica cu bucataria si aceasta mai departe cu terasa si curtea generoasa. La etaj avem un dormitor cu baie proprie, inca doua dormitoare si o baie. Asa cum spuneam curtea este foarte mare in comparatie cu alte case disponibile acum in piata si va permite sa va bucurati de o viata la curte in aer liber. Despre constructie: - conectata la toate utilitatile (curent trifazic, fibra optica, apa, canalizare, gaz) - Structura din cadre de beton armat si caramida - Ziduri exterioare din caramida porotherm de 30cm - Izolatie exterioara din polistiren de 10 cm - Compartimentarile interioare din caramida, finisata cu tencuiala - Camere inalte: 280cm - Incalzire in pardoseala toata casa, calorifere port-prosop in bai - Tamplarie Slamander Blue Evolution 7camere cu geam tripan - Tigla metalica - Vopsea structurata la exterior CAPAROL - Centrala termica individuala Vaillant 24KW - Gard metalic intre proprietati Casa este localizata in zona de case in zona strazii Trandafirului in Tamasi. Apeleaza cu incredere la Monga Imobiliare. Suntem alaturi de tine pana la finalizarea tranzactiei si te ajutam sa treci cu incredere si in cunostinta de cauza prin toti pasii necesari. Te putem ajuta in pregatirea documentelor, selectia notarului, obtinerea finantarii, si altele. Te asteptam sa ne contactezi.
Citește mai mult Citește mai puțin
Centrală proprie Încălzire prin pardoseală

Detalii casă

ID anunț: XFHP11034 Copiat! 255151624 Copiat!
Actualizat în: 13 Februarie 2026
Nr. bucătării: 1
Nr. băi: 3
Nr. balcoane / Terase / Logii: 2
Structură rezistență: Beton
Regim înălțime: P+1E

Utilități

Utilități
Curent Apă Canalizare Gaze Curent trifazic CATV
Amenajare străzi
Asfaltate
Izolații termice
Exterior

Disponibilitate proprietate:

imediat

Puncte de interes

Recreere
sports-ground
Teren sportiv
Terenuri sport aprox. 1429 m

Detalii despre preț și costuri

Costuri cu achiziția

Fără credit
9.944 RON
Credit ipotecar
11.927 RON
Noua casă
1.185 RON+ taxe notariale

i

Costuri adiționale mai puțin știute la achiziție: taxe notariale, comisioane etc.

Proprietăți recomandate

Detalii de contact

MONGA

Razvan Ceapa Managing Partner

5.00(3 review-uri)

MONGA
PRO

Abonează-te la newsletter să fii primul care primește cele mai noi recomandări de proprietăți și sfaturi de la experți.

CONTACT

Creează alertă

Salvează căutarea ca să primești pe email ultimele anunțuri publicate

Case individuale cu 4+ camere de vânzare în Tamași, Județul Ilfov