17

Vila cu deschidere la soseaua prinic

208.000 €

Tamași, Județul Ilfov

Nr. cam.:
5
Sup. utilă:
135,67 mp
Sup. teren:
400 mp
Tip prop.:
Individuală
  • • Locație aproximativă

Descriere casă

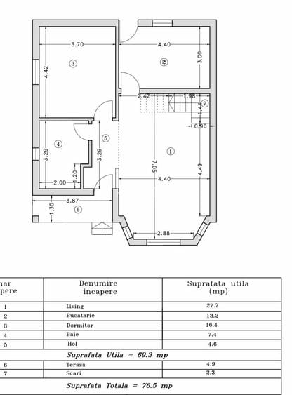
Va propunem spre vanzare vila in Tamsi, Corbeanca pozitionata la strada principala ,pozitionata pe un teren de 500 mp si bransata la canalizare, gaz si curent. Incalzirea se face prin pardoseala. La parter veti regasi un living spatios de 27.7 mp cu bucatarie inchisa de 13.2 mp, un dormitor sau birou de 16,4 mp si o baie de 7.4 mp, un hol de 4,6 mp si casa scarilor. Cu iesire din living se gaseste si o terasa acoperita. La etaj veti regasi 3 dormitoare cu suprafete de 16,3/16,4/14,8 mp, iar dormitorul matrimonla detine baie proprie de 3,6 mp si o baie pe hol de 7,2 mp. De asemenea la etaj veti regasi si doua balcoane. In curte veti regasi si 2 locuri de parcare. Daca se doresc 500 mp de teren pretul va fi 218.000 eur.
Citește mai mult Citește mai puțin
Curte Centrală proprie Încălzire prin pardoseală 3 Parcări

Detalii casă

ID anunț: X3RN010M3 Copiat! 243603910 Copiat!
Actualizat în: 25 Februarie 2026
Suprafață construită: 88.8 mp
Suprafață desfășurată: 180.54 mp
Nr. bucătării: 1
Nr. băi: 3
Nr. balcoane / Terase / Logii: 2
Nr. terase: 1
Suprafață terase: 4.9 mp
Front stradal: 42.72 m
Învelitoare acoperiș: Tabla
An construcție: 2024 (În construcție)
Structură rezistență: Beton
Regim înălțime: P+1E

Utilități

Destinație
Rezidențial De vacanță
Pereți
Faianță Vopsea lavabilă
Podele
Parchet Gresie
Ușă intrare
Metal
Uși interior
Celulare
Izolații termice
Exterior
Ferestre cu geam termopan
PVC
Contorizare
Apometre Contor gaz
Diverse
Scară interioară
Utilități
Curent Apă Canalizare
Internet
Fibră optică Wireless
Amenajare străzi
Asfaltate Mijloace de transport în comun Iluminat stradal

Vecinătăți:

5,8 km-DN1 , 200 m distanta fata de școala cu grădiniță numărul 2 din Corbeanca , statia STB 441B, biserica Sf Nicolae, spalatorie auto, sala sport, magazin alimentar , salon cosmetica si cabinet veterinar.

Alte detalii:

15 nov 2024 - casa este gata pe afara
1 mar 2025 - la cheie

Alte detalii despre preț:

Negociabil

Disponibilitate proprietate:

aprilie 2026

Puncte de interes

Recreere
sports-ground
Teren sportiv
Terenuri sport aprox. 957 m
park
Pădurea Tămași
Parcuri aprox. 1506 m

Detalii despre preț și costuri

Costuri cu achiziția

Fără credit
10.047 RON
Credit ipotecar
12.043 RON
Noua casă
1.200 RON+ taxe notariale

i

Costuri adiționale mai puțin știute la achiziție: taxe notariale, comisioane etc.

Proprietăți recomandate

Detalii de contact

REGATTA

Adina Stanescu Real Estate Broker Residential Department

4.97(42 review-uri)

REGATTA
PRO

Abonează-te la newsletter să fii primul care primește cele mai noi recomandări de proprietăți și sfaturi de la experți.

CONTACT

Creează alertă

Salvează căutarea ca să primești pe email ultimele anunțuri publicate

Case individuale cu 4+ camere de vânzare în Tamași, Județul Ilfov