Ocazie unica. - se vinde de urgenta
Localizare
In Nord-Vestul Capitalei la Km 17 fata de Centura Bucuresti, pe DN 7, imediat dupar Sabareni/ Gulia, situat chiar intre institutiile publice, respectiv la 700 m de Primaria/ de Jandarmeria si de Politia Tartasesti. Dati copy/paste la aceste coordonate chiar in sectiunea Cautare de pe Google: 44°34'48.9"N 25°49'30.6"E
Descriere proprietate:
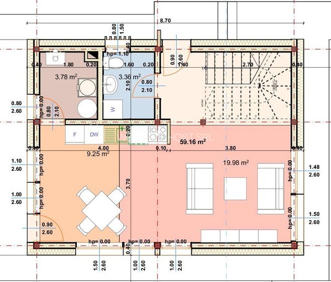
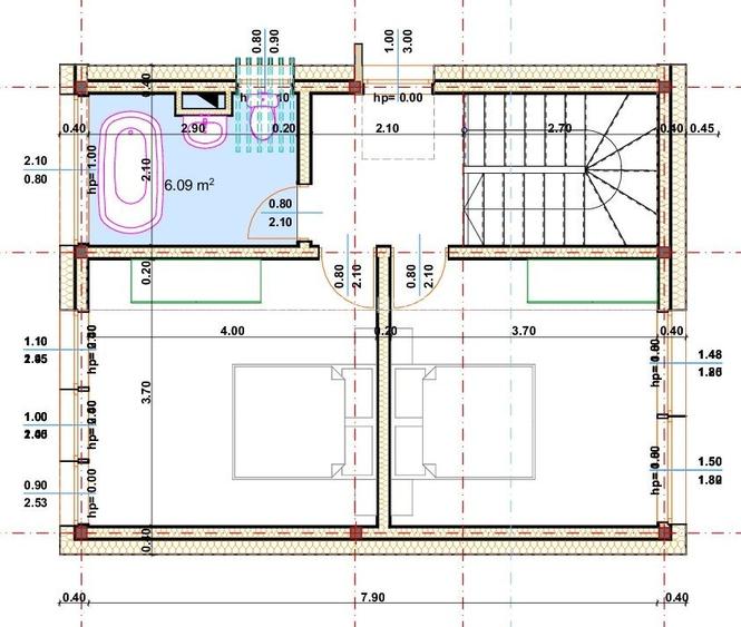
- Casa se vind e in stadiul de rosu si are supr. de 132 mp, P+M, din beton armat si caramida ceramica Portoherm, acoperita cu tabla de tip click marca Bilka, cu pivnita si cu o fundatie suprasolida de 180 cm pana la cota zero. Are un stil modern de tip Nordic care face parte dintr-un cartier rezidential in dezvoltare ce imbina mai multe modele de case respectiv din 2 sau 3 camere, cu etaj sau doar pe parter, precum si din tiny house-uri ce vor insuma peste 50 de locuinte.
- terenul aferent foarte generos de tip intravilan, construibil, avand supr. de 5.533 mp care deja este divizat in loturi mai mici de 503 mp fiecare. Aveti o OCAZIE unica asadar de a valorifica aceste loturi in mai multe feluri: fie ca dezvoltare imobiliara, acestea avand chiar si AUTORIZATII de cosntructie emise pe ele, fie ca si teren aferent locuintei achizitionate.
Utilitati
- gaze - in curs de racordare (sunt pe aceeasi strada)
- apa-din put forat la 30 m, a doua panza (apa centrala nu exista in comuna)
- fosa septica tricamerala de 3 tone, cu drenaj de 12 m lungime (autonoma, se vidanjeaza doar profilactic o data la cativa ani)
- curent electric - se va face cerere de racordare la Primarie, desi un sistem fotovoltaic de 10 KW cu un bank de baterii de 30 KW - investitie de 10 mii de eur - este arhisuficient);
Exista si varianta de locuinta 100% autonoma cu costuri lunare zero daca apelam la urmatorul sistem de incalzire:
- centrala geotermica la o adancime de 1,5 m subteran pe o supr. de 200 mp, marca Tifui (vedeti George Buhnici, va transmit oferta pe Whatsapp), insotita de incalzire in pardoseala cu pompa de caldura. Pretul acestei centrale este de 12 eur plus TVA, investitie care se recupereaza in maxim 4 ani de utilizare, avand o durata de viata garantata de 30 de ani.
Alternativ se poate merge si cu centrala de tip termosemineu automatizat (sistem modern cu pornire si setare temp. din display) pe peleti sau cu centrala alimentata pe gaz GPL, care cuplate la sistemul de incalizre in pardoseala reusesc sa aiba un randament foarte bun cu un cost redus.
Va stau la dispozitie pentru orice este nevoie pe Whatsapp/ telefon unde va transmit localizarea, prezentarea si filmarile. Cu stima. Alexandru Cristea
Sediul central - Timișoara
Bulevardul Victor Babeș nr. 2, 300230, Timișoara, România
Tel: +40.374.40.44.98 / Fax: +40.256.401.179
Email: suport@imobiliare.ro
Luni - Vineri 08:00 - 20:00
Punct de lucru - București: Iride Business Park, Bld. Dimitrie
Pompeiu 9-9A, Clădirea B2B,
020335, Sector 2, București, România
CONTACT
Sediul central - Timișoara
Bulevardul Victor Babeș nr. 2, 300230, Timișoara, România
Tel: +40.374.40.44.98 / Fax: +40.256.401.179
Email: suport@imobiliare.ro
Luni - Vineri 08:00 - 20:00
Punct de lucru - București: Iride Business Park, Bld. Dimitrie
Pompeiu 9-9A, Clădirea B2B,
020335, Sector 2, București, România
Sună acum și cere detalii sau programează o vizionare.
Cere detalii prin email
*
*
*
*
Înainte să pleci...
Ești sigur că ai văzut și aceste proprietăți?
200.000 €
Județul Dâmbovița, Corbii Mari
6 camere
130 mp
15.000 mp teren
155.000 €
Județul Dâmbovița, Tărtășești
6 camere
320 mp
8.246 mp teren
175.000 €
Județul Dâmbovița, Tărtășești
9 camere
300 mp
1.509 mp teren
60.000 € + TVA
Județul Dâmbovița, Tărtășești
3 camere
132 mp
503 mp teren
145.000 €
Județul Dâmbovița, Samurcași
4 camere
95 mp
2.431 mp teren
75.000 €
Județul Dâmbovița, Tărtășești
2 camere
75 mp
503 mp teren
Creează alertă
Salvează căutarea ca să primești pe email ultimele anunțuri publicate
Case individuale cu 3 camere de vânzare în Tărtășești, Județul Dâmbovița
Cere detalii prin email
*
*
*
*
Detaliile tale de contact vor fi partajate cu Welcome Host Srl
Preț total933.984 RON (183.292 €)
Costuri cu achiziția9.133 RON
Preț de achiziție924.851 RON
Costuri cu achiziția9.133 RON
Comision agenție Întreabă agenţia
Onorariu notarial7.746 RON
Taxă înscriere OCPI1.387 RON
Preț de achiziție924.851 RON
Preț locuință764.340 RON
TVA 21%160.511 RON
Cost total152.451 RON (29.918 €)
Avans (15%)138.728 RON
Cost achitat în prima lună2.707 RON
Costuri cu achiziția11.016 RON
Cost achitat în prima lună2.707 RON
Comision analiză dosar
400 RON - 900 RON
Taxă evaluare imobil(până la)
900 RON
Rata lunară (variabilă)4.120 RON
Asigurare anuală imobil925 RON
Arhivă electronică102 RON
Poliță PAD130 RON
Asigurare de viață/lună Costul este variabil. În funcție de banca aleasă, procentul variază între 0.0259% și 0.035% din soldul creditului.
Costuri cu achiziția11.016 RON
Comision agenție Întreabă agenţia
Onorariu notarial7.746 RON
Taxă întabulare OCPI1.387 RON
Autentificare contract credit1.883 RON
Preț de achiziție924.851 RON
Preț locuință764.340 RON
TVA 21%160.511 RON
Preț de achiziție924.851 RON
Preț locuință764.340 RON
TVA 21%
160.511 RON
Avans minim318.475 RON
Credit pe 30 de ani606.376 RON
Cost achitat în prima lună
Taxa evaluare imobil(până la)
900 RON
Rata lunară (variabilă)4.261 RON
Depozit colateral12.783 RON
Comision de garantare FNGCIMM77 RON
Asigurare anuală imobil925 RON
Poliță PAD130 RON
Tarif arhivă electronică102 RON
Costuri adiționale1.065 RON + taxe notariale
Asigurare viață și complexă (opțională)Costul este variabil. În funcție de banca aleasă, procentul variază între 0.0259% și 0.035% din soldul creditului
Onorariu notarialconform tarif notarial
Taxă întabulare OCPI1.065 RON
i
Toate valorile de mai sus sunt estimative și nu reprezintă în mod obligatoriu costurile exacte pe care le veți primi de la companiile/instituțiile prin care veți încheia tranzacția.