Apostu Estate va propune spre vanzare o casa individuala , Parter + Etaj + Mansarda , cu garaj si acces auto situata in zona Dambovita.
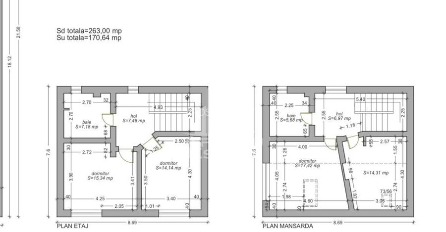
Casa dispune de 170 mp2 utili + 16 mp2 garaj + 24 mp2 terasa si este compartimentata astfel:
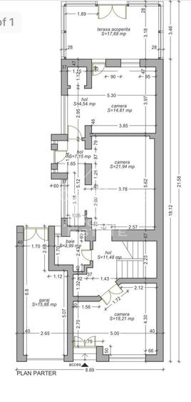
Parter:Hol acces, camera, baie cu dus, living, camera tehnica, bucatarie cu iesire la terasa,garaj.
Etajul 1: 2 dormitoare, baie cu vana si geam
Mansarda:2 dormitoare, baie cu dus si geam, pod
Casa dispune de :
-panouri solare de 9kw instalate
-program repower pentru baterie prins
-apa forata + hidrofor pentru curte
Proprietarul a renovat casa integral, inclusiv acoperisul si se vinde mobilata si utilata precum este prezentata in imagini.Dispune de 3 locuri de parcare in fata casei +garaj.
Confortul termic este asigurat de centrala proprie pe gaz, la parter incalzire prin pardoseala, la etaje calorifere.
Zona foarte linistita cu numeroase facilitati si puncte de interes precum: acces rapid si usor la mijloacele de transport in comun, supermarket-uri in apropiere, farmacii, institutii de invatamant, restaurante, baruri, cafenele si multe altele.
Acceptam orice fel de credit bancar. Oferim consultanta si solutii financiare prin colaboratorii nostri.
Va asteptam cu drag la o vizionare chiar si astazi!
CP2770823
Sediul central - Timișoara
Bulevardul Victor Babeș nr. 2, 300230, Timișoara, România
Tel: +40.374.40.44.98 / Fax: +40.256.401.179
Email: suport@imobiliare.ro
Luni - Vineri 08:00 - 20:00
Punct de lucru - București: Iride Business Park, Bld. Dimitrie
Pompeiu 9-9A, Clădirea B2B,
020335, Sector 2, București, România
CONTACT
Sediul central - Timișoara
Bulevardul Victor Babeș nr. 2, 300230, Timișoara, România
Tel: +40.374.40.44.98 / Fax: +40.256.401.179
Email: suport@imobiliare.ro
Luni - Vineri 08:00 - 20:00
Punct de lucru - București: Iride Business Park, Bld. Dimitrie
Pompeiu 9-9A, Clădirea B2B,
020335, Sector 2, București, România
Sună acum și cere detalii sau programează o vizionare.
Cere detalii prin email
*
*
*
*
Stații autobuz
Stații tramvai
Stații troleibuz
Stații tren
Gradinițe
Școli
Universități
Supermarket
Parcări
Terenuri sport
Parcuri
Piețe publice
Spital
Farmacie
Restaurant
Bar
Pub
Cafenea
Bancă
Statie Dambovita A3
aprox.
159 m
Banatul
aprox.
165 m
Statie Dambovita E7 si M36
aprox.
165 m
Statie retur Dambovita E7 si M36
aprox.
193 m
Banatul
aprox.
193 m
Dambovita
aprox.
219 m
Statie Dambovita A3
aprox.
226 m
Crizantemelor
aprox.
366 m
Transilvaniei
aprox.
368 m
Statie Lidl E7
aprox.
383 m
Statie retur Lidl E7, A3
aprox.
396 m
Statie Vaslui E7
aprox.
724 m
Piata Iuliu Maniu
aprox.
823 m
Statie Budai Deleanu E7, A3 (en)
aprox.
855 m
Statia iuliu Maniu E1, A3 (en)
aprox.
862 m
Statie de tramvai T2, T7, T9
aprox.
243 m
Dambovita
aprox.
251 m
Statie Crizantemelor T7, T2
aprox.
426 m
Transilvania
aprox.
543 m
Statie B-dul Dambovita Tv9, Tv7
aprox.
553 m
Statie B-dul Dambovita Tv7
aprox.
601 m
Statie Transilvania Tv9
aprox.
614 m
Mangalia
aprox.
619 m
Statie Mangalia T7, T2
aprox.
649 m
Statie Iuliu Maniu T2, T7
aprox.
847 m
Iuliu Maniu
aprox.
896 m
Statie Tramvai 9 - Arta Textila
aprox.
991 m
Calea Sagului
aprox.
1008 m
Arta Textila
aprox.
1069 m
Statie Arta textila Tv9
aprox.
1094 m
Statie Gelu T18
aprox.
1122 m
Statie Solventul T18
aprox.
1170 m
Statie Ghe. Baritiu T11, T14
aprox.
1173 m
Statie Pop de Basesti T11, T14, T18
aprox.
1288 m
Statie Pop de Basesti T11, T14, T18
aprox.
1301 m
Timisoara North railway station area (en)
aprox.
1359 m
Terminal RESITA
aprox.
1489 m
Gara de Nord
aprox.
1554 m
Gradinita Program Prelungit Nr. 30
aprox.
33 m
Gradinita nr. 31
aprox.
706 m
Kinderhaus Minissa
aprox.
742 m
Scoala Gimnaziala nr. 27
aprox.
759 m
Gradinita Program Normal Nr. 15
aprox.
797 m
Gradinita Program Prelungit Nr. 31
aprox.
819 m
Gradinita particulara Minissa
aprox.
888 m
Gradinita cu program normal nr. 10
aprox.
899 m
Gradinita Program Prelungit Nr. 3
aprox.
963 m
Gradinita cu program prelungit nr. 3
aprox.
988 m
Gradinita Notre Dame
aprox.
1164 m
Gradinita Program Normal Nr. 17
aprox.
1213 m
Gradinita Cordiana
aprox.
1277 m
Gradinita nr. 23
aprox.
1313 m
Gradinita Program Prelungit Nr. 14
aprox.
1321 m
Scoala generala NR 6 ( clasele I - VIII )
aprox.
102 m
Scoala Gimnaziala nr. 6
aprox.
109 m
Liceul Teologic Penticostal Logos
aprox.
400 m
Liceul Teologic Penticostal LOGOS Timisoara
aprox.
406 m
Scoala Generala Nr. 27
aprox.
754 m
Scoala Generala Nr.12
aprox.
1082 m
Liceul de Arte Plastice
aprox.
1279 m
Liceul Teoretic Dositei Obradovici
aprox.
1288 m
Colegiul Tehnic de Vest
aprox.
1311 m
COLEGIUL NATIONAL BANATEAN si LICEU TEORETIC "DOSITEI OBRADOVICI"
aprox.
1334 m
Colegiul National Banatean
aprox.
1345 m
Grup scolar Industrial Transporturi Cai ferate
aprox.
1440 m
Colegiul Tehnic Dimitrie Leonida
aprox.
1446 m
SCOALA GIMNAZIALĂ NR.2
aprox.
1519 m
Scoala Gimnaziala nr. 2
aprox.
1519 m
ELIM Evanghelical Theological Seminary (en)
aprox.
1707 m
Lidl Budai Deleanu
aprox.
372 m
Lidl
aprox.
398 m
Centrul Comercial Dallas
aprox.
527 m
Carrefour Market
aprox.
554 m
Profi Sagului
aprox.
1087 m
Profi
aprox.
1087 m
Kaufland
aprox.
1136 m
Profi City
aprox.
1251 m
Billa
aprox.
1276 m
Carrefour
aprox.
1389 m
Profi City
aprox.
1489 m
Profi Piata Sinaia
aprox.
1542 m
Shopping City Timisoara
aprox.
1556 m
Profi City
aprox.
1814 m
Profi City
aprox.
1909 m
Parcare
aprox.
359 m
Parcare
aprox.
368 m
Parcare
aprox.
379 m
Parcare
aprox.
413 m
Parcare
aprox.
516 m
Parcare
aprox.
517 m
Parcare
aprox.
538 m
Parcare
aprox.
585 m
Parcare
aprox.
668 m
Parcare
aprox.
707 m
Parcare
aprox.
718 m
Parcare
aprox.
730 m
Parcare
aprox.
840 m
Parcare
aprox.
853 m
Parcare
aprox.
1033 m
Teren sportiv
aprox.
149 m
Teren sportiv
aprox.
415 m
Teren sportiv
aprox.
636 m
Teren sportiv
aprox.
644 m
Teren sportiv
aprox.
728 m
Teren sportiv
aprox.
1172 m
Teren sportiv
aprox.
1536 m
Teren sportiv
aprox.
1567 m
Teren sportiv
aprox.
1603 m
Teren sportiv
aprox.
1739 m
Teren sportiv
aprox.
1857 m
Teren sportiv
aprox.
1904 m
Teren sportiv
aprox.
1951 m
Parc
aprox.
618 m
Parcul Clabucet
aprox.
625 m
Parcul Clabucet
aprox.
625 m
Balta Mica
aprox.
968 m
Piata Veteranilor
aprox.
1233 m
Parc
aprox.
1475 m
Parc
aprox.
1506 m
Parc
aprox.
1560 m
Parc Steaua
aprox.
1688 m
Parc Steaua
aprox.
1742 m
Parc
aprox.
1744 m
Parcul Petofi Sandor
aprox.
1771 m
Piata Petofi Sandor
aprox.
1778 m
Parc
aprox.
1879 m
Piata Sinaia
aprox.
1605 m
Piața Maria
aprox.
1934 m
Clinica de Psihiatrie
aprox.
988 m
Farmacia Siregon
aprox.
992 m
Centru Medical Grigoras
aprox.
999 m
Policlinica Vacarescu
aprox.
1000 m
Centrul Medical Grigoras
aprox.
1006 m
Neuromed
aprox.
1176 m
BRAUN
aprox.
1237 m
Dermatomed (en)
aprox.
1284 m
Maternitate Spital Odobescu
aprox.
1437 m
Odobescu Maternity (en)
aprox.
1443 m
Spitalul de Obstetrica si Ginecologie
aprox.
1447 m
Policlinica C.F.R.
aprox.
1466 m
Spitalul de neurospihiatrie infantila
aprox.
1739 m
Medicina Legala
aprox.
1963 m
Spitalul CFR timisoara
aprox.
1967 m
Vlad
aprox.
1022 m
Catena
aprox.
1258 m
Farmacia DONA
aprox.
1836 m
Sf. Maria
aprox.
1871 m
Aurora
aprox.
421 m
La Renaissance
aprox.
502 m
Nora
aprox.
564 m
Terasa Nora
aprox.
568 m
Restaurant Clasic
aprox.
614 m
Pizzeria Della Casa !
aprox.
712 m
La Pizzaccia
aprox.
786 m
Restaurant/Pizza Bistra
aprox.
881 m
Antalia
aprox.
1035 m
Zet
aprox.
1049 m
Fast Food Sultan
aprox.
1476 m
Petito (en)
aprox.
1498 m
Pizza Hut
aprox.
1579 m
KFC
aprox.
1592 m
Casa Bunicii 2
aprox.
1648 m
Amore
aprox.
907 m
DUGA CLUB
aprox.
1144 m
Zanoni
aprox.
1757 m
Caffe Tim Nord
aprox.
1523 m
Daos Club
aprox.
1953 m
Starbucks
aprox.
1606 m
COPA Caffe
aprox.
1648 m
Viniloteca
aprox.
1974 m
UniCredit Bank
aprox.
868 m
ING
aprox.
869 m
Piraeus Bank
aprox.
873 m
BRD
aprox.
907 m
BCR
aprox.
907 m
Bancpost (en)
aprox.
1038 m
Banca Transilvania
aprox.
1209 m
Banca Romaneasca
aprox.
1229 m
BRD
aprox.
1229 m
BCR (Banca Comercială Română)
aprox.
1247 m
Alpha Bank (en)
aprox.
1268 m
Banca Transilvania
aprox.
1417 m
Raiffeisen Bank
aprox.
1463 m
ING Bank
aprox.
1470 m
BCR
aprox.
1496 m
La capitolul mijloace de transport în comun, timișorenii din Dâmbovița sunt deserviți de liniile de tramvai 7 și 9 (care pornesc amândouă de la Depoul Dâmbovița, de pe strada cu același nume), dar și de câteva autobuze (printre care 33, 33B, E8, care circulă pe Calea Șagului). Spre deosebire de iubitorii de ciclism din Iosefin, cei din Dâmbovița nu au acces la prea multe piste dedicate, singura asemenea amenajare demnă de menționat fiind cea de pe Calea Șagului, în dreptul cimitirului cu același nume.
Dâmbovița este, datorită vechimii sale, o zonă rezidențială bine reprezentată în materie de oportunități de educație. Dintre instituțiile de învățământ existente aici, de menționat ar fi Grădinița "Minissa" (de pe Strada Paul Constantinescu, nr. 3), Școala Generală Nr. 6 (pe Strada Vulturilor, nr. 50), Școala Gimnazială Nr. 27 (pe Strada Frunzei, nr. 45), dar și Liceul Teologic Penticostal "Logos" (pe Strada Transilvania, nr. 22). La fel ca majoritatea cartierelor timișorene, inclusiv învecinatul Iosefin, Dâmbovița nu oferă, practic, nicio opțiune în ceea ce privește învățământul superior. Acest fapt nu reprezintă, însă, un mare dezavantaj, dat fiind că importanța factorului proximitate se diminuează la vârsta studenției. Mai jos poți vedea în detaliu ce unități de învățământ există în Dâmbovița:
Principalul punct forte al cartierului este reprezentat de faptul că aici se găsește unul dintre cele două malluri ale orașului, anume Shopping City Timișoara. Amplasat în sudul cartierului, pe Calea Șagului, nr. 100, acesta include, pe lângă numeroasele magazine de fashion, și un hipermarket Carrefour. De menționat este, totodată, că în apropiere se află și un magazin de bricolaj din rețeaua Dedeman. Este evident că locuitorii acestei zone a orașului de pe Bega au la dispoziție, pentru nevoile uzuale, și o serie de unități comerciale de dimensiuni mai mici "“ printre acestea se numără și un supermarket Lidl, amplasat în apropiere de Parcul Clăbucet, pe Strada Budai Deleanu, nr. 47.
Principala arteră de circulație din această zonă a Timișoarei este cea care îi dă, de altfel, și numele "“ este vorba, desigur, despre Bulevardul Dâmbovița, care străbate cartierul pe aproape toată suprafața sa, de la nord la sud-est. De la limita cu zona Calea Șagului această arteră se continuă cu Bulevardul Liviu Rebreanu. Pentru că în zonele mai aglomerate ale cartierului găsirea unui loc permanent de parcare poate ridica, cel puțin uneori, anumite dificultăți, șoferii se pot interesa cu privire la procedura de închiriere a unui asemenea spațiu la sediul central al Primăriei (amplasat pe Bulevardul Constantin Diaconovici Loga, nr. 1).
Locuitorii din acest cartier nu prea multe opțiuni la dispoziție când vine vorba de parcuri, astfel că singurul demn de menționat la acest capitol ar fi, practic, Parcul Clăbucet (amplasat în estul cartierului, în imediata apropiere a cimitirului Calea Șagului). Pentru iubitorii de sport din Dâmbovița, cele mai facile modalități de a face mișcare ar fi joggingul, ciclismul, dar și mersul pe jos; cei care își doresc, totuși, ceva mai mult decât atât pot apela la serviciile unei săli de fitness. Un avantaj important pentru pasionații de pescuit este că în vestul cartierului se găsește un lac pretabil pentru așa ceva, cunoscut sub numele de "Balta Balaurului".
Locuitorii cartierului au acces, desigur, la o serie de cabinete particulare cu diverse specializări, dar și la un centru medical privat de dimensiuni mai mari. Este vorba despre Policlinica "Dr. Grigoraș" (de pe Calea Șagului, nr. 20) "“ parte din rețeaua de Regina Maria, aceasta oferă acces la peste 15 specializări medicale. Timișorenii din această zonă a orașului pot ajunge cu ușurință și în Iosefin, unde se află o clinică MedLife (pe Bulevardul General Ion Dragalina, nr. 37A); de aici până în zona Cetate mai este, practic, doar un pas, în centrul orașului aflându-se unități medicale precum Spitalul Clinic Municipal de Urgență sau Spitalul Militar de Urgență. Pe harta de mai jos găsești localizarea exactă a spitalelor și clinicilor din zonă:
Găsești aici câteva fast food-uri de cartier, precum și restaurante cu tradiție, între care restaurantul Nora, de pe Bulevardul Dâmbovița, nr. 40, al cărui meniu cu specific românesc este extrem de variat. Totuși, mall-ul Shopping City Timișoara, poate fi o altă opțiune, aici regăsind atât pizzerii, restaurante, cafenele cât și un food-court la ultimul nivel. Aruncă o privire pe hartă și vezi unde vei găsi cel mai apropiat restaurant de viitoarea ta locuință.
Găsești un bancomat Banca Transilvania, precum și o sucursală pe Bulevardul Dâmbovița nr. 49. Totuși, vei găsi și mai multe bancomate sau sucursale bancare în cadrul mall-ului Shopping City Timișoara. Consultă harta și află unde sunt localizate și alte bănci sau ATM-uri în zona de care ești interesat.
Înainte să pleci...
Ești sigur că ai văzut și aceste proprietăți?
269.000 €
Timișoara, Dâmbovița
4 camere
125 mp
250 mp teren
289.000 €
Timișoara, Iosefin
7 camere
170 mp
426 mp teren
288.900 €
Timișoara, Dâmbovița
6 camere
170 mp
411 mp teren
290.000 €
Timișoara, Plopi
5 camere
199 mp
472 mp teren
450.000 €
Timișoara, Dâmbovița
7 camere
350 mp
600 mp teren
359.980 €
Timișoara, Freidorf
4 camere
150 mp
418 mp teren
Creează alertă
Salvează căutarea ca să primești pe email ultimele anunțuri publicate
Case individuale cu 4+ camere de vânzare în zona Dâmbovița, Timișoara
Cere detalii prin email
*
*
*
*
Detaliile tale de contact vor fi partajate cu Apostu Estate