3

Casa pe parter, individuala de vanzare, 5 camere, 3 bai, Girocului

550.000 €

Girocului, Timișoara

Nr. cam.:
5
Sup. utilă:
167 mp
Sup. teren:
628 mp
Tip prop.:
Individuală
  • • Locație aproximativă
  • • Vizionare prin apel video

Descriere casă

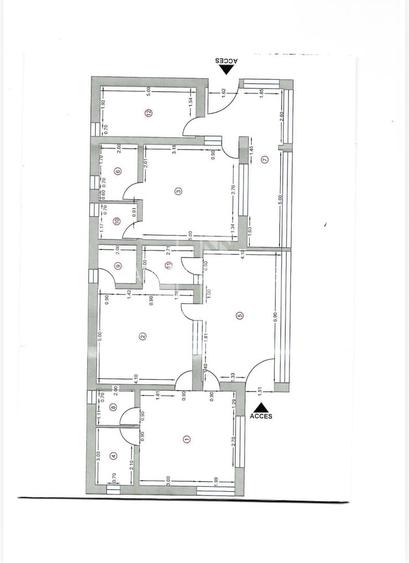
Apostu Estate va propune spre vânzare o proprietate deosebită situată în Timișoara, finalizată în anul 2025, construită pe un teren generos de 628 mp și având o suprafață construită de 213,4 mp. Imobilul este realizat pe o fundație solidă, conform proiectului de construcție, aceasta permițând extinderea cu încă un etaj + mansardă. Casa se intinde pe o suprafata utila de 167 mp utili si este compartimentata astfel: -Living - 4 dormitoare -2 dressinguri/Birou -3 bai -Bucatarie -Camera tehnica Casa beneficiază de o izolație exterioară de 20 cm polistiren și de un acoperiș din panou sandwich, pentru eficiență energetică și durabilitate, incălzire în pardoseală complet automatizată, cu control al temperaturii prin aplicație mobilă, centrală Buderus de înaltă performanță, sistem complet de alarmă, camere video și interfon. Toate sistemele inteligente, inclusiv deschiderea porții auto, pot fi controlate din aplicație,casa beneficiaza si de panouri fotovoltaice de 6 kW cu sistem de stocare de 10 kW, două panouri solare pentru apă caldă Accesul auto în curte se face printr-o poartă automatizată, acționată electric, care oferă confort și siguranță la intrare, deasemenea in curte avem o parcare interioara pentru 4 masini cat si spatii verzi amenajate. Va asteptam la o vizionare chiar astazi! CP2851709
Citește mai mult Citește mai puțin
Mobilat Parțial mobilat Curte Aer condiționat Calorifere Termoficare 4 Parcări

Detalii casă

ID anunț: XBAF113UN Copiat! 273078668 Copiat!
Actualizat în: 07 Martie 2026
Suprafață desfășurată: 214 mp
Nr. bucătării: 1
Nr. băi: 3
Front stradal: 17.5 m
Învelitoare acoperiș: Tabla
An construcție: 2025 (Finalizată)
Structură rezistență: Cărămidă

Utilități

Jaluzele
Verticale
Pereți
Faianță Vopsea lavabilă
Podele
Gresie Parchet
Ușă intrare
Metal
Uși interior
Lemn
Izolații termice
Exterior
Ferestre cu geam termopan
PVC
Contorizare
Apometre
Bucătărie
Mobilată Utilată
Electrocasnice
Aragaz Frigider Hotă Mașină de spălat Mașină spălat vase
Diverse
Telecomandă poartă garaj
Facilități imobil
Acoperiș
Utilități
Curent Apă Canalizare Gaze
Internet
Cablu
Amenajare străzi
Asfaltate
Comision
standard

Certificat energetic:

Clasa energetică: A

Disponibilitate proprietate:

Imediat

Puncte de interes

Mijloace transport
tram-station
Statie Mures Tv7
Stații tramvai aprox. 184 m
tram-station
Statie Lidia Tv7
Stații tramvai aprox. 260 m
bus-station
Statie Mures A32
Stații autobuz aprox. 527 m
trolleybus-station
Statie Maresal C-tin Prezan T15, T19
Stații troleibuz aprox. 983 m
Școală
kindergarten
Gradinita Waldorf
Gradinițe aprox. 167 m
school
Scoala Sfantul Antim Ivireanul
Școli aprox. 503 m
kindergarten
Gradinita Barbie
Gradinițe aprox. 529 m
university
Institutul de Cercetari pentru Energii Regenerabile
Universități aprox. 926 m
Recreere
park
Parc
Parcuri aprox. 226 m
sports-ground
Teren sportiv
Terenuri sport aprox. 429 m
public-square
Piata Aron Cotrus
Piețe publice aprox. 635 m
supermarket
Profi
Supermarket aprox. 723 m

Detalii despre preț și costuri

Costuri cu achiziția

Fără credit
21.777 RON
Credit ipotecar
25.224 RON
Noua casă
2.942 RON+ taxe notariale

i

Costuri adiționale mai puțin știute la achiziție: taxe notariale, comisioane etc.

Proprietăți recomandate

Detalii de contact

APOSTU ESTATE

Alexandra Vezureanu Broker

4.24(6 review-uri)

APOSTU ESTATE
PRO

Abonează-te la newsletter să fii primul care primește cele mai noi recomandări de proprietăți și sfaturi de la experți.

CONTACT

Creează alertă

Salvează căutarea ca să primești pe email ultimele anunțuri publicate

Case individuale cu 4+ camere de vânzare în zona Girocului, Timișoara