5

Proiect deosebit zona Medicina / Isho

795.000 €

Medicină, Timișoara

Nr. cam.:
8
Sup. utilă:
370 mp
Sup. teren:
660 mp
Tip prop.:
Individuală
  • • Locație aproximativă
  • • Vizionare prin apel video

Descriere casă

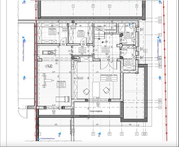
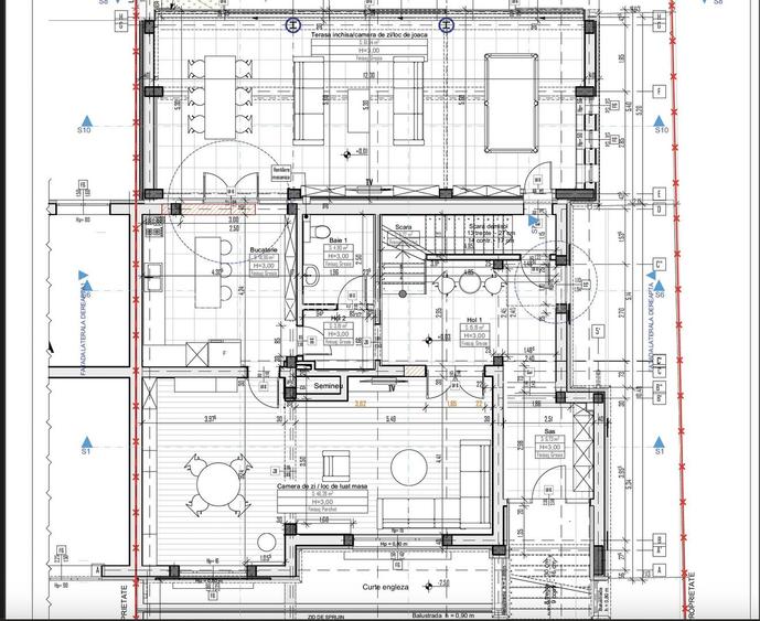
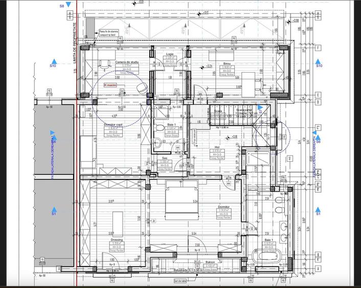
Casa deosebita cu un proiect bine gandit pretabil atat pentru locuit cat si pentru activitati comerciale Imobilul este ideal pentru desfășurarea unei game variate de activități comerciale și profesionale, datorită suprafeței generoase, compartimentării eficiente și poziționării într-o zonă accesibilă din Timișoara, în apropierea complexului universitar de Medicină. Proprietatea dispune de multiple încăperi ce pot fi utilizate ca birouri individuale, săli de tratament, spații educaționale sau zone administrative, oferind flexibilitate maximă în organizarea activității. Configurația pe mai multe niveluri permite separarea funcțională a departamentelor sau a fluxurilor de clienți/pacienți, fiind potrivită pentru clinici medicale, cabinete, centre de recuperare, firme de servicii, sediu corporate, showroom, școală privată, grădiniță sau pensiune urbană. Spațiile sunt luminoase, cu posibilitate de amenajare modernă conform cerințelor fiecărui domeniu. Proprietatea beneficiază de curte proprie și locuri de parcare, aspect esențial pentru accesul facil al clienților și personalului. Amplasarea într-o zonă cu infrastructură bună și proximitate față de instituții importante, mijloace de transport și puncte de interes crește vizibilitatea și potențialul comercial al imobilului. Prin dimensiuni, versatilitate și poziționare, această vilă reprezintă o oportunitate excelentă pentru investiție sau pentru dezvoltarea unui business stabil într-o zonă cu cerere ridicată. - Clinica medicala - activitati de birou - centru medical - clinica stomatologica
Citește mai mult Citește mai puțin
4 Parcări

Detalii casă

ID anunț: X47N111LP Copiat! 275277992 Copiat!
Actualizat în: 01 Mai 2026
Suprafață desfășurată: 440 mp
Nr. bucătării: 1
Nr. băi: 4
Nr. terase: 1
An construcție: 1979 (La gri)
Structură rezistență: Cărămidă
Regim înălțime: S+P+1E

Utilități

Utilități
Curent Apă Canalizare CATV Gaze Telefon
Internet
Cablu
Amenajare străzi
Iluminat stradal Mijloace de transport în comun Asfaltate
Comision
standard

Disponibilitate proprietate:

Imediat

Puncte de interes

Mijloace transport
bus-station
Prefectura
Stații autobuz aprox. 59 m
tram-station
Statie Prefectura Tv1, Tv2, Tv4, Tv6
Stații tramvai aprox. 158 m
trolleybus-station
Statie Bastion T11, T17
Stații troleibuz aprox. 263 m
train-station
Gara de Est
Stații tren aprox. 1307 m
Școală
school
Colegiul National Ana Aslan
Școli aprox. 59 m
school
Colegiul Național "Ana Aslana
Școli aprox. 88 m
university
Universitatea de Medicina
Universități aprox. 98 m
kindergarten
Gradinita Program Prelungit Posta
Gradinițe aprox. 106 m
Recreere
park
Piata Eftimie Murgu
Parcuri aprox. 8 m
sports-ground
Teren sportiv
Terenuri sport aprox. 212 m
supermarket
Bega Shopping Center
Supermarket aprox. 474 m
mall
Kappa Centrul Comercial
Mall aprox. 1377 m

Detalii despre preț și costuri

Costuri cu achiziția

Fără credit
Credit ipotecar
Noua casă

i

Costuri adiționale mai puțin știute la achiziție: taxe notariale, comisioane etc.

Insight premium disponibil după login

Proprietăți similare

Casă individuală cu 9 camere în Girocului
850.000 €
Timișoara, Girocului
9 camere
600,72 mp
2.362 mp teren
Casă individuală cu 18 camere în Bălcescu
750.000 € + TVA
Timișoara, Bălcescu
18 camere
466 mp
493 mp teren
Casă individuală cu 18 camere în Lipovei
790.000 €
Timișoara, Lipovei
18 camere
470 mp
514 mp teren

Detalii de contact

Sodolescu Imobiliare si Constructii Srl

Valentin SODOLESCU Coordonator Marketing

4.59(8 review-uri)

Sodolescu Imobiliare si Constructii Srl
PRO

Abonează-te la newsletter să fii primul care primește cele mai noi recomandări de proprietăți și sfaturi de la experți.

Feedback apel

CONTACT

Creează alertă

Salvează căutarea ca să primești pe email ultimele anunțuri publicate

Case individuale cu 4+ camere de vânzare în zona Medicină, Timișoara