Va invit sa analizati aceasta cladire, de vanzare, situata langa Palatul Cotroceni. Este un imobil construit in 2015, o cladire multifunctionala cu destinatie de birouri, dotata si finisata la un standard de calitate foarte ridicat.
Imobilul este proiectat si a fost executat cu o foarte mare atentie la detalii, spatiile sunt versatile si foarte luminoase. Proiectul arhitectural este unul foarte apreciat de specialistii din domeniu, fiind nominalizat la Premiile Bienalei Nationale de Arhitectura editia 2016, dar si la nivel european prin nominalizarea la Premiul UE pentru Arhitectura Contemporanat 2027- Premiul Mies Van der Rohe.
Nu puteam folosi o descriere mai potrivita, decat aceea a celor care au gandit, proiectat si executat aceasta cladire:
"Proiectul este o încercare de a aborda problemele care sunt importante pentru noi: cum putem compensa (la scară mică) deficitul tot mai mare de zone verzi din București și relația dintre spațiul interior/privat și exterior/spațiul colectiv.
Este situat pe o strada linistita cu case vechi, copaci inalti, parfum de tei si caprifoi, nu departe de Palatul Cotroceni. Limita din spate a proprietății este sudică și este mărginită de un parc cu copaci înalți care arată silueta Academiei Militare.
Am încercat să păstrăm clădirea fidelă tipologic și morfologic spațiului din jur: cartier rezidențial caracterizat prin străduțe cu parcele înguste.
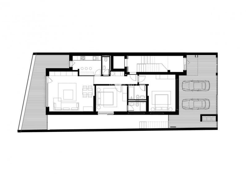
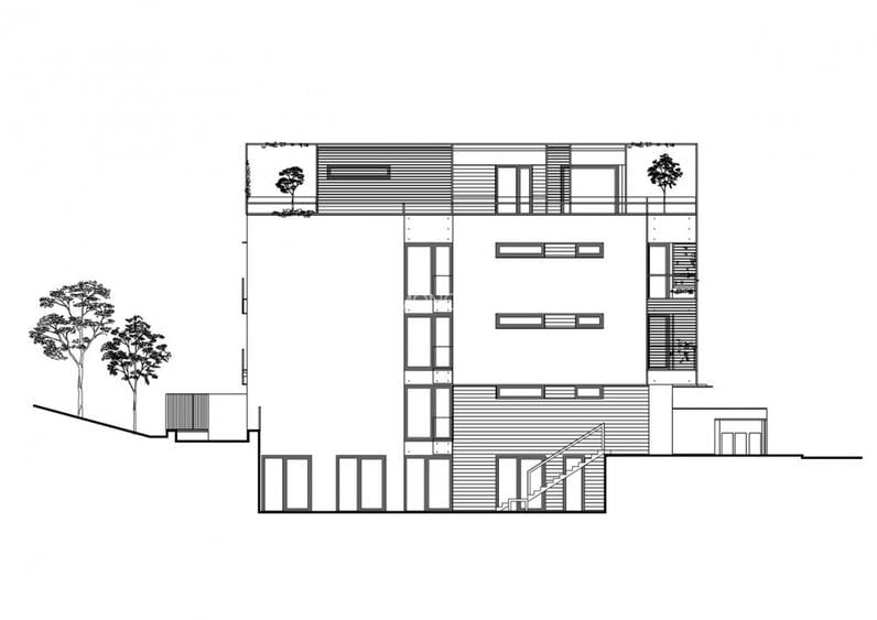
Cladirea pe 4 nivele are cate un apartament pe etaj si un subsol cu curte englezeasca. Această clădire a înlocuit o clădire veche fără valoare arhitecturală și cu serioase probleme structurale. Scopul proiectului a fost o casă „vie” capabilă să ofere senzații vizuale, tactile și olfactive, cu grădină – terase și „chiriași de copaci”, cu spaliere pentru plante cățărătoare și suporturi pentru flori de caprifolium. În timp, toate cele de mai sus ar putea forma „structuri bio-piele vii”, acționând ca dispozitive de răcire. Trecerea spațiului exterior / spațiului public al orașului și spațiul interior / personal este filtrul arhitectural al clădirii . Terasele sunt elemente prețioase care mediază și articulează interacțiunea dintre spațiul colectiv și spațiul singular.
Arhitectura reflectă viața interioară care evoluează în timp în funcție de modul în care este locuită de patina materialelor și de creșterea plantelor. Conține promisiuni și incertitudini. Materialele care au fost folosite pentru construcție sunt ingredientele care au făcut ca conceptul să prindă viață. Folosirea materialelor devine o expresie „sinceră” care nu ascunde imperfecțiunile și scoate la iveală robustețea etapelor de construcție – beton la vedere, suduri, asamblare de metale și sticlă. Rezultatul vorbește prin contraste între materiale, cu lumini și umbre reflectorizante care depind de anotimp și de momentul zilei. Terenul dificil - cu un nivel ridicat al apei și trei izvoare active descoperite în timpul lucrărilor - a necesitat operațiuni controlate de demontare, consolidare și hidroizolare a incintei. De la început până la sfârșit (1 an) construcția a fost supravegheată și condusă în toate fazele direct de către arhitecți.
Lemnul este folosit ca material „viu” cu sensibilitate deosebită, proprietăți tactile, capabil să „atrage” și să inducă o anumită stare. Locația sa este aleasă pentru a permite apropierea, atingerea directă. Prin urmare, fațada din zona teraselor are elemente verticale realizate integral din lemn tratat cu ulei. Contribuie la compoziția generală a casei, dar este accesibilă direct și de aproape. Plafoanele din lemn sunt foarte vizibile din stradă și foarte plăcute de pe terase, încadrate de margini din plăci de metal negre. . Plăcile din lemn și metal sunt montate cu atenție, cu caneluri pe pereți, tavane și punți, permițând ventilația și schimbările de dimensiune datorită variațiilor de umiditate și temperatură. "
In prezent este inchiriata in totalitate, are un randament bun, contractele de inchiriere sunt pe perioada lunga, iar chiriasii sunt foarte seriosi.
Asadar, va invitam la vizionare !
Citește mai mult
Citește mai puțin
Aer condiționat
Centrală proprie
2 Parcări
Bine întreținut (Bună)
Sediul central - Timișoara
Bulevardul Victor Babeș nr. 2, 300230, Timișoara, România
Tel: +40.374.40.44.98 / Fax: +40.256.401.179
Email: suport@imobiliare.ro
Luni - Vineri 08:00 - 20:00
Punct de lucru - București: Iride Business Park, Bld. Dimitrie
Pompeiu 9-9A, Clădirea B2B,
020335, Sector 2, București, România
CONTACT
Sediul central - Timișoara
Bulevardul Victor Babeș nr. 2, 300230, Timișoara, România
Tel: +40.374.40.44.98 / Fax: +40.256.401.179
Email: suport@imobiliare.ro
Luni - Vineri 08:00 - 20:00
Punct de lucru - București: Iride Business Park, Bld. Dimitrie
Pompeiu 9-9A, Clădirea B2B,
020335, Sector 2, București, România
Statie RATB Calea 13 Septembrie / Soseaua Progresului, linia 1, 8, 11, 25, 47
aprox.
1025 m
Statia RATB "Bd. Vasile Milea": 8, 11, 25, 47
aprox.
1029 m
Statie RATB
aprox.
1110 m
Calea 13 Septembrie
aprox.
1120 m
Sos. Progresului
aprox.
1146 m
Sebastian
aprox.
1232 m
Fosta Gara Regala Cotroceni (en)
aprox.
566 m
Vechea "Gara a Targovistei" astazi parte din Gara de Nord
aprox.
1796 m
Gara Bucuresti Nord
aprox.
1837 m
Gara Bucuresti-Cotroceni
aprox.
1977 m
statia RATB Eroilor: 69, 96
aprox.
754 m
Statia Stirbei Voda, linia 96
aprox.
864 m
Statia Pod Cotroceni, linia 93, 62, 96
aprox.
877 m
Statia Piata Operei, linia 61,69,90,91
aprox.
900 m
Statia Facultatea de Drept, linia 61,69,90,91
aprox.
1344 m
Statia Vasile Parvan 66,70,92
aprox.
1495 m
Statia RATB Favorit, linia troleibuz 69,71 si linia autobuz 126
aprox.
1765 m
Statie Gara Basarab 133, 178, 282, 105, 123, 162, 780
aprox.
1990 m
Advanced Distributed Learning Department - "Carol I" National Defence University (en)
aprox.
166 m
Universitatea Nationala de Aparare "Carol I"
aprox.
219 m
Sala de Sport
aprox.
231 m
Camin
aprox.
238 m
Facultatea de chimie
aprox.
242 m
Laborator al Facultatii de Chimie
aprox.
242 m
Facultatea de Chimie a UB
aprox.
249 m
Facultatea de Administratie si Afaceri
aprox.
315 m
Facultatea de Moase si Asistenta Medicala
aprox.
464 m
Catedra de Biofizica Medicala
aprox.
503 m
Universitatea de Medicină și Farmacie Carol Davila
aprox.
533 m
Amfiteatrul SUUB
aprox.
606 m
Corp A
aprox.
710 m
Facultatea de Jurnalism
aprox.
710 m
Facultatea de Electronica si Tehnologia Informatiei
aprox.
722 m
Facultatea de Administratie si Afaceri (Universitatea din Bucuresti)
aprox.
242 m
Cladirea centrala Universitatea Nationala de Aparare Carol I
aprox.
283 m
Facultatea de Psihologie si Stiintele Educatiei - Sediul nou
aprox.
285 m
Centrul de performanta
aprox.
441 m
Phillip afterschool
aprox.
513 m
ȘCOALA CU CLASELE I-VIII NR. 146
aprox.
517 m
Mica sirena
aprox.
542 m
ȘCOALA CU CLASELE I-VIII NR. 150
aprox.
724 m
Colegiul tehnic Iuliu Maniu
aprox.
864 m
aa
aprox.
1076 m
Scoala Nr. 115
aprox.
1130 m
Scoala nr 115
aprox.
1138 m
Club Sportiv nr. 5
aprox.
1187 m
Fostul Liceu de Arte Plastice Nicolae Tonitza - Local Cursuri
aprox.
1237 m
Clubul Sportiv Scolar nr.5
aprox.
1244 m
Gradinita nr. 271
aprox.
378 m
Gradinita Adnan
aprox.
578 m
Gradinita Olga Gudynn
aprox.
829 m
Gradinita MAPN nr.1
aprox.
1149 m
Gradinita nr. 75
aprox.
1180 m
GRĂDINIȚA DE COPII NR. 75
aprox.
1204 m
GRĂDINIȚA DE COPII NR. 33
aprox.
1241 m
Gradinița Dumbrava Fermecată
aprox.
1284 m
Gradinita "Casa Montessori"
aprox.
1346 m
Gradinita Madeleine
aprox.
1452 m
Gradinita de copii nr. 285
aprox.
1510 m
Gradinita nr. 268
aprox.
1524 m
Gradinita Cuibusorul Zanelor
aprox.
1540 m
Gradinita Zum-zum
aprox.
1584 m
Gradinita Dreams World
aprox.
1594 m
Mega Image
aprox.
466 m
Carrefour Panduri
aprox.
475 m
Economat
aprox.
477 m
Lidl
aprox.
745 m
Mega Image
aprox.
1109 m
Mayo Next
aprox.
1124 m
Complex Comercial Nick Center
aprox.
1124 m
Real hypermarket (en)
aprox.
1126 m
AFI Cotroceni
aprox.
1127 m
Carrefour express
aprox.
1172 m
Auchan Cotroceni
aprox.
1238 m
Prosper Plaza
aprox.
1286 m
Complex Orizont
aprox.
1329 m
Mega Image
aprox.
1396 m
Carrefour Orhideea
aprox.
1512 m
Intrarea in caminele C si D din grozavesti
aprox.
1338 m
Parcare
aprox.
453 m
Parcare
aprox.
464 m
Parcare
aprox.
738 m
Parcare
aprox.
772 m
Parcare
aprox.
785 m
Parcare
aprox.
791 m
Parcare
aprox.
825 m
Parcare privata
aprox.
839 m
Parcare
aprox.
863 m
Parcare
aprox.
882 m
Parcare
aprox.
894 m
Parcare
aprox.
932 m
Parcare
aprox.
933 m
Parcare privata
aprox.
935 m
Parcare privata
aprox.
939 m
Piața Eroilor
aprox.
153 m
Intersectia Leu
aprox.
616 m
Jose Rizal Square (en)
aprox.
1057 m
Piata Arsenalului
aprox.
1156 m
Piata Emil Cioran (Vergilius) (en)
aprox.
1585 m
P-ta Chirigiu
aprox.
1995 m
Parcul Davila (en)
aprox.
189 m
Parc
aprox.
219 m
Loc de joaca
aprox.
220 m
Gradina Palatului Cotroceni
aprox.
349 m
Cotroceni
aprox.
349 m
Parcul Romniceanu
aprox.
370 m
Loc de joaca
aprox.
397 m
Parc
aprox.
409 m
Parcul Romniceanu
aprox.
410 m
Parc
aprox.
529 m
Miniparculet
aprox.
639 m
Parc
aprox.
646 m
Grădina botanică
aprox.
714 m
Gradina Botanica Bucuresti
aprox.
714 m
Parcul Eroilor
aprox.
799 m
Teren sportiv
aprox.
400 m
Teren sportiv
aprox.
427 m
Teren sportiv
aprox.
519 m
Teren sportiv
aprox.
674 m
Teren sportiv
aprox.
749 m
Teren sportiv
aprox.
776 m
Teren sportiv
aprox.
792 m
Teren sportiv
aprox.
801 m
Teren sportiv
aprox.
816 m
Teren Antrenament
aprox.
828 m
Stadionul Cotroceni
aprox.
829 m
Teren sportiv
aprox.
847 m
Teren sportiv
aprox.
847 m
Teren sportiv
aprox.
878 m
Teren sportiv
aprox.
933 m
Top Uni Derm Clinic Dermatology - Doctor Professor Olga Simionescu
aprox.
235 m
Policlinica Panduri
aprox.
508 m
Clinica Medsana
aprox.
556 m
Clinica medicala dentara (en)
aprox.
558 m
Medsana Cotroceni
aprox.
567 m
Policlinica Cotroceni
aprox.
617 m
Ambulatoriu SUUB
aprox.
640 m
Ambulator
aprox.
662 m
Centrul Medical Panduri
aprox.
663 m
Centru Medical Panduri (en)
aprox.
669 m
Unitatea De Primiri Urgente - UPU SUUB
aprox.
682 m
Heliport Emergency University Hospital of Bucharest
aprox.
748 m
Institutul National de Expertiza Medicala si Recuperare a Capacitatii de Munca
aprox.
768 m
I.N.E.M.R.C.M. - Institutul National de Expertiza Medicala si Recuperare a Capacitatii de Munca
aprox.
773 m
Institutul National pentru medicina complementara si alternativa
aprox.
815 m
Help Net Farma
aprox.
487 m
Help Net
aprox.
598 m
Farmacia Dona 71
aprox.
674 m
Farmacia Fulbog
aprox.
700 m
Farmacia Dona
aprox.
852 m
Clinica
aprox.
975 m
Help Net Farma
aprox.
1032 m
Sensiblu
aprox.
1106 m
Helpnet
aprox.
1134 m
Farmacia Catena
aprox.
1141 m
Ivo Pharm Impex
aprox.
1199 m
Rondfarm
aprox.
1211 m
Farmacia Iancului 57
aprox.
1218 m
Alissa Non-Stop
aprox.
1287 m
Farmacia Richter
aprox.
1299 m
Joie de Vivre
aprox.
171 m
Ceai la Cotroceni
aprox.
256 m
Ceai la Cotroceni
aprox.
264 m
Il Tempio
aprox.
343 m
Restaurant Bradet (en)
aprox.
345 m
Bunaciuni de mancat
aprox.
360 m
ZEBRA
aprox.
411 m
Restaurant Casa Persia
aprox.
432 m
CASA LATINA
aprox.
437 m
La Vioara Rosie
aprox.
442 m
Domino`s Pizza
aprox.
452 m
Fast-Food Angy
aprox.
490 m
Golden Blitz
aprox.
497 m
Wellness Cuisine
aprox.
516 m
Restaurantul Wellness Cuisine
aprox.
525 m
Ceainaria Cotroceni
aprox.
287 m
Blitz Caffe
aprox.
515 m
Anturaj Caffe
aprox.
942 m
Roland 1811 cafe
aprox.
971 m
Dante Cafe
aprox.
1310 m
Ramayana Cafe
aprox.
1626 m
Caffe Bordo
aprox.
1674 m
Pardon Cafe
aprox.
1701 m
Jessie's
aprox.
1732 m
Lala Cafe
aprox.
1747 m
Caffeine & Latte
aprox.
1873 m
Bouche Bee
aprox.
1885 m
Kafeterya Cafe
aprox.
1923 m
Dolce Baccio
aprox.
1966 m
Taverna Bradet
aprox.
355 m
Snatch Pub
aprox.
730 m
Quantic Pub
aprox.
877 m
Filos Pub
aprox.
1265 m
Lucky Poin
aprox.
1314 m
StudentPub
aprox.
1324 m
Victor Pub
aprox.
1419 m
Club Piranha
aprox.
1660 m
Roxy Pub
aprox.
1666 m
Biliard
aprox.
1889 m
Caffe No. 35
aprox.
686 m
La Jeg
aprox.
845 m
Marvin bar&more
aprox.
905 m
DanDana
aprox.
1137 m
The Roof
aprox.
1286 m
Stuf Vama Veche
aprox.
1522 m
Letters Bar
aprox.
1562 m
Rock'n'Regie
aprox.
1573 m
BRD Cotroceni
aprox.
440 m
CEC Bank
aprox.
597 m
Sucursala ING Bank
aprox.
702 m
ING Cotroceni
aprox.
702 m
Sucursala Banca Transilvania
aprox.
737 m
Banca Transilvania - Ag. Cotroceni
aprox.
750 m
MKB Nextebank - Sediul Central
aprox.
807 m
CEC Bank
aprox.
878 m
ING
aprox.
971 m
BRD
aprox.
971 m
Agentie ING
aprox.
981 m
Agentie BRD
aprox.
985 m
Unicredit-Tiriac Bank (en)
aprox.
991 m
RIB Romanian International Bank
aprox.
1013 m
Banca Transilvania
aprox.
1013 m
Fiind o zonă ultracentrală, aceasta oferă numeroase opțiuni de călătorie cu mijloacele de transport în comun, și este bine conectată cu restul orașului. Ai, în primul rând, la dispoziție stațiile de metrou Piața Victoriei, Piața Romană și Universitate. Astfel, te vei putea deplasa rapid prin oraș, evitând aglomerația de la suprafață. Toate acestea sunt situate pe magistrala 2 care traversează Bucureștiul de la nord la sud. În plus, de la Piața Victoriei vei putea lua metroul și pe magistrala 1 pentru a ajunge, de exemplu, în cartierul Pantelimon sau în zona Eroilor. Prin Piața Universității urmează să treacă și magistrala 5 care va lega cartierele Drumul Taberei și Pantelimon. Până acum, s-au deschis însă doar stațiile de metrou aflate în zona Drumul Taberei. Alte mijloace de transport în comun care ar putea să-ți fie de ajutor atunci când te vei muta în această zonă sunt autobuzele 300 și 381. Primul face legătura dintre Piața Romană și Piața Victoriei continuându-și apoi traseul de-a lungul Bulevardului Ion Mihalache, iar cel de-al doilea conectează Piața Victoriei cu zona Tineretului și cu cartierul Berceni. De pe Bulevardul Regina Elisabeta vei putea lua troleibuzul 90 pentru a ajunge în Drumul Taberei sau în zona Arenei Naționale, iar în fața Spitalului Colțea vei găsi stația autobuzului 381 care merge în cartierul Berceni. Iar dacă preferi să te deplasezi pe două roți, vei avea la dispoziție una dintre pistele speciale destinate bicicliștilor pe Calea Victoriei. Aceasta îți va oferi, în plus, oportunitatea ideală de a admira arhitectura deosebită a clădirilor aflate de o parte și de alta a uneia dintre cele mai frumoase străzi din București. Consultă harta pentru a afla unde sunt localizate stațiile mijloacelor de transport în comun.
În această zonă găsim sediul central al Universității din București și cel al Academiei de Studii Economice din București (ASE), unele dintre cele mai prestigioase instituții de învățământ superior din România. Tot aici se află și sediile mai multor facultăți. Ai și alte instituții de învățământ cu renume la doi pași de casă, precum precum Colegiul Național "Sfântul Sava", Colegiul Național "Gheorghe Lazăr", Liceul Teoretic Bulgar "Hristo Botev" și Universitatea Națională de Muzică. De menționat este și Căminul Moxa, aflat în zona Calea Victoriei, în care sunt cazați unii dintre studenții ASE. Consultă harta de mai jos pentru a vedea și celelalte unități de învățământ din zonă.
În această parte a orașului vei găsi numeroase reprezentanțe ale unor branduri de lux. Cele mai multe magazine alimentare din zonă au dimensiuni reduse. Pentru cumpărături îți recomandăm Piața Amzei, aflată la doi pași de Romană și modernizată recent. Aici găsești, pe lângă comercianți de unde poți cumpăra legume și fructe și câteva magazine cu preparate proaspete de la burgeri, la pâine artizanală sau înghețată. Centrul Vechi găzduiește, totodată, reprezentanțe ale unor retaileri de modă. Tot aici găsești și librăria Cărturești Carusel, una dintre cele mai frumoase din oraș. O librărie Cărturești deschisă într-o altă clădire deosebită poate fi găsită și în apropiere de Piața Romană. Un spațiu comercial cu renume este Magazinul Victoria, un monument istoric al orașului. Magazinul București, amplasat la intersecția străzilor I.C. Brătianu și Lipscani a fost reconstruit recent cu o investiție substanțială. Ai în apropiere magazinul Cocor, centrul comercial Unirea Shopping City și un hipermarket Carrefour. Cu mașina sau metroul poți să ajungi destul de repede la mall-ul AFI Cotroceni. Consultă harta și vezi ce magazine vei avea în apropierea noii tale case.
Aceasta este una dintre cele mai aglomerate zone din București la orele de vârf. Aici găsești însă și unele dintre puținele parcări subterane din Capitală. Chiar vis-a-vis de Universitatea București ai intrarea într-o astfel de parcare cu peste 400 de locuri. O parcare destul de încăpătoare poate fi găsită și în Piața Victoriei. Atenție, însă, această zonă se poate aglomera nu doar din cauza traficului, ci și din cauza diverselor manifestări sau proteste care se organizează, de obicei, în fața Palatului Victoria, sediul Guvernului României. Dacă te hotărăști să te muți în zonă, atunci îți recomandăm să te interesezi de posibilitatea închirierii unui loc de parcare pentru mașina ta. Poți face acest lucru apelând la Serviciul Parcaje al ADP Sector 1. Consultă harta pentru a afla unde găsești și alte parcări în zona Victoriei-Romană-Universitate.
Zona Victoriei - Romană - Universitate este un epicentru cultural al Capitalei și oferă numeroase opțiuni de petrecere a timpului liber. Aici vei găsi numeroase muzee impresionante pe care le poți vizita în timpul liber (Muzeul Național de Istorie Naturală "Grigore Antipa", Muzeul Țăranului Român, Muzeul Național George Enescu, etc), vei putea participa la evenimentele în aer liber desfășurate pe Calea Victoriei sau în Piața George Enescu sau vei putea merge la un spectacol organizat pe scena Ateneului Român sau pe cea a Teatrului Notarra. Nu rata nici o vizită la Teatrul Național "I.L. Caragiale" și la Muzeul Național de Artă al României. Observatorul Astronomic Amiral Vasile Urseanu te așteaptă cu o experiență extrem de educativă care va fi, cu siguranță, apreciată de micuțul tău. Dacă îți place să ieși la o cafea în timpul liber alături de prietenii tăi, atunci în această zonă vei putea alege dintr-o multitudine de restaurante, terase și pub-uri. Nu lipsesc nici skybar-urile, care îți oferă priveliști de excepție de la înălțime. Cele câteva parcuri din zona Victorieim - Romană - Universitate au dimensiuni destul de reduse, dar sunt frumos îngrijite. Printre acestea amintim Parcul Ateneului și Parcul Nicolae Iorga. Dacă preferi plimbările lungi în weekend, atunci vei avea la dispoziție în apropiere parcurile Kiseleff și Cișmigiu. Nu uita, de asemenea, că te vei afla la doi pași de Centrul Vechi al Capitalei, dar și că vei putea să faci o plimbare cu bicicleta pe Calea Victoriei. În condiții normale, se organizează periodic evenimente în centrul orașului, atât în cadrul Sălii Palatului, cât și în aer liber în Piața Revoluției. În Piața Universității sunt organizate, totodată, diferite târguri și concerte. Vezi pe hartă mai multe puncte de interes din zona Victoriei-Romană-Universitate.
Chiar la Piața Universității se află principala unitate sanitară din zonă. Este vorba despre Spitalul Clinic Colțea, primul înființat în București. În zona Victoriei - Romană - Universitate vei întâlni mai multe clinici private, precum Policlinica Enescu din cadrul rețelei de sănătate Regina Maria și Spitalul Clinic Sanador. La doi pași de Piața Romană se află Spitalul Clinic de Urgențe Oftalmologice, cel mai mare din România cu o astfel de specializare. Consultă harta pentru a afla ce clinici private ai în apropierea casei, dacă te muți în această parte a orașului.
Găsești numeroase restaurante, terase și cafenele potrivite pentru toate gusturile în Centrul Vechi al orașului, pe Calea Victoriei sau în zona din spatele Ateneului Român. Câteva fast food-uri ai la dispoziție în Unirea Shopping Center. Nu foarte departe, în zona Romană, ai și alte opțiuni. Află de pe hartă unde găsești cel mai apropiat restaurant de noua ta casă.
Sucursale ale diferitelor bănci sunt dispuse de-a lungul principalelor artere de circulație sau în marile intersecții din zonă. Un BRD, spre exemplu, găsești chiar lângă Cercul Militar Național. Pe Bulevardul Nicolae Bălcescu o sucursală Banca Transilvania și ING Bank. La doi pași de Piața Universității se află și Palatul Băncii Naționale a României. Consultă harta pentru mai multe detalii.
Înainte să pleci...
Ești sigur că ai văzut și aceste proprietăți?
1.795.000 €
București, Centrul Istoric
46 camere
1.615 mp
398 mp teren
1.800.000 € + TVA
București, Pipera
6 camere
300 mp
450 mp teren
1.750.000 €
București, Iancu Nicolae
8 camere
600 mp
1.350 mp teren
Creează alertă
Salvează căutarea ca să primești pe email ultimele anunțuri publicate
Case individuale cu 4+ camere de vânzare în Ultracentral, București
Cere detalii prin email
*
*
*
*
Detaliile tale de contact vor fi partajate cu Imonord