SVN Romania va propune spre vanzare o superba vila situata in inima Bucurestiului, pe Bulevardul Lascar Catargiu, in imediata apropiere de Piata Romana si de Piata Victoriei.
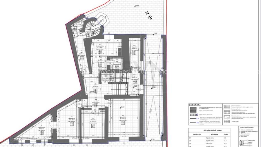
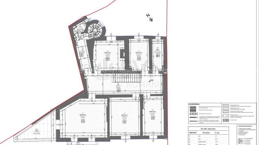
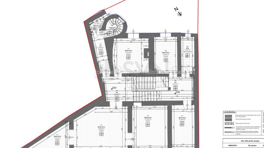
Imobilul a fost construit aproximativ in anul 1930, si se afla la stadiul de consolidare/renovare fiind structurat pe S+D+P+1E+M si are o suprafata utila de aprox 500 mp,
Vila este compusa din 16 camere si poate fi amenajata lpentru orice tip de activitate.
Structura:
- infrastructura (fundatii): beton;
- suprastructura: rezistenta: ziduri portante din caramida; compartimentari interioare
si inchideri perimetrale: caramida;
- plansee: beton armat;
- acoperis: sarpanta: lemn; invelitoare: tigle tip olane.
Pentru moment nu detinem informatii despre clasa energetica a imobilului.
Pentru mai multe informatii sau pentru stabilirea unei vizionari, nu ezitati sa ne contactati.
În zona Victoriei se intersectează străzi, bulevarde cunoscute și foarte tranzitate din capitală, precum Calea Victoriei, bulevardul Lascăr Catargiu, bulevardul Kiseleff, bulevardul Iancu de Hunedoara, bulevardul Aviatorilor și bulevardul Ion Mihalache.
Acest lucru înseamnă că zona Victoriei reprezintă unul dintre cele mai importante noduri rutiere ale Bucureștiului, având acces rapid la două magistrale de metrou și la autobuzele 205, 300, 381, 783, 182.
La Victoriei se regăsesc mai multe clădiri cu o arhitectură interesantă cum ar fi:
● Muzeul Național de Istorie Naturală Grigore Antipa;
● Muzeul Țăranului Român;
● Guvernul României.
Imobile în zona Victoriei
Începând cu anii 1980, în cartierele din vecinătatea zonei Victoriei, cum ar fi Titulescu sau 1 Mai, au fost construite blocuri de 10 etaje, apartamentele din acest blocuri fiind foarte căutate pe piața imobiliară datorită prețurilor accesibile și a compartimentării avantajoase.
Din punct de vedere al calității, dezvoltatorii s-au axat atât pe segmentul rezidențial, cât și pe cel de birouri, finalizând proiecte imobiliare de top.
Proiectele imobiliare care au fost dezvoltate recent sunt formate din blocuri de apartamente cu regim de înălțime redus, care se încadrează perfect în estetica zonei
Aici vei găsi apartamente de tip studio, de două, trei sau patru camere, precum și apartamente moderne cu compartimentare open-space sau penthouse-uri.
Sediul central - Timișoara
Bulevardul Victor Babeș nr. 2, 300230, Timișoara, România
Tel: +40.374.40.44.98 / Fax: +40.256.401.179
Email: suport@imobiliare.ro
Luni - Vineri 08:00 - 20:00
Punct de lucru - București: Iride Business Park, Bld. Dimitrie
Pompeiu 9-9A, Clădirea B2B,
020335, Sector 2, București, România
CONTACT
Sediul central - Timișoara
Bulevardul Victor Babeș nr. 2, 300230, Timișoara, România
Tel: +40.374.40.44.98 / Fax: +40.256.401.179
Email: suport@imobiliare.ro
Luni - Vineri 08:00 - 20:00
Punct de lucru - București: Iride Business Park, Bld. Dimitrie
Pompeiu 9-9A, Clădirea B2B,
020335, Sector 2, București, România
Statie Gara Basarab 133, 178, 282, 105, 123, 162, 780
aprox.
1898 m
Statia Stirbei Voda, linia 96
aprox.
1998 m
Vechea "Gara a Targovistei" astazi parte din Gara de Nord
aprox.
1417 m
Gara Bucuresti Nord
aprox.
1555 m
SNSPA
aprox.
167 m
Scoala Nationala de Studii Politice si Administrative (SNSPA)
aprox.
171 m
Scoala Nationala de Studii Politice si Administrative
aprox.
171 m
ASE Cladirea Veche 1916 - 1926 (en)
aprox.
423 m
ASE - Sala de sport
aprox.
441 m
Academia Romana
aprox.
445 m
Academia de Studii Economice
aprox.
451 m
ASE - Cladirea Cihoschi
aprox.
456 m
Amfiteatrele ASE
aprox.
468 m
ASE Cibernetica (en)
aprox.
553 m
ASE - Facultatea de Comert
aprox.
557 m
Facultatea de Administrarea Afacerilor cu predare in limbi straine
aprox.
559 m
Scoala de Inalte Studii Postuniversitare de Management
aprox.
559 m
Universitatea Nationala de Arte (sculptura)
aprox.
563 m
ASE - Cibernetica
aprox.
587 m
Gradinita de copii nr.50
aprox.
177 m
Liceu - Scoala Europeana Bucuresti
aprox.
261 m
Colegiul German Goethe
aprox.
402 m
French School of Bucharest (en)
aprox.
406 m
Scoala Generala Elena Vacarescu
aprox.
430 m
Scoala 186
aprox.
431 m
Liceul George Enescu
aprox.
465 m
Liceul Nicolae Tonitza
aprox.
467 m
Liceul de muzică George Enescu
aprox.
473 m
Cambridge School Of Bucharest (en)
aprox.
533 m
Cambridge School
aprox.
571 m
Cladirea Virgil Madgearu
aprox.
572 m
Scoala Americana
aprox.
650 m
Colegiul Tehnic de Arhitectură și Lucrări Publice Ioan N. Socolescu
aprox.
716 m
Liceul Bulgar Hristo Botev
aprox.
732 m
Gradinita nr. 252 cu program prelungit
aprox.
601 m
Gradinita nr. 116
aprox.
611 m
Gradinita nr. 85
aprox.
613 m
Gradinita nr. 2
aprox.
926 m
Ioanid
aprox.
1011 m
Grădinița nr. 252
aprox.
1026 m
Gradinita Ioanid
aprox.
1030 m
Gradinita de copii nr.251
aprox.
1032 m
Gradinita nr. 138 cu program prelungit
aprox.
1148 m
Gradinita Smiley
aprox.
1153 m
Gradinita cu program normal si prelungit Happy Kids
aprox.
1188 m
Gradinita cu Program Prelungit Nr. 248
aprox.
1227 m
Gradinita nr. 203 program prelungit
aprox.
1230 m
Gradinita nr. 248
aprox.
1230 m
Gradinita nr. 112
aprox.
1239 m
Bila Supermarket
aprox.
517 m
BILLA - Dorobanti
aprox.
548 m
Mega Image - IANCU DE HUNEDOARA
aprox.
568 m
Nik Non-Stop
aprox.
687 m
Mega Image Amzei Non-Stop
aprox.
690 m
Mega Image Magheru
aprox.
825 m
Bacania Coco
aprox.
898 m
Mega Image
aprox.
1030 m
ilanplant
aprox.
1030 m
Mega Image
aprox.
1100 m
Mario Plaza
aprox.
1109 m
Mega Image Rosetti Non-Stop
aprox.
1153 m
Mega Image Brezoianu
aprox.
1181 m
Mega Image
aprox.
1227 m
Mega Image
aprox.
1308 m
"METROPLIS CENTER"
aprox.
536 m
Parcare privata
aprox.
419 m
Parcare
aprox.
421 m
Parcare
aprox.
424 m
Parcare
aprox.
456 m
Parcare
aprox.
467 m
Parcare
aprox.
474 m
Parcare
aprox.
519 m
Parcare Subterana Metropolis Center
aprox.
569 m
Parcare cu plata
aprox.
572 m
Parcare
aprox.
583 m
Parcare
aprox.
614 m
Parcare
aprox.
621 m
Parcare cu plata
aprox.
622 m
Parcare
aprox.
626 m
Parcare
aprox.
647 m
Parcul Nicolae Iorga
aprox.
280 m
Parcul Nicolae Iorga
aprox.
290 m
Statuia lui Ion (Ionel) I.C. Bratianu
aprox.
406 m
Parcul Ion I. C. Bratianu
aprox.
417 m
Parcul Ion C. Bratianu
aprox.
420 m
Parc
aprox.
437 m
Parc
aprox.
535 m
Parcul Piata Romana
aprox.
555 m
Parc
aprox.
721 m
Parc
aprox.
742 m
Perla park
aprox.
742 m
Parc
aprox.
847 m
Parc
aprox.
852 m
Parcul Luigi Cazzavillan
aprox.
871 m
Luigi Cazzavillan
aprox.
871 m
Piața Romană
aprox.
452 m
Piata Revolutiei
aprox.
1219 m
Piața Aviatorilor
aprox.
1257 m
Piata Emil Cioran (Vergilius) (en)
aprox.
1281 m
Piața Drapelului (Tricolorului)
aprox.
1656 m
Piata Universitatii
aprox.
1702 m
Piata Rosetti
aprox.
1857 m
Teren sportiv
aprox.
622 m
Teren sportiv
aprox.
693 m
Teren sportiv
aprox.
772 m
Stadionul Dinamo
aprox.
1039 m
Teren sportiv
aprox.
1140 m
Teren sportiv
aprox.
1142 m
Teren sportiv
aprox.
1179 m
Teren sportiv
aprox.
1220 m
Teren sportiv
aprox.
1283 m
Teren sportiv
aprox.
1372 m
teren tenis
aprox.
1605 m
Baza sportiva Universitatea Bucuresti
aprox.
1637 m
Teren sportiv
aprox.
1846 m
Teren sportiv
aprox.
1871 m
Clinica Audionova
aprox.
221 m
Medicover Victoriei & Pediatrie
aprox.
232 m
Spitalul Grigore Alexandrescu
aprox.
277 m
Spitalul clinic de urgenta pentru copii Grigore Alexandrescu
aprox.
288 m
Spitalul clinic de nefrologie "Dr. Carol Davila"
aprox.
524 m
Spitalul Carol Davila de urologie
aprox.
563 m
Spitalul Clinic de Nefrologie Dr. Carol Davila
aprox.
563 m
Ambulatoriul de specialitate al Spitalului de copii Grigore Alexandrescu
aprox.
605 m
Spital Sanador
aprox.
614 m
Sanador - Spital
aprox.
614 m
policlinica de copii Grigore Alexandrescu
aprox.
614 m
INFOSAN Clinica Oftalmologica
aprox.
640 m
Centrul de diagnostic si tratament
aprox.
661 m
Policlinica C.M.D.T.A.M.P.
aprox.
664 m
Policlinica
aprox.
668 m
Sensiblu
aprox.
237 m
Village
aprox.
341 m
Farmacia Santia
aprox.
344 m
Farmacia Agifarm
aprox.
391 m
Farmacia City Pharma
aprox.
478 m
Farmacia Centrofarm 85
aprox.
499 m
Catena
aprox.
533 m
Sensiblu
aprox.
558 m
Farmacia Terapia
aprox.
579 m
Farmaplus
aprox.
596 m
3F Farmacie Farmec Frumusete
aprox.
637 m
Farmacia Dona 14
aprox.
637 m
Farmacia HelpNet
aprox.
645 m
Sensiblu Pt. Amzei
aprox.
656 m
Farmacia Dona
aprox.
659 m
Restaurant Nan Jing
aprox.
57 m
Restaurant Minerva
aprox.
72 m
Restaurant "Casa Frumoasa"
aprox.
155 m
Miko
aprox.
198 m
Casa Vernescu
aprox.
281 m
Omnivore's Dilemma
aprox.
307 m
The Artist
aprox.
321 m
Metuka
aprox.
343 m
Gurmand express
aprox.
348 m
Bistro Jaristea
aprox.
349 m
Trattoria Buongiorno
aprox.
356 m
Domino's Pizza
aprox.
371 m
Restaurant La Tiganci
aprox.
371 m
Sangria
aprox.
388 m
La Placinte
aprox.
401 m
El Bistro
aprox.
279 m
Happy Pub
aprox.
366 m
Zappa Rock & More
aprox.
584 m
Frame
aprox.
628 m
A1
aprox.
665 m
ACAB Pub
aprox.
722 m
Clubul Taranului
aprox.
899 m
Piua Book Bar
aprox.
905 m
Sky Bar
aprox.
941 m
Lokal
aprox.
972 m
Fratelli Espresso Bar
aprox.
1049 m
Alan Dala
aprox.
1133 m
Stuf Vama Veche
aprox.
1381 m
Cup & Cake
aprox.
1414 m
Que Pasa
aprox.
1434 m
Venchi 1878
aprox.
307 m
Cafe Boheme
aprox.
358 m
Cafe 3
aprox.
381 m
Admiral Cafe
aprox.
402 m
Reader's Cafe
aprox.
530 m
Meron Coffee
aprox.
600 m
Tucano Coffee - Dorobanti
aprox.
609 m
Tucano Coffee
aprox.
622 m
Mon Amour
aprox.
651 m
Camera din Fata
aprox.
675 m
Music Rooms Cafe
aprox.
683 m
J'ai Bistrot
aprox.
703 m
Nescafe Milano
aprox.
715 m
Cafe Antipa
aprox.
719 m
Sufrageria cu Jocuri
aprox.
753 m
Le Cafe Inmedio
aprox.
612 m
Studio Martin
aprox.
643 m
Panik & Pub
aprox.
767 m
OLD NICK PUB
aprox.
840 m
Open Pub
aprox.
1103 m
Doncafe Brasserie
aprox.
1136 m
Waldo's
aprox.
1140 m
The Dubliner
aprox.
1214 m
James Joyce's Pub & Restaurant
aprox.
1339 m
The Place
aprox.
1504 m
Question Mark Social Club
aprox.
1512 m
Coloseum
aprox.
1534 m
Smart's Pub & Bistro
aprox.
1578 m
Edgar`s Pub
aprox.
1620 m
Nexus Gamers Pub
aprox.
1656 m
City Bank
aprox.
303 m
Raiffeisen Bank - Agentia Bucuresti - Persoane Juridice
aprox.
342 m
CEC Bank
aprox.
362 m
Banca Transilvania - Suc. Victoria
aprox.
388 m
Banca Romaneasca
aprox.
408 m
BRD Europa
aprox.
441 m
ING Bank - Sediul Central
aprox.
445 m
BRD Victoriei
aprox.
460 m
Raiffeisen Bank - Agentia Bucuresti
aprox.
466 m
Raiffeisen
aprox.
502 m
BCR - Sucursala Municipiului Bucuresti
aprox.
522 m
Raiffeisen Bank - Agentia Piata Romana
aprox.
523 m
BRD Moxa
aprox.
525 m
BRD Dacia
aprox.
528 m
Intesa Sanpaolo Bank
aprox.
538 m
Fiind o zonă ultracentrală, aceasta oferă numeroase opțiuni de călătorie cu mijloacele de transport în comun, și este bine conectată cu restul orașului. Ai, în primul rând, la dispoziție stațiile de metrou Piața Victoriei, Piața Romană și Universitate. Astfel, te vei putea deplasa rapid prin oraș, evitând aglomerația de la suprafață. Toate acestea sunt situate pe magistrala 2 care traversează Bucureștiul de la nord la sud. În plus, de la Piața Victoriei vei putea lua metroul și pe magistrala 1 pentru a ajunge, de exemplu, în cartierul Pantelimon sau în zona Eroilor. Prin Piața Universității urmează să treacă și magistrala 5 care va lega cartierele Drumul Taberei și Pantelimon. Până acum, s-au deschis însă doar stațiile de metrou aflate în zona Drumul Taberei. Alte mijloace de transport în comun care ar putea să-ți fie de ajutor atunci când te vei muta în această zonă sunt autobuzele 300 și 381. Primul face legătura dintre Piața Romană și Piața Victoriei continuându-și apoi traseul de-a lungul Bulevardului Ion Mihalache, iar cel de-al doilea conectează Piața Victoriei cu zona Tineretului și cu cartierul Berceni. De pe Bulevardul Regina Elisabeta vei putea lua troleibuzul 90 pentru a ajunge în Drumul Taberei sau în zona Arenei Naționale, iar în fața Spitalului Colțea vei găsi stația autobuzului 381 care merge în cartierul Berceni. Iar dacă preferi să te deplasezi pe două roți, vei avea la dispoziție una dintre pistele speciale destinate bicicliștilor pe Calea Victoriei. Aceasta îți va oferi, în plus, oportunitatea ideală de a admira arhitectura deosebită a clădirilor aflate de o parte și de alta a uneia dintre cele mai frumoase străzi din București. Consultă harta pentru a afla unde sunt localizate stațiile mijloacelor de transport în comun.
În această zonă găsim sediul central al Universității din București și cel al Academiei de Studii Economice din București (ASE), unele dintre cele mai prestigioase instituții de învățământ superior din România. Tot aici se află și sediile mai multor facultăți. Ai și alte instituții de învățământ cu renume la doi pași de casă, precum precum Colegiul Național "Sfântul Sava", Colegiul Național "Gheorghe Lazăr", Liceul Teoretic Bulgar "Hristo Botev" și Universitatea Națională de Muzică. De menționat este și Căminul Moxa, aflat în zona Calea Victoriei, în care sunt cazați unii dintre studenții ASE. Consultă harta de mai jos pentru a vedea și celelalte unități de învățământ din zonă.
În această parte a orașului vei găsi numeroase reprezentanțe ale unor branduri de lux. Cele mai multe magazine alimentare din zonă au dimensiuni reduse. Pentru cumpărături îți recomandăm Piața Amzei, aflată la doi pași de Romană și modernizată recent. Aici găsești, pe lângă comercianți de unde poți cumpăra legume și fructe și câteva magazine cu preparate proaspete de la burgeri, la pâine artizanală sau înghețată. Centrul Vechi găzduiește, totodată, reprezentanțe ale unor retaileri de modă. Tot aici găsești și librăria Cărturești Carusel, una dintre cele mai frumoase din oraș. O librărie Cărturești deschisă într-o altă clădire deosebită poate fi găsită și în apropiere de Piața Romană. Un spațiu comercial cu renume este Magazinul Victoria, un monument istoric al orașului. Magazinul București, amplasat la intersecția străzilor I.C. Brătianu și Lipscani a fost reconstruit recent cu o investiție substanțială. Ai în apropiere magazinul Cocor, centrul comercial Unirea Shopping City și un hipermarket Carrefour. Cu mașina sau metroul poți să ajungi destul de repede la mall-ul AFI Cotroceni. Consultă harta și vezi ce magazine vei avea în apropierea noii tale case.
Aceasta este una dintre cele mai aglomerate zone din București la orele de vârf. Aici găsești însă și unele dintre puținele parcări subterane din Capitală. Chiar vis-a-vis de Universitatea București ai intrarea într-o astfel de parcare cu peste 400 de locuri. O parcare destul de încăpătoare poate fi găsită și în Piața Victoriei. Atenție, însă, această zonă se poate aglomera nu doar din cauza traficului, ci și din cauza diverselor manifestări sau proteste care se organizează, de obicei, în fața Palatului Victoria, sediul Guvernului României. Dacă te hotărăști să te muți în zonă, atunci îți recomandăm să te interesezi de posibilitatea închirierii unui loc de parcare pentru mașina ta. Poți face acest lucru apelând la Serviciul Parcaje al ADP Sector 1. Consultă harta pentru a afla unde găsești și alte parcări în zona Victoriei-Romană-Universitate.
Zona Victoriei - Romană - Universitate este un epicentru cultural al Capitalei și oferă numeroase opțiuni de petrecere a timpului liber. Aici vei găsi numeroase muzee impresionante pe care le poți vizita în timpul liber (Muzeul Național de Istorie Naturală "Grigore Antipa", Muzeul Țăranului Român, Muzeul Național George Enescu, etc), vei putea participa la evenimentele în aer liber desfășurate pe Calea Victoriei sau în Piața George Enescu sau vei putea merge la un spectacol organizat pe scena Ateneului Român sau pe cea a Teatrului Notarra. Nu rata nici o vizită la Teatrul Național "I.L. Caragiale" și la Muzeul Național de Artă al României. Observatorul Astronomic Amiral Vasile Urseanu te așteaptă cu o experiență extrem de educativă care va fi, cu siguranță, apreciată de micuțul tău. Dacă îți place să ieși la o cafea în timpul liber alături de prietenii tăi, atunci în această zonă vei putea alege dintr-o multitudine de restaurante, terase și pub-uri. Nu lipsesc nici skybar-urile, care îți oferă priveliști de excepție de la înălțime. Cele câteva parcuri din zona Victorieim - Romană - Universitate au dimensiuni destul de reduse, dar sunt frumos îngrijite. Printre acestea amintim Parcul Ateneului și Parcul Nicolae Iorga. Dacă preferi plimbările lungi în weekend, atunci vei avea la dispoziție în apropiere parcurile Kiseleff și Cișmigiu. Nu uita, de asemenea, că te vei afla la doi pași de Centrul Vechi al Capitalei, dar și că vei putea să faci o plimbare cu bicicleta pe Calea Victoriei. În condiții normale, se organizează periodic evenimente în centrul orașului, atât în cadrul Sălii Palatului, cât și în aer liber în Piața Revoluției. În Piața Universității sunt organizate, totodată, diferite târguri și concerte. Vezi pe hartă mai multe puncte de interes din zona Victoriei-Romană-Universitate.
Chiar la Piața Universității se află principala unitate sanitară din zonă. Este vorba despre Spitalul Clinic Colțea, primul înființat în București. În zona Victoriei - Romană - Universitate vei întâlni mai multe clinici private, precum Policlinica Enescu din cadrul rețelei de sănătate Regina Maria și Spitalul Clinic Sanador. La doi pași de Piața Romană se află Spitalul Clinic de Urgențe Oftalmologice, cel mai mare din România cu o astfel de specializare. Consultă harta pentru a afla ce clinici private ai în apropierea casei, dacă te muți în această parte a orașului.
Găsești numeroase restaurante, terase și cafenele potrivite pentru toate gusturile în Centrul Vechi al orașului, pe Calea Victoriei sau în zona din spatele Ateneului Român. Câteva fast food-uri ai la dispoziție în Unirea Shopping Center. Nu foarte departe, în zona Romană, ai și alte opțiuni. Află de pe hartă unde găsești cel mai apropiat restaurant de noua ta casă.
Sucursale ale diferitelor bănci sunt dispuse de-a lungul principalelor artere de circulație sau în marile intersecții din zonă. Un BRD, spre exemplu, găsești chiar lângă Cercul Militar Național. Pe Bulevardul Nicolae Bălcescu o sucursală Banca Transilvania și ING Bank. La doi pași de Piața Universității se află și Palatul Băncii Naționale a României. Consultă harta pentru mai multe detalii.
Înainte să pleci...
Ești sigur că ai văzut și aceste proprietăți?
2.500.000 €
București, P-ța Romană
20 camere
816 mp
293 mp teren
2.500.000 €
București, Universitate
5 camere
214 mp
360 mp teren
2.490.000 €
București, Central
10 camere
480 mp
244 mp teren
Creează alertă
Salvează căutarea ca să primești pe email ultimele anunțuri publicate
Case individuale cu 4+ camere de vânzare în zona P-ța Romană, Ultracentral
Cere detalii prin email
*
*
*
*
Detaliile tale de contact vor fi partajate cu Svn Romania | Residentialist | Victoriei