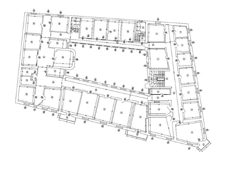
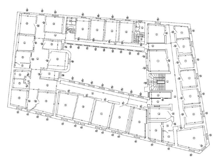
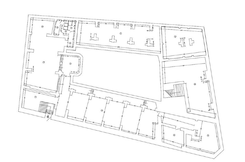
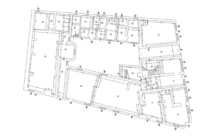
Suprafață teren: 1015 mp
Suprafață construită sol : 883 mp
Regim de înălțime: S+P+2E
Front Stradal : 73 ml
Pret: 3 mil euro + TVA
- Necesita Consolidare / Posibilitate Mansardare / peste 4000 mpc
-Ocuparea și utilizarea terenului
POT existent = 88,12%
POTmax. = 80%
CUT existent = 2,72
CUTmax. = 3,5
Imobil Comercial, ApartHotel
- este un monument istoric grupa B, datat sf. sec. XIX, construit în forma actuală în anii 1882-1884.
-Înălțimile etajelor sunt: 3,60 m la subsol, 3,93 m la parter, 3,50 m la etajul 1 si 3,30m la etajul 2
-Imobilul se află în perimetrul zonei construite protejate nr. 26 a - zona Lipscani, respectiv face parte din ansamblul urban protejat care cuprinde nucleul comercial tradițional, zona definită de
strada Doamnei, bdul ătianu, Splaiul Independenței și Calea Victoriei
Sediul central - Timișoara
Bulevardul Victor Babeș nr. 2, 300230, Timișoara, România
Tel: +40.374.40.44.98 / Fax: +40.256.401.179
Email: suport@imobiliare.ro
Luni - Vineri 08:00 - 20:00
Punct de lucru - București: Iride Business Park, Bld. Dimitrie
Pompeiu 9-9A, Clădirea B2B,
020335, Sector 2, București, România
CONTACT
Sediul central - Timișoara
Bulevardul Victor Babeș nr. 2, 300230, Timișoara, România
Tel: +40.374.40.44.98 / Fax: +40.256.401.179
Email: suport@imobiliare.ro
Luni - Vineri 08:00 - 20:00
Punct de lucru - București: Iride Business Park, Bld. Dimitrie
Pompeiu 9-9A, Clădirea B2B,
020335, Sector 2, București, România
Scoala cu clasele I-VIII, Nr. 73 Barbu Stefanescu Delavrancea
aprox.
788 m
GRADINITA DE COPII NR. 8 "LICURICI"
aprox.
792 m
Facultatea de Chimie
aprox.
350 m
Facultatea de Istorie
aprox.
364 m
Facultatea de Stiinte
aprox.
376 m
Facultatea de litere (en)
aprox.
388 m
Facultatea de Limbi si Literaturi Straine
aprox.
411 m
Facultatea de Matematica-Informatica
aprox.
422 m
UAUIM -Universitatea de Arhitectura si Urbanism Ion Mincu
aprox.
454 m
Facultatea de Farmacie
aprox.
673 m
Facultatea de Farmacie/Pharmacy Faculty
aprox.
674 m
Institutul Bancar Român
aprox.
701 m
Facultatea de Teologie Ortodoxa
aprox.
831 m
Academia de Studii Economice
aprox.
906 m
Academia de Studii Economice: Facultatea de Management - Administratie Publica
aprox.
906 m
Palatul Fundației Universitare "Carol I"
aprox.
911 m
University of Bucharest - Faculty of Foreign Languages and Literatures (en)
aprox.
1053 m
Gradinita nr.4 "Lizuca"
aprox.
678 m
Gradinita Prikindel
aprox.
786 m
Gradinita nr.192, "Pisicile Aristocrate"
aprox.
922 m
Cresa Micii Poznasi
aprox.
928 m
Gradinita nr. 192 (Pisicile aristocrate)
aprox.
936 m
Gradinita nr.203 (fosta Clementa)
aprox.
962 m
Gradinita nr. 203 program prelungit
aprox.
984 m
Gradinita Barba Cot
aprox.
1087 m
Gradinita numarul 257
aprox.
1311 m
Gradinita nr. 73
aprox.
1340 m
Gradinita Magica
aprox.
1397 m
Gradinita nr.224, "Vestitorii Primaverii"
aprox.
1415 m
Gradinita de Copii nr.30 "Copiii soarelui
aprox.
1418 m
Gradinita Nr. 78 Miguel de Cervantes
aprox.
1423 m
Gradinita nr. 224
aprox.
1425 m
Cocor
aprox.
280 m
BILLA - Cocor
aprox.
294 m
dm
aprox.
349 m
Mag.Victoria
aprox.
446 m
Mega Image
aprox.
456 m
Carrefour Unirii Non-Stop
aprox.
476 m
Carrefour Unirii
aprox.
489 m
Km 0
aprox.
490 m
Pravalia Maestrului
aprox.
636 m
Carrefour Express
aprox.
695 m
Mega Image Paleologu
aprox.
795 m
Mega Image
aprox.
842 m
Mega Image
aprox.
887 m
Mega Image Rosetti Non-Stop
aprox.
947 m
Mega Image Brezoianu
aprox.
1046 m
Parcare privata
aprox.
186 m
Parcare cu plata
aprox.
197 m
Parcare privata
aprox.
231 m
Parcare cu plata
aprox.
260 m
Parcare
aprox.
260 m
Parcare
aprox.
284 m
Parcare
aprox.
285 m
Parcare subterană Piața Universității
aprox.
306 m
Parcare
aprox.
316 m
Parcare
aprox.
318 m
Parcare privata
aprox.
348 m
Parcare
aprox.
367 m
Parcare
aprox.
412 m
Parcare
aprox.
417 m
Parcare
aprox.
418 m
Piata Roma
aprox.
94 m
Piata Timpului
aprox.
226 m
Piața Sfântul Anton
aprox.
283 m
Piata Universitatii
aprox.
395 m
Piața Drapelului (Tricolorului)
aprox.
478 m
Piata Rosetti
aprox.
517 m
Piata Natiunilor Unite
aprox.
591 m
Piata Bibescu
aprox.
772 m
Piata Revolutiei
aprox.
841 m
Piața Constituției
aprox.
1047 m
Piata Latina
aprox.
1113 m
Piata Bucur
aprox.
1292 m
Piața Regina Maria
aprox.
1563 m
Piața Romană
aprox.
1686 m
Piata Emil Cioran (Vergilius) (en)
aprox.
1927 m
Parcul Sf. Gheorghe
aprox.
164 m
Sfantul Gheorghe
aprox.
165 m
Parc
aprox.
209 m
Parc
aprox.
215 m
Parc
aprox.
228 m
Parc
aprox.
234 m
Parc
aprox.
238 m
Parc
aprox.
240 m
Parc
aprox.
262 m
Parc
aprox.
274 m
Parc
aprox.
275 m
Parc
aprox.
295 m
Parcul Colțea
aprox.
323 m
Piata Universitatii
aprox.
323 m
Rond Piața Universității
aprox.
340 m
Teren sportiv
aprox.
743 m
Teren sportiv
aprox.
933 m
Teren sportiv
aprox.
937 m
Teren sportiv
aprox.
1125 m
Teren sportiv
aprox.
1449 m
Baza sportiva Universitatea Bucuresti
aprox.
1594 m
teren tenis
aprox.
1647 m
Teren sportiv
aprox.
1733 m
Teren sportiv
aprox.
1771 m
Teren sportiv
aprox.
1785 m
Teren sportiv
aprox.
1919 m
Teren sportiv
aprox.
1943 m
Teren sportiv
aprox.
1959 m
Teren sportiv
aprox.
1964 m
Teren sportiv
aprox.
1981 m
Sensiblu
aprox.
139 m
General Smart Farm
aprox.
171 m
Farmacia Coltea
aprox.
217 m
Centro Farm
aprox.
224 m
Plafar
aprox.
227 m
Simidon
aprox.
230 m
Farmacon CO Impex
aprox.
281 m
Gema Farm Impex
aprox.
312 m
Farmacia Dona 19
aprox.
337 m
Farmacia Dona 6
aprox.
381 m
Farmacia Dona
aprox.
389 m
Farmnicol
aprox.
390 m
Reteta
aprox.
414 m
Sensiblu
aprox.
418 m
Farmacia Nr. 1
aprox.
431 m
Centru medical MEDSANA
aprox.
175 m
Spitalul Colțea
aprox.
236 m
Spitalul Clinic Prof. Dr. Doc Ovidiu Marina
aprox.
343 m
Institutul National de Recuperare
aprox.
355 m
MediDent
aprox.
488 m
Medident Dental X-ray
aprox.
511 m
Art Implant
aprox.
541 m
WORLD CLINIC - O viata fara alergii ! (en)
aprox.
545 m
Policlinica Ministerului de Interne
aprox.
655 m
Centrul Medical Batistei
aprox.
735 m
Policlinica (en)
aprox.
767 m
Cabinet stomatologic (en)
aprox.
773 m
Clinica de Stomatologie
aprox.
792 m
Medlife Unirii
aprox.
896 m
Spectrum Clinique - Clinica de Oftalmologie
aprox.
945 m
DDB caffe
aprox.
21 m
Iguana Cafe
aprox.
21 m
Godot
aprox.
62 m
Tucano Cofee
aprox.
71 m
La Muse
aprox.
130 m
ART Cafe
aprox.
160 m
Chez Simon
aprox.
174 m
Coco Bongo
aprox.
180 m
La delicii
aprox.
181 m
Bruno wine and coffe shop
aprox.
185 m
Bistro Latina
aprox.
188 m
Van Gogh
aprox.
194 m
Klein Cafe
aprox.
202 m
Rembrandt
aprox.
203 m
Gio Cafe
aprox.
212 m
Galliano Club
aprox.
21 m
Chat noir
aprox.
44 m
Roter Heller
aprox.
75 m
Harley
aprox.
84 m
The Elbow Room
aprox.
96 m
Expat
aprox.
115 m
Colorteca
aprox.
124 m
The Drunken Lords
aprox.
131 m
Tiki
aprox.
132 m
Hattrick
aprox.
134 m
Tralala
aprox.
136 m
Papiota
aprox.
136 m
Sankt Petersburg Pub
aprox.
139 m
Saga
aprox.
140 m
Biciclata
aprox.
155 m
Hanul cu Tei
aprox.
36 m
Pebeo
aprox.
39 m
Argentin
aprox.
62 m
Club A
aprox.
69 m
Dharma
aprox.
76 m
Legacy
aprox.
98 m
Gang Lads
aprox.
98 m
S.A.L.T.
aprox.
107 m
Iron City
aprox.
115 m
Half Time
aprox.
130 m
Robin Hood
aprox.
131 m
Fire Club
aprox.
135 m
Mojo
aprox.
139 m
Elephant Pub
aprox.
139 m
Beer o'clock
aprox.
139 m
Alioli Tapas
aprox.
40 m
Corks
aprox.
50 m
La Mama
aprox.
51 m
The Embassy
aprox.
57 m
Argentin (en)
aprox.
62 m
La Mama
aprox.
62 m
Latin Pizza
aprox.
72 m
Restaurantul Doamnei
aprox.
112 m
Shaorma AlaTurka
aprox.
126 m
Li-Wu Vietnamese Restaurant
aprox.
127 m
La Placinte
aprox.
130 m
Coltea Kebab Non Stop
aprox.
130 m
Art Cafe (en)
aprox.
148 m
Famous - shaorma
aprox.
152 m
Tuscany
aprox.
155 m
Banca Transilvania - Ag. Bratianu
aprox.
72 m
Raiffeisen Bank
aprox.
101 m
CreditEurope Bank Doamnei
aprox.
118 m
Garanti Bank
aprox.
129 m
Volksbank Coltei
aprox.
162 m
Banca Transilvania - Ag. Lipscani
aprox.
181 m
Banca Transilvania
aprox.
193 m
Unicredit Èširiac Bank
aprox.
193 m
Banca Nationala a Romaniei
aprox.
238 m
Palatul Societății de Asigurări "Generala"(1906)
aprox.
239 m
BNR
aprox.
245 m
BCR Lipscani
aprox.
269 m
Banca Comerciala Romana
aprox.
277 m
BRD Unirii
aprox.
298 m
Banc Post / BRD
aprox.
298 m
Fiind o zonă ultracentrală, aceasta oferă numeroase opțiuni de călătorie cu mijloacele de transport în comun, și este bine conectată cu restul orașului. Ai, în primul rând, la dispoziție stațiile de metrou Piața Victoriei, Piața Romană și Universitate. Astfel, te vei putea deplasa rapid prin oraș, evitând aglomerația de la suprafață. Toate acestea sunt situate pe magistrala 2 care traversează Bucureștiul de la nord la sud. În plus, de la Piața Victoriei vei putea lua metroul și pe magistrala 1 pentru a ajunge, de exemplu, în cartierul Pantelimon sau în zona Eroilor. Prin Piața Universității urmează să treacă și magistrala 5 care va lega cartierele Drumul Taberei și Pantelimon. Până acum, s-au deschis însă doar stațiile de metrou aflate în zona Drumul Taberei. Alte mijloace de transport în comun care ar putea să-ți fie de ajutor atunci când te vei muta în această zonă sunt autobuzele 300 și 381. Primul face legătura dintre Piața Romană și Piața Victoriei continuându-și apoi traseul de-a lungul Bulevardului Ion Mihalache, iar cel de-al doilea conectează Piața Victoriei cu zona Tineretului și cu cartierul Berceni. De pe Bulevardul Regina Elisabeta vei putea lua troleibuzul 90 pentru a ajunge în Drumul Taberei sau în zona Arenei Naționale, iar în fața Spitalului Colțea vei găsi stația autobuzului 381 care merge în cartierul Berceni. Iar dacă preferi să te deplasezi pe două roți, vei avea la dispoziție una dintre pistele speciale destinate bicicliștilor pe Calea Victoriei. Aceasta îți va oferi, în plus, oportunitatea ideală de a admira arhitectura deosebită a clădirilor aflate de o parte și de alta a uneia dintre cele mai frumoase străzi din București. Consultă harta pentru a afla unde sunt localizate stațiile mijloacelor de transport în comun.
În această zonă găsim sediul central al Universității din București și cel al Academiei de Studii Economice din București (ASE), unele dintre cele mai prestigioase instituții de învățământ superior din România. Tot aici se află și sediile mai multor facultăți. Ai și alte instituții de învățământ cu renume la doi pași de casă, precum precum Colegiul Național "Sfântul Sava", Colegiul Național "Gheorghe Lazăr", Liceul Teoretic Bulgar "Hristo Botev" și Universitatea Națională de Muzică. De menționat este și Căminul Moxa, aflat în zona Calea Victoriei, în care sunt cazați unii dintre studenții ASE. Consultă harta de mai jos pentru a vedea și celelalte unități de învățământ din zonă.
În această parte a orașului vei găsi numeroase reprezentanțe ale unor branduri de lux. Cele mai multe magazine alimentare din zonă au dimensiuni reduse. Pentru cumpărături îți recomandăm Piața Amzei, aflată la doi pași de Romană și modernizată recent. Aici găsești, pe lângă comercianți de unde poți cumpăra legume și fructe și câteva magazine cu preparate proaspete de la burgeri, la pâine artizanală sau înghețată. Centrul Vechi găzduiește, totodată, reprezentanțe ale unor retaileri de modă. Tot aici găsești și librăria Cărturești Carusel, una dintre cele mai frumoase din oraș. O librărie Cărturești deschisă într-o altă clădire deosebită poate fi găsită și în apropiere de Piața Romană. Un spațiu comercial cu renume este Magazinul Victoria, un monument istoric al orașului. Magazinul București, amplasat la intersecția străzilor I.C. Brătianu și Lipscani a fost reconstruit recent cu o investiție substanțială. Ai în apropiere magazinul Cocor, centrul comercial Unirea Shopping City și un hipermarket Carrefour. Cu mașina sau metroul poți să ajungi destul de repede la mall-ul AFI Cotroceni. Consultă harta și vezi ce magazine vei avea în apropierea noii tale case.
Aceasta este una dintre cele mai aglomerate zone din București la orele de vârf. Aici găsești însă și unele dintre puținele parcări subterane din Capitală. Chiar vis-a-vis de Universitatea București ai intrarea într-o astfel de parcare cu peste 400 de locuri. O parcare destul de încăpătoare poate fi găsită și în Piața Victoriei. Atenție, însă, această zonă se poate aglomera nu doar din cauza traficului, ci și din cauza diverselor manifestări sau proteste care se organizează, de obicei, în fața Palatului Victoria, sediul Guvernului României. Dacă te hotărăști să te muți în zonă, atunci îți recomandăm să te interesezi de posibilitatea închirierii unui loc de parcare pentru mașina ta. Poți face acest lucru apelând la Serviciul Parcaje al ADP Sector 1. Consultă harta pentru a afla unde găsești și alte parcări în zona Victoriei-Romană-Universitate.
Zona Victoriei - Romană - Universitate este un epicentru cultural al Capitalei și oferă numeroase opțiuni de petrecere a timpului liber. Aici vei găsi numeroase muzee impresionante pe care le poți vizita în timpul liber (Muzeul Național de Istorie Naturală "Grigore Antipa", Muzeul Țăranului Român, Muzeul Național George Enescu, etc), vei putea participa la evenimentele în aer liber desfășurate pe Calea Victoriei sau în Piața George Enescu sau vei putea merge la un spectacol organizat pe scena Ateneului Român sau pe cea a Teatrului Notarra. Nu rata nici o vizită la Teatrul Național "I.L. Caragiale" și la Muzeul Național de Artă al României. Observatorul Astronomic Amiral Vasile Urseanu te așteaptă cu o experiență extrem de educativă care va fi, cu siguranță, apreciată de micuțul tău. Dacă îți place să ieși la o cafea în timpul liber alături de prietenii tăi, atunci în această zonă vei putea alege dintr-o multitudine de restaurante, terase și pub-uri. Nu lipsesc nici skybar-urile, care îți oferă priveliști de excepție de la înălțime. Cele câteva parcuri din zona Victorieim - Romană - Universitate au dimensiuni destul de reduse, dar sunt frumos îngrijite. Printre acestea amintim Parcul Ateneului și Parcul Nicolae Iorga. Dacă preferi plimbările lungi în weekend, atunci vei avea la dispoziție în apropiere parcurile Kiseleff și Cișmigiu. Nu uita, de asemenea, că te vei afla la doi pași de Centrul Vechi al Capitalei, dar și că vei putea să faci o plimbare cu bicicleta pe Calea Victoriei. În condiții normale, se organizează periodic evenimente în centrul orașului, atât în cadrul Sălii Palatului, cât și în aer liber în Piața Revoluției. În Piața Universității sunt organizate, totodată, diferite târguri și concerte. Vezi pe hartă mai multe puncte de interes din zona Victoriei-Romană-Universitate.
Chiar la Piața Universității se află principala unitate sanitară din zonă. Este vorba despre Spitalul Clinic Colțea, primul înființat în București. În zona Victoriei - Romană - Universitate vei întâlni mai multe clinici private, precum Policlinica Enescu din cadrul rețelei de sănătate Regina Maria și Spitalul Clinic Sanador. La doi pași de Piața Romană se află Spitalul Clinic de Urgențe Oftalmologice, cel mai mare din România cu o astfel de specializare. Consultă harta pentru a afla ce clinici private ai în apropierea casei, dacă te muți în această parte a orașului.
Găsești numeroase restaurante, terase și cafenele potrivite pentru toate gusturile în Centrul Vechi al orașului, pe Calea Victoriei sau în zona din spatele Ateneului Român. Câteva fast food-uri ai la dispoziție în Unirea Shopping Center. Nu foarte departe, în zona Romană, ai și alte opțiuni. Află de pe hartă unde găsești cel mai apropiat restaurant de noua ta casă.
Sucursale ale diferitelor bănci sunt dispuse de-a lungul principalelor artere de circulație sau în marile intersecții din zonă. Un BRD, spre exemplu, găsești chiar lângă Cercul Militar Național. Pe Bulevardul Nicolae Bălcescu o sucursală Banca Transilvania și ING Bank. La doi pași de Piața Universității se află și Palatul Băncii Naționale a României. Consultă harta pentru mai multe detalii.
Înainte să pleci...
Ești sigur că ai văzut și aceste proprietăți?
3.200.000 €
București, P-ța Universității
50 camere
4.275 mp
1.800 mp teren
4.500.000 €
București, P-ța Universității
60 camere
2.418 mp
862 mp teren
3.000.000 € + TVA
București, Universitate
26 camere
1.300 mp
471 mp teren
4.500.000 €
București, Centrul Istoric
35 camere
2.400 mp
1.311 mp teren
1.500.000 €
București, Cișmigiu
42 camere
1.631 mp
445 mp teren
2.190.000 €
București, Universitate
15 camere
1.012 mp
347 mp teren
Creează alertă
Salvează căutarea ca să primești pe email ultimele anunțuri publicate
Case individuale cu 4+ camere de vânzare în zona Universitate, Ultracentral
Cere detalii prin email
*
*
*
*
Detaliile tale de contact vor fi partajate cu Ciprian.bravainvest