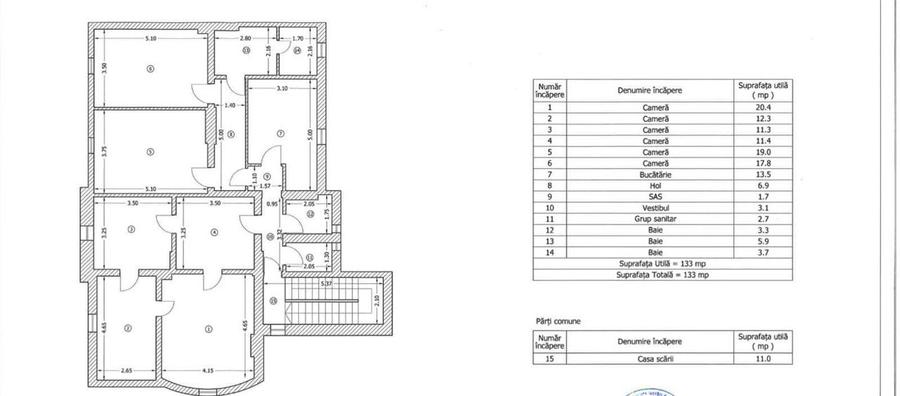
Imobilul propus spre vânzare este o adevărată declarație de stil și istorie, o clădire construită în 1922 care păstrează farmecul epocii interbelice, așteptând să fie redescoperită și transformată într-un spațiu al visurilor. Cu 14 camere spațioase, 8 băi și 3 bucătării, această proprietate oferă o flexibilitate extraordinară, fiind potrivită pentru o reședință impunătoare, un spațiu de birouri exclusivist sau o destinație cu multiple utilizări.
Fiecare detaliu al acestui imobil poartă amprenta timpului, de la compartimentarea generoasă, până la balconul de 1,84 mp, perfect pentru momentele de respiro, și pivnița de 17,55 mp, care păstrează un aer nostalgic. Pereții acestei clădiri spun povești și creează o legătură profundă între trecut și viitor, oferind noului proprietar șansa de a scrie următorul capitol al acestei istorii.
Această vilă interbelică, situată în zona Victoriei, emană eleganță și farmec, purtând în structura sa de cărămidă povestea unei alte epoci, o poveste ce așteaptă să fie reînviată. Amplasată strategic, aproape de punctele nodale ale orașului, cu acces rapid la stațiile de metrou Victoriei, Gara de Nord -5 minute de mers cu masina, si Piata Romana-10 minute, proprietatea este un loc în care tradiția întâlnește oportunitatea modernă.
Cu o arhitectură clasică și o compartimentare generoasă (demisol, parter-2 apartamente, etaj-1 apartament și mansardă-1 apartament), vila devine un spațiu ce poate prinde forme diverse, de la locuințe elegante și spații de birouri cu prestanță, până la o clinică modernă.In curs de obtinere a autorizatiei de consolidare si recompartimentare, iar acest detaliu face ca vila să fie o investiție cu un potențial remarcabil, în special într-o zonă atât de căutată. Cu o suprafață utila de 500 și curte individuală, această proprietate nu oferă doar spațiu, ci și o atmosferă unică, gata să devină o parte a vieții și visurilor noilor săi proprietari.
Exista raport de expertiza tehnic. NEINCADRAT IN CLASE DE RISC SEISMIC CORESPUNZATOARE, incadrat in categoria de urgenta 1.
In curs de obtinere a autorizatiei de consolidare, amenajare si recompartimentare.
Pretul de vanzare este: 720.000 euro.
!!Pentru serviciile de intermediere imobiliara, Agentia percepe un comision de: 3% din prețul de vanzare!!
!!Vizionarile se fac doar în baza semnării în prealabil a Fisei de Vizionare.!!
Sediul central - Timișoara
Bulevardul Victor Babeș nr. 2, 300230, Timișoara, România
Tel: +40.374.40.44.98 / Fax: +40.256.401.179
Email: suport@imobiliare.ro
Luni - Vineri 08:00 - 20:00
Punct de lucru - București: Iride Business Park, Bld. Dimitrie
Pompeiu 9-9A, Clădirea B2B,
020335, Sector 2, București, România
CONTACT
Sediul central - Timișoara
Bulevardul Victor Babeș nr. 2, 300230, Timișoara, România
Tel: +40.374.40.44.98 / Fax: +40.256.401.179
Email: suport@imobiliare.ro
Luni - Vineri 08:00 - 20:00
Punct de lucru - București: Iride Business Park, Bld. Dimitrie
Pompeiu 9-9A, Clădirea B2B,
020335, Sector 2, București, România
Vechea "Gara a Targovistei" astazi parte din Gara de Nord
aprox.
872 m
Gara Bucuresti Nord
aprox.
1036 m
Gara Basarab
aprox.
1604 m
Statia Piata Romana linii : 79,86
aprox.
916 m
Statia Calea Dorobantilor; Liniile:79, 86,
aprox.
1110 m
Statia Vasile Parvan 66,70,92
aprox.
1207 m
Statie Soseaua Nicolae Titulescu 65, 97, 86
aprox.
1357 m
Statia Facultatea de Drept, linia 61,69,90,91
aprox.
1357 m
Statie Gara Basarab 133, 178, 282, 105, 123, 162, 780
aprox.
1426 m
Statia Stirbei Voda, linia 96
aprox.
1426 m
Statia Pod Cotroceni, linia 93, 62, 96
aprox.
1465 m
Statia Piata Operei, linia 61,69,90,91
aprox.
1522 m
statia RATB Eroilor: 69, 96
aprox.
1556 m
Liceul Bulgar Hristo Botev
aprox.
135 m
Liceul de muzică George Enescu
aprox.
153 m
Colegiul Tehnic de Arhitectură și Lucrări Publice Ioan N. Socolescu
aprox.
154 m
Liceul George Enescu
aprox.
157 m
Gradinita de copii nr.50
aprox.
476 m
Scoala Nr. 1 Sfintii Voievozi
aprox.
535 m
Liceu - Scoala Europeana Bucuresti
aprox.
585 m
Liceul "Nicolae Tonitza"
aprox.
590 m
Scoala special nr. 10
aprox.
591 m
Scoala speciala nr. 10
aprox.
633 m
Fostul Liceu de Arte Plastice Nicolae Tonitza - Sediul
aprox.
649 m
Colegiul German Goethe
aprox.
716 m
French School of Bucharest (en)
aprox.
724 m
Colegiul National Sfantul Sava
aprox.
733 m
Scoala Nr. 118 Vasile Alecsandri
aprox.
811 m
FADD Facultatea de Arte Decorative si Design
aprox.
191 m
Universitatea Nationala de Arte Bucuresti (facultatea de arte decorative si design)
aprox.
196 m
Universitatea Nationala de Arte (sculptura)
aprox.
272 m
Academia Romana
aprox.
330 m
Facultatea de Administrarea Afacerilor cu predare in limbi straine
aprox.
454 m
Scoala de Inalte Studii Postuniversitare de Management
aprox.
454 m
Facultatea de Inginerie Aerospatiala
aprox.
558 m
Facultatea de Inginerie Medicala
aprox.
574 m
Universitatea Politehnica Bucuresti
aprox.
575 m
Universitatea Politehnica - Polizu
aprox.
575 m
Facultatea de Chimie Industriala
aprox.
589 m
Corp A
aprox.
605 m
Universitatea Nationala de Arte (facultatea de Arte Plastice si Facultatea de Istoria si Teoria Artei)
aprox.
617 m
Universitatea Nationala de Arte
aprox.
617 m
Facultatea de Stiinte Politice
aprox.
762 m
Gradinita Smiley
aprox.
594 m
Gradinita MAPN
aprox.
830 m
Gradinita nr. 206
aprox.
875 m
Gradinita nr. 116
aprox.
878 m
Gradinita nr. 112
aprox.
879 m
Gradinita nr. 2
aprox.
961 m
Gradinita cu Program Prelungit Nr. 248
aprox.
965 m
Gradinita nr. 248
aprox.
973 m
Gradinita de copii nr. 285
aprox.
1011 m
Gradinita nr. 248
aprox.
1089 m
Gradinita Nr. 78 Miguel de Cervantes
aprox.
1100 m
Gradinita Madeleine
aprox.
1117 m
Gradinita Zum-zum
aprox.
1142 m
Gradinita nr. 85
aprox.
1149 m
Gradinita nr. 252 cu program prelungit
aprox.
1191 m
Mega Image
aprox.
748 m
Mega Image
aprox.
776 m
Mega Image Amzei Non-Stop
aprox.
842 m
Ami Non-Stop
aprox.
851 m
Nik Non-Stop
aprox.
890 m
Shop & Go - Mega Image
aprox.
927 m
Mega Image
aprox.
984 m
Mega Image Brezoianu
aprox.
1038 m
Bila Supermarket
aprox.
1039 m
Mega Image Magheru
aprox.
1043 m
BILLA - Dorobanti
aprox.
1070 m
Mega Image - IANCU DE HUNEDOARA
aprox.
1164 m
ilanplant
aprox.
1228 m
Bacania Coco
aprox.
1245 m
Best Market 1
aprox.
1250 m
"METROPLIS CENTER"
aprox.
1132 m
Intrarea in caminele C si D din grozavesti
aprox.
1761 m
Parcare
aprox.
164 m
Parcare
aprox.
410 m
Parcare
aprox.
415 m
Parcare
aprox.
427 m
Parcare
aprox.
434 m
Parcare
aprox.
439 m
Parcare
aprox.
488 m
Parcare
aprox.
497 m
Parcare
aprox.
501 m
Parcare
aprox.
535 m
Parcare
aprox.
568 m
Parcare
aprox.
571 m
Parcare
aprox.
592 m
Parcare
aprox.
621 m
Parcare
aprox.
632 m
Teren sportiv
aprox.
99 m
Teren sportiv
aprox.
207 m
Teren sportiv
aprox.
779 m
Teren sportiv
aprox.
1050 m
teren tenis
aprox.
1134 m
Baza sportiva Universitatea Bucuresti
aprox.
1182 m
Teren sportiv
aprox.
1454 m
Teren sportiv
aprox.
1497 m
Teren sportiv
aprox.
1529 m
Teren sportiv
aprox.
1548 m
Teren sportiv
aprox.
1612 m
Stadionul Dinamo
aprox.
1636 m
Teren sportiv
aprox.
1728 m
Teren sportiv
aprox.
1769 m
Teren sportiv
aprox.
1803 m
Parcul Nicolae Iorga
aprox.
400 m
Parcul Nicolae Iorga
aprox.
402 m
Parcul Luigi Cazzavillan
aprox.
451 m
Luigi Cazzavillan
aprox.
451 m
Parc
aprox.
569 m
Statuia lui Ion (Ionel) I.C. Bratianu
aprox.
579 m
Parcul Ion I. C. Bratianu
aprox.
581 m
Parcul Ion C. Bratianu
aprox.
596 m
Parcul Garii de Nord
aprox.
759 m
Parcul Garii de Nord
aprox.
765 m
Parc
aprox.
775 m
Loc de joaca
aprox.
775 m
Parcul Duca
aprox.
801 m
Spațiu verde Gara de Nord
aprox.
833 m
Parc
aprox.
869 m
Piata Emil Cioran (Vergilius) (en)
aprox.
728 m
Piața Romană
aprox.
884 m
Piata Revolutiei
aprox.
1259 m
Piața Aviatorilor
aprox.
1481 m
Piața Drapelului (Tricolorului)
aprox.
1604 m
Piata Universitatii
aprox.
1784 m
Spitalul clinic de nefrologie "Dr. Carol Davila"
aprox.
371 m
Spital Sanador
aprox.
371 m
Sanador - Spital
aprox.
371 m
Spitalul Carol Davila de urologie
aprox.
401 m
Spitalul Clinic de Nefrologie Dr. Carol Davila
aprox.
401 m
Clinica Anima
aprox.
470 m
Clinica Sanador de la Victoria
aprox.
484 m
Sanador corp A - Clinica pediatrie
aprox.
484 m
Sanador corp B - Clinica
aprox.
498 m
Clinica Audionova
aprox.
530 m
Medicover Victoriei & Pediatrie
aprox.
626 m
Clinica ORL Dr. Mocanu
aprox.
716 m
Spitalul Grigore Alexandrescu
aprox.
774 m
Policlinica CFR
aprox.
778 m
Cabinet Medical
aprox.
792 m
Village
aprox.
451 m
Sensiblu
aprox.
463 m
Farmacia City Pharma
aprox.
530 m
Farmacia Apoteca 1
aprox.
586 m
Farmalex Total
aprox.
589 m
Help Net Farma
aprox.
590 m
Sensiblu
aprox.
621 m
3F Farmacie Farmec Frumusete
aprox.
643 m
Farmacia Richter
aprox.
652 m
Sensiblu
aprox.
701 m
Apoteca Farmacie
aprox.
730 m
Sensiblu
aprox.
745 m
Pharma Part
aprox.
752 m
Sensiblu
aprox.
757 m
Farmacia Santia
aprox.
771 m
La Dolce Vita
aprox.
92 m
La Radu
aprox.
106 m
Bella Venezia
aprox.
152 m
Cantina ASE Moxa
aprox.
161 m
Bistro the Wok
aprox.
191 m
Patrizzia
aprox.
200 m
Presto Pizza
aprox.
278 m
Magique Pizza
aprox.
282 m
Thalia Victoriei
aprox.
310 m
Restaurant Thalia 2
aprox.
313 m
Mignon
aprox.
323 m
McDonald's Buzesti
aprox.
338 m
McDonald's Buzesti
aprox.
338 m
Casa Vernescu
aprox.
342 m
Fast food
aprox.
345 m
J'ai Bistrot
aprox.
189 m
Sufrageria cu Jocuri
aprox.
284 m
Venchi 1878
aprox.
422 m
Admiral Cafe
aprox.
500 m
Meron Coffee
aprox.
558 m
Gloria Jean's
aprox.
642 m
Ramayana Cafe
aprox.
659 m
Starbucks
aprox.
696 m
Cafe Antipa
aprox.
698 m
Bouche Bee
aprox.
714 m
Cafe 3
aprox.
814 m
Cafe Boheme
aprox.
874 m
Camera din Fata
aprox.
910 m
Caffeine & Latte
aprox.
925 m
Nescafe Milano
aprox.
1028 m
Le Cafe Inmedio
aprox.
339 m
The Dubliner
aprox.
922 m
James Joyce's Pub & Restaurant
aprox.
1191 m
OLD NICK PUB
aprox.
1217 m
Studio Martin
aprox.
1236 m
Panik & Pub
aprox.
1251 m
The Place
aprox.
1335 m
Question Mark Social Club
aprox.
1506 m
Nexus Gamers Pub
aprox.
1530 m
Coloseum
aprox.
1550 m
Doncafe Brasserie
aprox.
1562 m
Waldo's
aprox.
1597 m
Edgar`s Pub
aprox.
1620 m
Club Expirat and Other Side
aprox.
1639 m
Open Pub
aprox.
1680 m
El Bistro
aprox.
398 m
A1
aprox.
702 m
Stuf Vama Veche
aprox.
862 m
Clubul Taranului
aprox.
891 m
Happy Pub
aprox.
940 m
Frame
aprox.
997 m
Zappa Rock & More
aprox.
1097 m
Letters Bar
aprox.
1158 m
Fratelli Espresso Bar
aprox.
1165 m
Piua Book Bar
aprox.
1253 m
ACAB Pub
aprox.
1265 m
LondonPhone
aprox.
1447 m
Sky Bar
aprox.
1454 m
Lokal
aprox.
1478 m
Gambrinus
aprox.
1491 m
BRD Moxa
aprox.
146 m
Banca Comerciala Feroviara
aprox.
285 m
Banca Comerciala Feroviara
aprox.
315 m
Volksbank
aprox.
320 m
ProCredit Bank
aprox.
358 m
ProCredit Bank (en)
aprox.
364 m
City Bank
aprox.
384 m
Otp Bank
aprox.
390 m
Blom Bank France
aprox.
415 m
ING Buzesti
aprox.
420 m
Banca Romaneasca
aprox.
475 m
Raiffeisen Bank - Agentia Bucuresti - Persoane Juridice
aprox.
499 m
Raiffeisen Bank Romania - Agentia Victoria
aprox.
513 m
Bancpost
aprox.
546 m
Intesa Sanpaolo Bank
aprox.
547 m
Fiind o zonă ultracentrală, aceasta oferă numeroase opțiuni de călătorie cu mijloacele de transport în comun, și este bine conectată cu restul orașului. Ai, în primul rând, la dispoziție stațiile de metrou Piața Victoriei, Piața Romană și Universitate. Astfel, te vei putea deplasa rapid prin oraș, evitând aglomerația de la suprafață. Toate acestea sunt situate pe magistrala 2 care traversează Bucureștiul de la nord la sud. În plus, de la Piața Victoriei vei putea lua metroul și pe magistrala 1 pentru a ajunge, de exemplu, în cartierul Pantelimon sau în zona Eroilor. Prin Piața Universității urmează să treacă și magistrala 5 care va lega cartierele Drumul Taberei și Pantelimon. Până acum, s-au deschis însă doar stațiile de metrou aflate în zona Drumul Taberei. Alte mijloace de transport în comun care ar putea să-ți fie de ajutor atunci când te vei muta în această zonă sunt autobuzele 300 și 381. Primul face legătura dintre Piața Romană și Piața Victoriei continuându-și apoi traseul de-a lungul Bulevardului Ion Mihalache, iar cel de-al doilea conectează Piața Victoriei cu zona Tineretului și cu cartierul Berceni. De pe Bulevardul Regina Elisabeta vei putea lua troleibuzul 90 pentru a ajunge în Drumul Taberei sau în zona Arenei Naționale, iar în fața Spitalului Colțea vei găsi stația autobuzului 381 care merge în cartierul Berceni. Iar dacă preferi să te deplasezi pe două roți, vei avea la dispoziție una dintre pistele speciale destinate bicicliștilor pe Calea Victoriei. Aceasta îți va oferi, în plus, oportunitatea ideală de a admira arhitectura deosebită a clădirilor aflate de o parte și de alta a uneia dintre cele mai frumoase străzi din București. Consultă harta pentru a afla unde sunt localizate stațiile mijloacelor de transport în comun.
În această zonă găsim sediul central al Universității din București și cel al Academiei de Studii Economice din București (ASE), unele dintre cele mai prestigioase instituții de învățământ superior din România. Tot aici se află și sediile mai multor facultăți. Ai și alte instituții de învățământ cu renume la doi pași de casă, precum precum Colegiul Național "Sfântul Sava", Colegiul Național "Gheorghe Lazăr", Liceul Teoretic Bulgar "Hristo Botev" și Universitatea Națională de Muzică. De menționat este și Căminul Moxa, aflat în zona Calea Victoriei, în care sunt cazați unii dintre studenții ASE. Consultă harta de mai jos pentru a vedea și celelalte unități de învățământ din zonă.
În această parte a orașului vei găsi numeroase reprezentanțe ale unor branduri de lux. Cele mai multe magazine alimentare din zonă au dimensiuni reduse. Pentru cumpărături îți recomandăm Piața Amzei, aflată la doi pași de Romană și modernizată recent. Aici găsești, pe lângă comercianți de unde poți cumpăra legume și fructe și câteva magazine cu preparate proaspete de la burgeri, la pâine artizanală sau înghețată. Centrul Vechi găzduiește, totodată, reprezentanțe ale unor retaileri de modă. Tot aici găsești și librăria Cărturești Carusel, una dintre cele mai frumoase din oraș. O librărie Cărturești deschisă într-o altă clădire deosebită poate fi găsită și în apropiere de Piața Romană. Un spațiu comercial cu renume este Magazinul Victoria, un monument istoric al orașului. Magazinul București, amplasat la intersecția străzilor I.C. Brătianu și Lipscani a fost reconstruit recent cu o investiție substanțială. Ai în apropiere magazinul Cocor, centrul comercial Unirea Shopping City și un hipermarket Carrefour. Cu mașina sau metroul poți să ajungi destul de repede la mall-ul AFI Cotroceni. Consultă harta și vezi ce magazine vei avea în apropierea noii tale case.
Aceasta este una dintre cele mai aglomerate zone din București la orele de vârf. Aici găsești însă și unele dintre puținele parcări subterane din Capitală. Chiar vis-a-vis de Universitatea București ai intrarea într-o astfel de parcare cu peste 400 de locuri. O parcare destul de încăpătoare poate fi găsită și în Piața Victoriei. Atenție, însă, această zonă se poate aglomera nu doar din cauza traficului, ci și din cauza diverselor manifestări sau proteste care se organizează, de obicei, în fața Palatului Victoria, sediul Guvernului României. Dacă te hotărăști să te muți în zonă, atunci îți recomandăm să te interesezi de posibilitatea închirierii unui loc de parcare pentru mașina ta. Poți face acest lucru apelând la Serviciul Parcaje al ADP Sector 1. Consultă harta pentru a afla unde găsești și alte parcări în zona Victoriei-Romană-Universitate.
Zona Victoriei - Romană - Universitate este un epicentru cultural al Capitalei și oferă numeroase opțiuni de petrecere a timpului liber. Aici vei găsi numeroase muzee impresionante pe care le poți vizita în timpul liber (Muzeul Național de Istorie Naturală "Grigore Antipa", Muzeul Țăranului Român, Muzeul Național George Enescu, etc), vei putea participa la evenimentele în aer liber desfășurate pe Calea Victoriei sau în Piața George Enescu sau vei putea merge la un spectacol organizat pe scena Ateneului Român sau pe cea a Teatrului Notarra. Nu rata nici o vizită la Teatrul Național "I.L. Caragiale" și la Muzeul Național de Artă al României. Observatorul Astronomic Amiral Vasile Urseanu te așteaptă cu o experiență extrem de educativă care va fi, cu siguranță, apreciată de micuțul tău. Dacă îți place să ieși la o cafea în timpul liber alături de prietenii tăi, atunci în această zonă vei putea alege dintr-o multitudine de restaurante, terase și pub-uri. Nu lipsesc nici skybar-urile, care îți oferă priveliști de excepție de la înălțime. Cele câteva parcuri din zona Victorieim - Romană - Universitate au dimensiuni destul de reduse, dar sunt frumos îngrijite. Printre acestea amintim Parcul Ateneului și Parcul Nicolae Iorga. Dacă preferi plimbările lungi în weekend, atunci vei avea la dispoziție în apropiere parcurile Kiseleff și Cișmigiu. Nu uita, de asemenea, că te vei afla la doi pași de Centrul Vechi al Capitalei, dar și că vei putea să faci o plimbare cu bicicleta pe Calea Victoriei. În condiții normale, se organizează periodic evenimente în centrul orașului, atât în cadrul Sălii Palatului, cât și în aer liber în Piața Revoluției. În Piața Universității sunt organizate, totodată, diferite târguri și concerte. Vezi pe hartă mai multe puncte de interes din zona Victoriei-Romană-Universitate.
Chiar la Piața Universității se află principala unitate sanitară din zonă. Este vorba despre Spitalul Clinic Colțea, primul înființat în București. În zona Victoriei - Romană - Universitate vei întâlni mai multe clinici private, precum Policlinica Enescu din cadrul rețelei de sănătate Regina Maria și Spitalul Clinic Sanador. La doi pași de Piața Romană se află Spitalul Clinic de Urgențe Oftalmologice, cel mai mare din România cu o astfel de specializare. Consultă harta pentru a afla ce clinici private ai în apropierea casei, dacă te muți în această parte a orașului.
Găsești numeroase restaurante, terase și cafenele potrivite pentru toate gusturile în Centrul Vechi al orașului, pe Calea Victoriei sau în zona din spatele Ateneului Român. Câteva fast food-uri ai la dispoziție în Unirea Shopping Center. Nu foarte departe, în zona Romană, ai și alte opțiuni. Află de pe hartă unde găsești cel mai apropiat restaurant de noua ta casă.
Sucursale ale diferitelor bănci sunt dispuse de-a lungul principalelor artere de circulație sau în marile intersecții din zonă. Un BRD, spre exemplu, găsești chiar lângă Cercul Militar Național. Pe Bulevardul Nicolae Bălcescu o sucursală Banca Transilvania și ING Bank. La doi pași de Piața Universității se află și Palatul Băncii Naționale a României. Consultă harta pentru mai multe detalii.
Înainte să pleci...
Ești sigur că ai văzut și aceste proprietăți?
650.000 €
București, Victoriei
12 camere
250 mp
107 mp teren
770.000 €
București, Victoriei
15 camere
520 mp
200 mp teren
685.000 €
București, Ultracentral
5 camere
198 mp
111 mp teren
Creează alertă
Salvează căutarea ca să primești pe email ultimele anunțuri publicate
Case individuale cu 4+ camere de vânzare în zona Victoriei, Ultracentral
Cere detalii prin email
*
*
*
*
Detaliile tale de contact vor fi partajate cu Refinder Elite
Preț total3.805.395 RON (747.020 €)
Costuri cu achiziția137.643 RON
Preț de achiziție3.667.752 RON
Costuri cu achiziția137.643 RON
Comision agenție 3%110.033 RON
Onorariu notarial22.108 RON
Taxă înscriere OCPI5.502 RON
Preț de achiziție3.667.752 RON
Preț locuință3.667.752 RON
TVA 0%Inclus în prețul cerut
Cost total697.424 RON (136.908 €)
Avans (15%)550.163 RON
Cost achitat în prima lună5.450 RON
Costuri cu achiziția141.811 RON
Cost achitat în prima lună5.450 RON
Comision analiză dosar
400 RON - 900 RON
Taxă evaluare imobil(până la)
900 RON
Rata lunară (variabilă)16.338 RON
Asigurare anuală imobil3.668 RON
Arhivă electronică102 RON
Poliță PAD130 RON
Asigurare de viață/lună Costul este variabil. În funcție de banca aleasă, procentul variază între 0.0259% și 0.035% din soldul creditului.
Costuri cu achiziția141.811 RON
Comision agenție 3%110.033 RON
Onorariu notarial22.108 RON
Taxă întabulare OCPI5.502 RON
Autentificare contract credit4.168 RON
Preț de achiziție3.667.752 RON
Preț locuință3.667.752 RON
TVA 0%Inclus în prețul cerut
Preț de achiziție3.667.752 RON
Preț locuință3.667.752 RON
TVA 0%
Inclus în prețul cerut
Avans minim3.061.554 RON
Credit pe 30 de ani606.198 RON
Cost achitat în prima lună
Taxa evaluare imobil(până la)
900 RON
Rata lunară (variabilă)4.259 RON
Depozit colateral12.777 RON
Comision de garantare FNGCIMM306 RON
Asigurare anuală imobil3.668 RON
Poliță PAD130 RON
Tarif arhivă electronică102 RON
Costuri adiționale3.808 RON + taxe notariale
Asigurare viață și complexă (opțională)Costul este variabil. În funcție de banca aleasă, procentul variază între 0.0259% și 0.035% din soldul creditului
Onorariu notarialconform tarif notarial
Taxă întabulare OCPI3.808 RON
i
Toate valorile de mai sus sunt estimative și nu reprezintă în mod obligatoriu costurile exacte pe care le veți primi de la companiile/instituțiile prin care veți încheia tranzacția.