REV2003354 Casa Smart 5 Camere complex Serenity

570.000 €

Voluntari, Județul Ilfov

Nr. cam.:
5
Sup. utilă:
218 mp
Sup. teren:
450 mp
Tip prop.:
Individuală
  • • Locație aproximativă
  • • Vizionare prin apel video

Descriere casă

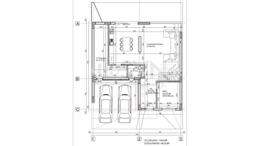
Avem placerea de a va oferi spre vanzare o casa cu 5 camere construita pe un teren de 450 mp, situata in complexul Serenity din zona Matei Millo. Casa beneficiaza de regim de inaltime P+2 si este compartimentata astfel: parter- camera tehnica, baie cu acces din exterior. living, bucatarie, birou , toaleta, acestea insumand suprafata utila de 95 mp etaj 1 - 3 dormitoare din care 2 cu baie si dressing proprii, baie pe hol, suprafata utila 114 mp etaj 2- terasa de 100 mp amenajata cu piscina Printre dotarile de baza ale imobilului pot fi mentionate: - Instalatie de incalzire in pardoseala cu pompa de caldura reversibilia - Instalatie de racire in tavane - Sistem automat de control al casei de la distanta - Sistem ventilare cu aport aer proaspat centralizat ( optional ionizator neutralizare virusi inclusiv Covid-19 ) - Sistem aspiratie automata preinstalata - Instalatie sanitara cu suporti pentru WC si bideu, montate - Sape turnate - Instalatie electrica sistem KNX si prize montate - Scara din sticla structurala cu trepte din lemn - Piscina exterioara pe acoperis de 6m x 3m x H 1,5m ( cu sistem de tratare automat al apei, schimbator de caldura, pompa de innot contra curentului si liner 3D de culoare neagra) - Balustrada exterioara din sticla - Ferestre de aluminiu RAYNERS cu geam tripan - Usa de intrare profil RAYNERS placata la exterior cu ceramica - Pereti exteriori din caramida cu sistem de operare KNX si piscina exterioara pe acoperis de 6m x 3m x H 1,5m ( cu sistem de tratare automat al apei, schimbator de caldura, pompa de innot contra curentului si liner 3D de culoare neagra). Casa dispune de ventilare cu aport aer proaspat centralizat, instalatie de incalzire in pardoseala cu pompa de caldura reversibilia , instalatie de racire prin tavane, tamplarie Raynaers si sistem automat de control al casei de la distanta. In curtea casei se pot parca 2 masini. Amplasamentul este de exceptie, in imediata apropiere fiind scoala, gradinita, centrul comercial Lemon, mijloc de transport in comun, acces rapid pe A3, etc. Certificatul energetic va fi disponibil la vanzare. Pretul de lista este de 570.000 euro pentru casa nefinisata (la gri) . Pentru mai multe detalii si vizionari va stau la dispozitie.
Citește mai mult Citește mai puțin
Grădină Încălzire prin pardoseală

Detalii casă

ID anunț: X65801404 Copiat! 275426373 Copiat!
Actualizat în: 14 Aprilie 2026
Suprafață construită: 300 mp
Suprafață desfășurată: 300 mp
Nr. bucătării: 1
Nr. băi: 5
An construcție: 2024 (Finalizată)
Structură rezistență: Cărămidă
Tip imobil: Casă/Vilă
Regim înălțime: P+2E

Utilități

Destinație
Rezidențial Birouri Birouri
Izolații termice
Exterior
Ferestre cu geam termopan
PVC
Alte spații utile
WC Serviciu Spațiu depozitare
Facilități imobil
Interfon
Utilități
Gaze Curent
Internet
Wireless
Comision
Standard

Vicii:

Fără vicii.

Disponibilitate proprietate:

Disponibil din 19/02/2026.

Puncte de interes

Mijloace transport
bus-station
statia cocorilor
Stații autobuz aprox. 1937 m
Școală
school
Sediu al scolii generale cu cls. I-VIII, nr 1- oras Voluntari
Școli aprox. 1299 m
school
Gradinita Happy Univers
Școli aprox. 1620 m
kindergarten
Echilibria 1
Gradinițe aprox. 1643 m
kindergarten
Primaria veche
Gradinițe aprox. 1992 m
Recreere
sports-ground
Teren fotbal
Terenuri sport aprox. 337 m
sports-ground
Teren sportiv
Terenuri sport aprox. 1266 m
park
Parcul de Interes public Pipera- oras VOLUNTARI
Parcuri aprox. 1341 m
restaurant
Restaurant
Restaurant aprox. 1986 m

Detalii despre preț și costuri

Costuri cu achiziția

Fără credit
Credit ipotecar
Noua casă

i

Costuri adiționale mai puțin știute la achiziție: taxe notariale, comisioane etc.

Insight premium disponibil după login

Proprietăți similare

Casă individuală cu 5 camere în Central
572.000 €
Județul Ilfov, Voluntari
5 camere
329 mp
500 mp teren
Casă individuală cu 5 camere în Central
579.000 €
Județul Ilfov, Voluntari
5 camere
320 mp
600 mp teren
Casă individuală cu 5 camere în Central
524.999 €
Județul Ilfov, Voluntari
5 camere
225 mp
450 mp teren

Detalii de contact

Abonează-te la newsletter să fii primul care primește cele mai noi recomandări de proprietăți și sfaturi de la experți.

CONTACT

Creează alertă

Salvează căutarea ca să primești pe email ultimele anunțuri publicate

Case individuale cu 4+ camere de vânzare în Voluntari, Județul Ilfov