Oferim spre vanzare o vila moderna tip duplex, amplasata intr-o zona linistita din Comuna Berceni, Ilfov, la doar 1 km de Bulevardul 1 Mai si 5 km de statia de metrou Tudor Arghezi. Accesul este facil catre mijloacele de transport in comun, iar zona este in plina dezvoltare.
Caracteristici imobil:
- Regim de inaltime: Parter + Etaj 1
- Suprafata utila: 125 mp
- Teren total: 222 mp
- Curte libera: 155 mp
- Imprejmuire: Gard din beton armat si structura metalica, pentru securitate si intimitate
Compartimentare inteligenta:
– Parter: Living generos (30.93 mp), bucatarie separata (14.04 mp), baie, hol de acces si terasa de 4.46 mp
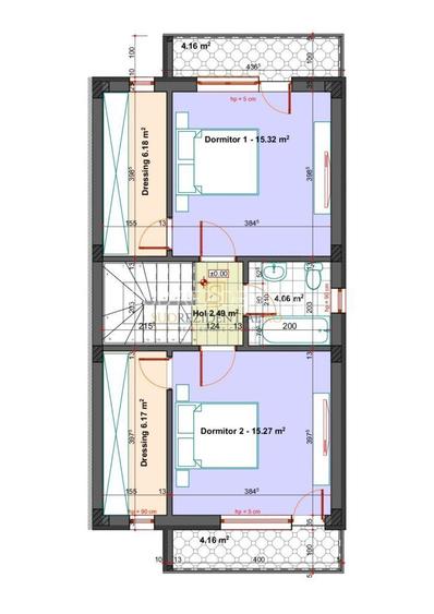
– Etaj: Doua dormitoare spatioase (15.32 mp si 15.27 mp), fiecare cu dressing propriu, baie principala si doua balcoane
Beneficii si dotari:
- Finisaje premium, cu posibilitatea de personalizare
- Centrala termica in condensare pentru eficienta energetica
- Ferestre PVC cu geam tripan pentru izolare optima
- Bai complet echipate cu obiecte sanitare moderne
Aceasta locuinta ofera un confort sporit, spatii generoase si o curte proprie ideala pentru relaxare. Imprejmuirea din beton armat si structura metalica asigura siguranta si intimitate si ofera un plus de valoare proprietatii.
Aceasta vila este situata intr-o zona deosebit de accesibila din Comuna Berceni, la doar 4 km de Centura Capitalei si la aproximativ 10 minute de mers cu masina pana in Sectorul 4, Bucuresti.
Legaturi rapide catre principalele artere si autostrazi:
– Bd. 1 Mai, principala artera de circulatie a comunei, se afla in proximitate, ofera conexiuni rapide catre infrastructura urbana.
– Autostrada A0, situata la doar 5 minute de mers cu masina, faciliteaza accesul catre A1 (Bucuresti – Pitesti), A2 (Bucuresti – Constanta) si A3 (Bucuresti – Ploiesti).
Acces facil la transportul public si metrou:
- Statia de metrou Tudor Arghezi, aflata in apropiere, ofera conexiuni rapide catre centrul Bucurestiului si dispune de o parcare Park&Ride cu 310 locuri, ideala pentru cei care doresc sa lase masina si sa continue calatoria cu transportul public.
– Transport public variat, cu rute extinse spre principalele puncte de interes din Bucuresti.
Viitorul mobilitatii in Comuna Berceni:
Zona beneficiaza de proiecte de dezvoltare majore, inclusiv extinderea liniei de metrou pana in interiorul comunei, ceea ce va aduce un plus semnificativ de accesibilitate si valoare proprietatilor.
Facilitati comerciale in apropiere: Carrefour, Penny Market, Profi, Mega Image si diverse magazine mixte pentru toate nevoile zilnice
Trafic rapid si facil catre toate zonele Capitalei, fie cu masina personala, fie prin reteaua extinsa de transport public.
In pretul afisat nu este inclusa cota de TVA.
Sediul central - Timișoara
Bulevardul Victor Babeș nr. 2, 300230, Timișoara, România
Tel: +40.374.40.44.98 / Fax: +40.256.401.179
Email: suport@imobiliare.ro
Luni - Vineri 08:00 - 20:00
Punct de lucru - București: Iride Business Park, Bld. Dimitrie
Pompeiu 9-9A, Clădirea B2B,
020335, Sector 2, București, România
CONTACT
Sediul central - Timișoara
Bulevardul Victor Babeș nr. 2, 300230, Timișoara, România
Tel: +40.374.40.44.98 / Fax: +40.256.401.179
Email: suport@imobiliare.ro
Luni - Vineri 08:00 - 20:00
Punct de lucru - București: Iride Business Park, Bld. Dimitrie
Pompeiu 9-9A, Clădirea B2B,
020335, Sector 2, București, România
Sună acum și cere detalii sau programează o vizionare.
Nu rata ocazia să afli mai multe!
Sună acum și cere detalii sau programează o vizionare.
Cere detalii prin email
*
*
*
*
Școli
Terenuri sport
Restaurant
Scoala Berceni
aprox.
595 m
Teren sportiv
aprox.
934 m
Salon Evenimente Casa Alba
aprox.
1956 m
Înainte să pleci...
Ești sigur că ai văzut și aceste proprietăți?
129.900 € + TVA
Județul Ilfov, Berceni
4 camere
107,2 mp
358 mp teren
106.990 €
Județul Ilfov, Berceni
3 camere
64 mp
275 mp teren
95.000 € + TVA
Județul Ilfov, Berceni
3 camere
95 mp
210 mp teren
107.500 €
Județul Ilfov, Berceni
3 camere
78 mp
327 mp teren
134.900 €
Județul Ilfov, Berceni
3 camere
90 mp
200 mp teren
107.500 € + TVA
Județul Ilfov, Berceni
3 camere
78,63 mp
327 mp teren
Creează alertă
Salvează căutarea ca să primești pe email ultimele anunțuri publicate
Duplexuri cu 3 camere de vânzare în Berceni, Județul Ilfov
Cere detalii prin email
*
*
*
*
Detaliile tale de contact vor fi partajate cu Sud Rezidential
Preț total629.156 RON (123.501 €)
Costuri cu achiziția7.094 RON
Preț de achiziție622.062 RON
Costuri cu achiziția7.094 RON
Comision agenție Întreabă agenţia
Onorariu notarial6.161 RON
Taxă înscriere OCPI933 RON
Preț de achiziție622.062 RON
Preț locuință514.101 RON
TVA 21%107.961 RON
Cost total104.438 RON (20.500 €)
Avans (15%)93.309 RON
Cost achitat în prima lună2.404 RON
Costuri cu achiziția8.725 RON
Cost achitat în prima lună2.404 RON
Comision analiză dosar
400 RON - 900 RON
Taxă evaluare imobil(până la)
900 RON
Rata lunară (variabilă)2.771 RON
Asigurare anuală imobil622 RON
Arhivă electronică102 RON
Poliță PAD130 RON
Asigurare de viață/lună Costul este variabil. În funcție de banca aleasă, procentul variază între 0.0259% și 0.035% din soldul creditului.
Costuri cu achiziția8.725 RON
Comision agenție Întreabă agenţia
Onorariu notarial6.161 RON
Taxă întabulare OCPI933 RON
Autentificare contract credit1.631 RON
Preț de achiziție622.062 RON
Preț locuință514.101 RON
TVA 21%107.961 RON
Preț de achiziție622.062 RON
Preț locuință514.101 RON
TVA 21%
107.961 RON
Avans minim15.841 RON
Credit pe 30 de ani606.222 RON
Cost achitat în prima lună
Taxa evaluare imobil(până la)
900 RON
Rata lunară (variabilă)4.260 RON
Depozit colateral12.780 RON
Comision de garantare FNGCIMM52 RON
Asigurare anuală imobil622 RON
Poliță PAD130 RON
Tarif arhivă electronică102 RON
Costuri adiționale762 RON + taxe notariale
Asigurare viață și complexă (opțională)Costul este variabil. În funcție de banca aleasă, procentul variază între 0.0259% și 0.035% din soldul creditului
Onorariu notarialconform tarif notarial
Taxă întabulare OCPI762 RON
i
Toate valorile de mai sus sunt estimative și nu reprezintă în mod obligatoriu costurile exacte pe care le veți primi de la companiile/instituțiile prin care veți încheia tranzacția.