Ati accesat un imobil situat in cartierul Blumana - zona Centru.
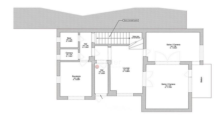
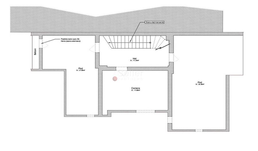
Construita in 1988 cladire tip duplex, casa este dispusa pe Demisol+ Parter + Etaj + Mansarda. Datorita pantei terenului accesul de la nivelul strazii se face direct catre etaj, iar parterul cat si demisolul au dublu acces, atat din casa cat si din curtea interioara. Compartimentarea casei este urmatoarea:
- Demisolul - cu o suprafata utila de 45 mp, detine acces atat din interior, prin scara de beton, direct de la parter, cat si din exterior, cu acces din curtea interioara, a fost configurat si utilizat ca si beci, debara, centrala termica si spalatorie, hol acces si camera depozitare.
- Parterul, cu o suprafata utila de 75 mp, detine acces atat din interior, prin scara de beton, direct de la etaj, cat si din exterior, cu acces din curtea interioara. Acesta a fost alocat zonei de zi si este compartimentat in living cu acces direct catre balcon, birou, lounge si hol de acces, bucatarie tip inchis, camara si baie;
- Etajul are o suprafata utila de 80 mp si este alocat zonei de noapte. Acesta a fost compartimentat in 3 dormitoare, fiecare avand acces direct catre un balcon, baie, vestibul si hol de acces;
- Mansarda are o suprafata de 80 mp si este dispusa pe camera depozitare si 2 incaperi tip pod. Beneficiind de acces pe scara betonata direct de la etaj si planseu de beton, aceasta poate fi transformata intergral in zona de locuit.
Aceasta cladire a fost contruita pe fundatie de beton armat, cu plansee din beton armat, pe fiecare nivel. Peretii exteriori sunt realizati din caramida iar invelitoarea casei este tigla.
Imobilul este dotat cu centrala termica proprie pe gaz, tamplarie cu geam termopan, usile de acces in camere si la bai fiind realizate din lemn, iar ca si sursa suplimentara de incalzire, casa dispune de sobe cu incalzire pe lemne.
DOTARI:
- centrala termica;
- tamplarie PVC, cu geam termopan;
- parchet din lemn
- scari interioare placate cu lemn;
- curte libera 414 mp de teren.
- sobe pe lemn;
- beci;
IMPREJURIMI:
Accesul auto, pana in Pta Sfatului, se poate face in cca. 4-5 minute.
Se accepta achizitionarea prin accesarea unui credit bancar.
Sediul central - Timișoara
Bulevardul Victor Babeș nr. 2, 300230, Timișoara, România
Tel: +40.374.40.44.98 / Fax: +40.256.401.179
Email: suport@imobiliare.ro
Luni - Vineri 08:00 - 20:00
Punct de lucru - București: Iride Business Park, Bld. Dimitrie
Pompeiu 9-9A, Clădirea B2B,
020335, Sector 2, București, România
CONTACT
Sediul central - Timișoara
Bulevardul Victor Babeș nr. 2, 300230, Timișoara, România
Tel: +40.374.40.44.98 / Fax: +40.256.401.179
Email: suport@imobiliare.ro
Luni - Vineri 08:00 - 20:00
Punct de lucru - București: Iride Business Park, Bld. Dimitrie
Pompeiu 9-9A, Clădirea B2B,
020335, Sector 2, București, România
Sună acum și cere detalii sau programează o vizionare.
Nu rata ocazia să afli mai multe!
Sună acum și cere detalii sau programează o vizionare.
Cere detalii prin email
*
*
*
*
Stații autobuz
Stații tren
Școli
Gradinițe
Universități
Supermarket
Mall
Parcări
Parcuri
Terenuri sport
Piețe publice
Spital
Farmacie
Bar
Restaurant
Cafenea
Pub
Bancă
Statie Facultativa, linia 14 si 14barat
aprox.
385 m
Statia Memorandumului, liniile 14,28,5,41
aprox.
385 m
Memo
aprox.
392 m
Statia Marasesti, linia 14 si 14barat
aprox.
404 m
Carierei
aprox.
511 m
Statia Carierei, linia 14 si 14barat
aprox.
511 m
Statia Bisericii Romane, liniile 14,28,5,41
aprox.
559 m
Bisericii Romane
aprox.
559 m
Statia Carierei, liniile 14,28,5,41
aprox.
569 m
Carierei
aprox.
571 m
Statia Bisericii Romane, liniile 14,28,5,41
aprox.
613 m
Nicopole
aprox.
619 m
Statia "Nicopole", linia 41
aprox.
621 m
Bisericii Romane
aprox.
631 m
Statia "Morii", linia 41
aprox.
667 m
Gara Bartolomeu
aprox.
1065 m
Grupul Scolar Auto
aprox.
593 m
Școala Generală nr. 14
aprox.
636 m
Scoala Generala Nr. 12
aprox.
644 m
Scoala Gimnaziala Nr.12
aprox.
644 m
Colegiul National Economic "Andrei Barseanu"
aprox.
742 m
Colegiul Economic Andrei Barseanu
aprox.
747 m
Colegiul de Arhitectura
aprox.
766 m
Colegiul Tehnic de Construcții și Arhitectură "Christian Kertsch"
aprox.
788 m
Scola generala nr. 6
aprox.
1198 m
Colegiul National Aprily Lajos
aprox.
1224 m
Universitatea Transilvania Rectorat
aprox.
1237 m
Liceul Aprily Lajos
aprox.
1238 m
Scoala generala nr.15
aprox.
1301 m
Scoala Nr.15 Corp B
aprox.
1312 m
Academia Fortelor Aeriene "Henri Coanda"
aprox.
1372 m
Gradinita cu program normal nr. 3B (fosta nr.11 )
aprox.
655 m
Gradinita cu program normal nr. 4 (fosta nr. 15)
aprox.
706 m
Gradinita cu program normal nr. 4A (fosta nr. 22)
aprox.
767 m
Gradinita cu program normal nr. 3A (fosta nr. 7)
aprox.
812 m
Gradinita Iolanda
aprox.
848 m
Gradinita cu program normal nr. 3 (fosta nr. 1)
aprox.
933 m
Gradinita cu program prelungit nr. 7 (fosta nr. 63)
aprox.
1008 m
Gradinita privata Gretel Kindergarten
aprox.
1032 m
Gradinita cu program prelungit nr. 6 (fosta nr. 35)
aprox.
1150 m
Gradinita privata Happy Kids
aprox.
1258 m
Gradinita cu program normal nr. 5 (fosta nr. 20)
aprox.
1416 m
Gradinita cu program prelungit Nr. 8
aprox.
1612 m
Gradinita Nr. 11
aprox.
1674 m
Gradinita cu program prelungit nr. 11 (fosta nr. 56)
aprox.
1704 m
Gradinita cu program prelungit nr. 1 (fosta nr. 32)
aprox.
1715 m
Universitatea Creștină "Dimitre Cantemir"
aprox.
1195 m
Cantina Studenteasca si Corpul Z
aprox.
1367 m
Universitatea Transilvania Corp T
aprox.
1423 m
Universitatea Transilvania
aprox.
1440 m
Corpul T al Universitatii Transilvania (en)
aprox.
1443 m
Campus Colina Universitatii
aprox.
1501 m
Corpul B
aprox.
1521 m
Corpul A
aprox.
1527 m
Corpul C
aprox.
1555 m
Facultatea de Silvicultura
aprox.
1609 m
Facultatea de Silvicultură. Corp "S"
aprox.
1612 m
Corpul V al Universitatii Transilvania
aprox.
1643 m
Universitatea Transilvania Corp V
aprox.
1643 m
Facultatea de Muzica Brasov
aprox.
1669 m
Facultatea de Muzica
aprox.
1680 m
Kaufland
aprox.
962 m
Sergiana
aprox.
1277 m
Eliana Mall
aprox.
1310 m
Auchan
aprox.
1332 m
Sergiana
aprox.
1460 m
Rapid Gospodarilor
aprox.
1460 m
Supermarket Dodo
aprox.
1472 m
Profi
aprox.
1823 m
Sergiana
aprox.
1837 m
LeFruMarin
aprox.
1838 m
STAR
aprox.
1870 m
API Biomania
aprox.
1930 m
Carrefour Market
aprox.
1940 m
Magazinul Star
aprox.
1857 m
Parcare
aprox.
304 m
Parcare
aprox.
304 m
Parcare
aprox.
333 m
Parcare
aprox.
614 m
Parcare
aprox.
621 m
Parcare
aprox.
635 m
Parcare
aprox.
668 m
Parcare
aprox.
672 m
Parcare
aprox.
804 m
Parcare
aprox.
885 m
Parcare
aprox.
927 m
Parcare
aprox.
1080 m
Parcare cu plata
aprox.
1108 m
Parcare
aprox.
1127 m
Parcare cu plata
aprox.
1139 m
Parc
aprox.
377 m
Fosta cariera de piatra Bartolomeu
aprox.
899 m
Parcul Livada Poștei
aprox.
930 m
Pădure
aprox.
1048 m
Parc Rudolf
aprox.
1146 m
Dealul Cetății
aprox.
1166 m
Parcul Cetatuia Brasovului
aprox.
1175 m
Padure
aprox.
1227 m
Parc Turnuri
aprox.
1258 m
Parcul Nicolae Titulescu
aprox.
1337 m
Parcul Aro
aprox.
1377 m
Loc de joaca pentru copii
aprox.
1380 m
Parc
aprox.
1392 m
Lumea Copiilor
aprox.
1405 m
Parcul Nicolae Titulescu
aprox.
1424 m
Teren Sport
aprox.
796 m
Teren sportiv
aprox.
876 m
Teren baschet
aprox.
930 m
Teren sportiv
aprox.
961 m
Teren sportiv
aprox.
967 m
Teren sportiv
aprox.
1036 m
Teren sportiv
aprox.
1226 m
Loc de joaca
aprox.
1600 m
Teren sportiv
aprox.
1701 m
Teren fotbal
aprox.
1702 m
Teren sportiv
aprox.
1714 m
Teren sportiv
aprox.
1839 m
Teren sportiv
aprox.
1869 m
2 Terenuri Basket
aprox.
1932 m
Teren Tenis/Volei
aprox.
1932 m
Piața George Enescu
aprox.
1461 m
Piata Sfatului
aprox.
1500 m
Honterus Courtyard(Square)
aprox.
1570 m
Piața Unirii
aprox.
1951 m
Policlinica Studenteasca
aprox.
316 m
Centrul de diagnostic si tratament oncologic
aprox.
364 m
Spital Clinicco
aprox.
687 m
Spitalul ICCO (en)
aprox.
729 m
Spitalul de copii
aprox.
756 m
Spitalul Clinic de Copii / Children Hospital
aprox.
765 m
Spitalul Clinic de Pneumoftiziologie
aprox.
851 m
Pavilionul V
aprox.
985 m
Bioclinica
aprox.
1011 m
Pavilionul VI
aprox.
1020 m
Pavilionul III
aprox.
1049 m
Pavilionul II
aprox.
1164 m
Spitalul Clinic de Pneumoftiziologie Brasov - Pavilionul I
aprox.
1210 m
Spitalul de Neuropsihiatrie
aprox.
1260 m
Spitalul de Neuro-Psihiatrie
aprox.
1306 m
Farmacia Santa
aprox.
1279 m
Toro Optic Ophtalmologie
aprox.
1286 m
HelpNet
aprox.
1350 m
HelpNet
aprox.
1564 m
HelpNet
aprox.
1584 m
Sensiblu
aprox.
1689 m
Sic Volo
aprox.
1717 m
Farmacom
aprox.
1831 m
SensiBlu
aprox.
1838 m
Catena
aprox.
1840 m
Siderea Farm
aprox.
1895 m
Propaganda
aprox.
366 m
Rasta Bar Jamaica
aprox.
1586 m
L'Etage
aprox.
1599 m
Festival '39
aprox.
1623 m
Croitoria de cafea
aprox.
1667 m
Beraria Ciucas
aprox.
1679 m
Die Stube
aprox.
1685 m
Restauran Memo
aprox.
372 m
Hotel Long Street 3*
aprox.
466 m
Gradina de vara ''Roata Norocului''
aprox.
622 m
Restaurant ''Roata Norocului''
aprox.
676 m
Roata Norocului
aprox.
676 m
MaCocotte
aprox.
855 m
Casa Tudor
aprox.
940 m
Casa Tudor
aprox.
945 m
Hotel Belvedere
aprox.
947 m
Vila Prato
aprox.
1070 m
Hotel Casa Muresan
aprox.
1125 m
Cetatuia
aprox.
1147 m
La Casa Bistrițeană
aprox.
1150 m
Cetatuia Brasovului
aprox.
1155 m
Pizza Saltinbocca
aprox.
1163 m
Kasho Lounge
aprox.
1058 m
Come Back
aprox.
1362 m
Art Caffe
aprox.
1375 m
Internet Cafe
aprox.
1417 m
Bistro de l'Arte
aprox.
1486 m
Galleria Art & Coffe
aprox.
1511 m
Open Heart
aprox.
1539 m
Colaj
aprox.
1579 m
Cafeteca Express
aprox.
1585 m
Tipografia
aprox.
1609 m
Cafeteca
aprox.
1670 m
Lumea Copiilor
aprox.
1936 m
The Vintage Pub
aprox.
1090 m
Formula Pub
aprox.
1213 m
Publick
aprox.
1531 m
Michele Pub
aprox.
1543 m
Deane's Irish Pub & Grill
aprox.
1556 m
Britannia arms
aprox.
1599 m
Times
aprox.
1616 m
The Hockey Pub
aprox.
1701 m
Simone
aprox.
1792 m
For Sale Pub
aprox.
1904 m
Banca Transilvania
aprox.
1089 m
BCR
aprox.
1122 m
ING
aprox.
1171 m
ING Bank
aprox.
1181 m
MKB Romexterra Bank
aprox.
1353 m
BRD
aprox.
1382 m
Volksbank
aprox.
1416 m
Citybank
aprox.
1534 m
CEC Bank
aprox.
1540 m
Banca Transilvania
aprox.
1577 m
Piraeus Bank
aprox.
1588 m
Banca Transilvania
aprox.
1616 m
OTP bank
aprox.
1617 m
Millennium Bank
aprox.
1623 m
CEC Bank
aprox.
1646 m
Cartierul Blumăna stă bine la capitolul mijloace de transport în comun, având în vedere că se află chiar în centrul Brașovului. Astfel, prin zonă trec trei linii de autobuz. Este vorba de autobuzul 50, care leagă Livada Poștei de Pietrele lui Solomon, autobuzul 51, pornește din Gara Brașov și ajunge la Tocile, precum și autobuzul 52, care leagă Tocile de Panselelor. De asemenea, la limita cu cartierul Brașovechi, mai circulă patru linii de autobuz cu care locuitorii se pot deplasa în alte zone din Brașov. Și anume, linia 5, care circulă pe traseul Stadionul Municipal - Roman, autobuzul 14, care leagă Livada Poștei de Fabrica de Var, linia 24, care pornește din Stupini și are capăt de linie la Livada Poștei, precum și autobuzul 28, care circulă pe traseul Livada Poștei - Fundăturii.
Dacă te vei decide să te muți în cartierul Blumăna, vei avea la dispoziție o ofertă bogată din punct de vedere educațional. De menționat ar fi faptul că între granițele acestei zone își desfășoară activitatea Universitatea Transilvania, cea mai mare instituție de învățământ superior din centrul României, care cuprinde 18 facultăți, cu un număr de aproximativ 20.000 de studenți. Totodată, dacă ai copii de vârste mai mici, poți să îi înscrii la Colegiul Tehnic "Maria Băiulescu", situat pe str. Castelului, sau la Colegiul Național "Aprily Lajos", aflat lângă Universitatea Transilvania, pe str. După Ziduri. De asemenea, pe str. Poarta Schei găsești Liceul Teoretic "Johannes Honterus", în Curtea Honterus, își desfășoară activitatea Colegiul Național "Bucci", iar pe B-dul Eroilor se află Colegiul Național "Piticii".
Nu vei duce lipsă de alternative nici pentru a-ți face cumpărăturile, dacă alegi cartierul Blumăna. Chiar la marginea acestuia își desfășoară activitatea centrul comercial Star, unde găsești diferite magazine și tot felul de restaurante, iar lângă se află și Piața Star, dacă ești interesat să cumperi direct de la producători locali. Totodată, pe lângă magazinele de mici dimensiuni, pe str. Republicii găsești un supermarket Mega Image, în Piața Sfatului ai un supermarket La Doi Pași, iar pe str. Sfântul Ioan este deschis un magazin Carrefour.
Având în vedere că vorbim de zona centrală a orașului Brașov, care este una foarte aglomerată, există o problemă în ceea ce privește găsirea cu ușurință a unui loc de parcare.
În cartierul Blumăna se află cele mai importante obiective turistice din Brașov, printre care și Biserica Neagră, principala atracție a orașului, care atrage un număr impresionant de vizitatori în fiecare an, din toate colțurile lumii. Pentru a admira frumusețea clădirilor din Brașov, te poți plimba în voie prin Centrul Vechi. Tot în Blumăna se află și Piața Sfatului, inima orașului Brașov și locul în care au loc cele mai importante evenimente artistice și culturale ale orașului. Un alt punct de atracție este reprezentat de str. Sforii, cea mai îngustă stradă din Brașov. De asemenea, pentru plimbări relaxante în natură poți foarte ușor să pleci în drumeție pe muntele Tâmpa, care se află chiar în centrul orașului Brașov.
Între granițele cartierului Blumăna găsești, din punct de vedere medical, doar unități private. Astfel, o clinică particulară de medicină internă se află pe str. Nicolae Bălcescu, iar un centru privat de recuperare medicală este situat pe str. Castelului. De menționat ar fi că în această zonă, în Piața Sfatului, își desfășoară activitatea și Colegiul Medicilor Brașov. În cazul în care ai diferite afecțiuni medicale, ești nevoit să te deplasezi în alte cartiere pentru a beneficia de oportunitățile oferite de acestea.
Ținând cont de faptul că Blumăna se află chiar în centrul istoric al orașului Brașov, ai o mulțime de alternative dacă ne referim la capitolul gastronomie. De menționat din acest punct de vedere ar fi un restaurant cu specific mediteranean, pe str. Johann Gott, un restaurant cu specific grecesc, pe str. George Barițiu, și un altul cu specific italian, pe str. Postăvarului. Dacă ești un fan înfocat al mâncărurilor tradiționale românești, poți să treci pragul unui restaurant situat pe str. Michael Weiss, care are o ofertă bogată. În cartierul Blumăna găsești și localuri în care poți lua masa rapid, precum fast food-uri și pizzerii. De asemenea, un fast food McDonalds îți stă la dispoziție pe str. Republicii. În centrul istoric găsești și o sumedenie de cafenele, unde te poți relaxa cu prietenii.
În cartierul Blumăna ai câteva alternative și din punct de vedere bancar. Astfel, găsești o sucursală a Băncii Transilvania pe B-dul Eroilor, una BRD, pe str. Mureșenilor, una Raiffeisen Bank, în Piața Sfatului, și o alta UniCredit Bank, tot pe str. Mureșenilor. Pentru o ofertă mai bogată, ești nevoit să te deplasezi în cartierele din apropiere.
Înainte să pleci...
Ești sigur că ai văzut și aceste proprietăți?
500.000 €
Brașov, Brașovul Vechi
7 camere
300 mp
750 mp teren
439.000 €
Brașov, Central
8 camere
199 mp
164 mp teren
495.000 €
Brașov, Dealul Cetății
7 camere
400 mp
500 mp teren
489.900 €
Brașov, Central
7 camere
330 mp
340 mp teren
700.000 €
Brașov, Florilor
5 camere
500 mp
425 mp teren
590.000 €
Brașov, Aurel Vlaicu
7 camere
348 mp
608 mp teren
Creează alertă
Salvează căutarea ca să primești pe email ultimele anunțuri publicate
Duplexuri cu 4+ camere de vânzare în zona Blumăna, Brașov
Cere detalii prin email
*
*
*
*
Detaliile tale de contact vor fi partajate cu The Seller & Partners
Preț total2.881.713 RON (565.274 €)
Costuri cu achiziția77.868 RON
Preț de achiziție2.803.845 RON
Costuri cu achiziția77.868 RON
Comision agenție 2%56.077 RON
Onorariu notarial17.585 RON
Taxă înscriere OCPI4.206 RON
Preț de achiziție2.803.845 RON
Preț locuință2.803.845 RON
TVA 0%Inclus în prețul cerut
Cost total506.479 RON (99.350 €)
Avans (15%)420.577 RON
Cost achitat în prima lună4.586 RON
Costuri cu achiziția81.316 RON
Cost achitat în prima lună4.586 RON
Comision analiză dosar
400 RON - 900 RON
Taxă evaluare imobil(până la)
900 RON
Rata lunară (variabilă)12.490 RON
Asigurare anuală imobil2.804 RON
Arhivă electronică102 RON
Poliță PAD130 RON
Asigurare de viață/lună Costul este variabil. În funcție de banca aleasă, procentul variază între 0.0259% și 0.035% din soldul creditului.
Costuri cu achiziția81.316 RON
Comision agenție 2%56.077 RON
Onorariu notarial17.585 RON
Taxă întabulare OCPI4.206 RON
Autentificare contract credit3.448 RON
Preț de achiziție2.803.845 RON
Preț locuință2.803.845 RON
TVA 0%Inclus în prețul cerut
Preț de achiziție2.803.845 RON
Preț locuință2.803.845 RON
TVA 0%
Inclus în prețul cerut
Avans minim2.197.195 RON
Credit pe 30 de ani606.650 RON
Cost achitat în prima lună
Taxa evaluare imobil(până la)
900 RON
Rata lunară (variabilă)4.263 RON
Depozit colateral12.789 RON
Comision de garantare FNGCIMM234 RON
Asigurare anuală imobil2.804 RON
Poliță PAD130 RON
Tarif arhivă electronică102 RON
Costuri adiționale2.944 RON + taxe notariale
Asigurare viață și complexă (opțională)Costul este variabil. În funcție de banca aleasă, procentul variază între 0.0259% și 0.035% din soldul creditului
Onorariu notarialconform tarif notarial
Taxă întabulare OCPI2.944 RON
i
Toate valorile de mai sus sunt estimative și nu reprezintă în mod obligatoriu costurile exacte pe care le veți primi de la companiile/instituțiile prin care veți încheia tranzacția.