Casa tip duplex cu garaj in Dambul Rotund!
Va propunem spre vanzare o parte de duplex situat intr-o zona accesibila.
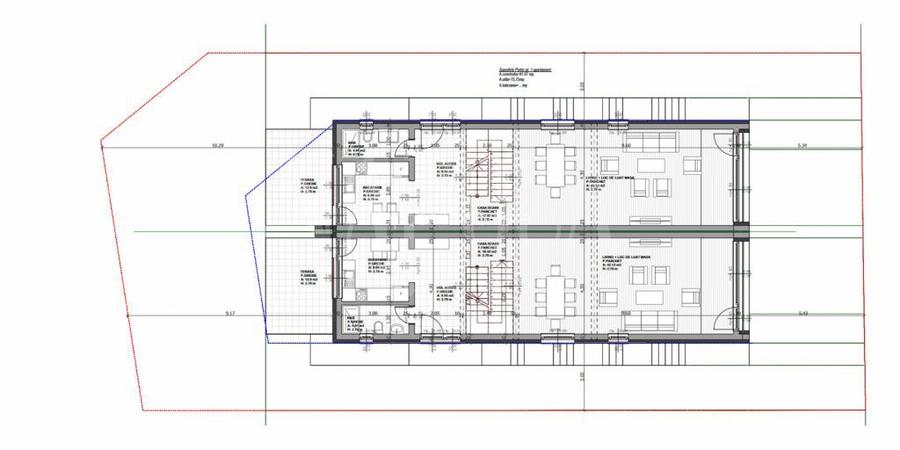
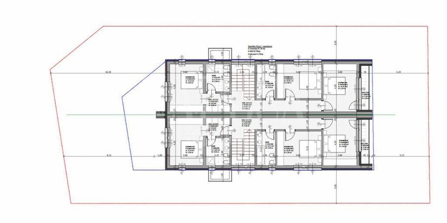
Imobilul este construit din caramida, stil modern, are o suprafata utila de 176 mp si este compartimentat pe trei nivele (D+P+E) astfel:
Demisol:
-1 garaj.
Parter:
-living + bucatarie;
-1 baie;
-1 terasa.
Etaj:
-3 dormitoare;
-2 bai;
-1 balcon.
Imobilul mai dispune si de un loc de parcare, iar suprafata totala a terenului este de 260 mp.
Se vinde la stadiul de semifinisat cu un strat de glet, sapa egalizatoare, instalatii electrice si sanitare trase pe pozitie, geamuri termoizolante cu 3 sticle si 5 camere, usa PVC la intrare.
Sistemul de incalzire se realizeaza prin pardoseala cu ajutorul centralei termice proprii.
Pentru mai multe detalii va stam cu drag la dispozitie,
Echipa Napoca Imobiliare!
ID oferta: 130141
Sediul central - Timișoara
Bulevardul Victor Babeș nr. 2, 300230, Timișoara, România
Tel: +40.374.40.44.98 / Fax: +40.256.401.179
Email: suport@imobiliare.ro
Luni - Vineri 08:00 - 20:00
Punct de lucru - București: Iride Business Park, Bld. Dimitrie
Pompeiu 9-9A, Clădirea B2B,
020335, Sector 2, București, România
CONTACT
Sediul central - Timișoara
Bulevardul Victor Babeș nr. 2, 300230, Timișoara, România
Tel: +40.374.40.44.98 / Fax: +40.256.401.179
Email: suport@imobiliare.ro
Luni - Vineri 08:00 - 20:00
Punct de lucru - București: Iride Business Park, Bld. Dimitrie
Pompeiu 9-9A, Clădirea B2B,
020335, Sector 2, București, România
Sună acum și cere detalii sau programează o vizionare.
Cere detalii prin email
*
*
*
*
Stații autobuz
Gradinițe
Școli
Supermarket
Parcări
Parcuri
Terenuri sport
Farmacie
Spital
Restaurant
Pub
Cafenea
Bar
Bancă
Statia Cartier Baciu, Linia 31
aprox.
102 m
Cartier Baciu
aprox.
125 m
Cartier Baciu
aprox.
143 m
Jupiter
aprox.
143 m
Calea Baciului
aprox.
207 m
Statia Calea Baciului 2, Linia 31
aprox.
214 m
Valea Seaca
aprox.
299 m
Statia Calea Baciului, Linia 31
aprox.
327 m
Statia Fabrica de Paine, Linia 31
aprox.
388 m
Statia Fabrica de Paine 2, Linia 31
aprox.
391 m
Fabrica de Paine Nord
aprox.
405 m
Fabrica de Paine Sud
aprox.
445 m
Statia Napolact, Linia 31, 31B
aprox.
655 m
Napolact
aprox.
683 m
Tudor Vladimirescu Nord
aprox.
836 m
Grăd.Neghinițăstr. 2
aprox.
243 m
Gradinita Neghinita
aprox.
659 m
Grăd.Mica Sirenă2
aprox.
1792 m
FasTracKids Cluj-Napoca
aprox.
1879 m
Liceul Teoretic Onisifor Ghibu
aprox.
1993 m
Scoala Generala nr.15
aprox.
1993 m
Lidl
aprox.
680 m
OUTLET
aprox.
1852 m
Parcare pentru clienti cu plata
aprox.
205 m
Parcare pentru clienti
aprox.
368 m
Parcare pentru clienti cu plata
aprox.
685 m
Parcare
aprox.
1330 m
Parcare
aprox.
1437 m
Parcare privata
aprox.
1766 m
Parcare
aprox.
1782 m
Parcare privata
aprox.
1786 m
Parcare privata
aprox.
1802 m
Parcare privata
aprox.
1836 m
Parcare privata
aprox.
1875 m
Parcare
aprox.
1888 m
Parcare privata
aprox.
1910 m
Parcare
aprox.
1922 m
Parcare
aprox.
1963 m
Parc
aprox.
640 m
Muzeul Etnografic Cluj (en)
aprox.
1227 m
Parc
aprox.
1812 m
Parc
aprox.
1898 m
Părculeț
aprox.
1908 m
Parc
aprox.
1940 m
Parc
aprox.
1984 m
Fabrica de Sport
aprox.
1380 m
Teren sportiv
aprox.
1960 m
Farmacia Europa
aprox.
1319 m
Acama
aprox.
1603 m
Iorafarm
aprox.
1738 m
Farmacia Panaceea
aprox.
1867 m
Dispensar
aprox.
1331 m
Policlinica Grigorescu
aprox.
1973 m
Hotel Panorama (en)
aprox.
146 m
Pralina
aprox.
453 m
La Casa
aprox.
454 m
Ilinca
aprox.
568 m
suson farm (en)
aprox.
1017 m
Regal
aprox.
1356 m
Pizzeria Mamma Mia (en)
aprox.
1731 m
Baciu
aprox.
1790 m
La Luca
aprox.
1842 m
Restaurant
aprox.
1946 m
Terasa "Hoia"
aprox.
1974 m
Cantina Hoia
aprox.
1982 m
Infinity Games
aprox.
1754 m
Royal cafe
aprox.
1755 m
PLAN Cafe
aprox.
1900 m
Admiral
aprox.
1762 m
BT
aprox.
699 m
Banca Transilvania
aprox.
1862 m
Printre principalele artere care străbat această zonă a Clujului se numără, în partea de sud, strada Septimiu Mureșan (aceasta merge, pe bună parte din lungimea sa, paralel cu râul Nadăș); în centrul cartierului se află Strada Dâmbul Rotund "“ de unde îi vine, de fapt, și numele; în nord, Strada Gheorghe Sion și Strada Viile Dâmbul Rotund marchează, practic, limita nordică a cartierului. Comparativ cu alte zone ale Clujului, Dâmbul Rotund este, pe alocuri, destul de deficitar în ceea ce privește infrastructura rutieră. Deși este deservit, ca și alte zone clujene, de o serie de mijloace de transport în comun, zona de nord a cartierului ar necesita extinderea liniilor parcurse de acestea. Dacă vrei să cumperi o proprietate aici, interesează-te, așadar, ce distanță ai de parcurs până la cele mai apropiate stații.
Dacă ești părinte "“ sau deocamdată doar îți dorești să devii "“, cu siguranță că, atunci când vine vorba de alegerea unei locuințe, un aspect important la care te gândești este reprezentat de oportunitățile de educație disponibile într-o zonă sau alta. În această privință, poți să stai liniștit: în Dâmbul Rotund se găsesc, ca și în celelalte subdiviziuni ale orașului de pe Someș, mai multe unități de învățământ. O școală cu tradiție din cartier este Școala Gimnazială "Emil Isac", situată chiar în apropiere de Strada Dâmbul Rotund, din zona centrală. În ceea ce privește oportunitățile de continuare a studiilor după liceu, de menționat este Școala de Agenți de Poliție "Septimiu Mureșan" "“ localizată în zona de sud a cartierului, dar dincolo de cursul râului Nadăș.
Ca și în Gruia, în Dâmbul Rotund nu există, momentan, un mall și nici un hipermarket (lucru cât se poate de firesc, de altfel, ținând cont de faptul că este vorba de un cartier mărginaș și cu o densitate a populației relativ redusă). Locuitorii acestei zone nu sunt, însă, lipsiți de alternative când vine vorba de cumpărături "“ astfel, pentru nevoile de zi cu zi există o serie de magazine de dimensiuni mai reduse, dintre care unele afiliate unor rețele internaționale. Chiar dacă nu strict între granițele cartierului, opțiuni există și pentru aceia care sunt pasionați de shopping. Fără prea mare efort, aceștia pot ajunge rapid în zona Centrală a orașului, unde pot vizita numeroasele magazine existente în materie de fashion (și nu numai).
Dacă ai "“ sau intenționezi să-ți achiziționezi "“ o mașină, parcarea nu ar trebui să reprezinte, în mod normal, o problemă, dată fiind densitatea redusă a populației din acest cartier. Dacă dorești, totuși, să închiriezi un spațiu al tău de la autoritățile locale, te poți interesa la sediul central al Primăriei Clujului (amplasat pe Strada Moților, nr. 3).
Spre deosebire de locuitorii altor zone ale Clujului, cei din Dâmbul Rotund nu au la dispoziție un parc în toată puterea cuvântului, cartierul fiind, în general, deficitar și la capitolul locuri de joacă pentru copii. Totuși, având în vedere multitudinea zonelor verzi, poți spera să găsești câteva trasee bune de plimbare. Dacă ești pasionat de sport, iar mersul pe jos și joggingul nu sunt suficiente pentru tine, în Dâmbul Rotund găsești o oportunitate importantă, cunoscută localnicilor sub numele "Fabrica de Sport". Amplasat în sudul cartierului, în fosta zonă industrială, acesta este considerat a fi unul dintre cele mai moderne complexuri sportive din oraș, fiind deschis atât amatorilor de fotbal, cât și celor de fitness, aerobic, kickboxing etc.
Dacă te gândești să te muți în Dâmbul Rotund, poate că vei fi dezamăgit să afli că aici nu există niciun spital de stat. Nu e cazul, însă, să te descurajezi: având în vedere proximitatea față de Centru, pentru serviciile medicale de urgență poți ajunge rapid la multitudinea de spitale care se găsesc în "inima" orașului: Spitalul Clinic Județean de Urgență Cluj-Napoca, Spitalul Clinic Municipal Cluj-Napoca, Spitalul Universitar C.F. Cluj-Napoca etc. Nu sunt de neglijat, desigur, nici cele câteva cabinete medicale particulare ce pot fi găsite în cartier "“ pe acest segment vei găsi atât câteva opțiuni în materie de medicină de familie, cât și în ceea ce privește anumite servicii medicale de specialitate (stomatologie, spre exemplu).
În afară de câteva fast food-uri de cartier, locuitorii cartierului Dâmbul Rotund beneficiază, în apropierea casei, și de câteva oportunități demne de luat în seamă la capitolul restaurante. De menționat este restaurantul "Stejarul", amplasat pe Strada Corneliu Coposu, nr. 95, ce dispune de terasă și oferă și servicii de livrare la domiciliu, dar și restaurantul "Fabrica", de pe Strada Tudor Vladimirescu, nr. 22, unde pot fi organizate și evenimente. Pentru a beneficia de o gamă mai largă de opțiuni pentru ieșirile în oraș cu prietenii, locuitorii acestui cartier au la dispoziție, desigur, și zona Centrală.
Dacă ai nevoie să efectuezi o operațiune bancară, trebuie să știi că strict între granițele acestui cartier nu prea ai opțiuni la acest capitol. Cu toate acestea, imediat sub limita sudică a cartierului, la granița dintre Gruia și zona Centrală (reprezentată de Strada Horea), se găsesc trei sucursale bancare: una din rețeaua BCR, o Banca Transilvania, alături de un sediu Raiffeisen Bank. Consultă harta și află unde sunt localizate și alte bănci sau ATM-uri în cartierul Dâmbul Rotund:
Înainte să pleci...
Ești sigur că ai văzut și aceste proprietăți?
362.879 €
299.900 € +TVA
Cluj-Napoca, Dâmbul Rotund
5 camere
246 mp
240 mp teren
330.000 €
Cluj-Napoca, Dâmbul Rotund
4 camere
140 mp
300 mp teren
361.788 €
298.999 € +TVA
Cluj-Napoca, Dâmbul Rotund
5 camere
244 mp
131 mp teren
Creează alertă
Salvează căutarea ca să primești pe email ultimele anunțuri publicate
Duplexuri cu 4+ camere de vânzare în zona Dâmbul Rotund, Cluj-Napoca
Cere detalii prin email
*
*
*
*
Detaliile tale de contact vor fi partajate cu Napoca Imobiliare