Duplex de vânzare | Teren de 700 mp | Cartierul Dâmbul Rotund

370.000 €

Dâmbul Rotund, Cluj-Napoca

Nr. cam.:
5
Sup. utilă:
150 mp
Sup. teren:
700 mp
Tip prop.:
Duplex
  • • Locație aproximativă

Descriere casă

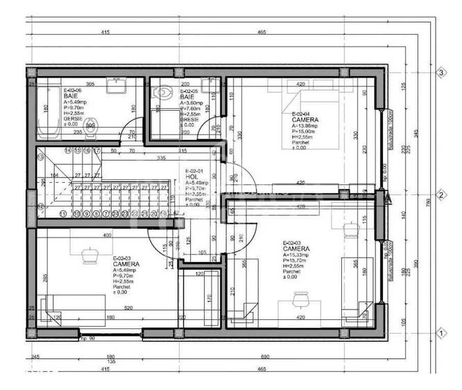
Vă propunem spre vânzare o casă de tip duplex, situat în Cartierul Dâmbul Rotund. Proprietatea beneficiază de o suprafață utilă de 150 mp, iar pe lângă aceasta, dispune de trei parcări exterioare, și de un teren de 700 mp. Casa este dispusă pe un regim de înălțime de P+E+M, și este compartimentată astfel : Parter: Un living cu ieșire spre terasă, o bucătărie închisă, o baie, un spațiu tehnic. Etaj: un hol, trei dormitoare dintre care unul este dotat cu baie proprie. Mansardă: o încăpere open space cu un balcon de 9 mp. Locuința se predă în stadiu semifinisat. În momentul de față nu are montată centrala si instalațiile pentru încălzire. Construcția casei a fost făcută în anul 2022. Pentru mai multe informații și vizionări, contactați-ne cu încredere! Informațiile din anunț au fost furnizate în prealabil de către proprietar. Agenția nu își asumă responsabilitatea pentru eventuale modificări în ceea ce privește prețul sau informațiile prezentate.
Citește mai mult Citește mai puțin
Nemobilat Grădină Curte 3 Parcări

Detalii casă

ID anunț: XBA0110LT Copiat! 266126044 Copiat!
Actualizat în: 23 Februarie 2026
Suprafață construită: 90 mp
Suprafață desfășurată: 180 mp
Nr. bucătării: 1
Nr. băi: 3
Nr. balcoane / Terase / Logii: 1
Nr. terase: 1
Suprafață terase: 30 mp
Front stradal: 15.0 m
Învelitoare acoperiș: Țiglă
An construcție: 2024 (Finalizată)
Structură rezistență: Cărămidă
Regim înălțime: P+1E+M

Utilități

Destinație
Rezidențial
Ușă intrare
Metal
Ferestre cu geam termopan
PVC
Contorizare
Apometre Contor căldură Contor gaz
Utilități
Curent Apă Canalizare Gaze Telefon
Internet
Cablu
Amenajare străzi
Iluminat stradal Mijloace de transport în comun Asfaltate
Comision
standard

Disponibilitate proprietate:

Imediat

Puncte de interes

Mijloace transport
bus-station
Statia FIMARO, Linia 31
Stații autobuz aprox. 734 m
bus-station
Livezeni
Stații autobuz aprox. 735 m
train-station
Gara Cluj-Napoca
Stații tren aprox. 1787 m
tram-station
Statia P-ta Garii 2 TRV, Linia 100, 102, 31
Stații tramvai aprox. 1793 m
Școală
kindergarten
Grăd.Neghinițăstr. 1
Gradinițe aprox. 540 m
school
Școala de Agenți de Poliție "Septimiu Mureșan" Cluj Napoca
Școli aprox. 827 m
school
Colegiul Național George Barițiu
Școli aprox. 842 m
kindergarten
Grăd.Neghiniță
Gradinițe aprox. 947 m
Recreere
sports-ground
Teren sportiv
Terenuri sport aprox. 824 m
park
Parc
Parcuri aprox. 1229 m
supermarket
Lidl
Supermarket aprox. 1271 m
public-square
Piata Garii-RailwayStation Square (en)
Piețe publice aprox. 1785 m

Detalii despre preț și costuri

Costuri cu achiziția

Fără credit
15.599 RON
Credit ipotecar
18.282 RON
Noua casă
2.025 RON+ taxe notariale

i

Costuri adiționale mai puțin știute la achiziție: taxe notariale, comisioane etc.

Proprietăți recomandate

Detalii de contact

Comitat Imobiliare

Office Comitat Asistent Manager

Comitat Imobiliare
PRO

Abonează-te la newsletter să fii primul care primește cele mai noi recomandări de proprietăți și sfaturi de la experți.

CONTACT

Creează alertă

Salvează căutarea ca să primești pe email ultimele anunțuri publicate

Duplexuri cu 4+ camere de vânzare în zona Dâmbul Rotund, Cluj-Napoca