2

Vila cu panorama unica, locatie de exceptie

525.000 € + TVA

Grigorescu, Cluj-Napoca

Nr. cam.:
4
Sup. utilă:
246 mp
Sup. teren:
90 mp
Tip prop.:
Duplex
  • • Locație aproximativă

Descriere casă

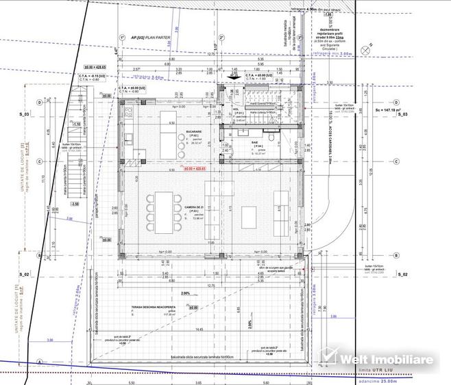
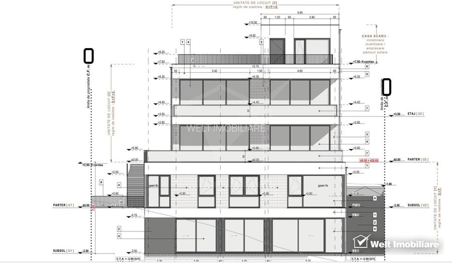
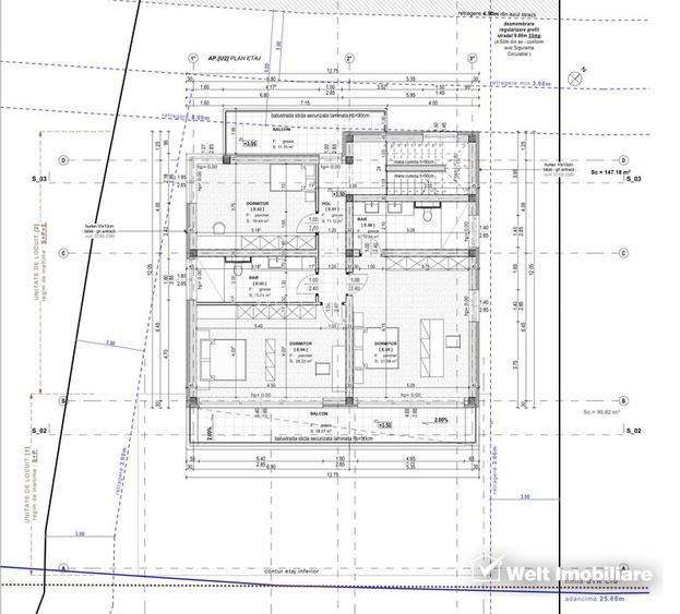
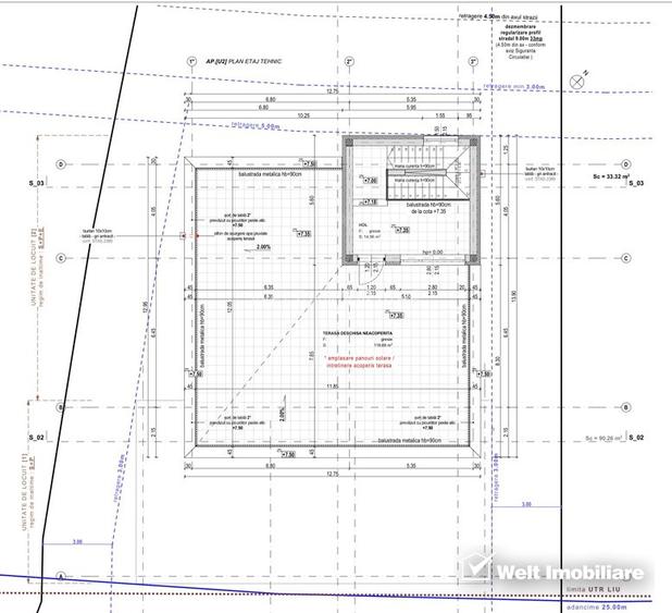
Welt Imobiliare va propune spre vanzare o proprietate rara, adresata celor care isi doresc mai mult decat un simplu camin — o resedinta de top intr-una dintre cele mai exclusiviste zone din Cluj-Napoca. Localizare premium: situata intr-un cartier select, cu acces facil si intimitate deplina, aceasta unitate de duplex amplasata pe etajul superior al unui imobil modern ofera o panorama de neegalat asupra intregului oras Cluj-Napoca — de dimineata pana seara, privelistea te cucereste definitiv. Suprafata utila: 240 mp, inteligent compartimentati pentru un stil de viata rafinat: Demisol: garaj generos cu 2 locuri de parcare; Parter: zona de zi luminoasa cu living spatios, bucatarie, baie si o terasa generoasa; Etaj: 3 dormitoare, 2 bai, 3 balcoane cu priveliste superba; Etaj retras: birou intim si o terasa panoramica impresionanta, perfecta pentru seri private sau intalniri rafinate. Se preda la stadiul de semifinisat, oferindu-ti libertatea de a personaliza interioarele. Este finalizata in totalitate pe exterior, 90% interior. Pret: 525.000 EUR +TVA (negociabil) Aceasta proprietate nu este doar o locuinta, ci o declaratie de stil si succes, destinata celor care apreciaza unicitatea, pozitia, lumina naturala si spatiul generos intr-un oras aflat in plina dezvoltare. Contacteaza-ne acum pentru detalii sau o vizionare privata. Aceasta este una dintre acele proprietati care nu apar de doua ori pe piata.
Citește mai mult Citește mai puțin
Nemobilat Centrală proprie 2 Parcări 2 Parcări / Garaje / Parcări subterane 1 Garaj

Detalii casă

ID anunț: X1KA11207 Copiat! 265866404 Copiat!
Actualizat în: 28 Februarie 2026
Suprafață construită: 380 mp
Nr. bucătării: 1
Nr. băi: 3
Nr. balcoane / Terase / Logii: 3
Nr. terase: 2
Front stradal: 18 m
An construcție: 2025 (În construcție)
Structură rezistență: Cărămidă
Regim înălțime: D+P+1E

Utilități

Utilități
Curent Apă Canalizare Gaze CATV
Alte spații utile
Dressing
Ușă intrare
Metal
Izolații termice
Exterior
Ferestre cu geam termopan
PVC
Amenajare străzi
Asfaltate
Comision
2%+TVA

Certificat energetic:

Clasa energetică: B

Disponibilitate proprietate:

imediat

Puncte de interes

Mijloace transport
bus-station
Statia CORA 2, Linia CORA
Stații autobuz aprox. 841 m
bus-station
Statia Magazin CORA, Linia CORA
Stații autobuz aprox. 849 m
tram-station
Clabucet
Stații tramvai aprox. 1731 m
tram-station
Clabucet
Stații tramvai aprox. 1757 m
Școală
kindergarten
Gradinita Licurici str. 1
Gradinițe aprox. 794 m
kindergarten
Grăd.Mica Sirenă1
Gradinițe aprox. 906 m
university
Institutul de cercetari in chimie Raluca Ripan
Universități aprox. 1153 m
school
Școala Iuliu Hațieganu
Școli aprox. 1541 m
Recreere
park
Parc
Parcuri aprox. 580 m
sports-ground
Teren sportiv
Terenuri sport aprox. 692 m
supermarket
Cora
Supermarket aprox. 866 m
mall
Complex comercial Polus
Mall aprox. 1685 m

Detalii despre preț și costuri

Costuri cu achiziția

Fără credit
24.701 RON
Credit ipotecar
28.509 RON
Noua casă
3.376 RON+ taxe notariale

i

Costuri adiționale mai puțin știute la achiziție: taxe notariale, comisioane etc.

Proprietăți recomandate

Detalii de contact

WELT IMOBILIARE

Welt Imobiliare

4.52(21 review-uri)

WELT IMOBILIARE
PRO

Abonează-te la newsletter să fii primul care primește cele mai noi recomandări de proprietăți și sfaturi de la experți.

CONTACT

Creează alertă

Salvează căutarea ca să primești pe email ultimele anunțuri publicate

Duplexuri cu 4+ camere de vânzare în zona Grigorescu, Cluj-Napoca