3

Casa/Duplex Floresti, gradina, parcare, zona Parc Poligon

259.000 €

Florești, Județul Cluj

Nr. cam.:
4
Sup. utilă:
171 mp
Sup. teren:
250 mp
Tip prop.:
Duplex
  • • Locație aproximativă

Descriere casă

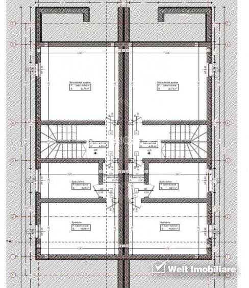
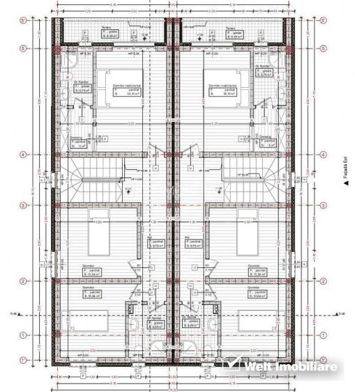
Casă cuplată - tip duplex, cu zid dublu de caramida + polistiren de 10 intre cele 2 unitati, situată într-o zonă rezidențială, cu acces facil spre Cluj-Napoca, localizată în Florești, pe strada Tauti, în vecinatatea Parcului Poligon. Strada este privata cu o latime de 8m care deserveste 5 proprietati. Cu o suprafață generoasă de 171 mp utili și o arhitectură modernă, oferă un plus de spatiu si confort. Regimul de înălțime este D+P+E+terase, cu o suprafață de 171 mp Utili iar compartimentarea este concepută astfel: la demisol: - un spațiu tehnic , o camera spalatorie-uscatorie, o camera hobby care se poate utiliza în funcție de preferințele viitorului proprietar; la parter: - o cameră de zi + zonă de servit masa, o bucătărie închisă, o baie, două holuri, casa scării, plus o terasă la etaj: - trei dormitoare, două băi, un hol, un balcon; Peste etaj are placa de beton armat+izolatie de polistiren + pod +acoperis Locuința se predă la stadiul de semifinisat, oferind posibilitatea de a personaliza spațiul conform preferințelor tale, cu șapă autonivelantă, incalzire in pardoseala, ferestre termoizolante cu tâmplărie PVC ( 3 sticle și 7 camere, 4 anotimpuri), instalații sanitare și electrice trase la poziție, izolație termică cu polistiren. Vanzarea se face de pe persoana fizica, neimplicand costuri suplimentare de TVA pretul fiind de 1500 eur/mp. Pentru detalii privind finisajele, termenele de predare sau opțiunile de personalizare, pentru orice alte informații cu privire la proiect ( fotografii suplimentare, schițe, randări ) sau pentru stabilirea unei vizionări, nu ezitați să ne contactați!
Citește mai mult Citește mai puțin
Grădină Încălzire prin pardoseală 2 Parcări Bine întreținut (Bună)

Detalii casă

ID anunț: X1KA1122U Copiat! 270301113 Copiat!
Actualizat în: 21 Aprilie 2026
Suprafață construită: 205 mp
Nr. bucătării: 1
Nr. băi: 2
Nr. terase: 1
An construcție: 2025 (În construcție)
Structură rezistență: Cărămidă
Regim înălțime: P+1E

Utilități

Izolații termice
Exterior
Ferestre cu geam termopan
PVC
Utilități
Curent Apă Canalizare Gaze
Amenajare străzi
Asfaltate

Puncte de interes

Mijloace transport
bus-station
Cetate
Stații autobuz aprox. 1926 m
bus-station
Cetate
Stații autobuz aprox. 1986 m
Școală
school
Scoala generala
Școli aprox. 899 m

Detalii despre preț și costuri

Costuri cu achiziția

Fără credit
Credit ipotecar
Noua casă

i

Costuri adiționale mai puțin știute la achiziție: taxe notariale, comisioane etc.

Insight premium disponibil după login

Proprietăți recomandate

Detalii de contact

WELT IMOBILIARE

Welt Imobiliare

4.35(22 review-uri)

WELT IMOBILIARE
PRO

Abonează-te la newsletter să fii primul care primește cele mai noi recomandări de proprietăți și sfaturi de la experți.

CONTACT

Creează alertă

Salvează căutarea ca să primești pe email ultimele anunțuri publicate

Duplexuri cu 4+ camere de vânzare în Florești, Județul Cluj