Vila tip duplex | Oaza ta de liniste in Mogosoaia

235.000 €

Mogoșoaia, Județul Ilfov

Nr. cam.:
4
Sup. utilă:
101 mp
Sup. teren:
314 mp
Tip prop.:
Duplex
  • • Exclusivitate
  • • Locație aproximativă

Descriere casă

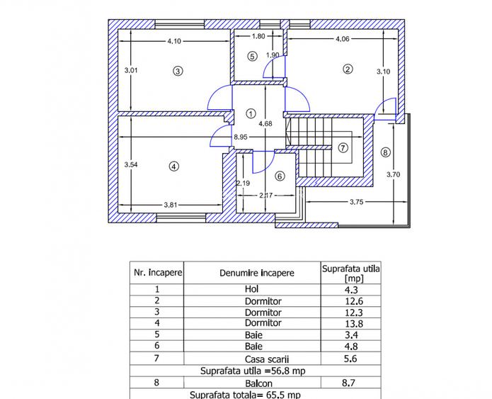
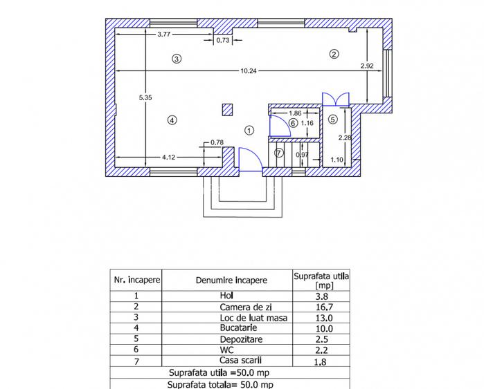
Va invitam sa descoperiti o proprietate care imbina perfect aerul curat al zonei rezidentiale Mogosoaia cu accesibilitatea urbana imediata. Situata intr-o zona exclusivista, ferita de zgomot si poluare, aceasta casa reprezinta echilibrul ideal intre confortul modern si natura de la pragul usii. Casa este strategic amplasata langa fosta Primarie Mogosoaia, pe o strada asfaltata si linistita * Doar 4 minute pana la Parcul Mogosoaia – locul ideal pentru relaxare si sport. * Acces rapid la Lidl, Mega Image si Centrul Comercial Colosseum. * 10 minute cu masina pana la statiile de metrou Laminorului si Straulesti. * Legatura facila spre Chitila si Centura Bucuresti. Detalii Tehnice & Compartimentare Cu un regim de inaltime P + 1 + Pod Inalt, casa este gandita pentru a oferi spatiu si functionalitate, astfel: * avem o Suprafata Utila de 101 mp (plus un pod generos ce poate fi transformat in spatiu locuibil). * Teren: 314 mp de teren cu 250 mp liberi cu peisagistica matura, iluminat si aspersoare si pavaj pentru locurile de parcare * Predare: imediat la stadiu "la alb" sau "la cheie" contra cost. Distributie Inteligenta: * Parter: Living luminos cu bucatarie open-space, zona dining,grup sanitar, spatiu tehnic sub scara. * Etaj 1: 3 Dormitoare primitoare (cel matrimonial cu baie proprie), baie pe hol si balcon de colt cu vedere libera. * Pod: Spatiu generos de depozitare sau viitoare zona de hobby (nu este inclus in suprafata utila) si este izolat deja. Dotari de Top & Exterior Amenajat Proprietatea nu este doar o casa, ci un camin "smart" echipat pentru confortul tau: * Confort Termic: Incalzire in pardoseala si centrala termica proprie instalate si perfect functionale * Izolatie: Tamplarie Salamander cu geam tripan si termosistem performant. * Curte: Gazon proaspat, sistem de irigatii automatizat, pavaj modern si lumini ornamentale exterioare, gazon si plante * Acces: Poarta auto actionata electric si spatiu pentru 2 masini. Avantaje Client * 0% TVA: Proprietar persoana fizica (pretul afisat este cel final). * ai posibilitatea de a alege finisajele pentru o predare "la cheie". * Extra optiuni: Se pot instala contracost sisteme de supraveghere, foisor sau anexe de depozitare la cerere etc Comision Cumparator: 3% Nu rata ocazia de a te muta in "zona verde" a capitalei! Contacteaza-ma astazi pentru a programa o vizionare si pentru a primi dosarul complet al proprietatii.
Citește mai mult Citește mai puțin
Nemobilat Grădină Curte Centrală proprie Încălzire prin pardoseală 2 Parcări

Detalii casă

ID anunț: XCGD1101E Copiat! 274754264 Copiat!
Actualizat în: 15 Februarie 2026
Suprafață construită: 140 mp
Nr. bucătării: 1
Nr. băi: 2
Nr. balcoane / Terase / Logii: 1
Nr. terase: 1
Front stradal: 26 m
An construcție: 2022 (Finalizată)
Structură rezistență: Cărămidă
Regim înălțime: P+1E+M

Utilități

Pereți
Vopsea lavabilă
Podele
Marmură
Ușă intrare
Metal
Izolații termice
Exterior
Ferestre cu geam termopan
PVC
Contorizare
Apometre Contor gaz
Diverse
Scară interioară Senzor de fum Telecomandă poartă garaj
Alte spații utile
WC Serviciu
Utilități
Curent Apă Canalizare Gaze
Amenajare străzi
Asfaltate Iluminat stradal Mijloace de transport în comun
Comision
2%

Certificat energetic:

Clasa energetică: A
Consumul total specific de energie primară: 105 kWh
Indicele de emisii echivalent CO2: 17.7

Disponibilitate proprietate:

imediat

Puncte de interes

Școală
school
Scoala generala
Școli aprox. 470 m
school
Scoala Mogosoaia
Școli aprox. 474 m
Recreere
park
Parcul Mogosoaia
Parcuri aprox. 280 m
sports-ground
Teren sportiv
Terenuri sport aprox. 807 m
supermarket
MegaImage
Supermarket aprox. 889 m
restaurant
Casa Vanatoreasca
Restaurant aprox. 1305 m

Detalii despre preț și costuri

Costuri cu achiziția

Fără credit
34.922 RON
Credit ipotecar
37.032 RON
Noua casă
1.338 RON+ taxe notariale

i

Costuri adiționale mai puțin știute la achiziție: taxe notariale, comisioane etc.

Proprietăți recomandate

Detalii de contact

Abonează-te la newsletter să fii primul care primește cele mai noi recomandări de proprietăți și sfaturi de la experți.

CONTACT

Creează alertă

Salvează căutarea ca să primești pe email ultimele anunțuri publicate

Duplexuri cu 4+ camere de vânzare în Mogoșoaia, Județul Ilfov