8

Duplex cu 4 camere - 379 mp teren - Mosnita - Direct dezvoltator

159.500 €

Moșnița Nouă, Județul Timiș

Nr. cam.:
4
Sup. utilă:
107 mp
Sup. teren:
379 mp
Tip prop.:
Duplex
  • • Comision 0%
  • • Locație aproximativă

Descriere casă

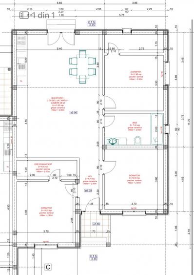
Evand Homes va prezinta spre vanzare un duplex cu 4 camere si 2 bai, situat in localitatea Mosnita, zona Drumul Boilor/Noul Lidl, aproape de statie de transport in comun. Proprietatea are o suprafata utila de 103 mp si un teren de 379 mp, construita in anul 2025, pe structura de beton cu zidarie din caramida portanta. Compartimentare: - Parter: 3 dormitoare, 2 bai, dressing, living cu bucatarie open space; - Pod de depozitare. Dotari: - confort termic cu centrala proprie cu incalzire in pardoseala; - tamplarie PVC tripan; - finisaje la alegerea clientului; - curte amenajata cu alei; - 2 locuri de parcare inclus. Utilitati: apa, gaz, curent, canalizare. Pret: 159.500€ - Comision 0%! Pentru detalii și programarea unei vizionari, contactati-ne la – Evand Homes, partenerul dumneavoastra de incredere.
Citește mai mult Citește mai puțin
Grădină Curte Centrală proprie Încălzire prin pardoseală 2 Parcări Bine întreținut (Bună)

Detalii casă

ID anunț: XG6R11009 Copiat! 272213154 Copiat!
Actualizat în: 15 Aprilie 2026
Suprafață construită: 128 mp
Nr. bucătării: 1
Nr. băi: 2
An construcție: 2025 (Finalizată)
Structură rezistență: Beton

Utilități

Pereți
Vopsea lavabilă Faianță
Podele
Parchet Gresie
Ușă intrare
PVC
Uși interior
Celulare
Izolații termice
Exterior
Ferestre cu geam termopan
PVC
Contorizare
Apometre Contor gaz
Utilități
Curent Apă Canalizare Gaze
Amenajare străzi
Pietruite Mijloace de transport în comun
Comision
0%

Certificat energetic:

Clasa energetică: B

Puncte de interes

Recreere
restaurant
Valery 3 (en)
Restaurant aprox. 1019 m

Detalii despre preț și costuri

Costuri cu achiziția

Fără credit
Credit ipotecar
Noua casă

i

Costuri adiționale mai puțin știute la achiziție: taxe notariale, comisioane etc.

Insight premium disponibil după login

Proprietăți similare

Duplex cu 5 camere în Moșnița Nouă
169.000 €
Județul Timiș, Moșnița Nouă
5 camere
117 mp
380 mp teren
Duplex cu 4 camere în Moșnița Nouă
175.000 €
Județul Timiș, Moșnița Nouă
4 camere
105 mp
255 mp teren
Duplex cu 4 camere în Moșnița Nouă
148.800 €
Județul Timiș, Moșnița Nouă
4 camere
103 mp
300 mp teren

Detalii de contact

Evand Homes

Alin Ivaniciuc Consultant Imobiliar

Evand Homes
PRO

Abonează-te la newsletter să fii primul care primește cele mai noi recomandări de proprietăți și sfaturi de la experți.

Feedback apel

CONTACT

Creează alertă

Salvează căutarea ca să primești pe email ultimele anunțuri publicate

Duplexuri cu 4+ camere de vânzare în Moșnița Nouă, Județul Timiș