COMISION 0% | Duplex 5 camere | 110 mp | Mosnita Noua

179.999 €

Moșnița Nouă, Județul Timiș

Nr. cam.:
5
Sup. utilă:
110 mp
Sup. teren:
300 mp
Tip prop.:
Duplex
  • • Comision 0%
  • • Locație aproximativă

Descriere casă

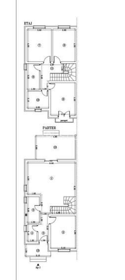
COMISION 0% pentru cumparator Va recomand spre vanzare un duplex, intr-o zona linistita si accesibila din Mosnita Noua, in aproprierea intrari din Cearda Rosie, aproape de centura. Proprietatea se diferentiaza prin arhitectura ei, compartimentare inteligenta, ideala pentru o familie care isi doreste confort si spatiu. DETALII TEHNICE SI COMPARTIMENTARE Duplex cu 300 mp de teren Unitatea are: - 3 dormitoare spatioase - Living spatios - Bucatarie inchisa - 2 bai moderne - Dressing - Camera tehnica EXTERIOR SI FACILITATI - Gradina proprie - Teresa de 14 mp acoperita - Acces: Intrare separata pentru fiecare locuinta - Parcare : 2 locuri - Utilitati : Bransat la toate utilitatiile zonei (inafara de canal) LOCALIZARE Proprietatea este situata in Mosnita Noua, foarte aprope de Centura, oferind proximitate fata de puncte de interes precum Kaufland, transport in comun si acces rapid catre Timisoara. Pentru Detalii sau programarea unei vizionari, contacteaza-ma. COMISION 0% pentru cumparator.
Citește mai mult Citește mai puțin
Grădină Curte Centrală proprie Încălzire prin pardoseală

Detalii casă

ID anunț: XEAT1106D Copiat! 275455077 Copiat!
Actualizat în: 20 Aprilie 2026
Nr. bucătării: 1
Nr. băi: 2
Nr. terase: 1
Suprafață terase: 14 mp
Învelitoare acoperiș: Țiglă
An construcție: 2026 (Finalizată)
Structură rezistență: Cărămidă
Regim înălțime: P+1E

Utilități

Pereți
Faianță
Podele
Gresie Parchet
Ușă intrare
PVC
Izolații termice
Exterior
Ferestre cu geam termopan
PVC
Contorizare
Apometre Contor căldură Contor gaz
Utilități
Curent Apă Canalizare CATV Gaze Telefon
Internet
Cablu
Amenajare străzi
Iluminat stradal Mijloace de transport în comun Asfaltate
Comision
0%

Disponibilitate proprietate:

Imediat

Puncte de interes

Mijloace transport
tram-station
Statie Ciarda Rosie Tv4
Stații tramvai aprox. 1804 m
Școală
school
Scoala Generala 20
Școli aprox. 1567 m
kindergarten
Gradinita Program Normal Nr. 6
Gradinițe aprox. 1574 m
school
Scoala Gimnaziala nr. 20
Școli aprox. 1574 m
Recreere
park
Parc
Parcuri aprox. 1546 m
park
Parcul Ciarda Rosie
Parcuri aprox. 1548 m
restaurant
Valery 3 (en)
Restaurant aprox. 1610 m

Detalii despre preț și costuri

Costuri cu achiziția

Fără credit
Credit ipotecar
Noua casă

i

Costuri adiționale mai puțin știute la achiziție: taxe notariale, comisioane etc.

Insight premium disponibil după login

Proprietăți similare

Duplex cu 3 camere în Moșnița Nouă
169.000 €
Județul Timiș, Moșnița Nouă
3 camere
80 mp
340 mp teren
Duplex cu 3 camere în Moșnița Nouă
185.000 €
Județul Timiș, Moșnița Nouă
3 camere
79 mp
414 mp teren
Duplex cu 4 camere în Moșnița Nouă
164.990 €
Județul Timiș, Moșnița Nouă
4 camere
115 mp
272 mp teren

Detalii de contact

TRUST US

Ruben Stan

TRUST US
PRO

Abonează-te la newsletter să fii primul care primește cele mai noi recomandări de proprietăți și sfaturi de la experți.

Feedback apel

CONTACT

Creează alertă

Salvează căutarea ca să primești pe email ultimele anunțuri publicate

Duplexuri cu 4+ camere de vânzare în Moșnița Nouă, Județul Timiș