Duplex 4 camere Mosnita - zid dublu - Cartier Europa - Comision 0%

214.990 €

Moșnița Nouă, Județul Timiș

Nr. cam.:
4
Sup. utilă:
134 mp
Sup. teren:
325 mp
Tip prop.:
Duplex
  • • Comision 0%
  • • Locație aproximativă

Descriere casă

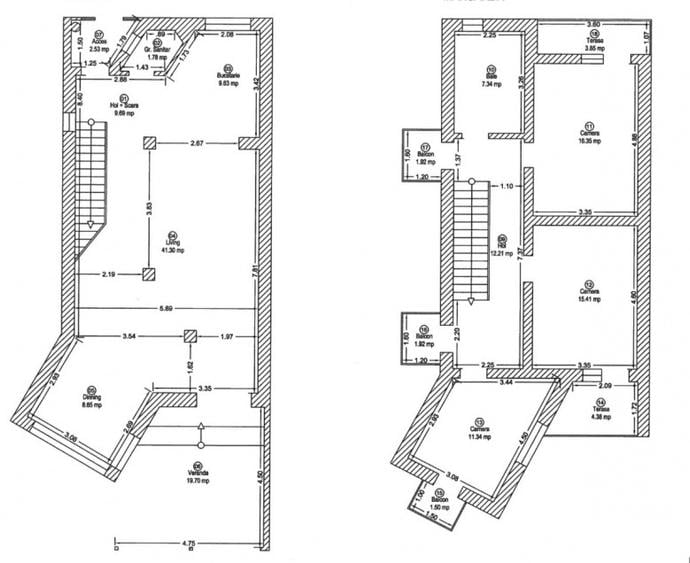
Evand Homes va propune spre vanzare, in exclusivitate, un duplex elegant Parter + Etaj, cu 4 camere si 2 bai, situat in Mosnita Noua – Cartier Europa, intr-o zona apreciata pentru accesibilitate si liniste, foarte aproape de Timisoara. Proprietatea beneficiaza de o pozitionare excelenta, in imediata apropiere a Kaufland, Lidl si a statiei de transport in comun. Casa a fost construita in anul 2007 de actualii proprietari, pentru locuire proprie, cu atentie deosebita acordata calitatii executiei si materialelor utilizate. Imobilul are o suprafata utila de 134 mp si este amplasat pe un teren de 325 mp, oferind un echilibru ideal intre spatiul interior si cel exterior. Constructia este solida, realizata pe structura din beton armat, cu zidarie din caramida de 30 cm, asigurand durabilitate si confort pe termen lung. Compartimentare: - Parter: hol, bucatarie inchisa, living, dining, spatiu de depozitare, baie, terasa acoperita; - Etaj: 3 dormitoare, 1 baie. Dotari: - confort termic cu centrala proprie (centrala noua Viessmann) cu incalzire prin calorifere; - sistem de climatizare de 24.000 BTU; - mobilat si utilat; - perete dublu de 60 cm cu izolatie intre cei doi pereti de 10 cm; - carport pentru 2 masini; - tamplarie PVC; - rulouri PVC; - sistem de alarma si supraveghere video; - poarta automatizata; - curte amenajata cu zona de gratar, casuta de depozitare si vegetatie matura. Utilitati: apa, gaz, curent, canalizare, fibra optica, drum asfaltat, iluminat stradal. Pret: 214.990 € - Comision 0%! Pentru detalii și programarea unei vizionari, contactati-ne la – Evand Homes, partenerul dumneavoastra de incredere.
Citește mai mult Citește mai puțin
Mobilat Grădină Curte Aer condiționat Calorifere Centrală proprie 4 Parcări Bine întreținut (Bună)

Detalii casă

ID anunț: XG6R1102U Copiat! 275035951 Copiat!
Actualizat în: 19 Mai 2026
Tip tranzacție: De vânzare prin agent
Suprafață construită: 160 mp
Nr. bucătării: 1
Nr. băi: 2
Nr. balcoane / Terase / Logii: 2
Nr. terase: 1
Suprafață terase: 20 mp
An construcție: 2007 (Finalizată)
Structură rezistență: Beton
Regim înălțime: P+1E
Modalitate de plată: Cash sau Credit

Utilități

Pereți
Vopsea lavabilă Faianță
Podele
Parchet Gresie
Rulouri/Obloane
PVC
Ușă intrare
PVC
Uși interior
Celulare
Izolații termice
Exterior
Ferestre cu geam termopan
PVC
Contorizare
Apometre Contor gaz
Bucătărie
Mobilată Utilată
Electrocasnice
Frigider Aragaz TV Hotă
Diverse
Sistem de alarmă Telecomandă poartă acces auto
Utilități
Curent Apă Canalizare Gaze CATV
Internet
Fibră optică
Amenajare străzi
Asfaltate Iluminat stradal Mijloace de transport în comun
Comision
0%

Puncte de interes

Mijloace transport
tram-station
Statie Ciarda Rosie Tv4
Stații tramvai aprox. 1868 m
Școală
school
Scoala Generala 20
Școli aprox. 1821 m
kindergarten
Gradinita Program Normal Nr. 6
Gradinițe aprox. 1822 m
school
Scoala Gimnaziala nr. 20
Școli aprox. 1822 m
Recreere
restaurant
Valery 3 (en)
Restaurant aprox. 1020 m
park
Parc
Parcuri aprox. 1972 m
park
Parcul Ciarda Rosie
Parcuri aprox. 1981 m

Istoricul prețurilor

Acces la informații premium după autentificare
Login Gratuit

Detalii despre preț și costuri

Costuri cu achiziția

Fără credit
Credit ipotecar
Noua casă

i

Costuri adiționale mai puțin știute la achiziție: taxe notariale, comisioane etc.

Acces la informații premium după autentificare
Login Gratuit

Proprietăți similare

Duplex cu 5 camere în Moșnița Nouă
219.990 €
Județul Timiș, Moșnița Nouă
5 camere
125,9 mp
297 mp teren
Duplex cu 5 camere în Moșnița Nouă
224.900 €
Județul Timiș, Moșnița Nouă
5 camere
120 mp
350 mp teren
Duplex cu 4 camere în Moșnița Nouă
214.500 €
Județul Timiș, Moșnița Nouă
4 camere
112 mp
360 mp teren

Detalii de contact

Evand Homes

Alin Ivaniciuc Consultant Imobiliar

Evand Homes
PRO

Abonează-te la newsletter să fii primul care primește cele mai noi recomandări de proprietăți și sfaturi de la experți.

Feedback apel

CONTACT

Creează alertă

Salvează căutarea ca să primești pe email ultimele anunțuri publicate

Duplexuri cu 4+ camere de vânzare în Moșnița Nouă, Județul Timiș