Duplex Sacalaz-alegerea finisajelor- 180.000

180.000 €

Săcălaz, Județul Timiș

Nr. cam.:
5
Sup. utilă:
120 mp
Sup. teren:
348 mp
Tip prop.:
Duplex
  • • Locație exactă

Descriere casă

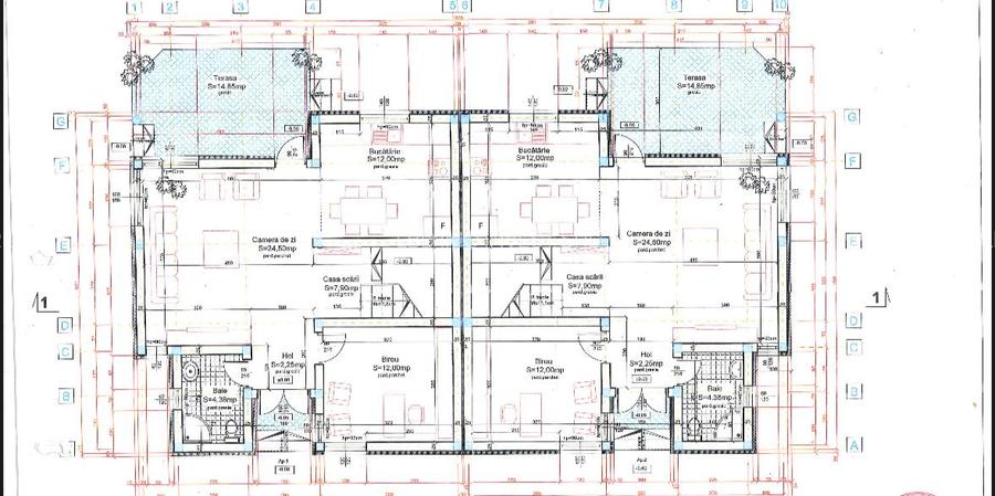
LB Invest Imobiliare vă propune spre vânzare un duplex modern, situat în partea de nord a orașului, la intrare în localitatea Săcălaz, într-o zonă liniștită și ușor accesibilă. Imobilul are regim de înălțime P+1, este construit în anul 2025 și oferă posibilitatea alegerii finisajelor, în funcție de preferințele viitorului proprietar. Suprafață teren: 348 mp Suprafață utilă: 120 mp Compartimentare parter: hol de acces living spațios bucătărie cu posibilitate de închidere dormitor spațiu tehnic terasă Etaj: dormitor matrimonial cu baie proprie 3 dormitoare grup sanitar Detalii constructie: constructie caramida. izolatie termica exterioara, centrala proprie, incalzire in pardoseala, pentru un confort sporit Duplexul este ideal pentru o familie care își dorește confort, spațiu și posibilitatea personalizării locuinței într-o zonă aflată în plină dezvoltare. Pentru stabilirea unei vizionari ne puteti contacta la numarul de telefon afisat si veti avea tot suportul necesar in gasirea unei noi locuinte.
Citește mai mult Citește mai puțin
Curte Centrală proprie Încălzire prin pardoseală 2 Parcări

Detalii casă

ID anunț: XD9I0101H Copiat! 273933180 Copiat!
Actualizat în: 19 Ianuarie 2026
Suprafață desfășurată: 150 mp
Nr. bucătării: 1
Nr. băi: 3
Nr. balcoane / Terase / Logii: 1
Nr. terase: 1
Suprafață terase: 15 mp
Nr. fronturi stradale: 1
Front stradal: 10 m
An construcție: 2025 (La roșu)
Structură rezistență: Cărămidă
Regim înălțime: P+1E

Utilități

Destinație
Rezidențial
Izolații termice
Exterior
Ferestre cu geam termopan
PVC
Utilități
Curent Apă Gaze Fosa septică
Amenajare străzi
Iluminat stradal Mijloace de transport în comun Pietruite
Comision
3%

Puncte de interes

Mijloace transport
bus-station
Sacalaz
Stații autobuz aprox. 1564 m
Școală
school
Scoala Gimnaziala Sacalaz
Școli aprox. 703 m
Recreere
supermarket
Profi Loco
Supermarket aprox. 810 m
sports-ground
Teren sportiv
Terenuri sport aprox. 1174 m
park
Parc
Parcuri aprox. 1804 m
sports-ground
Teren sportiv
Terenuri sport aprox. 1895 m

Detalii despre preț și costuri

Costuri cu achiziția

Fără credit
Credit ipotecar
Noua casă

i

Costuri adiționale mai puțin știute la achiziție: taxe notariale, comisioane etc.

Insight premium disponibil după login

Proprietăți recomandate

Detalii de contact

LBD IMO INVEST SRL

Lavinia Denisa Birsanu

LBD IMO INVEST SRL
PRO

Abonează-te la newsletter să fii primul care primește cele mai noi recomandări de proprietăți și sfaturi de la experți.

Feedback apel

CONTACT

Creează alertă

Salvează căutarea ca să primești pe email ultimele anunțuri publicate

Duplexuri cu 4+ camere de vânzare în Săcălaz, Județul Timiș