Duplex la cheie. 3 bai. 5 camere. La 4 minute de Timisoara.

220.000 €

Săcălaz, Județul Timiș

Nr. cam.:
5
Sup. utilă:
119 mp
Sup. teren:
350 mp
Tip prop.:
Duplex
  • • Locație aproximativă

Descriere casă

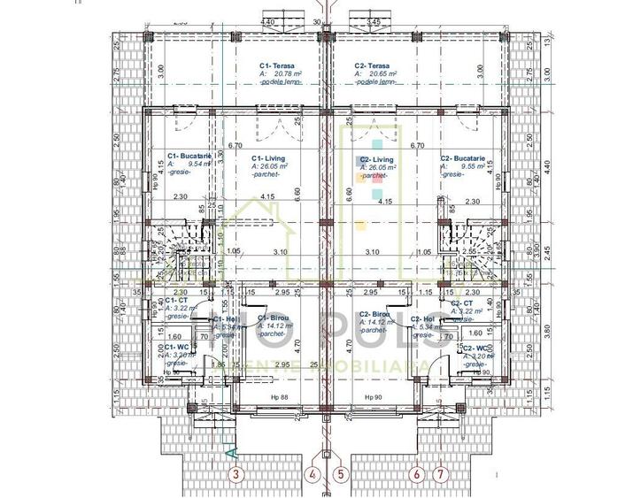
- 1/2 duplex in Sacalaz,cu regim de inaltime Parter + 1. - suprafata utila de 119 mp plus terasa de 21 mp. - teren de 350 mp, cu front stradal de 11 m. - detalii constructive : ziduri exterioare si interioare din caramida porotherm, termoizolata exterior, acoperis de tigla. - compartimentare: - parter : hol acces, camera tehnica, WC servici, birou, bucatarie, camera de zi, terasa; - etaj : hol, 3 dormitoare, 2 bai, dressing; - detalii AMENAJARE interioara se pot alege intru-un buget: parchet laminat – 70 lei/mp, gresie, faianta – 100 lei/mp, ferestre cu tamplarie PVC si geam tripan, usa PVC la intrare, usi interioare Porta Doors, vopsea lavabila, corpuri sanitare; - CENTRALA termica PROPRIE si incalzire in pardoseala Teren imprejmuit. Terasa este spatioasa, facuta la comanda, acoperis din tigla. Gradina este COMPLET amenajata. Dispune de toate utilitatile (apa, gaz, canal, curent), drumul de acces fiind pietruit pe o portiune restransa. Detalii pret : Pretul solicitat de proprietar este de 220.000 Eur (TVA inclus). Se accepta si varianta de achizitionare prin intermediul unui credit bancar.
Citește mai mult Citește mai puțin
Curte Centrală proprie Încălzire prin pardoseală 2 Parcări

Detalii casă

ID anunț: X9B91113H Copiat! 275093518 Copiat!
Actualizat în: 25 Februarie 2026
Suprafață construită: 89 mp
Suprafață desfășurată: 143 mp
Nr. bucătării: 1
Nr. băi: 3
Nr. terase: 1
Suprafață terase: 21 mp
Front stradal: 11.0 m
Învelitoare acoperiș: Țiglă
An construcție: 2024 (Finalizată)
Structură rezistență: Cărămidă
Regim înălțime: P+1E

Utilități

Pereți
Faianță Vopsea lavabilă
Podele
Gresie Parchet
Ușă intrare
PVC
Uși interior
Celulare
Izolații termice
Exterior
Ferestre cu geam termopan
PVC
Contorizare
Apometre Contor gaz
Facilități imobil
Acoperiș
Utilități
Curent Apă Canalizare CATV Gaze Telefon
Internet
Cablu
Amenajare străzi
Iluminat stradal Mijloace de transport în comun Asfaltate
Comision
standard

Vecinătăți:

Shopping:
-Profi, Lidl
Educatie:
-Scoala Gimnaziala Sacalaz, Scoala I-VIII Beregsau Mare, Gradinita Sacalaz
Spatii recreere:
-Parcul Sacalaz

Disponibilitate proprietate:

Imediata

Puncte de interes

Recreere
sports-ground
Teren sportiv
Terenuri sport aprox. 1890 m

Detalii despre preț și costuri

Costuri cu achiziția

Fără credit
10.454 RON
Credit ipotecar
12.500 RON
Noua casă
1.261 RON+ taxe notariale

i

Costuri adiționale mai puțin știute la achiziție: taxe notariale, comisioane etc.

Proprietăți similare

Duplex cu 5 camere în Săcălaz
219.990 €
Județul Timiș, Săcălaz
5 camere
130 mp
350 mp teren
Duplex cu 5 camere în Săcălaz
209.990 €
Județul Timiș, Săcălaz
5 camere
148 mp
360 mp teren
Duplex cu 5 camere în Săcălaz
199.990 €
Județul Timiș, Săcălaz
5 camere
125 mp
250 mp teren

Detalii de contact

ImoPuls

Alexandru Mechetenici Consultant Imobiliar

4.67(3 review-uri)

ImoPuls

Abonează-te la newsletter să fii primul care primește cele mai noi recomandări de proprietăți și sfaturi de la experți.

CONTACT

Creează alertă

Salvează căutarea ca să primești pe email ultimele anunțuri publicate

Duplexuri cu 4+ camere de vânzare în Săcălaz, Județul Timiș