Metrou 1 Decembrie - Duplex 4 camere Premium - Comision 0

310.000 €

1 Decembrie 1918, București

Nr. cam.:
4
Sup. utilă:
137.720 mp
Sup. teren:
210 mp
Tip prop.:
Duplex
  • • Comision 0%
  • • Exclusivitate
  • • Locație exactă

Descriere casă

Este postat video prezentare in detaliu ! VILĂ MODERNĂ CONSTRUITĂ LA CALCAN | 20 MIN DE METROU 1 DECEMBRIE 1918 | 310.000 EUR | COMISION 0% Va prezentam spre vanzare o vila moderna, construita la calcan, situata intr-o zona linistita, cu acces facil catre statia de metrou 1 Decembrie 1918 – la doar 20 de minute de mers pe jos. Caracteristici generale: Duplex Construit la calcan Acces: Pietonal si auto facil, infrastructura completa Specificatii tehnice: Structura: Zidarie din caramida Porotherm Profi 30 cm Tamplarie: Salamander Tripan Blue Evolution, cu sticla cu strat de argon pentru eficienta termica ridicata Sistem de incalzire: Pompe de caldura Romstal Incalzire in pardoseala (toate etajele) – sistem Romstal Instalatii electrice: Marca Schneider – echipamente de inalta calitate si siguranta Utilitati: Apa curenta Canalizare racordata la retea publica Hidroizolatie terasa: Asigura protectie durabila impotriva infiltratiilor Alte avantaje: Constructie durabila si eficienta energetic Fara comision pentru cumparator Pret de vanzare: 310.000 EUR Proprietatea este ideala pentru o familie care cauta confort, calitate in executie si un acces rapid catre punctele de interes urban. Pentru mai multe detalii si vizionari / Deea Maxer
Citește mai mult Citește mai puțin
Nemobilat Încălzire prin pardoseală 2 Parcări

Detalii casă

ID anunț: XGB801000 Copiat! 274820220 Copiat!
Actualizat în: 09 Februarie 2026
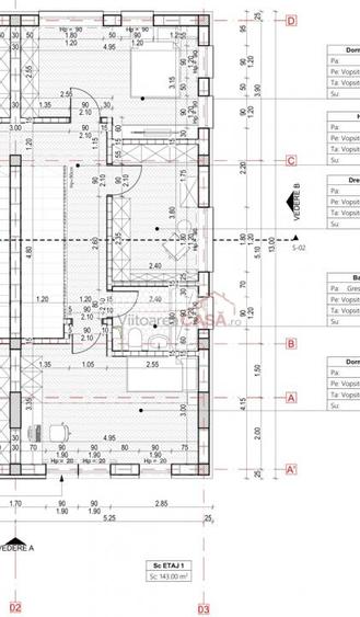
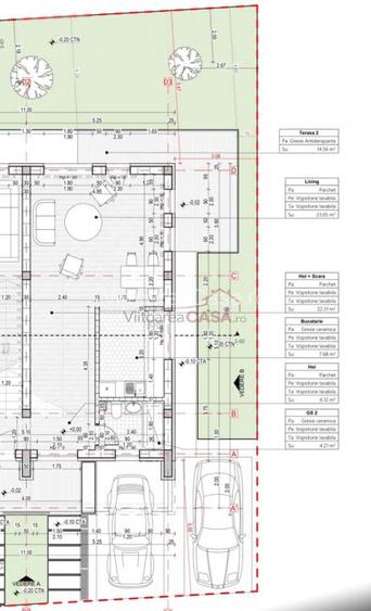
Suprafață construită: 166 mp
Nr. bucătării: 1
Nr. băi: 2
Nr. terase: 1
An construcție: 2025 (Finalizată)
Structură rezistență: Beton
Regim înălțime: P+1E

Utilități

Pereți
Vopsea lavabilă Faianță
Podele
Parchet Gresie
Ușă intrare
Metal
Uși interior
Celulare
Izolații termice
Exterior Interior
Ferestre cu geam termopan
PVC
Utilități
Curent Apă Canalizare Gaze Curent trifazic
Amenajare străzi
Asfaltate Pietruite Iluminat stradal

Certificat energetic:

Clasa energetică: A

Vecinătăți:

Blv Nicolae Grigorescu

Disponibilitate proprietate:

imediat

Puncte de interes

Mijloace transport
bus-station
Splaiul Unirii 749
Stații autobuz aprox. 601 m
bus-station
Statia Sere, linia 223
Stații autobuz aprox. 766 m
metro-station
Metrorex. Stația 1 Decembrie 1918 (M3) Lift
Stații metrou aprox. 966 m
tram-station
statie tramvai -23, 27 si 40 - ozana
Stații tramvai aprox. 990 m
Școală
school
Scoala cu Clasele I-VIII Nr. 20 "Simion Mehedinti"
Școli aprox. 764 m
kindergarten
Gradinita de copii nr. 211
Gradinițe aprox. 834 m
kindergarten
Gradinita nr. 211
Gradinițe aprox. 834 m
school
Colegiul tehnic de chimie "Costin Nenitescu"
Școli aprox. 900 m
Recreere
park
Parc
Parcuri aprox. 243 m
bar
Bistro Burghez
Bar aprox. 387 m
sports-ground
Teren sportiv
Terenuri sport aprox. 692 m
supermarket
Lidl
Supermarket aprox. 886 m

Detalii despre preț și costuri

Costuri cu achiziția

Fără credit
13.543 RON
Credit ipotecar
15.971 RON
Noua casă
1.720 RON+ taxe notariale

i

Costuri adiționale mai puțin știute la achiziție: taxe notariale, comisioane etc.

Proprietăți recomandate

Detalii de contact

ViitoareaCasă.ro

Deea Maxer Catarama Fondator I Marketing Coordonator I Specialist Imobiliar

ViitoareaCasă.ro

Abonează-te la newsletter să fii primul care primește cele mai noi recomandări de proprietăți și sfaturi de la experți.

CONTACT

Creează alertă

Salvează căutarea ca să primești pe email ultimele anunțuri publicate

Duplexuri cu 4+ camere de vânzare în zona 1 Decembrie 1918, Sector 3