VILA PREMIUM IN CURS DE FINALIZARE / PALLADY. COMISION 0%!

285.000 € + TVA

Titan, București

Nr. cam.:
4
Sup. utilă:
141,14 mp
Sup. teren:
175 mp
Tip prop.:
Duplex
  • • Comision 0%
  • • Locație aproximativă

Descriere casă

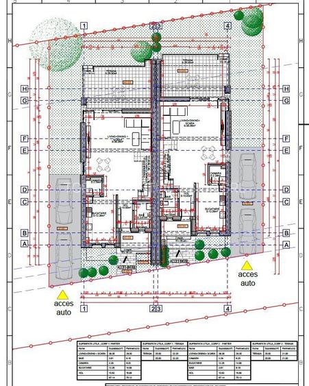
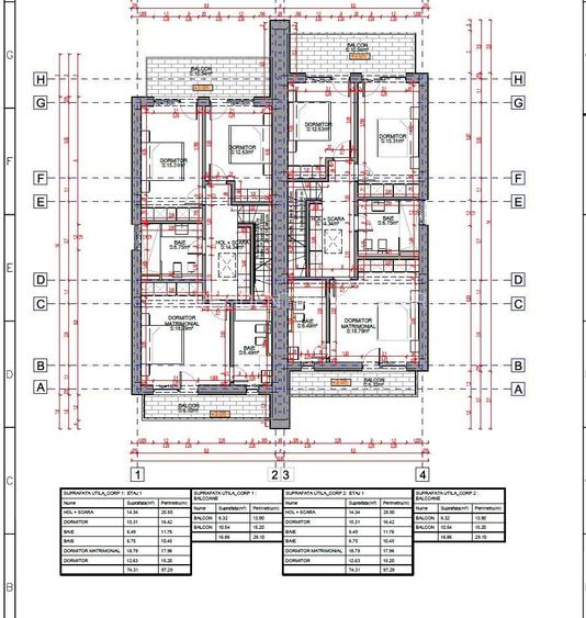
Vila Tip Duplex de vânzare – Finisaje de înaltă calitate, situată în spatele Auchan Titan, Drumul Gura Calitei Pret Fara Tva! Vă propunem spre vânzare o vilă tip duplex elegantă și modernă, ce beneficiază de finisaje de înaltă calitate, situată într-o zonă liniștită și accesibilă, în apropierea Auchan Titan. Această proprietate impune un stil de viață contemporan și confortabil, conceput pentru familii care apreciază rafinamentul și funcționalitatea. Caracteristici și facilități: Suprafață utilă: 142 mp, bine compartimentată pentru a maximiza confortul Terasă: 25 mp, ideală pentru relaxare și petrecerea timpului în aer liber Compartimentare: Parter: Living spațios de aproximativ 38 mp, perfect pentru întâlniri și momente petrecute în familie Bucătărie modernă Grup sanitar Acces direct la terasă Etaj: 3 dormitoare spațioase, fiecare gândit pentru a oferi intimitate și confort 2 băi, facilitând astfel utilizarea eficientă a spațiului pentru întreaga familie Locuri de parcare: Vila dispune de două locuri de parcare, oferind confort suplimentar și siguranță pentru autovehicule Curte liberă: 100 mp, perfectă pentru activități recreative și petrecerea timpului în aer liber Finisaje premium: Încălzire în pardoseală, termopane tripan Salamander și toalete încastrate, asigurând un ambient elegant și confortabil. Această vilă tip duplex reprezintă alegerea ideală pentru cei care doresc un cămin modern, situat într-o zonă bine cotată, cu acces facil la toate facilitățile necesare. Contactați-ne pentru mai multe detalii sau pentru a programa o vizionare!
Citește mai mult Citește mai puțin
Nemobilat Centrală proprie Încălzire prin pardoseală 2 Parcări

Detalii casă

ID anunț: XDU3110BF Copiat! 275471822 Copiat!
Actualizat în: 23 Aprilie 2026
Suprafață construită: 75 mp
Suprafață desfășurată: 172 mp
Nr. bucătării: 1
Nr. băi: 3
Nr. balcoane / Terase / Logii: 2
Nr. terase: 1
Suprafață terase: 25 mp
Învelitoare acoperiș: Tabla
An construcție: 2026 (Finalizată)
Structură rezistență: Cărămidă
Regim înălțime: P+1E

Utilități

Pereți
Faianță Vopsea lavabilă
Podele
Gresie Parchet
Ușă intrare
Metal
Ferestre cu geam termopan
PVC
Contorizare
Apometre Contor gaz
Utilități
Curent Apă Canalizare CATV Gaze Telefon
Internet
Cablu
Amenajare străzi
Iluminat stradal Mijloace de transport în comun Asfaltate
Comision
0%

Disponibilitate proprietate:

Imediat

Puncte de interes

Mijloace transport
tram-station
Chimopar
Stații tramvai aprox. 1042 m
tram-station
Statia Nicolae Teclu, Linia M3
Stații tramvai aprox. 1042 m
bus-station
Statia Chimopar, N111, 23, 27, 40
Stații autobuz aprox. 1043 m
metro-station
Metrorex.Stația Nicolae Teclu (M3)(2008)
Stații metrou aprox. 1048 m
Școală
kindergarten
Gradinita nr. 68
Gradinițe aprox. 1078 m
school
Spectrum Liceul Teoretic International de Informatica
Școli aprox. 1284 m
school
Scoala Generala nr. 55
Școli aprox. 1479 m
kindergarten
Gradinita Nr. 160 - "soarelui"
Gradinițe aprox. 1552 m
Recreere
park
Parc
Parcuri aprox. 430 m
hypermarket
Metro
Hipermarket aprox. 811 m
supermarket
Metro Pallady
Supermarket aprox. 811 m
sports-ground
Teren de fotbal
Terenuri sport aprox. 1470 m

Detalii despre preț și costuri

Costuri cu achiziția

Fără credit
Credit ipotecar
Noua casă

i

Costuri adiționale mai puțin știute la achiziție: taxe notariale, comisioane etc.

Insight premium disponibil după login

Proprietăți similare

Duplex cu 4 camere în Titan
285.000 € + TVA
București, Titan
4 camere
141,14 mp
175 mp teren
Duplex cu 4 camere în Titan
285.000 € + TVA
București, Titan
4 camere
141,14 mp
175 mp teren
Duplex cu 4 camere în Titan
285.000 € + TVA
București, Titan
4 camere
141,14 mp
175 mp teren

Detalii de contact

TOP REZIDENTIAL VISION SRL

Bogdan Ilie Agent

5.00(4 review-uri)

TOP REZIDENTIAL VISION SRL
PRO

Abonează-te la newsletter să fii primul care primește cele mai noi recomandări de proprietăți și sfaturi de la experți.

CONTACT

Creează alertă

Salvează căutarea ca să primești pe email ultimele anunțuri publicate

Duplexuri cu 4+ camere de vânzare în zona Titan, Sector 3